Ericasestraat 69-A 7887 GB Erica
€ 1,000 p/mo.
Description
Kantoor-/werkruimte te huur aan de rand van Erica aan de Ericasestraat.
Aan de rand van Erica aan de Ericasestraat is deze kantoorruimte in overleg beschikbaar. De Ericasestraat is de doorgaande weg van Erica naar Emmen. In de directe omgeving (zelfde kleinschalige bedrijventerrein) zijn een aantal bedrijven gevestigd en op korte afstand liggen diverse winkels (o.a. bakker, bloemenzaak, drogisterij, snackbar, horeca, etc.) alsmede een supermarkt. Deze kantoorruimte is gesitueerd op de eerste verdieping van een fraai bedrijfsgebouw. De totale oppervlakte van het gehuurde is circa 200 m2.
Reageer en wij laten u het geheel graag zien.
Soort
Kantoor-/werkruimte.
Indeling
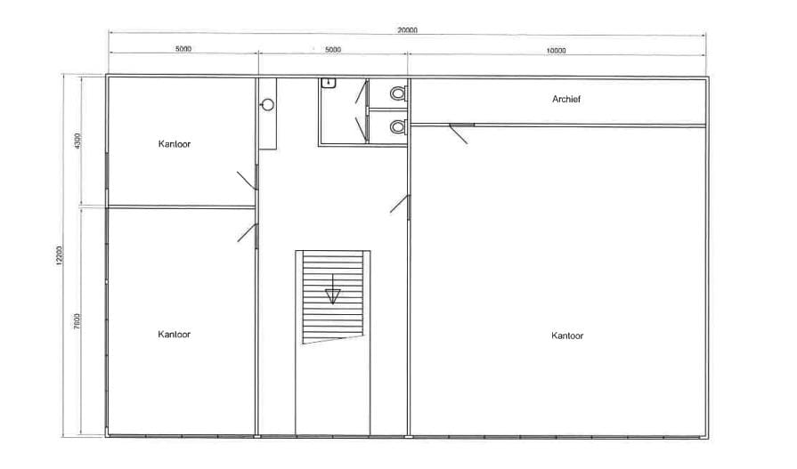
De totale ruimte op de eerste verdieping is circa 200 m2 groot. Op de begane grond is er de centrale entree (tezamen met de huurder op de begane grond) met trapopgang. Op de eerste verdieping vindt u een pantry, twee separate toiletten, 3 x kantoorruimte, bergruimte/archief en een overloop.
Bereikbaarheid
De kantoor-/werkruimte ligt aan de rand van Erica. Winkels, supermarkt, pinautomaat, brievenbus en bushalte bevinden zich allemaal op zeer korte afstand. De oprit van de A37 ligt op slechts enkele kilometers afstand. Daarnaast is het gelegen aan de doorgaande weg van Erica naar Emmen.
Aanvaarding
In overleg beschikbaar.
Oppervlakte
In totaal circa 200 m2 groot.
Huurvoorwaarden
Huurovereenkomst conform ROZ model met aanvullingen van verhuurder;
Huurperiode: vanaf 3 jaar;
Opzegtermijn: 6 maanden;
Huurbetaling: per maand bij vooruitbetaling.
Huurprijsindexering: jaarlijks per 01 juli van elk jaar na huuringangsdatum op basis van het CPI alle huishoudens.
Bankgarantie/waarborgsom: ter grootte van twee maanden huur.
Huurprijs
€ 1.000,00 per maand (geen BTW van toepassing);
Huurprijs is exclusief servicekosten (kosten verwarming, water en elektra, € 275,00 p/m).
Aan de rand van Erica aan de Ericasestraat is deze kantoorruimte in overleg beschikbaar. De Ericasestraat is de doorgaande weg van Erica naar Emmen. In de directe omgeving (zelfde kleinschalige bedrijventerrein) zijn een aantal bedrijven gevestigd en op korte afstand liggen diverse winkels (o.a. bakker, bloemenzaak, drogisterij, snackbar, horeca, etc.) alsmede een supermarkt. Deze kantoorruimte is gesitueerd op de eerste verdieping van een fraai bedrijfsgebouw. De totale oppervlakte van het gehuurde is circa 200 m2.
Reageer en wij laten u het geheel graag zien.
Soort
Kantoor-/werkruimte.
Indeling
De totale ruimte op de eerste verdieping is circa 200 m2 groot. Op de begane grond is er de centrale entree (tezamen met de huurder op de begane grond) met trapopgang. Op de eerste verdieping vindt u een pantry, twee separate toiletten, 3 x kantoorruimte, bergruimte/archief en een overloop.
Bereikbaarheid
De kantoor-/werkruimte ligt aan de rand van Erica. Winkels, supermarkt, pinautomaat, brievenbus en bushalte bevinden zich allemaal op zeer korte afstand. De oprit van de A37 ligt op slechts enkele kilometers afstand. Daarnaast is het gelegen aan de doorgaande weg van Erica naar Emmen.
Aanvaarding
In overleg beschikbaar.
Oppervlakte
In totaal circa 200 m2 groot.
Huurvoorwaarden
Huurovereenkomst conform ROZ model met aanvullingen van verhuurder;
Huurperiode: vanaf 3 jaar;
Opzegtermijn: 6 maanden;
Huurbetaling: per maand bij vooruitbetaling.
Huurprijsindexering: jaarlijks per 01 juli van elk jaar na huuringangsdatum op basis van het CPI alle huishoudens.
Bankgarantie/waarborgsom: ter grootte van twee maanden huur.
Huurprijs
€ 1.000,00 per maand (geen BTW van toepassing);
Huurprijs is exclusief servicekosten (kosten verwarming, water en elektra, € 275,00 p/m).
Features
Transfer of ownership
- Rental price
- € 1,000 per month
- Service charges
- € 275 per month
- Listed since
-
- Status
- Available
- Acceptance
- Available in consultation
Construction
- Main use
- Office
- Building type
- Resale property
- Year of construction
- 1981
Surface areas
- Area
- 200 m²
Layout
- Number of floors
- 1 floor
- Facilities
- Air conditioning, windows can be opened, modular ceiling, toilet, pantry and heating
Energy
- Energy label
- Not available
Surroundings
- Accessibility
- Bus stop in less than 500 m, Dutch Railways Intercity station in 4000 m to 5000 m and motorway exit in 4000 m to 5000 m
NVM real estate agent
Photos