Description
TE HUUR:
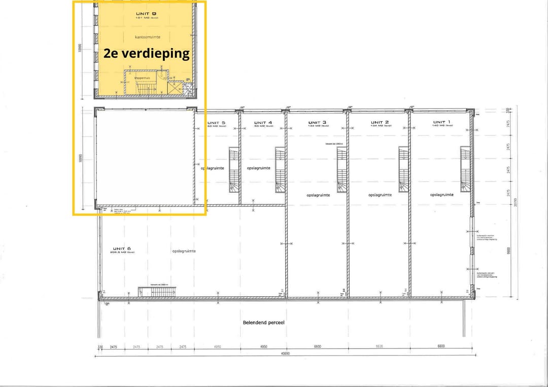
In het moderne bedrijfsverzamelgebouw ''Marconi Plaza'' is deze ruime en veelzijdige turn-key ruimte op de 2e verdieping beschikbaar voor verhuur!
Dit bedrijfsverzamelgebouw, gevestigd op het terrein van een voormalige chocoladefabriek, biedt een dynamische mix van bedrijfsruimtes op een uitstekende zichtlocatie aan het kruispunt van de Marconistraat en de Nobelstraat.
De tweede verdieping is ca. 88 m² VVO. De ruimte is voorzien van grote raampartijen, die zorgen voor voldoende daglicht toetreding, wat bijdraagt aan een prettige werkomgeving. De verdieping is eenvoudig te bereiken via zowel een trap als een lift, gelegen in het trappenhuis.
Ligging:
Deze kopunit is gelegen op bedrijventerrein Zandhorst I, ten noorden van Heerhugowaard. Zandhorst bestaat in totaal uit drie bedrijventerreinen, waarvan Zandhorst I en II het grootste deel uitmaken. Het bedrijventerrein Zandhorst is goed te bereiken via de N242, deze sluit aan op de rijksweg A9. Tevens is de bushalte op ca. 1 minuut loopafstand en op ca. 10 minuten loopafstand bevindt zich het NS-station.
Parkeren:
Er is parkeergelegenheid op voor en naast gelegen parkeerplaats.
Per unit 1 parkeerplaats beschikbaar.
Oplevering:
Deze kopunit is onder andere voorzien van:
- Energielabel A;
- Lift;
- Verwarming middels radiatoren;
- Pantry
- Sanitaire voorzieningen
Indeling:
2e verdieping ca. 110 m² BVO incl aandeel alg ruimtes
Aanvaarding:
In overleg, kan spoedig.
Voorbehoud:
Deze informatie is geheel vrijblijvend en houdt slechts een uitnodiging in tot het doen van een voorstel. Een overeenkomst kan pas tot stand komen na uitdrukkelijke en schriftelijke instemming door onze opdrachtgever. Aan de inhoud van deze informatie kunnen geen rechten worden ontleend.
---------------------------------------------------------------------------------------------------------------------------------------
Uitgangspunten verhuurder met betrekking tot een vrijblijvende huuraanbieding:
---------------------------------------------------------------------------------------------------------------------------------------
1. Gehuurde
Marconistraat 6 te Heerhugowaard
2. Huurprijs
€ 825,- per maand, excl. BTW
3. Huuringangsdatum
In overleg, kan spoedig
4. Huurperiode
Voorkeur verhuurder 5 jaar met verlengingsperioden van telkens 5 jaar.
5. Huurbetaling
Per maand vooruit
6. Huurprijsaanpassing
Ieder jaar op basis van het Consumenten Prijs Indexcijfer (CPI) Alle Huishoudens, zoals gepubliceerd door het CBS (2006=100), voor het eerst per datum 1 jaar na ingang huurovereenkomst.
7. Contractvoorwaarden
Standaard ROZ model vastgesteld in 2025 (kantoor) inclusief aanvullende bepalingen van verhuurder.
8. Bankgarantie/waarborgsom
Ter grootte van een bruto betalingsverplichting van 3 maanden huur inclusief servicekosten en BTW.
9. BTW
Bij het vaststellen van de huurprijs is ervan uitgegaan dat huurder voor meer dan 90% aftrekgerechtigde prestaties in het gehuurde zal verrichten.
10. Servicekosten
Huurder is per verdieping een bedrag verschuldigd thans ingeschat op € 200,- excl. BTW per maand voor o.a. verlichting en schoonmaak van het trappenhuis alsmede voor het voorschot energieverbruik voor het gehuurde.
11. Bestemming gehuurde
Bedrijfsruimte
12. Wijze van oplevering
In huidige staat, e.e.a. zoals getoond, aan partijen genoegzaam bekend.
13. Aanvullende bepalingen
Drugs:
Huurder staat er uitdrukkelijk voor in dat in het gehuurde geen handel in drugs, natuurlijke middelen of natuurlijke geestverruimende middelen zal plaatsvinden en dat er geen middelen, als bedoeld in artikel 2 van de Opiumwet of stoffen, die alleen op recept van een arts mogen worden afgegeven, zullen worden gebruikt, bereid, verkocht, verwerkt, afgeleverd, versterkt of vervaardigd dan wel aanwezig.
In het moderne bedrijfsverzamelgebouw ''Marconi Plaza'' is deze ruime en veelzijdige turn-key ruimte op de 2e verdieping beschikbaar voor verhuur!
Dit bedrijfsverzamelgebouw, gevestigd op het terrein van een voormalige chocoladefabriek, biedt een dynamische mix van bedrijfsruimtes op een uitstekende zichtlocatie aan het kruispunt van de Marconistraat en de Nobelstraat.
De tweede verdieping is ca. 88 m² VVO. De ruimte is voorzien van grote raampartijen, die zorgen voor voldoende daglicht toetreding, wat bijdraagt aan een prettige werkomgeving. De verdieping is eenvoudig te bereiken via zowel een trap als een lift, gelegen in het trappenhuis.
Ligging:
Deze kopunit is gelegen op bedrijventerrein Zandhorst I, ten noorden van Heerhugowaard. Zandhorst bestaat in totaal uit drie bedrijventerreinen, waarvan Zandhorst I en II het grootste deel uitmaken. Het bedrijventerrein Zandhorst is goed te bereiken via de N242, deze sluit aan op de rijksweg A9. Tevens is de bushalte op ca. 1 minuut loopafstand en op ca. 10 minuten loopafstand bevindt zich het NS-station.
Parkeren:
Er is parkeergelegenheid op voor en naast gelegen parkeerplaats.
Per unit 1 parkeerplaats beschikbaar.
Oplevering:
Deze kopunit is onder andere voorzien van:
- Energielabel A;
- Lift;
- Verwarming middels radiatoren;
- Pantry
- Sanitaire voorzieningen
Indeling:
2e verdieping ca. 110 m² BVO incl aandeel alg ruimtes
Aanvaarding:
In overleg, kan spoedig.
Voorbehoud:
Deze informatie is geheel vrijblijvend en houdt slechts een uitnodiging in tot het doen van een voorstel. Een overeenkomst kan pas tot stand komen na uitdrukkelijke en schriftelijke instemming door onze opdrachtgever. Aan de inhoud van deze informatie kunnen geen rechten worden ontleend.
---------------------------------------------------------------------------------------------------------------------------------------
Uitgangspunten verhuurder met betrekking tot een vrijblijvende huuraanbieding:
---------------------------------------------------------------------------------------------------------------------------------------
1. Gehuurde
Marconistraat 6 te Heerhugowaard
2. Huurprijs
€ 825,- per maand, excl. BTW
3. Huuringangsdatum
In overleg, kan spoedig
4. Huurperiode
Voorkeur verhuurder 5 jaar met verlengingsperioden van telkens 5 jaar.
5. Huurbetaling
Per maand vooruit
6. Huurprijsaanpassing
Ieder jaar op basis van het Consumenten Prijs Indexcijfer (CPI) Alle Huishoudens, zoals gepubliceerd door het CBS (2006=100), voor het eerst per datum 1 jaar na ingang huurovereenkomst.
7. Contractvoorwaarden
Standaard ROZ model vastgesteld in 2025 (kantoor) inclusief aanvullende bepalingen van verhuurder.
8. Bankgarantie/waarborgsom
Ter grootte van een bruto betalingsverplichting van 3 maanden huur inclusief servicekosten en BTW.
9. BTW
Bij het vaststellen van de huurprijs is ervan uitgegaan dat huurder voor meer dan 90% aftrekgerechtigde prestaties in het gehuurde zal verrichten.
10. Servicekosten
Huurder is per verdieping een bedrag verschuldigd thans ingeschat op € 200,- excl. BTW per maand voor o.a. verlichting en schoonmaak van het trappenhuis alsmede voor het voorschot energieverbruik voor het gehuurde.
11. Bestemming gehuurde
Bedrijfsruimte
12. Wijze van oplevering
In huidige staat, e.e.a. zoals getoond, aan partijen genoegzaam bekend.
13. Aanvullende bepalingen
Drugs:
Huurder staat er uitdrukkelijk voor in dat in het gehuurde geen handel in drugs, natuurlijke middelen of natuurlijke geestverruimende middelen zal plaatsvinden en dat er geen middelen, als bedoeld in artikel 2 van de Opiumwet of stoffen, die alleen op recept van een arts mogen worden afgegeven, zullen worden gebruikt, bereid, verkocht, verwerkt, afgeleverd, versterkt of vervaardigd dan wel aanwezig.
Map
Map is loading...
Cadastral boundaries
Buildings
Travel time
Gain insight into the reachability of this object, for instance from a public transport station or a home address.