Description
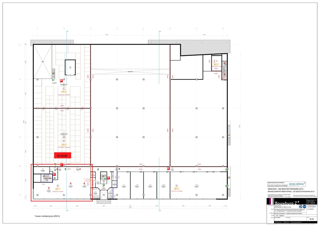
TE HUUR - CA. 800 M² "TURN-KEY" KANTOORRUIMTE
IN UNITS VANAF 225 M²
Voor de verhuur bieden wij u aan een functionele kantoorruimte ter grootte van ca. 225 m² tot 800 m², gelegen aan de Pakhuisstraat 13 te Hengelo (OV). De kantoorunit is gelegen op de 1e verdieping in een bedrijfsverzamelgebouw, gesitueerd aan de rand van Hengelo op het bedrijventerrein ‘Twentekanaal Noord’. Het bedrijfsverzamelgebouw beschikt over een groot eigen parkeerterrein. In overleg bestaat tevens de mogelijkheid om de kantoorruimte te combineren met bedrijfsruimte, welke aanwezig is binnen dit bedrijfsverzamelgebouw.
Let op:
De begane grond (Pakhuisstraat 11) is ingericht voor de nieuwe huurder, e.e.a. conform de foto’s in deze brochure. De eerste verdieping (Pakhuisstraat 13) welke casco te huur wordt aangeboden, kan in overleg met verhuurder naar de wensen van de nieuwe huurder worden ingericht en afgebouwd.
In 2026 vindt naar verwachting een interne en externe verbouwing plaats, waarbij de entree en de algemene toegangsruimten van het bedrijfsverzamelgebouw verder worden gerenoveerd en gemoderniseerd.
BESTEMMINGSPLAN
“Bedrijventerrein Twentekanaal” met als enkelbestemming “bedrijventerrein - industrie” op grond van artikel 5 van de planvoorschriften en functieaanduiding “bedrijf tot en met categorie 3.2”. (zie bijlage)
KADASTRAAL
Gemeente Hengelo (OV), sectie K, nummer 3933 & 3934 - deels
INDELING EN OPPERVLAKTEN
Het bedrijfsverzamelgebouw is thans deels verhuurd. De beschikbare oppervlakte voor de verhuur van de onderhavige ruimte bedraagt circa 225 m² tot 800 m².
Huurprijs: v.a. € 135,- m²/jr*
* Huurprijs voor een volledig afgewerkte kantoorruimte, een en ander conform de bijgevoegde foto's’ in deze brochure, welke als voorbeeld dienen.
De oppervlakten zijn gemeten door verhurend makelaar uit een kopie bouwtekening. Het opgegeven metrage is derhalve indicatief; er kunnen geen rechten aan worden ontleend noch kan er sprake zijn van enige verrekening achteraf.
SERVICEKOSTEN
€ 15,-- per m²/jaar, te vermeerderen met btw. Het betreffen o.a. de navolgende voorschotten, te weten:
- Schoonmaak algemene ruimten
- Onderhoud en keuringskosten technische installaties
- Onderhoud en keuringskosten elektrische installaties
- Onderhoud en keuringskosten toegangssysteem
- Schoonmaak en onderhoud groenvoorziening, buitenterrein en de algemene ruimtes
- Glas- en gevelbewassing
- Ongediertebestrijding
- Glasverzekering (buitenglas)
- Divers klein onderhoud
- Administratiekosten ad. 5% over de hierboven aangekruiste leveringen en diensten
Het object wordt in overleg opgeleverd met o.a. de volgende voorzieningen:
Kantoorruimten:
- Verwarming middels airco units
- Industriële uitstraling plafonds v.v. metalen kabelgoten
- Vloerafwerking v.v. pvc – eiken look
- Pantry – in overleg
- Kabelgoten langs de wanden bij raampartijen - bestaand
- Toiletten
- Ruim daglichttoetreding
Algemeen:
- Centrale entree met medehuurder begane grond
- Bestraat buitenterrein
- Grote gemeenschappelijke parkeerplaats t.b.v. parkeren auto’s
- Eigen aansluitingen nutsbedrijven
HUURTERMIJN
Minimale huurtermijn van 5 (vijf) jaar.
VERLENGINGSTERMIJN
Met aansluitende periode van telkenmale 5 (vijf) jaar.
OPZEGTERMIJN
12 maanden voorafgaande aan de expiratiedatum.
BTW
Er is sprake van een verhuur met btw. Indien huurder niet voldoet aan de fiscale 90% btw-norm zal er een btw-vervangende opslag worden berekend.
ZEKERHEIDSSTELLING
Doorlopende bankgarantie of waarborgsom ter grootte van 3 maanden huur inclusief eventuele servicekosten en inclusief btw.
INDEXERING
Jaarlijks, voor het eerst één jaar na huuringangsdatum, op basis van de wijziging van het maandprijsindexcijfer volgens de consumentenprijsindex (CPI), reeks CPI - Alle huishoudens (2015=100), gepubliceerd door het Centraal Bureau voor de Statistiek (CBS). De huurprijs zal nimmer minder bedragen dan de huurprijs van het voorafgaande jaar.
BEREIKBAARHEID
Het object is zeer goed bereikbaar per auto door haar ligging op het bedrijventerrein Twentekanaal Noord. Op circa 3 minuten rijafstand liggen enkele grote ontsluitingswegen, waaronder de Haaksbergerstraat, welke direct ontsluiting heeft met de Rijksweg A35 en de A1 richting Amsterdam en Berlijn. Ook lokale uitvalswegen naar omliggende plaatsen zijn direct en goed bereikbaar.
In de directe nabijheid is een bushalte gevestigd, waardoor het bedrijfscomplex per openbaar vervoer eveneens goed bereikbaar is.
OMGEVINGSFACTOREN / LOCATIEAANDUIDING
Het object bevindt zich op een relatief groot industrieterrein ‘Bedrijvenpark Twentekanaal Noord’. Het onderhavige bedrijventerrein is gelegen aan de rand van Hengelo (O) richting Enschede. Er zijn ca. 320 bedrijven gevestigd met ruim 9.000 arbeidsplaatsen.
PARKEREN
Er zijn ruim voldoende mogelijkheden tot parkeren van auto’s op het eigen terrein voor het gebouw.
AANVAARDING
Aanvaarding in overleg, nadat de verbouwing is afgerond. Geschatte afbouwtijd ca. 3 maanden
VOORBEHOUD
Definitieve goedkeuring opdrachtgever en/of verhuurder.
INFORMATIE
Wij hebben getracht middels deze zorgvuldig samengestelde documentatie u zo uitgebreid mogelijk te informeren. Desondanks kunnen hieraan geen rechten worden ontleend. Slechts de feitelijke situatie geeft u een juist beeld.
IN UNITS VANAF 225 M²
Voor de verhuur bieden wij u aan een functionele kantoorruimte ter grootte van ca. 225 m² tot 800 m², gelegen aan de Pakhuisstraat 13 te Hengelo (OV). De kantoorunit is gelegen op de 1e verdieping in een bedrijfsverzamelgebouw, gesitueerd aan de rand van Hengelo op het bedrijventerrein ‘Twentekanaal Noord’. Het bedrijfsverzamelgebouw beschikt over een groot eigen parkeerterrein. In overleg bestaat tevens de mogelijkheid om de kantoorruimte te combineren met bedrijfsruimte, welke aanwezig is binnen dit bedrijfsverzamelgebouw.
Let op:
De begane grond (Pakhuisstraat 11) is ingericht voor de nieuwe huurder, e.e.a. conform de foto’s in deze brochure. De eerste verdieping (Pakhuisstraat 13) welke casco te huur wordt aangeboden, kan in overleg met verhuurder naar de wensen van de nieuwe huurder worden ingericht en afgebouwd.
In 2026 vindt naar verwachting een interne en externe verbouwing plaats, waarbij de entree en de algemene toegangsruimten van het bedrijfsverzamelgebouw verder worden gerenoveerd en gemoderniseerd.
BESTEMMINGSPLAN
“Bedrijventerrein Twentekanaal” met als enkelbestemming “bedrijventerrein - industrie” op grond van artikel 5 van de planvoorschriften en functieaanduiding “bedrijf tot en met categorie 3.2”. (zie bijlage)
KADASTRAAL
Gemeente Hengelo (OV), sectie K, nummer 3933 & 3934 - deels
INDELING EN OPPERVLAKTEN
Het bedrijfsverzamelgebouw is thans deels verhuurd. De beschikbare oppervlakte voor de verhuur van de onderhavige ruimte bedraagt circa 225 m² tot 800 m².
Huurprijs: v.a. € 135,- m²/jr*
* Huurprijs voor een volledig afgewerkte kantoorruimte, een en ander conform de bijgevoegde foto's’ in deze brochure, welke als voorbeeld dienen.
De oppervlakten zijn gemeten door verhurend makelaar uit een kopie bouwtekening. Het opgegeven metrage is derhalve indicatief; er kunnen geen rechten aan worden ontleend noch kan er sprake zijn van enige verrekening achteraf.
SERVICEKOSTEN
€ 15,-- per m²/jaar, te vermeerderen met btw. Het betreffen o.a. de navolgende voorschotten, te weten:
- Schoonmaak algemene ruimten
- Onderhoud en keuringskosten technische installaties
- Onderhoud en keuringskosten elektrische installaties
- Onderhoud en keuringskosten toegangssysteem
- Schoonmaak en onderhoud groenvoorziening, buitenterrein en de algemene ruimtes
- Glas- en gevelbewassing
- Ongediertebestrijding
- Glasverzekering (buitenglas)
- Divers klein onderhoud
- Administratiekosten ad. 5% over de hierboven aangekruiste leveringen en diensten
Het object wordt in overleg opgeleverd met o.a. de volgende voorzieningen:
Kantoorruimten:
- Verwarming middels airco units
- Industriële uitstraling plafonds v.v. metalen kabelgoten
- Vloerafwerking v.v. pvc – eiken look
- Pantry – in overleg
- Kabelgoten langs de wanden bij raampartijen - bestaand
- Toiletten
- Ruim daglichttoetreding
Algemeen:
- Centrale entree met medehuurder begane grond
- Bestraat buitenterrein
- Grote gemeenschappelijke parkeerplaats t.b.v. parkeren auto’s
- Eigen aansluitingen nutsbedrijven
HUURTERMIJN
Minimale huurtermijn van 5 (vijf) jaar.
VERLENGINGSTERMIJN
Met aansluitende periode van telkenmale 5 (vijf) jaar.
OPZEGTERMIJN
12 maanden voorafgaande aan de expiratiedatum.
BTW
Er is sprake van een verhuur met btw. Indien huurder niet voldoet aan de fiscale 90% btw-norm zal er een btw-vervangende opslag worden berekend.
ZEKERHEIDSSTELLING
Doorlopende bankgarantie of waarborgsom ter grootte van 3 maanden huur inclusief eventuele servicekosten en inclusief btw.
INDEXERING
Jaarlijks, voor het eerst één jaar na huuringangsdatum, op basis van de wijziging van het maandprijsindexcijfer volgens de consumentenprijsindex (CPI), reeks CPI - Alle huishoudens (2015=100), gepubliceerd door het Centraal Bureau voor de Statistiek (CBS). De huurprijs zal nimmer minder bedragen dan de huurprijs van het voorafgaande jaar.
BEREIKBAARHEID
Het object is zeer goed bereikbaar per auto door haar ligging op het bedrijventerrein Twentekanaal Noord. Op circa 3 minuten rijafstand liggen enkele grote ontsluitingswegen, waaronder de Haaksbergerstraat, welke direct ontsluiting heeft met de Rijksweg A35 en de A1 richting Amsterdam en Berlijn. Ook lokale uitvalswegen naar omliggende plaatsen zijn direct en goed bereikbaar.
In de directe nabijheid is een bushalte gevestigd, waardoor het bedrijfscomplex per openbaar vervoer eveneens goed bereikbaar is.
OMGEVINGSFACTOREN / LOCATIEAANDUIDING
Het object bevindt zich op een relatief groot industrieterrein ‘Bedrijvenpark Twentekanaal Noord’. Het onderhavige bedrijventerrein is gelegen aan de rand van Hengelo (O) richting Enschede. Er zijn ca. 320 bedrijven gevestigd met ruim 9.000 arbeidsplaatsen.
PARKEREN
Er zijn ruim voldoende mogelijkheden tot parkeren van auto’s op het eigen terrein voor het gebouw.
AANVAARDING
Aanvaarding in overleg, nadat de verbouwing is afgerond. Geschatte afbouwtijd ca. 3 maanden
VOORBEHOUD
Definitieve goedkeuring opdrachtgever en/of verhuurder.
INFORMATIE
Wij hebben getracht middels deze zorgvuldig samengestelde documentatie u zo uitgebreid mogelijk te informeren. Desondanks kunnen hieraan geen rechten worden ontleend. Slechts de feitelijke situatie geeft u een juist beeld.
Surroundings
Bedrijventerrein Twentekanaal Noord I, Hengelo (OV)
Discover locations in the neighborhoodMap
Map is loading...
Cadastral boundaries
Buildings
Travel time
Gain insight into the reachability of this object, for instance from a public transport station or a home address.