Steijnlaan 16 1217 JS Hilversum
Rental price on request
Description
Op zoek naar een stijlvolle werkplek of kantoorruimte in Hilversum? Offices XL Premium biedt ondernemers alle ruimte en mogelijkheden, en staat persoonlijk voor je klaar om vragen te beantwoorden of eventuele problemen op te lossen. Alle kantoorruimtes zijn direct gebruiksklaar, zodat jij in alle rust kunt werken en gasten kunt ontvangen. Wij zorgen voor alles wat nodig is om jouw werkplek productief en prettig te maken. Offices XL Premium is centraal gelegen en uitstekend bereikbaar in Hilversum.
In deze karakteristieke kantoorvilla in Hilversum is een stijlvolle en luxe ambiance gecreëerd. Iedereen die binnenkomt via de entree ervaart direct een warm welkom en voelt zich meteen “thuis”. De lounge zorgt voor een eigentijdse sfeer. Dit wordt versterkt door meubels bekleed met rijke stoffen zoals velours, in koningsblauw, cognac en okergeel. De verlichting en woonaccessoires – waaronder bijzettafels – zijn uitgevoerd met een subtiele roségouden touch. Sommige wanden zijn bekleed met trendy behang of robuuste wandpanelen in een warme roestkleur. De zwarte keukens op de verschillende verdiepingen zijn voorzien van prachtige kranen en grepen, in combinatie met een marmerlook blad en achterwand. Ook is er een mini-statafel met barkrukken voor informeel gebruik. In het souterrain bevindt zich een ruime vergaderruimte met plaats voor maximaal 12 personen. Aan de andere zijde is een stijlvolle bar ingericht, perfect voor informele overleggen of een borrelmoment. De buitenzijde van de lift, die alle verdiepingen met elkaar verbindt, heeft zijn originele natuurstenen uitstraling behouden en draagt bij aan de unieke uitstraling van het pand.
BESCHIKBAARHEID
Kantoor B: Circa 139 m² en 3 parkeerplaatsen.
Kantoor C: Circa 154 m² en 3 parkeerplaatsen.
Kantoor D: Circa 37 m² en 1 parkeerplaats.
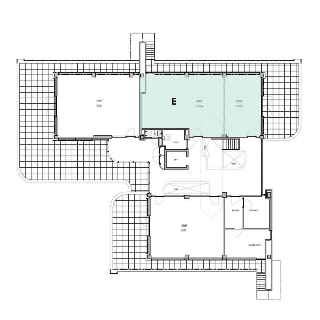
Kantoor E: Circa 132 m² en 2 parkeerplaatsen.
Informeer naar de actuele beschikbaarheid.
OPLEVERINGSNIVEAU
- Thans aanwezige scheidingswanden
- Afgewerkte vloeren
- Liftinstallatie
- Cv-installatie
- Gedeeltelijk v.v. airco
- Mechanische ventilatie
- Alarminstallatie
- Inbouwarmaturen
- LED-verlichting
- Te openen ramen
- Pantry (gezamenlijk gebruik)
- Toiletten (gezamenlijk gebruik)
- Vergaderruimte/bar souterrain (gezamenlijk gebruik)
- Snelle Wifi 7 (glasvezelsnelheid 1Gbps, separaat netwerk voor elke huurder)
BEREIKBAARHEID
De dichtstbijzijnde op- en afritten van de A27 zijn binnen circa 8 minuten te bereiken.
Bushaltes met verbindingen richting Bussum, Weesp en NS-station Hilversum bevinden zich op loopafstand.
ENERGIELABEL
Het gebouw heeft energielabel A.
HUURVOORWAARDEN
HUURPRIJS KANTOOR
Kantoor B: € 2.495,- per maand, exclusief BTW.
Kantoor C: € 2.885,- per maand, exclusief BTW.
Kantoor D: € 935,- per maand, exclusief BTW.
Kantoor E: € 2.465,- per maand, exclusief BTW.
HUURPRIJS PARKEREN
€ 750,- per parkeerplaats, per jaar, exclusief BTW.
SERVICEKOSTEN
€ 65,- per m², per jaar, exclusief BTW.
SERVICEDIENSTEN
- Levering en vastrecht G/W/E
- Groenonderhoud
- Terreinonderhoud
- Schoonmaak algemene ruimte
- Afgeschermde Wifi
- Glasbewassing buitenzijde
Verhuurder heeft het recht om de servicekosten aan te passen indien blijkt dat de hoogte van het bedrag ontoereikend is en/of de omvang van het pakket van leveringen en diensten uit te breiden als daartoe aanleiding bestaat, dit wordt naar rato-verdeeld.
HUURTERMIJN
In overleg.
AANVAARDING
1-1-2026
ZEKERHEIDSSTELLING
Bij ondertekening van de huurovereenkomst wordt een waarborgsom verlangd ter grootte van drie maanden huurbetalingsverplichting, vermeerderd met eventueel de kosten voor parkeren, de servicekosten en de verschuldigde BTW over dit bedrag.
HUURPRIJSINDEXERING
Jaarlijks, voor het eerst één jaar na de huuringangsdatum, wordt de laatst geldende huurprijs verhoogd op basis van het maandprijsindexcijfer voor de gezinsconsumptie CPI Alle Huishoudens (2015 = 100), gepubliceerd door het Centraal Bureau voor de Statistiek (CBS). De huurprijs zal géén daling ondergaan.
HUUROVEREENKOMST
De op te stellen huurovereenkomst is conform de overeenkomst die door de Raad voor Onroerende Zaken is vastgesteld en zoals gehanteerd door de Nederlandse Vereniging van Makelaars (NVM) met de bijbehorende algemene bepalingen.
BTW-BEPALING
Huurder en verhuurder verklaren uitdrukkelijk dat bij het vaststellen van de huurprijs uitgangspunt is geweest dat huurder blijvend voldoet aan de criteria welke gesteld zijn of worden voor een belaste verhuur ex. Artikel 11, lid 1 letter b, sub 5, Wet op de omzetbelasting 1968. Indien de belaste verhuur beëindigd wordt dan wel een verzoek tot belaste verhuur niet wordt ingewilligd omdat de huurder niet meer c.q. niet aan de gestelde eisen voldoet, wordt de overeengekomen kale huurprijs, exclusief BTW, zodanig verhoogd dat de verhuurder volledig gecompenseerd wordt voor de BTW op de toerekenbare investeringen en kosten welke hij aan de fiscus moet terugbetalen c.q. niet (meer) in aftrek kan brengen.
GUNNING
De verhuurder behoudt zich het recht van gunning voor.
Alle informatie is geheel vrijblijvend en onder voorbehoud. Hieraan kunnen geen rechten worden ontleend.
In deze karakteristieke kantoorvilla in Hilversum is een stijlvolle en luxe ambiance gecreëerd. Iedereen die binnenkomt via de entree ervaart direct een warm welkom en voelt zich meteen “thuis”. De lounge zorgt voor een eigentijdse sfeer. Dit wordt versterkt door meubels bekleed met rijke stoffen zoals velours, in koningsblauw, cognac en okergeel. De verlichting en woonaccessoires – waaronder bijzettafels – zijn uitgevoerd met een subtiele roségouden touch. Sommige wanden zijn bekleed met trendy behang of robuuste wandpanelen in een warme roestkleur. De zwarte keukens op de verschillende verdiepingen zijn voorzien van prachtige kranen en grepen, in combinatie met een marmerlook blad en achterwand. Ook is er een mini-statafel met barkrukken voor informeel gebruik. In het souterrain bevindt zich een ruime vergaderruimte met plaats voor maximaal 12 personen. Aan de andere zijde is een stijlvolle bar ingericht, perfect voor informele overleggen of een borrelmoment. De buitenzijde van de lift, die alle verdiepingen met elkaar verbindt, heeft zijn originele natuurstenen uitstraling behouden en draagt bij aan de unieke uitstraling van het pand.
BESCHIKBAARHEID
Kantoor B: Circa 139 m² en 3 parkeerplaatsen.
Kantoor C: Circa 154 m² en 3 parkeerplaatsen.
Kantoor D: Circa 37 m² en 1 parkeerplaats.
Kantoor E: Circa 132 m² en 2 parkeerplaatsen.
Informeer naar de actuele beschikbaarheid.
OPLEVERINGSNIVEAU
- Thans aanwezige scheidingswanden
- Afgewerkte vloeren
- Liftinstallatie
- Cv-installatie
- Gedeeltelijk v.v. airco
- Mechanische ventilatie
- Alarminstallatie
- Inbouwarmaturen
- LED-verlichting
- Te openen ramen
- Pantry (gezamenlijk gebruik)
- Toiletten (gezamenlijk gebruik)
- Vergaderruimte/bar souterrain (gezamenlijk gebruik)
- Snelle Wifi 7 (glasvezelsnelheid 1Gbps, separaat netwerk voor elke huurder)
BEREIKBAARHEID
De dichtstbijzijnde op- en afritten van de A27 zijn binnen circa 8 minuten te bereiken.
Bushaltes met verbindingen richting Bussum, Weesp en NS-station Hilversum bevinden zich op loopafstand.
ENERGIELABEL
Het gebouw heeft energielabel A.
HUURVOORWAARDEN
HUURPRIJS KANTOOR
Kantoor B: € 2.495,- per maand, exclusief BTW.
Kantoor C: € 2.885,- per maand, exclusief BTW.
Kantoor D: € 935,- per maand, exclusief BTW.
Kantoor E: € 2.465,- per maand, exclusief BTW.
HUURPRIJS PARKEREN
€ 750,- per parkeerplaats, per jaar, exclusief BTW.
SERVICEKOSTEN
€ 65,- per m², per jaar, exclusief BTW.
SERVICEDIENSTEN
- Levering en vastrecht G/W/E
- Groenonderhoud
- Terreinonderhoud
- Schoonmaak algemene ruimte
- Afgeschermde Wifi
- Glasbewassing buitenzijde
Verhuurder heeft het recht om de servicekosten aan te passen indien blijkt dat de hoogte van het bedrag ontoereikend is en/of de omvang van het pakket van leveringen en diensten uit te breiden als daartoe aanleiding bestaat, dit wordt naar rato-verdeeld.
HUURTERMIJN
In overleg.
AANVAARDING
1-1-2026
ZEKERHEIDSSTELLING
Bij ondertekening van de huurovereenkomst wordt een waarborgsom verlangd ter grootte van drie maanden huurbetalingsverplichting, vermeerderd met eventueel de kosten voor parkeren, de servicekosten en de verschuldigde BTW over dit bedrag.
HUURPRIJSINDEXERING
Jaarlijks, voor het eerst één jaar na de huuringangsdatum, wordt de laatst geldende huurprijs verhoogd op basis van het maandprijsindexcijfer voor de gezinsconsumptie CPI Alle Huishoudens (2015 = 100), gepubliceerd door het Centraal Bureau voor de Statistiek (CBS). De huurprijs zal géén daling ondergaan.
HUUROVEREENKOMST
De op te stellen huurovereenkomst is conform de overeenkomst die door de Raad voor Onroerende Zaken is vastgesteld en zoals gehanteerd door de Nederlandse Vereniging van Makelaars (NVM) met de bijbehorende algemene bepalingen.
BTW-BEPALING
Huurder en verhuurder verklaren uitdrukkelijk dat bij het vaststellen van de huurprijs uitgangspunt is geweest dat huurder blijvend voldoet aan de criteria welke gesteld zijn of worden voor een belaste verhuur ex. Artikel 11, lid 1 letter b, sub 5, Wet op de omzetbelasting 1968. Indien de belaste verhuur beëindigd wordt dan wel een verzoek tot belaste verhuur niet wordt ingewilligd omdat de huurder niet meer c.q. niet aan de gestelde eisen voldoet, wordt de overeengekomen kale huurprijs, exclusief BTW, zodanig verhoogd dat de verhuurder volledig gecompenseerd wordt voor de BTW op de toerekenbare investeringen en kosten welke hij aan de fiscus moet terugbetalen c.q. niet (meer) in aftrek kan brengen.
GUNNING
De verhuurder behoudt zich het recht van gunning voor.
Alle informatie is geheel vrijblijvend en onder voorbehoud. Hieraan kunnen geen rechten worden ontleend.
Features
Transfer of ownership
- Rental price
- Rental price on request
- Service charges
- No service charges known
- Listed since
-
- Status
- Available
- Acceptance
- Available in consultation
Construction
- Main use
- Office
- Building type
- Resale property
- Year of construction
- 1985
Surface areas
- Area
- 462 m² (units from 37 m²)
Layout
- Number of floors
- 3 floors
- Facilities
- Elevators, windows can be opened, modular ceiling, toilet, pantry and heating
Energy
- Energy label
- Not available
NVM real estate agent
Photos