Industrieweg 7 k.07 4338 PR Middelburg
€ 100 /m²/year
Description
Te huur: Instapklaar kantoor met parkeerplaatsen – Middelburg
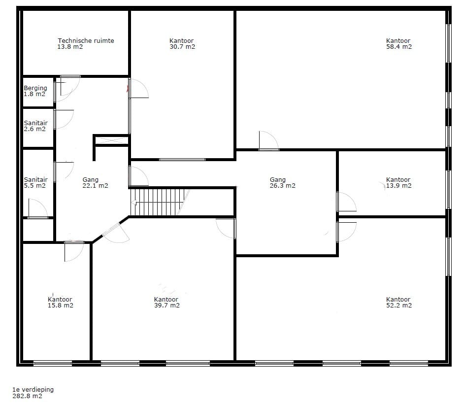
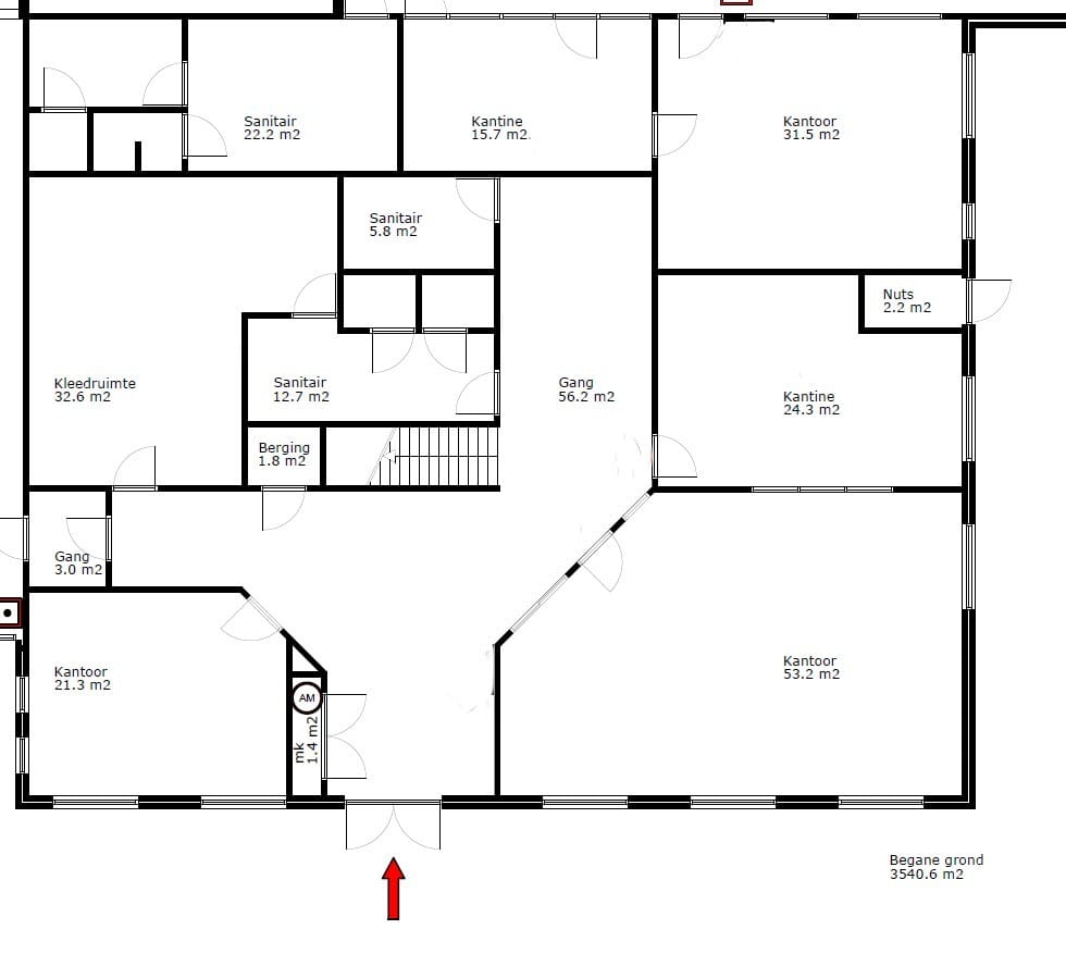
Unit 0.7, 1.2 en 1.3
Ligging & bereikbaarheid
Dit kantoor is gelegen op het bedrijventerrein Ramsburg te Middelburg, een strategische locatie met uitstekende bereikbaarheid:
• Slechts 3 minuten van de N57 en op minder dan 10 minuten van de A58
• Busverbinding op wandelafstand (400 m)
• Vlotte aansluiting met het centrum van Middelburg en omliggende gemeenten
• Gratis parkeergelegenheid voor personeel en bezoekers op eigen terrein
Indeling & afwerking
• De kantoorruimte is gelegen op de eerste verdieping en professioneel afgewerkt:
• Minimum oppervlakte 15 m2 uitbreidbaar tot een oppervlakte van ca. 150m²
• Grote open werkruimte met veel natuurlijk licht
• 2 afzonderlijke bureelruimtes of vergaderruimtes
• Ingerichte keukenhoek en afzonderlijk sanitair
• Centrale verwarming aanwezig
• LED-verlichting en systeemplafond
Technische voorzieningen
De unit is onmiddellijk inzetbaar en voorzien van:
• Aparte meters voor gas, water en elektriciteit
• Netwerkaansluitingen en glasvezel beschikbaar
• Veilige toegang
Veiligheid & infrastructuur
• Gelegen op een verzorgd bedrijventerrein
• Nachtverlichting aanwezig op de site
• Droge en nette ruimtes, perfect voor administratie of dienstverlenende bedrijven
Flexibiliteit & voorwaarden
• Flexibele huurtermijnen – standaard 1 jaar, verlengbaar
• Slechts 1 maand huur + 3 maanden waarborg als instapkost
• 24/7 toegankelijk voor huurders
• Rechtstreekse verhuur via eigenaar: Hertsens Vastgoed
Belangrijk
• Niet geschikt voor autogerelateerde activiteiten
• Meerdere units combineren is bespreekbaar
Interesse?
Vraag meer info of een bezoek aan via +32 3 250 12 23.
kantoor 0.7 = 53m² = €420 (keukentje aanwezig)
kantoor 1.2 = 16m² = €146
storageruimte 1.3 = 31m² = €207
Per direct beschikbaar.
Unit 0.7, 1.2 en 1.3
Ligging & bereikbaarheid
Dit kantoor is gelegen op het bedrijventerrein Ramsburg te Middelburg, een strategische locatie met uitstekende bereikbaarheid:
• Slechts 3 minuten van de N57 en op minder dan 10 minuten van de A58
• Busverbinding op wandelafstand (400 m)
• Vlotte aansluiting met het centrum van Middelburg en omliggende gemeenten
• Gratis parkeergelegenheid voor personeel en bezoekers op eigen terrein
Indeling & afwerking
• De kantoorruimte is gelegen op de eerste verdieping en professioneel afgewerkt:
• Minimum oppervlakte 15 m2 uitbreidbaar tot een oppervlakte van ca. 150m²
• Grote open werkruimte met veel natuurlijk licht
• 2 afzonderlijke bureelruimtes of vergaderruimtes
• Ingerichte keukenhoek en afzonderlijk sanitair
• Centrale verwarming aanwezig
• LED-verlichting en systeemplafond
Technische voorzieningen
De unit is onmiddellijk inzetbaar en voorzien van:
• Aparte meters voor gas, water en elektriciteit
• Netwerkaansluitingen en glasvezel beschikbaar
• Veilige toegang
Veiligheid & infrastructuur
• Gelegen op een verzorgd bedrijventerrein
• Nachtverlichting aanwezig op de site
• Droge en nette ruimtes, perfect voor administratie of dienstverlenende bedrijven
Flexibiliteit & voorwaarden
• Flexibele huurtermijnen – standaard 1 jaar, verlengbaar
• Slechts 1 maand huur + 3 maanden waarborg als instapkost
• 24/7 toegankelijk voor huurders
• Rechtstreekse verhuur via eigenaar: Hertsens Vastgoed
Belangrijk
• Niet geschikt voor autogerelateerde activiteiten
• Meerdere units combineren is bespreekbaar
Interesse?
Vraag meer info of een bezoek aan via +32 3 250 12 23.
kantoor 0.7 = 53m² = €420 (keukentje aanwezig)
kantoor 1.2 = 16m² = €146
storageruimte 1.3 = 31m² = €207
Per direct beschikbaar.
Features
Transfer of ownership
- Rental price
- € 100 per square meter per year
- Listed since
-
- Status
- Available
- Acceptance
- Available immediately
Construction
- Main use
- Industrial unit
- Alternative use(s)
- Office space
- Building type
- Resale property
- Year of construction
- 1978
Surface areas
- Area
- 15 m²
- Plot size
- 10,030 m²
Layout
- Number of floors
- 1 floor
- Facilities
- Air conditioning, mechanical ventilation, rooflights, overhead doors, three-phase electric power, concrete floor, sprinkler, heater and toilet
Energy
- Energy label
- Not available
Surroundings
- Location
- Business park
- Accessibility
- Bus stop in less than 500 m and Dutch Railways Intercity station in 1000 m to 1500 m
Real estate agent
Photos