Zuidersingel 79 9401 KC Assen
€ 1,000,000 k.k.
Description
ZUIDERKERK – ASSEN – TE KOOP
Aan de Zuidersingel in Assen staat de Zuiderkerk met bijbehorende pastoriewoning, een rijksmonument uit 1924–1925, ontworpen door architect J. Smallenbroek en Zn. Het complex ligt op de overgang van binnenstad naar singelzone en vormt al decennialang een herkenbaar onderdeel van het stadsbeeld. Kerk en woning zijn als één geheel ontworpen en worden ook gezamenlijk aangeboden.
Het gebouw bestaat uit een ruime kerkzaal met zijruimten, galerijen en verdiepingen, gecombineerd met een zelfstandige dienstwoning. De opzet biedt ruimte voor uiteenlopende vormen van gebruik binnen de geldende bestemming en het monumentale kader. Het gaat om een gebouw met schaal, structuur en historie, met mogelijkheden om het bestaande karakter op een zorgvuldige manier voort te zetten.
In opdracht van Stichting Instandhouding Zuiderkerk Assen verzorgt Redres de verkoop van de Zuiderkerk aan de Zuidersingel 79–81 in Assen. Het complex bestaat uit het kerkgebouw met bijbehorende pastoriewoning en ondersteunende ruimten en wordt aangeboden voor reguliere verkoop.
OMSCHRIJVING
De Zuiderkerk werd gebouwd in 1924–1925 in opdracht van de Gereformeerde Kerk Assen, naar ontwerp van architect J. Smallenbroek en Zn. Het ensemble bestaat uit kerk, pastoriewoning en vergaderruimten en is uitgevoerd in een traditionalistische stijl met invloeden van de Amsterdamse School. De opzet is samenhangend. Kerk en woning zijn vanaf het begin als één geheel ontworpen, met duidelijke relaties tussen openbaar en privé, groot en klein, ceremonieel en dagelijks gebruik.
Het complex bestaat uit meerdere bouwdelen die samen één geheel vormen. De kerkzaal ligt centraal en wordt geflankeerd door zijruimten, gangen en trappen. De pastoriewoning ligt aan de zijkant van het geheel en functioneert zelfstandig binnen het grotere gebouw. Deze opzet maakt het mogelijk dat verschillende vormen van gebruik naast elkaar kunnen bestaan.
PASTORIEWONING
De pastoriewoning vormt een volwaardig onderdeel van het ontwerp en heeft een eigen entree aan de zijgevel.
Op de begane grond bevindt zich de entree met hal, separaat toilet, grote inbouwkast en trapopgang. Aan de voorzijde ligt een L-vormige woonkamer van circa 25 m² met lichtinval via de raampartijen aan de singelzijde. De ruimte is overzichtelijk van opzet. Aansluitend ligt de woonkeuken, eenvoudig en functioneel ingericht. Daarachter bevindt zich een tweede keukenruimte van circa 12 m² die in directe verbinding staat met het kerkgebouw. Deze ruimte werd gebruikt voor ondersteunende activiteiten rondom bijeenkomsten. Vanuit hier is toegang tot een buitenberging van circa 8 m².
Op de verdieping liggen vier slaapkamers rond een centrale overloop. De grootste kamer ligt aan de voorzijde en meet circa 17 m². Twee kamers meten circa 13 m² en een vierde kamer circa 9 m². De badkamer van circa 5 m² beschikt over douche en wastafel. Op deze verdieping zijn veel oorspronkelijke elementen behouden gebleven, zoals hoge plafonds, paneeldeuren en houten vloeren.
De woning is direct bewoonbaar en maakt bouwkundig en functioneel deel uit van het kerkcomplex. Hierdoor is het geheel geschikt voor combinaties van wonen met werken, wonen met maatschappelijke functies of wonen met publieksgerichte activiteiten.
KERKGEBOUW
Het kerkgebouw vormt het centrale deel van het ensemble. De plattegrond is kruisvormig opgezet met een middenruimte van circa 350 m², oorspronkelijk in gebruik als kerkzaal. De hoofdentree ligt aan de Zuidersingel en leidt via een entreehal van circa 70 m² naar deze ruimte.
De kerkzaal wordt gedragen door een houten kapconstructie met spitsbogen en zichtbare balklagen. De ruimte is groot, maar overzichtelijk van opzet. Glas-in-loodramen zorgen voor gelijkmatig daglicht zonder sterke contrasten.
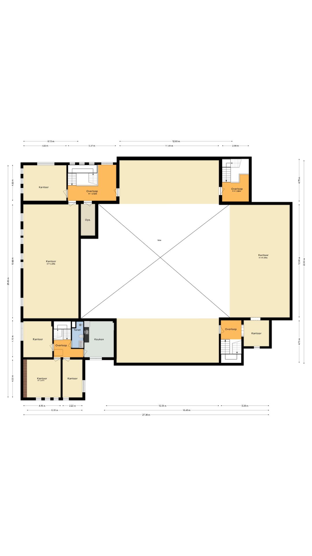
Rondom de kerkzaal liggen zijruimten, gangen en trappen. Aan de rechterzijde bevindt zich een gang met trap naar de verdieping, waar twee kantoorruimten en de toegang tot de zolder liggen. In deze zone bevindt zich ook een toiletgroep met vier toiletten en voorruimte. Aan de linkerzijde ligt een grote ruimte van circa 62 m², in verbinding met zowel de kerkzaal als de zijgevel. Deze ruimte is breed inzetbaar. De keuken aan de achterzijde van het gebouw meet circa 15 m² en staat direct in verbinding met de pastoriewoning.
De opzet is helder: de kerkzaal als kern, met daaromheen ondersteunende ruimten die logisch op elkaar aansluiten. Er is afwisseling tussen open en gesloten ruimten en tussen hoge en lagere delen.
DE VERDIEPING VAN DE KERK
Op de verdieping ligt rondom de kerkzaal een open vide van circa 180 m². Vanaf hier is zicht op de kapconstructie en het schip. De ruimte wordt hier meer ervaren vanuit overzicht dan vanuit hoogte. Aan weerszijden liggen tribunes van circa 70 m², bereikbaar via drie trappen. Deze tribunes maakten deel uit van de oorspronkelijke kerkfunctie en zijn nu geschikt voor andere vormen van gebruik.
ARCHITECTUUR EN HISTORIE
Het exterieur is uitgevoerd in rood-gele baksteen met hoge glas-in-loodramen en verfijnd metselwerk. Entreepartijen, tandlijsten en decoratieve verbanden geven het gebouw een duidelijke geleding. De vierkante toren met tentdak vormt een herkenbaar element aan de singel en markeert de overgang tussen stad en groen.
Binnen is veel oorspronkelijke afwerking behouden gebleven. De houten kapgewelven, de symmetrische opzet, de galerijen en de kansel zijn nog aanwezig. Het orgel van Valckx & Van Kouteren uit 1932 is nog in de kerkzaal aanwezig.
De Zuiderkerk speelde een rol in de kerkgeschiedenis door de Synode van Assen in 1926. In 1958 kreeg het gebouw landelijke bekendheid door de anekdote van de zogenoemde sprekende slang. Sinds 2011 is het complex gebruikt door Life Assen. In deze periode zijn aanpassingen gedaan, waarbij de hoofdstructuur en het monumentale karakter behouden zijn gebleven.
De Zuiderkerk maakt deel uit van het beschermd stadsgezicht van Assen en is aangewezen als rijksmonument. Daarmee heeft het gebouw niet alleen architectonische, maar ook stedenbouwkundige betekenis.
MONUMENTALE STATUS EN SUBSIDIES
Als rijksmonument valt de Zuiderkerk onder de Erfgoedwet. Voor onderhoud en instandhouding is een SIM-subsidie toegekend voor de periode 2023–2028 met een totaalbedrag van € 65.056, ongeveer zestig procent van de subsidiabele onderhoudskosten. Daarnaast biedt het Nationaal Restauratiefonds laagrentende leningen voor restauratie, herbestemming en verduurzaming. Het gebouw beschikt over 32 zonnepanelen en geïsoleerde plafonds. Verdere verduurzaming vraagt om oplossingen die passen binnen het monument.
BESTEMMING EN MOGELIJKHEDEN
De huidige bestemming is Maatschappelijke Doeleinden met aanduiding voor religieuze voorzieningen en één dienstwoning. Binnen deze bestemming zijn maatschappelijke, culturele, onderwijs-, kantoor- en zorgfuncties toegestaan. Voor andere vormen van gebruik is overleg met de gemeente Assen nodig. Het perceel meet circa 1.883 m² en biedt parkeergelegenheid op eigen terrein voor circa vijftien auto’s en een ruime fietsenstalling.
Het gebouw leent zich voor functies die passen bij de maat, hoogte en opzet van het complex. Publiek en privé kunnen hier naast elkaar bestaan, mits het gebruik aansluit bij de bestaande structuur.
DE STAD ASSEN
Assen is de hoofdstad van Drenthe en telt ruim zeventigduizend inwoners. De stad ontwikkelde zich van kloosternederzetting tot bestuurs- en evenementenstad. Het Drents Museum, De Nieuwe Kolk en het TT-circuit zorgen voor landelijke bekendheid. De Zuidersingel vormt een groene rand rond het centrum. De Zuiderkerk ligt op loopafstand van winkels, station en voorzieningen en is goed bereikbaar via de A28 en N33.
EIGENDOM
Er bestaat momenteel een erfpachtconstructie tussen Stichting Instandhouding Zuiderkerk Assen en Life Church Assen. Bij verkoop wordt deze beëindigd, waardoor de koper het gebouw en de grond in volle eigendom verkrijgt.
VERKOOPPROCES
De verkoop vindt plaats via reguliere verkoopbemiddeling. Geïnteresseerden kunnen via Redres documentatie ontvangen en een bezichtiging op afspraak plannen. Na bezichtiging kan een bod worden uitgebracht. Verkoper behoudt zich het recht van gunning voor.
10 REDENEN OM DE ZUIDERKERK TE KOPEN
1. Het betreft een rijksmonument uit 1924–1925 met een duidelijke architectonische signatuur van J. Smallenbroek en Zn.
2. Kerk en pastoriewoning zijn als ensemble ontworpen en worden ook alleen gezamenlijk verkocht.
3. De kerkzaal van circa 350 m² biedt een sterke, goed bruikbare hoofdruimte.
4. Rondom de kerkzaal liggen meerdere ondersteunende ruimten die zelfstandig inzetbaar zijn.
5. De pastoriewoning is direct bewoonbaar en heeft een logische indeling met vier slaapkamers.
6. Het perceel van circa 1.883 m² ligt centraal in Assen, op loopafstand van centrum en station.
7. Er is parkeergelegenheid op eigen terrein voor circa vijftien auto’s.
8. Binnen de huidige bestemming zijn meerdere maatschappelijke en culturele functies toegestaan.
9. Er loopt een SIM-subsidie tot en met 2028 met een totale omvang van € 65.056.
10. De ruimtelijke structuur leent zich goed voor hergebruik zonder ingrijpende aantasting.
SLOT
De Zuiderkerk met pastorie is een gebouw met een lange gebruiksgeschiedenis. Het complex biedt ruimte voor voortgezet gebruik of herontwikkeling binnen de kaders van erfgoed en bestemming. Een nieuwe eigenaar kan hier verder bouwen op wat er al staat, met respect voor de bestaande structuur en aandacht voor toekomstig gebruik.
INTERESSE?
Neem contact met ons op we informeren u graag.
Aan de Zuidersingel in Assen staat de Zuiderkerk met bijbehorende pastoriewoning, een rijksmonument uit 1924–1925, ontworpen door architect J. Smallenbroek en Zn. Het complex ligt op de overgang van binnenstad naar singelzone en vormt al decennialang een herkenbaar onderdeel van het stadsbeeld. Kerk en woning zijn als één geheel ontworpen en worden ook gezamenlijk aangeboden.
Het gebouw bestaat uit een ruime kerkzaal met zijruimten, galerijen en verdiepingen, gecombineerd met een zelfstandige dienstwoning. De opzet biedt ruimte voor uiteenlopende vormen van gebruik binnen de geldende bestemming en het monumentale kader. Het gaat om een gebouw met schaal, structuur en historie, met mogelijkheden om het bestaande karakter op een zorgvuldige manier voort te zetten.
In opdracht van Stichting Instandhouding Zuiderkerk Assen verzorgt Redres de verkoop van de Zuiderkerk aan de Zuidersingel 79–81 in Assen. Het complex bestaat uit het kerkgebouw met bijbehorende pastoriewoning en ondersteunende ruimten en wordt aangeboden voor reguliere verkoop.
OMSCHRIJVING
De Zuiderkerk werd gebouwd in 1924–1925 in opdracht van de Gereformeerde Kerk Assen, naar ontwerp van architect J. Smallenbroek en Zn. Het ensemble bestaat uit kerk, pastoriewoning en vergaderruimten en is uitgevoerd in een traditionalistische stijl met invloeden van de Amsterdamse School. De opzet is samenhangend. Kerk en woning zijn vanaf het begin als één geheel ontworpen, met duidelijke relaties tussen openbaar en privé, groot en klein, ceremonieel en dagelijks gebruik.
Het complex bestaat uit meerdere bouwdelen die samen één geheel vormen. De kerkzaal ligt centraal en wordt geflankeerd door zijruimten, gangen en trappen. De pastoriewoning ligt aan de zijkant van het geheel en functioneert zelfstandig binnen het grotere gebouw. Deze opzet maakt het mogelijk dat verschillende vormen van gebruik naast elkaar kunnen bestaan.
PASTORIEWONING
De pastoriewoning vormt een volwaardig onderdeel van het ontwerp en heeft een eigen entree aan de zijgevel.
Op de begane grond bevindt zich de entree met hal, separaat toilet, grote inbouwkast en trapopgang. Aan de voorzijde ligt een L-vormige woonkamer van circa 25 m² met lichtinval via de raampartijen aan de singelzijde. De ruimte is overzichtelijk van opzet. Aansluitend ligt de woonkeuken, eenvoudig en functioneel ingericht. Daarachter bevindt zich een tweede keukenruimte van circa 12 m² die in directe verbinding staat met het kerkgebouw. Deze ruimte werd gebruikt voor ondersteunende activiteiten rondom bijeenkomsten. Vanuit hier is toegang tot een buitenberging van circa 8 m².
Op de verdieping liggen vier slaapkamers rond een centrale overloop. De grootste kamer ligt aan de voorzijde en meet circa 17 m². Twee kamers meten circa 13 m² en een vierde kamer circa 9 m². De badkamer van circa 5 m² beschikt over douche en wastafel. Op deze verdieping zijn veel oorspronkelijke elementen behouden gebleven, zoals hoge plafonds, paneeldeuren en houten vloeren.
De woning is direct bewoonbaar en maakt bouwkundig en functioneel deel uit van het kerkcomplex. Hierdoor is het geheel geschikt voor combinaties van wonen met werken, wonen met maatschappelijke functies of wonen met publieksgerichte activiteiten.
KERKGEBOUW
Het kerkgebouw vormt het centrale deel van het ensemble. De plattegrond is kruisvormig opgezet met een middenruimte van circa 350 m², oorspronkelijk in gebruik als kerkzaal. De hoofdentree ligt aan de Zuidersingel en leidt via een entreehal van circa 70 m² naar deze ruimte.
De kerkzaal wordt gedragen door een houten kapconstructie met spitsbogen en zichtbare balklagen. De ruimte is groot, maar overzichtelijk van opzet. Glas-in-loodramen zorgen voor gelijkmatig daglicht zonder sterke contrasten.
Rondom de kerkzaal liggen zijruimten, gangen en trappen. Aan de rechterzijde bevindt zich een gang met trap naar de verdieping, waar twee kantoorruimten en de toegang tot de zolder liggen. In deze zone bevindt zich ook een toiletgroep met vier toiletten en voorruimte. Aan de linkerzijde ligt een grote ruimte van circa 62 m², in verbinding met zowel de kerkzaal als de zijgevel. Deze ruimte is breed inzetbaar. De keuken aan de achterzijde van het gebouw meet circa 15 m² en staat direct in verbinding met de pastoriewoning.
De opzet is helder: de kerkzaal als kern, met daaromheen ondersteunende ruimten die logisch op elkaar aansluiten. Er is afwisseling tussen open en gesloten ruimten en tussen hoge en lagere delen.
DE VERDIEPING VAN DE KERK
Op de verdieping ligt rondom de kerkzaal een open vide van circa 180 m². Vanaf hier is zicht op de kapconstructie en het schip. De ruimte wordt hier meer ervaren vanuit overzicht dan vanuit hoogte. Aan weerszijden liggen tribunes van circa 70 m², bereikbaar via drie trappen. Deze tribunes maakten deel uit van de oorspronkelijke kerkfunctie en zijn nu geschikt voor andere vormen van gebruik.
ARCHITECTUUR EN HISTORIE
Het exterieur is uitgevoerd in rood-gele baksteen met hoge glas-in-loodramen en verfijnd metselwerk. Entreepartijen, tandlijsten en decoratieve verbanden geven het gebouw een duidelijke geleding. De vierkante toren met tentdak vormt een herkenbaar element aan de singel en markeert de overgang tussen stad en groen.
Binnen is veel oorspronkelijke afwerking behouden gebleven. De houten kapgewelven, de symmetrische opzet, de galerijen en de kansel zijn nog aanwezig. Het orgel van Valckx & Van Kouteren uit 1932 is nog in de kerkzaal aanwezig.
De Zuiderkerk speelde een rol in de kerkgeschiedenis door de Synode van Assen in 1926. In 1958 kreeg het gebouw landelijke bekendheid door de anekdote van de zogenoemde sprekende slang. Sinds 2011 is het complex gebruikt door Life Assen. In deze periode zijn aanpassingen gedaan, waarbij de hoofdstructuur en het monumentale karakter behouden zijn gebleven.
De Zuiderkerk maakt deel uit van het beschermd stadsgezicht van Assen en is aangewezen als rijksmonument. Daarmee heeft het gebouw niet alleen architectonische, maar ook stedenbouwkundige betekenis.
MONUMENTALE STATUS EN SUBSIDIES
Als rijksmonument valt de Zuiderkerk onder de Erfgoedwet. Voor onderhoud en instandhouding is een SIM-subsidie toegekend voor de periode 2023–2028 met een totaalbedrag van € 65.056, ongeveer zestig procent van de subsidiabele onderhoudskosten. Daarnaast biedt het Nationaal Restauratiefonds laagrentende leningen voor restauratie, herbestemming en verduurzaming. Het gebouw beschikt over 32 zonnepanelen en geïsoleerde plafonds. Verdere verduurzaming vraagt om oplossingen die passen binnen het monument.
BESTEMMING EN MOGELIJKHEDEN
De huidige bestemming is Maatschappelijke Doeleinden met aanduiding voor religieuze voorzieningen en één dienstwoning. Binnen deze bestemming zijn maatschappelijke, culturele, onderwijs-, kantoor- en zorgfuncties toegestaan. Voor andere vormen van gebruik is overleg met de gemeente Assen nodig. Het perceel meet circa 1.883 m² en biedt parkeergelegenheid op eigen terrein voor circa vijftien auto’s en een ruime fietsenstalling.
Het gebouw leent zich voor functies die passen bij de maat, hoogte en opzet van het complex. Publiek en privé kunnen hier naast elkaar bestaan, mits het gebruik aansluit bij de bestaande structuur.
DE STAD ASSEN
Assen is de hoofdstad van Drenthe en telt ruim zeventigduizend inwoners. De stad ontwikkelde zich van kloosternederzetting tot bestuurs- en evenementenstad. Het Drents Museum, De Nieuwe Kolk en het TT-circuit zorgen voor landelijke bekendheid. De Zuidersingel vormt een groene rand rond het centrum. De Zuiderkerk ligt op loopafstand van winkels, station en voorzieningen en is goed bereikbaar via de A28 en N33.
EIGENDOM
Er bestaat momenteel een erfpachtconstructie tussen Stichting Instandhouding Zuiderkerk Assen en Life Church Assen. Bij verkoop wordt deze beëindigd, waardoor de koper het gebouw en de grond in volle eigendom verkrijgt.
VERKOOPPROCES
De verkoop vindt plaats via reguliere verkoopbemiddeling. Geïnteresseerden kunnen via Redres documentatie ontvangen en een bezichtiging op afspraak plannen. Na bezichtiging kan een bod worden uitgebracht. Verkoper behoudt zich het recht van gunning voor.
10 REDENEN OM DE ZUIDERKERK TE KOPEN
1. Het betreft een rijksmonument uit 1924–1925 met een duidelijke architectonische signatuur van J. Smallenbroek en Zn.
2. Kerk en pastoriewoning zijn als ensemble ontworpen en worden ook alleen gezamenlijk verkocht.
3. De kerkzaal van circa 350 m² biedt een sterke, goed bruikbare hoofdruimte.
4. Rondom de kerkzaal liggen meerdere ondersteunende ruimten die zelfstandig inzetbaar zijn.
5. De pastoriewoning is direct bewoonbaar en heeft een logische indeling met vier slaapkamers.
6. Het perceel van circa 1.883 m² ligt centraal in Assen, op loopafstand van centrum en station.
7. Er is parkeergelegenheid op eigen terrein voor circa vijftien auto’s.
8. Binnen de huidige bestemming zijn meerdere maatschappelijke en culturele functies toegestaan.
9. Er loopt een SIM-subsidie tot en met 2028 met een totale omvang van € 65.056.
10. De ruimtelijke structuur leent zich goed voor hergebruik zonder ingrijpende aantasting.
SLOT
De Zuiderkerk met pastorie is een gebouw met een lange gebruiksgeschiedenis. Het complex biedt ruimte voor voortgezet gebruik of herontwikkeling binnen de kaders van erfgoed en bestemming. Een nieuwe eigenaar kan hier verder bouwen op wat er al staat, met respect voor de bestaande structuur en aandacht voor toekomstig gebruik.
INTERESSE?
Neem contact met ons op we informeren u graag.
Features
Transfer of ownership
- Asking price
- € 1,000,000 kosten koper
- Listed since
-
- Status
- Available
- Acceptance
- Available in consultation
Construction
- Main use
- Religious institution
- Building type
- Resale property
- Year of construction
- 1924
Surface areas
- Area
- 1,237 m²
- Plot size
- 1,883 m²
Energy
- Energy label
- Not available
Surroundings
- Location
- In residential district
Parking
- Parking spaces
- 10 uncovered parking spaces
Real estate agent
Photos
Floorplan
Begane grond
Eerste verdieping
Vliering
Situatie