Witte de Withstraat 148-H 1057 ZJ Amsterdam
Rental price on request
Price on request
Description
Winkelruimte van 138m2 verdeeld over de begane grond en het souterrain met diepe tuin.
INDELING:
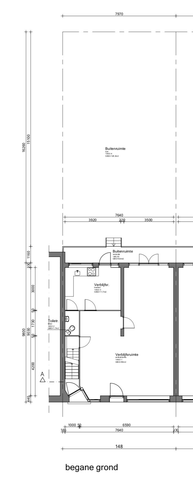
entree, ruime winkelruimte met aan de achterzijde een aparte kamer, toiletgroep, ruimte voor pantry, openslaande deuren naar de tuin. Via vaste trap naar kelder die uit 2 gedeeltes bestaat.
De vloeroppervlakte van de begane grond is 70 m2.
De vloeroppervlakte van de kelder is 68 m2
BESTEMMING
Detailhandel en galerie/atelierruimte.
VOORZIENINGEN
Eigen cv-installatie, uitgebreide groepenkast, keuken, badkamer en een separaat toilet.
BEREIKBAARHEID
De bedrijfsruimte ligt aan een drukke doorgaande straat tussen de Postjesstraat en Jan Evertsenstraat in.
PARKEREN
Betaald parkeren aan de openbare weg.
BIJZONDERHEDEN
Mogelijkheid voor uitbouw/vergroting van de winkelruimte.
Gelegen op erfpachtgrond van de gemeente Amsterdam. De canon is vooruit betaald t/m 31 mei 2047. De erfpachtvoorwaarden 1994 van de gemeente Amsterdam zijn van toepassing.
ALGEMEEN
Alle zich in deze aanbieding bevindende informatie is door ons met grote zorgvuldigheid samengesteld.
Echter met betrekking tot deze informatie aanvaarden wij geen enkele aansprakelijkheid,
noch kan aan de vermelde informatie enig recht worden ontleend.
Graag maken wij een vrijblijvende afspraak voor een bezichtiging met u!
INDELING:
entree, ruime winkelruimte met aan de achterzijde een aparte kamer, toiletgroep, ruimte voor pantry, openslaande deuren naar de tuin. Via vaste trap naar kelder die uit 2 gedeeltes bestaat.
De vloeroppervlakte van de begane grond is 70 m2.
De vloeroppervlakte van de kelder is 68 m2
BESTEMMING
Detailhandel en galerie/atelierruimte.
VOORZIENINGEN
Eigen cv-installatie, uitgebreide groepenkast, keuken, badkamer en een separaat toilet.
BEREIKBAARHEID
De bedrijfsruimte ligt aan een drukke doorgaande straat tussen de Postjesstraat en Jan Evertsenstraat in.
PARKEREN
Betaald parkeren aan de openbare weg.
BIJZONDERHEDEN
Mogelijkheid voor uitbouw/vergroting van de winkelruimte.
Gelegen op erfpachtgrond van de gemeente Amsterdam. De canon is vooruit betaald t/m 31 mei 2047. De erfpachtvoorwaarden 1994 van de gemeente Amsterdam zijn van toepassing.
ALGEMEEN
Alle zich in deze aanbieding bevindende informatie is door ons met grote zorgvuldigheid samengesteld.
Echter met betrekking tot deze informatie aanvaarden wij geen enkele aansprakelijkheid,
noch kan aan de vermelde informatie enig recht worden ontleend.
Graag maken wij een vrijblijvende afspraak voor een bezichtiging met u!
Features
Transfer of ownership
- Asking price
- Price on request
- Rental price
- Rental price on request
- First rental price
- € 2,750 per month
- Listed since
-
- Status
- Available
- Acceptance
- Available in consultation
Construction
- Main use
- Retail outlet with showroom
- Building type
- Resale property
- Construction period
- 1906-1930
Surface areas
- Area
- 138 m²
- Sales floor area
- 70 m²
- Front width
- 6.6 m
Layout
- Number of floors
- 2 floors
Energy
- Energy label
- Not available
Surroundings
- Location
- In residential district
- Accessibility
- Bus stop in less than 500 m, Dutch Railways Intercity station in 1000 m to 1500 m, motorway exit in 1000 m to 1500 m and Tram stop in less than 500 m
- Shopkeepers' association contribution
- No
NVM real estate agent
Photos