Parallelweg 120-C 1948 NN Beverwijk
€ 75 /m²/year
Description
Te huur
Winkelpand gelegen op de Woonboulevard van Beverwijk in de directe nabijheid van publiektrekkers als Mediamarkt, Montel, Keukenconcurrent, Beter Bed, Bankstel-Gigant, Keuken Kampioen, Woonexpress, Jysk, Karwei en vele andere.
Locatie en bereikbaarheid
Gelegen op de Woonboulevard van Beverwijk. De Woonboulevard heeft een oppervlakte van 60.000 m² met elke maand een koopzondag! Het object is goed bereikbaar per auto en openbaar vervoer. Goede ontsluiting naar Rijkswegen A9 en A22 alsmede de Provincialeweg N246 (Zaandam).
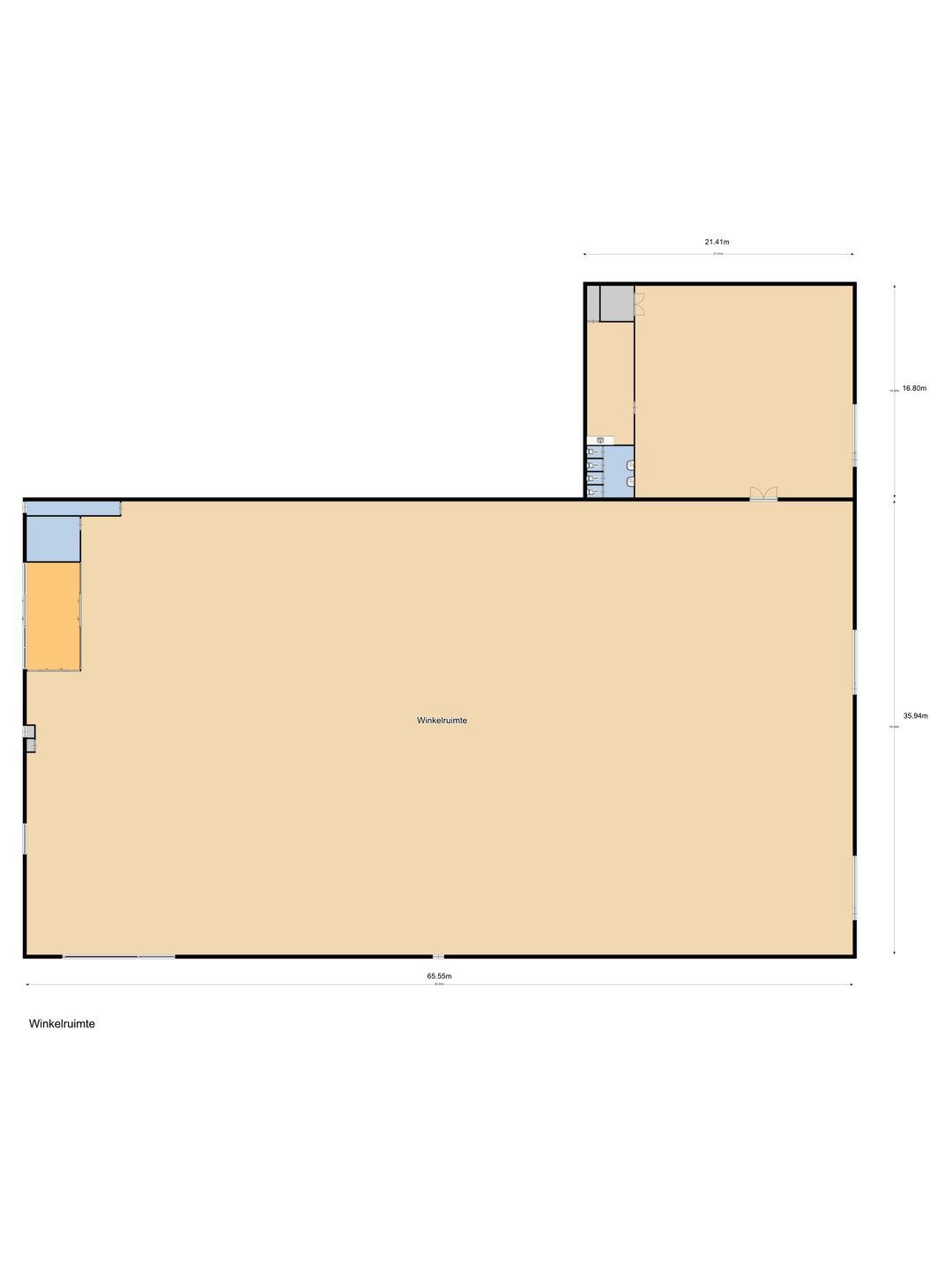
Oppervlakte
Totaal ca. 2.700 m² op de parterre.
Parkeren
Voldoende parkeerplaatsen op eigen terrein. Het aandeel in het totaal aantal parkeerplaatsen (ca. 164 parkeerplaatsen) is 15%, oftewel ca. 25 pp a € 415,-- p.p. excl. BTW per jaar.
Bestemming
Bestemmingsplan Haven De Pijp - Parallelweg, bestemming detailhandel (functieaanduiding specifieke vorm van detailhandel - woonbranche). Bij twijfel over het toestaan van uw bedrijfsvoering adviseren wij u zelf contact op te nemen met de Gemeente Beverwijk.
Opleveringsniveau
In huidige staat, doch verhuur geschiedt op casco basis.
Huurprijs
€ 75,-- per m² per jaar excl. BTW.
Omzetbelasting
Indien huurder geen btw-belaste prestaties verricht zal een toeslag op de huurprijs gelden als compensatie op het BTW-verlies van verhuurder.
Nutsbedrijven
Huurder dient zelf rechtstreeks met desbetreffende (energie) leveranciers overeenkomsten af te sluiten.
Servicekosten
n.v.t.
Huurbetaling
Per maand bij vooruitbetaling.
Huurtermijn
5 jaar + 5 jaar.
Huurovereenkomst
Conform het standaardmodel van de Raad van Onroerende Zaken (ROZ) met algemene bepalingen en bijzondere bepalingen vanuit verhuurder.
Huurprijsaanpassing
Jaarlijks op basis van de consumentenprijsindex (CPI) reeks alle huishoudens, gepubliceerd door het Centraal Bureau voor de Statistiek (CBS).
Zekerheidsstelling huur
Waarborgsom of bankgarantie ten bedrage van 3 maanden huur vermeerderd omzetbelasting.
Energielabel
Van het aangeboden object is geen energielabel beschikbaar.
Aanvaarding
In overleg, op korte termijn mogelijk.
Courtage
Brantjes Bedrijfsmakelaars treedt op voor de verhurende partij. Als huurder bent u Brantjes Bedrijfsmakelaars geen courtage of kosten verschuldigd.
Voorbehoud
Goedkeuring eigenaar.
Voorwaarden
Alle door Brantjes Bedrijfsmakelaars en de verhuurder verstrekte informatie moet uitsluitend gezien worden als een uitnodiging tot nader overleg c.q. tot het uitbrengen van een bod. Hoewel gestreefd is naar een zo zorgvuldig mogelijke weergave van de beschikbare gegevens, moet er van worden uitgegaan dat bovenstaande slechts indicatief is. De gegevens (bedragen, jaartallen, omschrijvingen, etc.) kunnen zijn verkregen door mondelinge overdracht. Een kandidaat huurder heeft zijn eigen onderzoeksplicht naar alle zaken die voor hem van belang zijn. Onze opdrachtgever stelt uitdrukkelijk dat een overeenkomst niet eerder tot stand komt dan nadat niet alleen over de hoofdzaken maar ook over de details (zoals oplevering etc.) overeenstemming is bereikt.
Winkelpand gelegen op de Woonboulevard van Beverwijk in de directe nabijheid van publiektrekkers als Mediamarkt, Montel, Keukenconcurrent, Beter Bed, Bankstel-Gigant, Keuken Kampioen, Woonexpress, Jysk, Karwei en vele andere.
Locatie en bereikbaarheid
Gelegen op de Woonboulevard van Beverwijk. De Woonboulevard heeft een oppervlakte van 60.000 m² met elke maand een koopzondag! Het object is goed bereikbaar per auto en openbaar vervoer. Goede ontsluiting naar Rijkswegen A9 en A22 alsmede de Provincialeweg N246 (Zaandam).
Oppervlakte
Totaal ca. 2.700 m² op de parterre.
Parkeren
Voldoende parkeerplaatsen op eigen terrein. Het aandeel in het totaal aantal parkeerplaatsen (ca. 164 parkeerplaatsen) is 15%, oftewel ca. 25 pp a € 415,-- p.p. excl. BTW per jaar.
Bestemming
Bestemmingsplan Haven De Pijp - Parallelweg, bestemming detailhandel (functieaanduiding specifieke vorm van detailhandel - woonbranche). Bij twijfel over het toestaan van uw bedrijfsvoering adviseren wij u zelf contact op te nemen met de Gemeente Beverwijk.
Opleveringsniveau
In huidige staat, doch verhuur geschiedt op casco basis.
Huurprijs
€ 75,-- per m² per jaar excl. BTW.
Omzetbelasting
Indien huurder geen btw-belaste prestaties verricht zal een toeslag op de huurprijs gelden als compensatie op het BTW-verlies van verhuurder.
Nutsbedrijven
Huurder dient zelf rechtstreeks met desbetreffende (energie) leveranciers overeenkomsten af te sluiten.
Servicekosten
n.v.t.
Huurbetaling
Per maand bij vooruitbetaling.
Huurtermijn
5 jaar + 5 jaar.
Huurovereenkomst
Conform het standaardmodel van de Raad van Onroerende Zaken (ROZ) met algemene bepalingen en bijzondere bepalingen vanuit verhuurder.
Huurprijsaanpassing
Jaarlijks op basis van de consumentenprijsindex (CPI) reeks alle huishoudens, gepubliceerd door het Centraal Bureau voor de Statistiek (CBS).
Zekerheidsstelling huur
Waarborgsom of bankgarantie ten bedrage van 3 maanden huur vermeerderd omzetbelasting.
Energielabel
Van het aangeboden object is geen energielabel beschikbaar.
Aanvaarding
In overleg, op korte termijn mogelijk.
Courtage
Brantjes Bedrijfsmakelaars treedt op voor de verhurende partij. Als huurder bent u Brantjes Bedrijfsmakelaars geen courtage of kosten verschuldigd.
Voorbehoud
Goedkeuring eigenaar.
Voorwaarden
Alle door Brantjes Bedrijfsmakelaars en de verhuurder verstrekte informatie moet uitsluitend gezien worden als een uitnodiging tot nader overleg c.q. tot het uitbrengen van een bod. Hoewel gestreefd is naar een zo zorgvuldig mogelijke weergave van de beschikbare gegevens, moet er van worden uitgegaan dat bovenstaande slechts indicatief is. De gegevens (bedragen, jaartallen, omschrijvingen, etc.) kunnen zijn verkregen door mondelinge overdracht. Een kandidaat huurder heeft zijn eigen onderzoeksplicht naar alle zaken die voor hem van belang zijn. Onze opdrachtgever stelt uitdrukkelijk dat een overeenkomst niet eerder tot stand komt dan nadat niet alleen over de hoofdzaken maar ook over de details (zoals oplevering etc.) overeenstemming is bereikt.
Features
Transfer of ownership
- Rental price
- € 75 per square meter per year
- Listed since
-
- Status
- Available
- Acceptance
- Available in consultation
Construction
- Main use
- Retail outlet with showroom
- Building type
- Resale property
- Construction period
- 1991-2000
Surface areas
- Area
- 2,700 m²
- Sales floor area
- 2,700 m²
- Front width
- 36 m
Layout
- Number of floors
- 1 floor
Energy
- Energy label
- Not available
Surroundings
- Location
- Furniture boulevard, peripheral retail location and large-scale retail location
- Accessibility
- Bus stop in less than 500 m, Dutch Railways Intercity station in 500 m to 1000 m and motorway exit in less than 500 m
- Shopkeepers' association contribution
- No
- Socio-economic classification
- B1
NVM real estate agent
Photos