Description
ALGEMEEN
Het pand aan de Zeestraat 94 in Den Haag is een karakteristiek en monumentaal gebouw met een rijke historie. Het dateert uit 1860 en is gelegen in het populaire Zeeheldenkwartier, een levendige en centraal gelegen wijk met een mix van kantoren, woningen, horeca en winkels. De Zeestraat vormt een directe verbinding tussen het centrum van Den Haag en het Scheveningse strand.
Op deze een representatieve en centraal gelegen locatie bieden wij een aantrekkelijke kantoor-/winkelruimte op de begane grond aan. Deze ruimte is uitermate geschikt voor ondernemers en organisaties die op zoek zijn naar een professionele werkomgeving met een sterke uitstraling.
De kantoor-/winkelruimte beschikt over een prettige lichtinval en een efficiënte indeling, waardoor een comfortabele en productieve werkplek ontstaat. De ligging op de begane grond zorgt voor een directe en toegankelijke entree, ideaal voor het ontvangen van cliënten en relaties. De Zeestraat staat bekend om haar statige karakter en goede bereikbaarheid, zowel met het openbaar vervoer als met de auto.
LOCATIE EN BEREIKBAARHEID
Het pand is uitstekend bereikbaar met zowel eigen vervoer als met het openbaar vervoer. De Zeestraat is centraal gelegen in Den Haag en bevindt zich in het verlengde van het Noordeinde richting Scheveningen. Via de Javastraat, Koningskade en Zuid-Hollandlaan, wordt binnen enkele autominuten de Utrechtsebaan bereikt, welke aansluiting geeft op het Prins Clausplein (A4, A12, A13).
Station Den Haag Centraal is snel te bereiken met het openbaar vervoer. Tramlijn 1 en buslijn 22 en 24 stoppen op loopafstand van het pand en zorgen voor een directe verbinding met het centrum en omliggende wijken.
BESCHIKBAARHEID
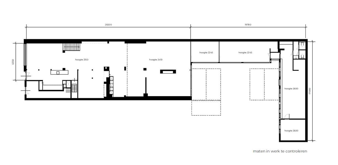
Voor de verhuur is beschikbaar een multifunctionele ruimte op de begane grond van ca. 409 m².
PARKEREN
Op het achtergelegen parkeerterrein, welke bereikbaar is via een poort, zijn 4 parkeerplaatsen voor de verhuur beschikbaar, waarvan 1 parkeerplaats is voorzien van een laadpaal voor een elektrische auto.
HUURPRIJZEN
Kantoorruimte € 67.500,-- per jaar te vermeerderen met btw
Parkeerplaats € 1.500,-- per plaats per jaar te vermeerderen met btw
VOORSCHOT SERVICE- EN ENERGIEKOSTEN
Het voorschot bedrag voor de service- en energiekosten van de kantoorruimte is geraamd op € 45,-- per m² vvo per jaar, exclusief 21% BTW, een en ander op basis van jaarlijkse nacalculatie door middel van tussenmeters. Daarnaast is het pand voorzien van 52 zonnepanelen op het dak, die in totaal goed zijn voor ca. 20.000 kWh per jaar.
OPLEVERING
De ruimte wordt opgeleverd in huidige staat en voorzien van de navolgende voorzieningen:
- eigen entree aan de Zeestraat en achteringang vanuit het parkeerterrein;
- gas- water- en elektra aansluitingen;
- all-air systeem voor verwarming en koeling;
- huidige vloerafwerking;
- telematica voorzieningen;
- luxe representatieve pantry als blikvanger in de entree;
- sanitaire voorzieningen.
Het pand aan de Zeestraat 94 in Den Haag is een karakteristiek en monumentaal gebouw met een rijke historie. Het dateert uit 1860 en is gelegen in het populaire Zeeheldenkwartier, een levendige en centraal gelegen wijk met een mix van kantoren, woningen, horeca en winkels. De Zeestraat vormt een directe verbinding tussen het centrum van Den Haag en het Scheveningse strand.
Op deze een representatieve en centraal gelegen locatie bieden wij een aantrekkelijke kantoor-/winkelruimte op de begane grond aan. Deze ruimte is uitermate geschikt voor ondernemers en organisaties die op zoek zijn naar een professionele werkomgeving met een sterke uitstraling.
De kantoor-/winkelruimte beschikt over een prettige lichtinval en een efficiënte indeling, waardoor een comfortabele en productieve werkplek ontstaat. De ligging op de begane grond zorgt voor een directe en toegankelijke entree, ideaal voor het ontvangen van cliënten en relaties. De Zeestraat staat bekend om haar statige karakter en goede bereikbaarheid, zowel met het openbaar vervoer als met de auto.
LOCATIE EN BEREIKBAARHEID
Het pand is uitstekend bereikbaar met zowel eigen vervoer als met het openbaar vervoer. De Zeestraat is centraal gelegen in Den Haag en bevindt zich in het verlengde van het Noordeinde richting Scheveningen. Via de Javastraat, Koningskade en Zuid-Hollandlaan, wordt binnen enkele autominuten de Utrechtsebaan bereikt, welke aansluiting geeft op het Prins Clausplein (A4, A12, A13).
Station Den Haag Centraal is snel te bereiken met het openbaar vervoer. Tramlijn 1 en buslijn 22 en 24 stoppen op loopafstand van het pand en zorgen voor een directe verbinding met het centrum en omliggende wijken.
BESCHIKBAARHEID
Voor de verhuur is beschikbaar een multifunctionele ruimte op de begane grond van ca. 409 m².
PARKEREN
Op het achtergelegen parkeerterrein, welke bereikbaar is via een poort, zijn 4 parkeerplaatsen voor de verhuur beschikbaar, waarvan 1 parkeerplaats is voorzien van een laadpaal voor een elektrische auto.
HUURPRIJZEN
Kantoorruimte € 67.500,-- per jaar te vermeerderen met btw
Parkeerplaats € 1.500,-- per plaats per jaar te vermeerderen met btw
VOORSCHOT SERVICE- EN ENERGIEKOSTEN
Het voorschot bedrag voor de service- en energiekosten van de kantoorruimte is geraamd op € 45,-- per m² vvo per jaar, exclusief 21% BTW, een en ander op basis van jaarlijkse nacalculatie door middel van tussenmeters. Daarnaast is het pand voorzien van 52 zonnepanelen op het dak, die in totaal goed zijn voor ca. 20.000 kWh per jaar.
OPLEVERING
De ruimte wordt opgeleverd in huidige staat en voorzien van de navolgende voorzieningen:
- eigen entree aan de Zeestraat en achteringang vanuit het parkeerterrein;
- gas- water- en elektra aansluitingen;
- all-air systeem voor verwarming en koeling;
- huidige vloerafwerking;
- telematica voorzieningen;
- luxe representatieve pantry als blikvanger in de entree;
- sanitaire voorzieningen.
Map
Map is loading...
Cadastral boundaries
Buildings
Travel time
Gain insight into the reachability of this object, for instance from a public transport station or a home address.