Description
Winkelstraat 5 Eindhoven
Zeer courant beleggingsobject met winkelruimte op de begane grond en een bovenwoning op de 1e en 2e verdieping.
Het geheel wordt geleverd "as is where is", vrij van huur en gebruik.
Gelegen in actief wijkwinkelcentrum, nabij het levendige Gerardusplein.
Gemiddeld Energielabel A+.
Begane grond
De begane grond is volledig in gebruik als winkelruimte met achtergelegen magazijn. De totale frontbreedte van ca. 5 meter is voorzien van een glazen pui met 1 toegangsdeur.
Begane grond vloer is afgewerkt met natuurstenen vloer (travertin), stucwerk wanden en een systeemplafond met tl-verlichting. Verwarming geschiedt d.m.v. radiatoren en een warmtegordijn. Koeling d.m.v. airconditioning.
Bovenwoning
1e verdieping:
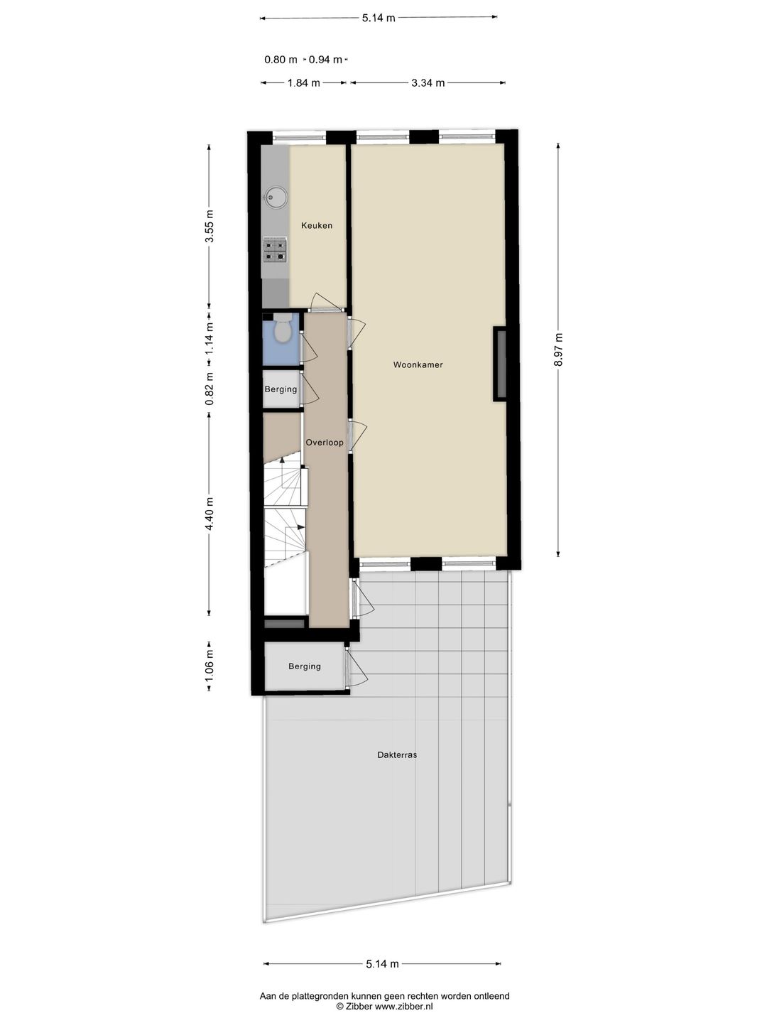
Overloop met toegang tot dakterras, woonkamer, keuken, toilet en 2e verdieping d.m.v. een vaste trapopgang.
Woonkamer (doorzon), met laminaatvloer, stucwerk wanden en een stucwerk plafond. Keuken met eenvoudige keukeninrichting, laminaatvloer, stucwerk wanden met lambrisering en een schrotenplafond. Separaat toegankelijk toilet met tegelvloer, gedeeltelijk tegelwerkwanden en een schrotenplafond.
Dakterras (op het zuiden gesitueerd) voorzien van waterdoorlatende betontegels.
2e verdieping
Overloop met toegang tot slaapkamer, zolderkamer en badkamer. Slaapkamer voorzien van dakkapel en afgewerkt met een laminaatvloer, stucwerkwanden en een decoratie plafond. Eventueel onder te verdelen in 2 slaapkamers.
Badkamer voorzien van een inloopdouche en een vaste wastafel, afgewerkt met een granitovloer, tegelwerk wanden en een stucwerk plafond.
Zolderkamer met laminaatvloer dient tevens als standplaats voor de c.v. ketel en omvormer voor de zonnepanelen.
Oppervlakte winkel: 90 m2
Oppervlakte woning: ca. 85 m2
Oppervlakte overig inpandig: ca. 32 m2
Bijzonderheden:
- Gemiddeld energielabel A+;
- Voldoende gratis parkeermogelijkheden voor de deur;
- Airconditioning aanwezig in de winkel;
- Zonnepanelen;
- De bovenwoning is voorzien van kunststof kozijnen;
- De winkel is aan de voorzijde is voorzien van een aluminium pui.
Het geheel wordt geleverd "as is where is", vrij van huur en gebruik.
Zeer courant beleggingsobject met winkelruimte op de begane grond en een bovenwoning op de 1e en 2e verdieping.
Het geheel wordt geleverd "as is where is", vrij van huur en gebruik.
Gelegen in actief wijkwinkelcentrum, nabij het levendige Gerardusplein.
Gemiddeld Energielabel A+.
Begane grond
De begane grond is volledig in gebruik als winkelruimte met achtergelegen magazijn. De totale frontbreedte van ca. 5 meter is voorzien van een glazen pui met 1 toegangsdeur.
Begane grond vloer is afgewerkt met natuurstenen vloer (travertin), stucwerk wanden en een systeemplafond met tl-verlichting. Verwarming geschiedt d.m.v. radiatoren en een warmtegordijn. Koeling d.m.v. airconditioning.
Bovenwoning
1e verdieping:
Overloop met toegang tot dakterras, woonkamer, keuken, toilet en 2e verdieping d.m.v. een vaste trapopgang.
Woonkamer (doorzon), met laminaatvloer, stucwerk wanden en een stucwerk plafond. Keuken met eenvoudige keukeninrichting, laminaatvloer, stucwerk wanden met lambrisering en een schrotenplafond. Separaat toegankelijk toilet met tegelvloer, gedeeltelijk tegelwerkwanden en een schrotenplafond.
Dakterras (op het zuiden gesitueerd) voorzien van waterdoorlatende betontegels.
2e verdieping
Overloop met toegang tot slaapkamer, zolderkamer en badkamer. Slaapkamer voorzien van dakkapel en afgewerkt met een laminaatvloer, stucwerkwanden en een decoratie plafond. Eventueel onder te verdelen in 2 slaapkamers.
Badkamer voorzien van een inloopdouche en een vaste wastafel, afgewerkt met een granitovloer, tegelwerk wanden en een stucwerk plafond.
Zolderkamer met laminaatvloer dient tevens als standplaats voor de c.v. ketel en omvormer voor de zonnepanelen.
Oppervlakte winkel: 90 m2
Oppervlakte woning: ca. 85 m2
Oppervlakte overig inpandig: ca. 32 m2
Bijzonderheden:
- Gemiddeld energielabel A+;
- Voldoende gratis parkeermogelijkheden voor de deur;
- Airconditioning aanwezig in de winkel;
- Zonnepanelen;
- De bovenwoning is voorzien van kunststof kozijnen;
- De winkel is aan de voorzijde is voorzien van een aluminium pui.
Het geheel wordt geleverd "as is where is", vrij van huur en gebruik.
Map
Map is loading...
Cadastral boundaries
Buildings
Travel time
Gain insight into the reachability of this object, for instance from a public transport station or a home address.