Description
Representatieve nieuwbouw winkelruimte op absolute zichtlocatie in het centrum van Geldrop.
Op een uitstekende zichtlocatie in het centrum van Geldrop bieden wij deze aantrekkelijke nieuwbouw winkelruimte te huur aan. Het object ligt op een prominente hoekpositie op de verbinding tussen het winkelgebied en het schuin tegenovergelegen ziekenhuis, waardoor sprake is van een constante passantenstroom.
In de directe omgeving bevinden zich landelijke ketens zoals o.a. Kruidvat (buurpand), Wibra, HEMA en Pearl. Hierdoor vormt deze locatie een sterk commercieel middelpunt met een hoge attentiewaarde.
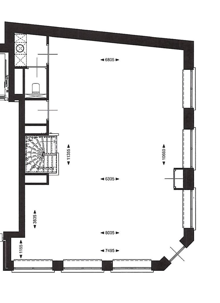
Oppervlakte:
- ca. 106 m² begane grond
- ca. 60 m² souterrain
Omschrijving:
De ruimte maakt onderdeel uit van een volledig nieuw gerealiseerd gebouw en wordt opgeleverd in nette, instapklare staat. Dankzij de fraaie pui en centrale entree heeft het object een open en representatieve uitstraling.
Voorzieningen:
* fraaie winkelpui met centrale entree
* glad afgewerkte wanden, vloer en plafond
* meterkast met eigen aansluitingen (water en elektra)
* glasvezelaansluiting
* Daikin Altherma warmtepomp (verwarmen en koelen, begane grond en souterrain)
* pantry met close-in boiler
* toilet met fonteintje
Bestemming:
centrum – detailhandel. Andere commerciële invullingen zijn in overleg mogelijk.
Bereikbaarheid:
Gelegen op het centrale punt van Geldrop op de kruising Bogardeind – Korte Kerkstraat – Langstraat. De locatie is uitstekend herkenbaar en goed bereikbaar, met ruime openbare parkeervoorzieningen in de directe nabijheid.
Huurcondities:
* Huurprijs: € 26.500,- per jaar excl. BTW
* Huurtermijn: minimaal 5 jaar (verlenging telkens 5 jaar)
* Indexering: jaarlijks (CPI – alle huishoudens)
* Zekerheidsstelling: waarborgsom ter grootte van 3 maanden huurverpkchting
* Betaling: per maand vooruit
* Model: ROZ huurovereenkomst
* Oplevering: in overleg, medio zomer 2026
Voor meer informatie of het plannen van een bezichtiging kunt u contact opnemen met ons kantoor 0495-588111
Op een uitstekende zichtlocatie in het centrum van Geldrop bieden wij deze aantrekkelijke nieuwbouw winkelruimte te huur aan. Het object ligt op een prominente hoekpositie op de verbinding tussen het winkelgebied en het schuin tegenovergelegen ziekenhuis, waardoor sprake is van een constante passantenstroom.
In de directe omgeving bevinden zich landelijke ketens zoals o.a. Kruidvat (buurpand), Wibra, HEMA en Pearl. Hierdoor vormt deze locatie een sterk commercieel middelpunt met een hoge attentiewaarde.
Oppervlakte:
- ca. 106 m² begane grond
- ca. 60 m² souterrain
Omschrijving:
De ruimte maakt onderdeel uit van een volledig nieuw gerealiseerd gebouw en wordt opgeleverd in nette, instapklare staat. Dankzij de fraaie pui en centrale entree heeft het object een open en representatieve uitstraling.
Voorzieningen:
* fraaie winkelpui met centrale entree
* glad afgewerkte wanden, vloer en plafond
* meterkast met eigen aansluitingen (water en elektra)
* glasvezelaansluiting
* Daikin Altherma warmtepomp (verwarmen en koelen, begane grond en souterrain)
* pantry met close-in boiler
* toilet met fonteintje
Bestemming:
centrum – detailhandel. Andere commerciële invullingen zijn in overleg mogelijk.
Bereikbaarheid:
Gelegen op het centrale punt van Geldrop op de kruising Bogardeind – Korte Kerkstraat – Langstraat. De locatie is uitstekend herkenbaar en goed bereikbaar, met ruime openbare parkeervoorzieningen in de directe nabijheid.
Huurcondities:
* Huurprijs: € 26.500,- per jaar excl. BTW
* Huurtermijn: minimaal 5 jaar (verlenging telkens 5 jaar)
* Indexering: jaarlijks (CPI – alle huishoudens)
* Zekerheidsstelling: waarborgsom ter grootte van 3 maanden huurverpkchting
* Betaling: per maand vooruit
* Model: ROZ huurovereenkomst
* Oplevering: in overleg, medio zomer 2026
Voor meer informatie of het plannen van een bezichtiging kunt u contact opnemen met ons kantoor 0495-588111
Map
Map is loading...
Cadastral boundaries
Buildings
Travel time
Gain insight into the reachability of this object, for instance from a public transport station or a home address.