Rijksstraatweg 184 9752 BP Haren (GR)
€ 85,000 /yr
Description
Plaats: Haren.
Adres: Rijksstraatweg 184.
Soort: winkelruimte.
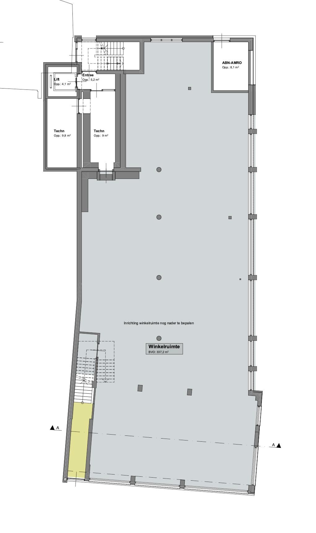
Oppervlakte: ca. 340 m².
Huurprijs: € 85.000,- per jaar, exclusief btw.
Energielabel: A.
Stand en ligging: de winkelruimte gelegen in het centrum van Haren, op een goede zichtlocatie aan de Rijksstraatweg, t.o.v. Blokker, Kruidvat en verbinding tussen Rijksstraatweg en Brinkhorst.
Bereikbaarheid: goed bereikbaar middels auto en openbaar vervoer. In de directe omgeving is voldoende parkeergelegenheid aanwezig.
Bestemming en gebruik: bestemmingsplan "centrum", bestemming detailhandel". Indien de huurder een gebruiksfunctie voor ogen heeft die afwijkt van het laatste gebruik dan dient hij hierover zelf contact op te nemen met de Gemeente. Het laatste gebruik betreft detailhandel/kantoor.
Milieu: er zijn geen omstandigheden bekend die het gebruik zouden kunnen belemmeren.
Voorzieningen: casco, inclusief vloerverwarming en elektrische meterkast (geen gas).
Indeling: winkelruimte van circa 340 m² casco met vloerverwarming. Frontbreedte circa 12 meter aan de Rijksstraatweg en circa 35 meter zijgevel langs het voetpad naar de Brinkhorst.
Bouwjaar: verbouwd in 2026.
Bijzonderheden: het betreft een appartementsrecht. Huurder dient zich te houden aan de bepalingen in de splitsingsakte en huishoudelijk reglement.
BTW: indien de huurder niet btw-plichtig is en derhalve de btw niet kan worden verrekend dan zal de huurprijs met een nader vast te stellen bedrag worden verhoogd.
Lasten: niet bekend.
Aanvaarding: in overleg.
Huurbetaling: huur en btw per maand vooruit.
Huurtermijn: vijf jaar.
Optieperiode: vijf jaar
Zekerheidstelling: bankgarantie ter grootte van 3 maanden huur, inclusief btw.
Model huurovereenkomst: standaard model van de Raad voor Onroerende Zaken (ROZ) met aanvullende artikelen.
Voor nadere informatie omtrent dit object kunt u contact opnemen met de heer Theo Overduin, telefoon 050-3116666.
De op deze website getoonde informatie is met zorg samengeteld, doch makelaar aanvaardt geen aansprakelijkheid voor onjuistheden in en onvolledigheden van de opgenomen informatie, noch kan aan vermelde informatie enig recht worden ontleend.
Adres: Rijksstraatweg 184.
Soort: winkelruimte.
Oppervlakte: ca. 340 m².
Huurprijs: € 85.000,- per jaar, exclusief btw.
Energielabel: A.
Stand en ligging: de winkelruimte gelegen in het centrum van Haren, op een goede zichtlocatie aan de Rijksstraatweg, t.o.v. Blokker, Kruidvat en verbinding tussen Rijksstraatweg en Brinkhorst.
Bereikbaarheid: goed bereikbaar middels auto en openbaar vervoer. In de directe omgeving is voldoende parkeergelegenheid aanwezig.
Bestemming en gebruik: bestemmingsplan "centrum", bestemming detailhandel". Indien de huurder een gebruiksfunctie voor ogen heeft die afwijkt van het laatste gebruik dan dient hij hierover zelf contact op te nemen met de Gemeente. Het laatste gebruik betreft detailhandel/kantoor.
Milieu: er zijn geen omstandigheden bekend die het gebruik zouden kunnen belemmeren.
Voorzieningen: casco, inclusief vloerverwarming en elektrische meterkast (geen gas).
Indeling: winkelruimte van circa 340 m² casco met vloerverwarming. Frontbreedte circa 12 meter aan de Rijksstraatweg en circa 35 meter zijgevel langs het voetpad naar de Brinkhorst.
Bouwjaar: verbouwd in 2026.
Bijzonderheden: het betreft een appartementsrecht. Huurder dient zich te houden aan de bepalingen in de splitsingsakte en huishoudelijk reglement.
BTW: indien de huurder niet btw-plichtig is en derhalve de btw niet kan worden verrekend dan zal de huurprijs met een nader vast te stellen bedrag worden verhoogd.
Lasten: niet bekend.
Aanvaarding: in overleg.
Huurbetaling: huur en btw per maand vooruit.
Huurtermijn: vijf jaar.
Optieperiode: vijf jaar
Zekerheidstelling: bankgarantie ter grootte van 3 maanden huur, inclusief btw.
Model huurovereenkomst: standaard model van de Raad voor Onroerende Zaken (ROZ) met aanvullende artikelen.
Voor nadere informatie omtrent dit object kunt u contact opnemen met de heer Theo Overduin, telefoon 050-3116666.
De op deze website getoonde informatie is met zorg samengeteld, doch makelaar aanvaardt geen aansprakelijkheid voor onjuistheden in en onvolledigheden van de opgenomen informatie, noch kan aan vermelde informatie enig recht worden ontleend.
Features
Transfer of ownership
- Rental price
- € 85,000 per year
- Listed since
-
- Status
- Available
- Acceptance
- Available in consultation
Construction
- Main use
- Retail outlet
- Building type
- Resale property
- Construction period
- 1960-1970
Surface areas
- Area
- 340 m²
- Sales floor area
- 340 m²
- Front width
- 12 m
Layout
- Number of floors
- 1 floor
Energy
- Energy label
- Not available
Surroundings
- Location
- Town center
- Shopkeepers' association contribution
- No
- Socio-economic classification
- A1
NVM real estate agent
Photos