De Lind 8 5061 HW Oisterwijk

€ 1,750,000 k.k.

Description

Oisterwijk – De Lind 8

Op het meest exclusieve deel van De Lind-Zuid komt een unieke winkelruimte met luxe bovenwoning beschikbaar. De Lind is het hart van het historische centrum van Oisterwijk waar de combinatie van winkels en horeca rond het bekende Trouwlaantje een uniek decor vormen. De bezoekersaantallen groeien sterk en vooral exclusieve zaken weten veel nieuwe klanten uit heel Nederland te trekken.

Aan deze zijde van de Lind zijn onder meer gevestigd Caroy Damesmode, Lilly Zeligman Exclusive Jewelry en Bob Manders Architecture. Aan de overkant zijn landelijke trekkers als Mayke, Pauw, Sissy Boy, Skins en Rituals gevestigd.
Dit monumentale pand is in 2016 volledig geïsoleerd en biedt ook mogelijkheden voor transformatie naar twee comfortabele stadwoningen. De eerste verdieping is op dit moment in gebruik als comfortabele woonruimte in combinatie met de interieurwinkel op de begane grond.

Eigendom op deze locatie staat garant voor een stabiele belegging.

Collegiaal met Honders/Alting Makelaars (Oisterwijk)

Features

Transfer of ownership

Asking price
€ 1,750,000 kosten koper
Listed since
Status
Available
Acceptance
Available in consultation

Construction

Main use
Retail outlet with showroom
Building type
Resale property
Year of construction
1830

Surface areas

Area
322 m² (units from 200 m²)
Sales floor area
200 m²
Front width
8.5 m
Plot size
259 m²

Layout

Number of floors
2 floors
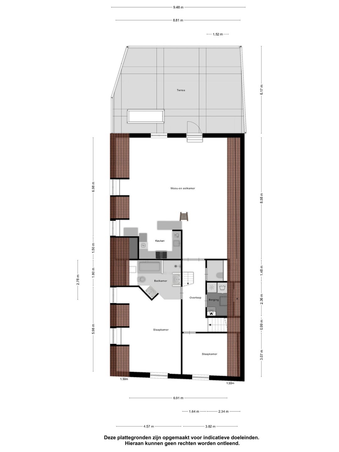
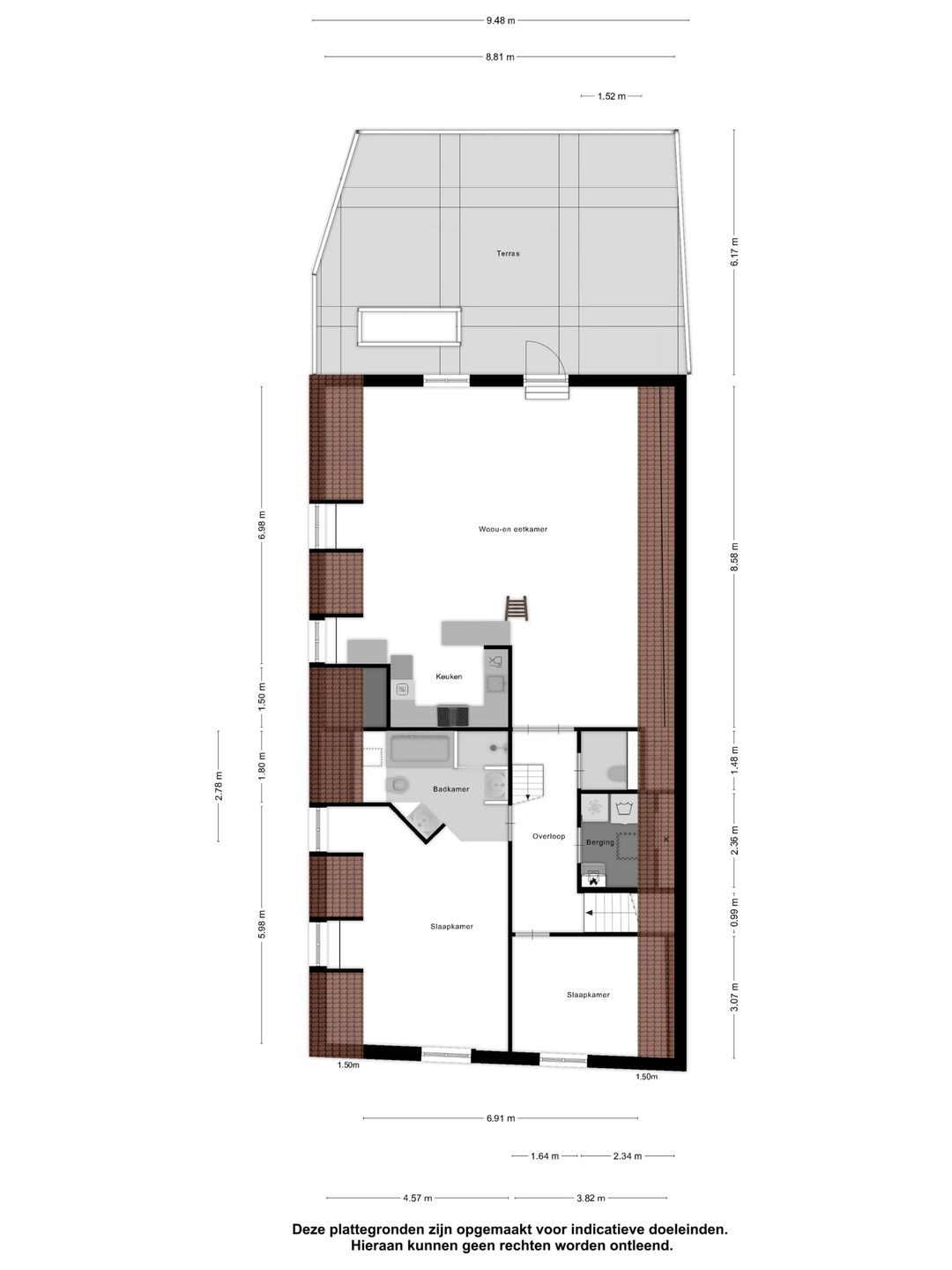
Living space
Present (built-in, 120 m²)

Energy

Energy label
Not available

Surroundings

Location
Town center
Shopkeepers' association contribution
No
Socio-economic classification
A1

Map

Map is loading...

Cadastral boundaries Buildings

Travel time

Gain insight into the reachability of this object, for instance from a public transport station or a home address.

De Lind 8

€ 1,750,000 k.k.