Hoofdstraat 97-99 3901 AJ Veenendaal
€ 34,500 /yr
€ 725,000 k.k.
Description
Op zoek naar royale winkelruimte in het centrum van Veenendaal met bovenwoning(en)?
In het het winkelcentrum van Veenendaal is deze royale winkelruimte beschikbaar. De ligging in het drukbezochte winkelgebied zorgt voor een continue passantenstroom en uitstekende zichtbaarheid. Het object betreft een gemeentelijk monument en kenmerkt zich door een karakteristieke uitstraling.
De winkelruimte op de begane grond heeft een functionele en overzichtelijke indeling en is geschikt voor diverse detailhandels- en dienstverlenende concepten. Het object beschikt over een totale vloeroppervlakte van circa 227 m² gelegen op de begane grond. Uitbreiding van het metrage is in overleg mogelijk. In geval van koop zijn de eerste- en tweede verdieping van circa 115 m² ook inbegrepen.
De bereikbaarheid is goed te noemen. Zowel met de auto als met het openbaar vervoer is de locatie uitstekend bereikbaar. In de directe omgeving zijn diverse (betaalde) parkeervoorzieningen aanwezig voor bezoekers en bewoners. Daarnaast bevinden zich op loopafstand meerdere bushaltes en beschikt Veenendaal over drie NS-stations.
Wilt u meer weten over deze geweldige winkelruimte?
Neem dan contact met ons op. Wij bieden u graag een vrijblijvende rondleiding aan op deze locatie. Zo kunt u direct beoordelen of uw bedrijf zich kan huisvesten op een nieuwe plek!
Indeling en voorzieningen
Het object zal worden opgeleverd in de huidige staat, onder meer voorzien van:
• glazen pui;
• betonvloer;
• plafondafwerking;
• (ingebouwde) verlichtingsarmaturen;
• mechanische ventilatie;
• lichtstraten;
• sanitaire voorzieningen;
• pantry;
• airco;
• warmte gordijn;
• CV;
• opslagruimte.
Vloeroppervlakte
De totale vloeroppervlakte bedraagt circa 227 m² winkel- en overige ruimten gelegen op de begane grond. Uitbreiding van het metrage is in overleg mogelijk. In geval van koop zijn de eerste- en tweede verdieping van circa 115 m² ook inbegrepen.
De genoemde metrages zijn niet bepaald op basis van een NEN-meting en derhalve indicatief en vrijblijvend van aard.
Parkeren
Er is voldoende (betaalde) parkeergelegenheid op eigen terrein.
Bestemmingsplan
Centrum.
IN GEVAL VAN KOOP
Kadastrale gegevens
Gemeente: Veenendaal
Sectie: D
Nummers: 4859 en 5131.
Bouwjaar
Omstreeks 1902.
Koopsom
€ 725.000,00 kosten koper.
Baten en lasten
Alle baten, lasten en verschuldigde canons, waaronder begrepen heffingen die voortvloeien uit de akte van splitsing en/of reglement (indien van toepassing) komen voor rekening van de kopende partij vanaf de datum van notarieel transport. De lopende baten, lasten en dergelijke, met uitzondering van de onroerende zaakbelasting wegens feitelijk gebruik, zullen tussen partijen naar rato worden verrekend.
Betaling
Gelijktijdig met de overdracht ten kantore van instrumenterend notaris.
Notaris
Ter keuze koper.
Zekerheidsstelling
Bankgarantie of waarborgsom ter grootte van 10% van de koopsom, af te geven bij of te storten op de rekening van instrumenterend notaris.
Aanvaarding
In overleg.
Overige condities
Koopovereenkomst conform model notariaat.
IN GEVAL VAN HUUR
Huurprijs
€ 34.500,00 per jaar, exclusief btw.
Btw
Het uitgangspunt is btw belaste verhuur. Indien huurder de btw niet kan verrekenen dan zal de huurprijs met een nader vast te stellen bedrag worden verhoogd.
Huurprijsaanpassing
Jaarlijks, op basis van de wijziging van het maandprijs-indexcijfer volgens de consumentenprijsindex (CPI) reeks CPI-Alle Huishoudens (2015 = 100), gepubliceerd door het Centraal Bureau voor de Statistiek (CBS).
Servicekosten
Huurder is voor eigen rekening en risico direct contractant bij de openbare nutsbedrijven.
Betaling
Huurpenningen en btw per maand vooruit.
Zekerheidsstelling
Afhankelijk van de financiële gegoedheid van de kandidaat een bankgarantie of waarborgsom ter grootte van minimaal drie (3) maanden huur, inclusief btw.
Aanvaarding
In overleg.
Huurtermijn
In overleg.
Opzegtermijn
In overleg.
Overige condities
Huurovereenkomst op basis van het meest recente standaardmodel van de Raad voor Onroerende Zaken (ROZ).
Bij een object ouder dan 20 jaar worden de volgende clausules opgenomen:
• Asbestclausule;
• Ouderdomsclausule.
Plattegronden
De in deze projectinformatie opgenomen tekeningen zijn slechts van indicatieve aard. Hieraan kunnen geen rechten worden ontleend.
De vermelde informatie behelst geen aanbod doch globale informatie van algemene aard. De informatie is niet meer dan een uitnodiging om in onderhandeling te treden. CMC Bedrijfsmakelaars staat niet in voor de juistheid en volledigheid van de informatie. Aan de inhoud van deze informatie kunnen geen rechten worden ontleend.
In het het winkelcentrum van Veenendaal is deze royale winkelruimte beschikbaar. De ligging in het drukbezochte winkelgebied zorgt voor een continue passantenstroom en uitstekende zichtbaarheid. Het object betreft een gemeentelijk monument en kenmerkt zich door een karakteristieke uitstraling.
De winkelruimte op de begane grond heeft een functionele en overzichtelijke indeling en is geschikt voor diverse detailhandels- en dienstverlenende concepten. Het object beschikt over een totale vloeroppervlakte van circa 227 m² gelegen op de begane grond. Uitbreiding van het metrage is in overleg mogelijk. In geval van koop zijn de eerste- en tweede verdieping van circa 115 m² ook inbegrepen.
De bereikbaarheid is goed te noemen. Zowel met de auto als met het openbaar vervoer is de locatie uitstekend bereikbaar. In de directe omgeving zijn diverse (betaalde) parkeervoorzieningen aanwezig voor bezoekers en bewoners. Daarnaast bevinden zich op loopafstand meerdere bushaltes en beschikt Veenendaal over drie NS-stations.
Wilt u meer weten over deze geweldige winkelruimte?
Neem dan contact met ons op. Wij bieden u graag een vrijblijvende rondleiding aan op deze locatie. Zo kunt u direct beoordelen of uw bedrijf zich kan huisvesten op een nieuwe plek!
Indeling en voorzieningen
Het object zal worden opgeleverd in de huidige staat, onder meer voorzien van:
• glazen pui;
• betonvloer;
• plafondafwerking;
• (ingebouwde) verlichtingsarmaturen;
• mechanische ventilatie;
• lichtstraten;
• sanitaire voorzieningen;
• pantry;
• airco;
• warmte gordijn;
• CV;
• opslagruimte.
Vloeroppervlakte
De totale vloeroppervlakte bedraagt circa 227 m² winkel- en overige ruimten gelegen op de begane grond. Uitbreiding van het metrage is in overleg mogelijk. In geval van koop zijn de eerste- en tweede verdieping van circa 115 m² ook inbegrepen.
De genoemde metrages zijn niet bepaald op basis van een NEN-meting en derhalve indicatief en vrijblijvend van aard.
Parkeren
Er is voldoende (betaalde) parkeergelegenheid op eigen terrein.
Bestemmingsplan
Centrum.
IN GEVAL VAN KOOP
Kadastrale gegevens
Gemeente: Veenendaal
Sectie: D
Nummers: 4859 en 5131.
Bouwjaar
Omstreeks 1902.
Koopsom
€ 725.000,00 kosten koper.
Baten en lasten
Alle baten, lasten en verschuldigde canons, waaronder begrepen heffingen die voortvloeien uit de akte van splitsing en/of reglement (indien van toepassing) komen voor rekening van de kopende partij vanaf de datum van notarieel transport. De lopende baten, lasten en dergelijke, met uitzondering van de onroerende zaakbelasting wegens feitelijk gebruik, zullen tussen partijen naar rato worden verrekend.
Betaling
Gelijktijdig met de overdracht ten kantore van instrumenterend notaris.
Notaris
Ter keuze koper.
Zekerheidsstelling
Bankgarantie of waarborgsom ter grootte van 10% van de koopsom, af te geven bij of te storten op de rekening van instrumenterend notaris.
Aanvaarding
In overleg.
Overige condities
Koopovereenkomst conform model notariaat.
IN GEVAL VAN HUUR
Huurprijs
€ 34.500,00 per jaar, exclusief btw.
Btw
Het uitgangspunt is btw belaste verhuur. Indien huurder de btw niet kan verrekenen dan zal de huurprijs met een nader vast te stellen bedrag worden verhoogd.
Huurprijsaanpassing
Jaarlijks, op basis van de wijziging van het maandprijs-indexcijfer volgens de consumentenprijsindex (CPI) reeks CPI-Alle Huishoudens (2015 = 100), gepubliceerd door het Centraal Bureau voor de Statistiek (CBS).
Servicekosten
Huurder is voor eigen rekening en risico direct contractant bij de openbare nutsbedrijven.
Betaling
Huurpenningen en btw per maand vooruit.
Zekerheidsstelling
Afhankelijk van de financiële gegoedheid van de kandidaat een bankgarantie of waarborgsom ter grootte van minimaal drie (3) maanden huur, inclusief btw.
Aanvaarding
In overleg.
Huurtermijn
In overleg.
Opzegtermijn
In overleg.
Overige condities
Huurovereenkomst op basis van het meest recente standaardmodel van de Raad voor Onroerende Zaken (ROZ).
Bij een object ouder dan 20 jaar worden de volgende clausules opgenomen:
• Asbestclausule;
• Ouderdomsclausule.
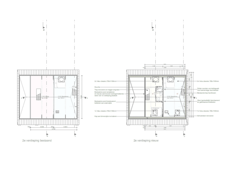
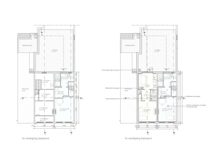
Plattegronden
De in deze projectinformatie opgenomen tekeningen zijn slechts van indicatieve aard. Hieraan kunnen geen rechten worden ontleend.
De vermelde informatie behelst geen aanbod doch globale informatie van algemene aard. De informatie is niet meer dan een uitnodiging om in onderhandeling te treden. CMC Bedrijfsmakelaars staat niet in voor de juistheid en volledigheid van de informatie. Aan de inhoud van deze informatie kunnen geen rechten worden ontleend.
Features
Transfer of ownership
- Asking price
- € 725,000 kosten koper
- Rental price
- € 34,500 per year
- Listed since
-
- Status
- Available
- Acceptance
- Available in consultation
Construction
- Main use
- Retail outlet with showroom
- Building type
- Resale property
- Year of construction
- 1902
Surface areas
- Area
- 227 m²
- Sales floor area
- 227 m²
- Plot size
- 272 m²
Layout
- Number of floors
- 2 floors
- Living space
- Present (built-in, 0 m²)
Energy
- Energy label
- Not available
Surroundings
- Location
- Town center
- Accessibility
- Bus stop in less than 500 m, bus junction in 1000 m to 1500 m, subway station in 5000 m or more, subway junction in 5000 m or more, Dutch Railways Intercity station in 500 m to 1000 m, motorway exit in 1500 m to 2000 m, Tram stop in 5000 m or more and tram junction in 5000 m or more
- Shopkeepers' association contribution
- No
- Socio-economic classification
- A1
Real estate agent
Photos
Floorplan
Tweede verdieping
Eerste verdieping
Begane grond