Valuasstraat 5-7 5911 EN Venlo
€ 3,250 p/mo.
Description
Te huur: Multi functioneel te gebruiken commerciële ruimte – Valuasstraat 5-7, Venlo
Wij bieden te huur aan: multifunctionele commerciële ruimte van in totaal circa 610 m², verdeeld over:
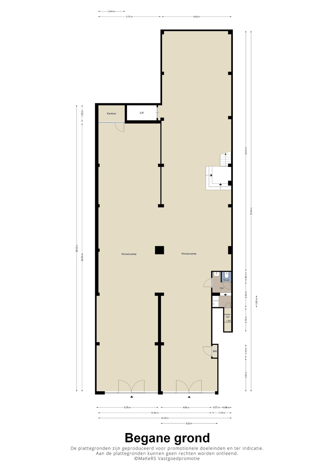
- ca. 350 m² op de begane grond
- ca. 220 m² op de 1e verdieping
- ca. 40 m² op de 2e verdieping
De ruimtes zijn nagenoeg instapklaar te aanvaarden. Groot, licht en neutraal opgeleverd. Grote dubbele pui aan de voorzijde, glad afgewerkte wanden en siergrindvloeren. De begane grond is voorzien van een rasterplafond met verlichting, de 1e verdieping heeft een systeemplafond met verlichting. De eerste verdieping is bereikbaar via een brede trap en een goederenlift. Op de begane grond bevindt zich een pantry met toiletruimte. Het gehele pand is goed onderhouden en maakt een verzorgde indruk.
Locatie & bereikbaarheid
De ligging van het pand is bijzonder aantrekkelijk: Aan de rand van de binnenstad van Venlo, dichtbij alle voorzieningen en winkels en op korte afstand van het groen en het water van de Maas. Dankzij de gunstige ligging is het pand goed bereikbaar. In de directe omgeving zijn ruime parkeermogelijkheden aanwezig. Recht tegenover het pand ligt de parkeergarage Q Park Blok van Gendt, met circa 200 plaatsen en 24/7 toegang. Daarnaast ligt op korte loopafstand de parkeergarage Q Park Nolensplein, wat het pand extra aantrekkelijk maakt voor bezoekers en klanten met auto. De combinatie van centrale ligging, goede bereikbaarheid (o.a. richting snelweg A67 en het Duitse snelwegennet), ruime parkeermogelijkheden en zichtbaarheid maken dit pand bij uitstek geschikt als commerciële vestiging met klantenbezoek, showroom of praktijkruimte.
Bestemmingsplan & gebruiksmogelijkheden
Het pand valt onder de bestemming Gemengd 1. Functies als detailhandel, bedrijven die vallen onder categorie A en B, showroom, kantoor met baliefunctie, en vergelijkbare commerciële doeleinden zijn toegestaan.
Door de neutrale afwerking en open indeling is de ruimte flexibel in te delen. Dit biedt de mogelijkheid voor uiteenlopende bestemmingen.
Enkele concrete voorbeelden:
- Winkel. Royale etalage en prima bereikbaarheid en toegankelijkheid.
- Showroom of galerie. Door de ruime pui aan de voorzijde en goede lichtinval geschikt voor het presenteren van producten.
- Showroom met kantoor/administratie op de verdieping. Ideaal voor bedrijven die klanten ontvangen én backoffice-werkzaamheden uitvoeren.
- Kantoor met baliefunctie / servicepunt. Vriendelijk aan de straat gelegen, goed bereikbaar en met ruime parkeermogelijkheden in de directe omgeving.
- Gezondheids- of welzijnsvoorziening (fysiotherapie, personal training, small-scale fitness, yoga, etc.). De rustige doch centrale ligging, goede bereikbaarheid en parkeergelegenheid maken dit interessant voor bezoekers en cliënten.
- Kleine commerciële onderneming of studio, bijvoorbeeld design, interieur, atelier, of andere creatieve/ambachtelijke invullingen.
- Last-mile delivery. Goede bereikbaarheid en toegankelijkheid in combinatie met veel ruimte die door de aanwezige goederenlift helemaal kan worden benut.
Wij zijn graag behulpzaam bij overleg met de gemeente om te bekijken of de beoogde functie passend is.
Bijzonderheden
- Grote, lichte en neutrale ruimte (begane grond en verdiepingen), ideaal voor flexibele inrichting.
- 1e verdieping toegankelijk via goederenlift. Praktisch bij logistiek, levering of inrichting.
- Centrale ligging aan de rand van het centrum, dicht bij winkels, voorzieningen en het groen en het water van de Maas. Een aantrekkelijke locatie voor zowel bezoekers als medewerkers.
- Uitstekende parkeermogelijkheden op zeer korte afstand, ideaal voor bezoekers met auto.
- Bestemmingsplan biedt ruime, flexibele mogelijkheden, waardoor een breed scala aan bedrijfstypen mogelijk is.
- De ruimte is goed onderhouden en direct gebruiksklaar.
- Eventueel deel verhuur (bij passende invullingen) is bespreekbaar.
- Indirect gestookte luchtheaters.
- Nagenoeg geheel herbouwd in 1999.
Staat van oplevering
Het pand wordt in principe door de verhuurder aan huurder in de huidige staat, leeg en bezemschoon opgeleverd. Alles wat zich in of aan de commerciële ruimte bevindt wat niet tot het casco behoort is voor rekening en risico van huurder.
Overige voorwaarden
- Huurtermijn in overleg, uitgangspunt is een vijfjarige huurovereenkomst;
- Aanvaarding per direct mogelijk;
- Huurovereenkomst: meest recente ROZ huurovereenkomst, model afhankelijk van het gebruik;
- Bankgarantie/waarborgsom: 3 maanden huur;
- Indexering: Jaarlijks overeenkomstig het consumentenprijsindexcijfer (CPI);
- Goedkeuring eigenaar.
Voor meer informatie, een bezichtiging of overleg over gewenste invulling kunt u contact opnemen met ons kantoor.
De eigenaar staat open voor overleg over indeling, eventuele kleine aanpassingen en verdere wensen afhankelijk van de beoogde exploitatie.
Wij bieden te huur aan: multifunctionele commerciële ruimte van in totaal circa 610 m², verdeeld over:
- ca. 350 m² op de begane grond
- ca. 220 m² op de 1e verdieping
- ca. 40 m² op de 2e verdieping
De ruimtes zijn nagenoeg instapklaar te aanvaarden. Groot, licht en neutraal opgeleverd. Grote dubbele pui aan de voorzijde, glad afgewerkte wanden en siergrindvloeren. De begane grond is voorzien van een rasterplafond met verlichting, de 1e verdieping heeft een systeemplafond met verlichting. De eerste verdieping is bereikbaar via een brede trap en een goederenlift. Op de begane grond bevindt zich een pantry met toiletruimte. Het gehele pand is goed onderhouden en maakt een verzorgde indruk.
Locatie & bereikbaarheid
De ligging van het pand is bijzonder aantrekkelijk: Aan de rand van de binnenstad van Venlo, dichtbij alle voorzieningen en winkels en op korte afstand van het groen en het water van de Maas. Dankzij de gunstige ligging is het pand goed bereikbaar. In de directe omgeving zijn ruime parkeermogelijkheden aanwezig. Recht tegenover het pand ligt de parkeergarage Q Park Blok van Gendt, met circa 200 plaatsen en 24/7 toegang. Daarnaast ligt op korte loopafstand de parkeergarage Q Park Nolensplein, wat het pand extra aantrekkelijk maakt voor bezoekers en klanten met auto. De combinatie van centrale ligging, goede bereikbaarheid (o.a. richting snelweg A67 en het Duitse snelwegennet), ruime parkeermogelijkheden en zichtbaarheid maken dit pand bij uitstek geschikt als commerciële vestiging met klantenbezoek, showroom of praktijkruimte.
Bestemmingsplan & gebruiksmogelijkheden
Het pand valt onder de bestemming Gemengd 1. Functies als detailhandel, bedrijven die vallen onder categorie A en B, showroom, kantoor met baliefunctie, en vergelijkbare commerciële doeleinden zijn toegestaan.
Door de neutrale afwerking en open indeling is de ruimte flexibel in te delen. Dit biedt de mogelijkheid voor uiteenlopende bestemmingen.
Enkele concrete voorbeelden:
- Winkel. Royale etalage en prima bereikbaarheid en toegankelijkheid.
- Showroom of galerie. Door de ruime pui aan de voorzijde en goede lichtinval geschikt voor het presenteren van producten.
- Showroom met kantoor/administratie op de verdieping. Ideaal voor bedrijven die klanten ontvangen én backoffice-werkzaamheden uitvoeren.
- Kantoor met baliefunctie / servicepunt. Vriendelijk aan de straat gelegen, goed bereikbaar en met ruime parkeermogelijkheden in de directe omgeving.
- Gezondheids- of welzijnsvoorziening (fysiotherapie, personal training, small-scale fitness, yoga, etc.). De rustige doch centrale ligging, goede bereikbaarheid en parkeergelegenheid maken dit interessant voor bezoekers en cliënten.
- Kleine commerciële onderneming of studio, bijvoorbeeld design, interieur, atelier, of andere creatieve/ambachtelijke invullingen.
- Last-mile delivery. Goede bereikbaarheid en toegankelijkheid in combinatie met veel ruimte die door de aanwezige goederenlift helemaal kan worden benut.
Wij zijn graag behulpzaam bij overleg met de gemeente om te bekijken of de beoogde functie passend is.
Bijzonderheden
- Grote, lichte en neutrale ruimte (begane grond en verdiepingen), ideaal voor flexibele inrichting.
- 1e verdieping toegankelijk via goederenlift. Praktisch bij logistiek, levering of inrichting.
- Centrale ligging aan de rand van het centrum, dicht bij winkels, voorzieningen en het groen en het water van de Maas. Een aantrekkelijke locatie voor zowel bezoekers als medewerkers.
- Uitstekende parkeermogelijkheden op zeer korte afstand, ideaal voor bezoekers met auto.
- Bestemmingsplan biedt ruime, flexibele mogelijkheden, waardoor een breed scala aan bedrijfstypen mogelijk is.
- De ruimte is goed onderhouden en direct gebruiksklaar.
- Eventueel deel verhuur (bij passende invullingen) is bespreekbaar.
- Indirect gestookte luchtheaters.
- Nagenoeg geheel herbouwd in 1999.
Staat van oplevering
Het pand wordt in principe door de verhuurder aan huurder in de huidige staat, leeg en bezemschoon opgeleverd. Alles wat zich in of aan de commerciële ruimte bevindt wat niet tot het casco behoort is voor rekening en risico van huurder.
Overige voorwaarden
- Huurtermijn in overleg, uitgangspunt is een vijfjarige huurovereenkomst;
- Aanvaarding per direct mogelijk;
- Huurovereenkomst: meest recente ROZ huurovereenkomst, model afhankelijk van het gebruik;
- Bankgarantie/waarborgsom: 3 maanden huur;
- Indexering: Jaarlijks overeenkomstig het consumentenprijsindexcijfer (CPI);
- Goedkeuring eigenaar.
Voor meer informatie, een bezichtiging of overleg over gewenste invulling kunt u contact opnemen met ons kantoor.
De eigenaar staat open voor overleg over indeling, eventuele kleine aanpassingen en verdere wensen afhankelijk van de beoogde exploitatie.
Features
Transfer of ownership
- Rental price
- € 3,250 per month
- Listed since
-
- Status
- Available
- Acceptance
- Available in consultation
Construction
- Main use
- Retail outlet with showroom
- Building type
- Resale property
- Year of construction
- 1999
Surface areas
- Area
- 610 m²
- Sales floor area
- 610 m²
- Front width
- 11.5 m
- Plot size
- 395 m²
Layout
- Number of floors
- 3 floors
Energy
- Energy label
- Not available
Surroundings
- Location
- Town center
- Accessibility
- Bus stop in less than 500 m, Dutch Railways Intercity station in 1000 m to 1500 m and motorway exit in 3000 m to 4000 m
- Shopkeepers' association contribution
- No
- Socio-economic classification
- B1
NVM real estate agent
Photos
Floorplan
Begane Grond
Eerste Verdieping
Tweede Verdieping