Stationsstraat 90 5141 GG Waalwijk
€ 359,000 k.k.
Description
Unieke ondernemerskans in het hart van Waalwijk! Op zoek naar een strategische locatie om wonen en ondernemen te combineren? Deze hoekwoning met winkelruimte, gelegen op een prominente plek in het centrum van Waalwijk, biedt jou als ondernemer volop mogelijkheden. Met een totaaloppervlak van circa 154 m² is dit pand ideaal voor wie een eigen winkel, salon, studio, kantoor of creatieve werkruimte wil realiseren, met daarboven direct woonruimte.
Op de begane grond bevindt zich een winkelruimte met eigen keuken. Dankzij de zichtlocatie op de hoek profiteren ondernemers van optimale zichtbaarheid en een constante stroom aan voorbijgangers. De bestemming ‘Centrumgebied’ maakt diverse commerciële functies mogelijk en biedt flexibiliteit voor zowel startende als gevestigde ondernemers.
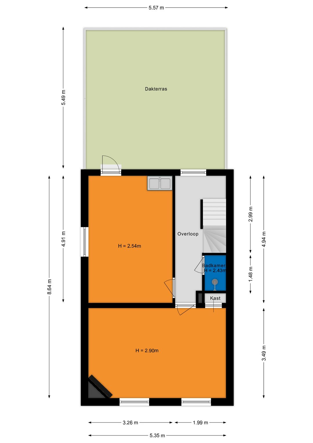
De verdieping beschikt over een ruime woonkamer aan de voorzijde en een multifunctionele kamer die grenst aan het dakterras. Deze ruimte kan uitstekend dienen als woonkeuken of als extra werk- of vergaderruimte. Op de tweede verdieping vind je twee slaapkamers, ideaal voor privégebruik of het creëren van extra kantoor- of opslagruimte. Het dakterras is een fijne plek om even te ontspannen na een werkdag. Rust en privacy midden in de stad.
Met alle centrumvoorzieningen binnen handbereik, winkels, horeca, supermarkten en parkeermogelijkheden, ligt dit object op een locatie waar dagelijks veel mensen komen. De bereikbaarheid is bovendien uitstekend, dankzij de nabijheid van de A59, waardoor klanten en leveranciers je eenvoudig kunnen bereiken. Ook natuurgebied De Loonse en Drunense Duinen ligt op korte afstand, wat bijdraagt aan een aantrekkelijke leef-werk omgeving.
Belangrijk om te weten:
- Gelegen op een prominente hoek in het centrum van Waalwijk, met woon-werk mogelijkheden;
- Ruim oppervlak van 154 m2;
- Winkelruimte met een keuken op de begane grond;
- Woonkamer aan de voorzijde op de eerste verdieping en een ruime kamer, grenzend aan het dakterras;
- Twee slaapkamers op de tweede verdieping;
- Zonnig dakterras;
- Bestemming: ‘Centrumgebied’ waarbij wonen is toegestaan;
- Voorzieningen dichtbij;
- De nabijheid van de A59 zorgt voor een goede bereikbaarheid;
- Aanvaarding in overleg (per direct beschikbaar).
In de koopovereenkomst zal de ‘as is where is’ clausule worden opgenomen. Je koopt het object in de staat waarin het zich bevindt. Verkoper heeft het object zelf nooit bewoond / gebruikt.
Deze informatie is door ons met de nodige zorgvuldigheid samengesteld. Onzerzijds wordt echter geen enkele aansprakelijkheid aanvaard voor enige onvolledigheid, onjuistheid of anderszins, dan wel de gevolgen daarvan. Alle opgegeven maten en oppervlakten zijn indicatief.
Op de begane grond bevindt zich een winkelruimte met eigen keuken. Dankzij de zichtlocatie op de hoek profiteren ondernemers van optimale zichtbaarheid en een constante stroom aan voorbijgangers. De bestemming ‘Centrumgebied’ maakt diverse commerciële functies mogelijk en biedt flexibiliteit voor zowel startende als gevestigde ondernemers.
De verdieping beschikt over een ruime woonkamer aan de voorzijde en een multifunctionele kamer die grenst aan het dakterras. Deze ruimte kan uitstekend dienen als woonkeuken of als extra werk- of vergaderruimte. Op de tweede verdieping vind je twee slaapkamers, ideaal voor privégebruik of het creëren van extra kantoor- of opslagruimte. Het dakterras is een fijne plek om even te ontspannen na een werkdag. Rust en privacy midden in de stad.
Met alle centrumvoorzieningen binnen handbereik, winkels, horeca, supermarkten en parkeermogelijkheden, ligt dit object op een locatie waar dagelijks veel mensen komen. De bereikbaarheid is bovendien uitstekend, dankzij de nabijheid van de A59, waardoor klanten en leveranciers je eenvoudig kunnen bereiken. Ook natuurgebied De Loonse en Drunense Duinen ligt op korte afstand, wat bijdraagt aan een aantrekkelijke leef-werk omgeving.
Belangrijk om te weten:
- Gelegen op een prominente hoek in het centrum van Waalwijk, met woon-werk mogelijkheden;
- Ruim oppervlak van 154 m2;
- Winkelruimte met een keuken op de begane grond;
- Woonkamer aan de voorzijde op de eerste verdieping en een ruime kamer, grenzend aan het dakterras;
- Twee slaapkamers op de tweede verdieping;
- Zonnig dakterras;
- Bestemming: ‘Centrumgebied’ waarbij wonen is toegestaan;
- Voorzieningen dichtbij;
- De nabijheid van de A59 zorgt voor een goede bereikbaarheid;
- Aanvaarding in overleg (per direct beschikbaar).
In de koopovereenkomst zal de ‘as is where is’ clausule worden opgenomen. Je koopt het object in de staat waarin het zich bevindt. Verkoper heeft het object zelf nooit bewoond / gebruikt.
Deze informatie is door ons met de nodige zorgvuldigheid samengesteld. Onzerzijds wordt echter geen enkele aansprakelijkheid aanvaard voor enige onvolledigheid, onjuistheid of anderszins, dan wel de gevolgen daarvan. Alle opgegeven maten en oppervlakten zijn indicatief.
Features
Transfer of ownership
- Asking price
- € 359,000 kosten koper
- Listed since
-
- Status
- Available
- Acceptance
- Available immediately
Construction
- Main use
- Retail outlet with showroom
- Building type
- Resale property
- Year of construction
- 1950
Surface areas
- Area
- 75 m²
- Sales floor area
- 75 m²
- Front width
- 5.4 m
- Plot size
- 81 m²
Layout
- Number of floors
- 3 floors
- Living space
- Present (built-in, 80 m²) ; view on funda
Energy
- Energy label
- E
Surroundings
- Location
- Town center and railway station site
- Accessibility
- Bus stop in less than 500 m, bus junction in less than 500 m, Dutch Railways Intercity station in 5000 m or more and motorway exit in 2000 m to 3000 m
- Shopkeepers' association contribution
- No
NVM real estate agent
Photos
Floorplan
Begane grond
Eerste verdieping
Tweede verdieping