Warmoesstraat 149 1012 JC Amsterdam
€ 1.350 /mnd
Onderdeel van
Warmoesstraat 149, 151, 155, Amsterdam
Omschrijving
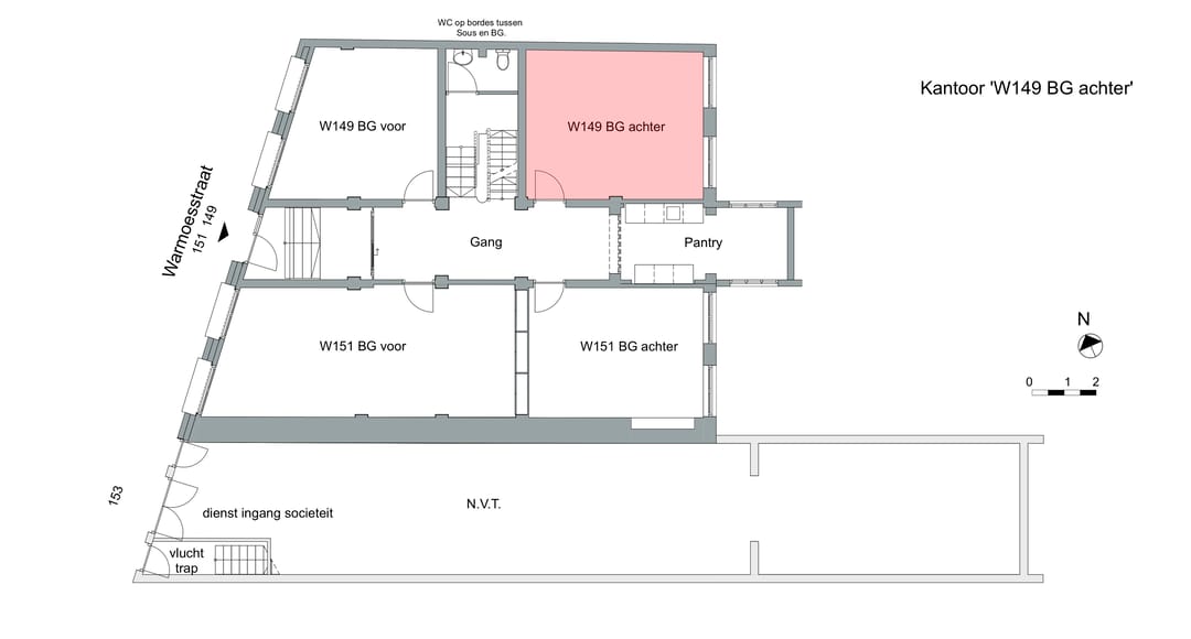
W149 BG achter.
Een gloednieuwe en lichte kamer op de 3e verdieping van dit voormalige hoofdkantoor van drukkerij Ellerman & Harms. Ideaal voor startende ondernemers en met een gezamenlijke vergaderruimte op dezelfde verdieping.
Er zijn talloze mogelijkheden in overleg. We zijn flexibel en denken graag met je mee!
In alle ruimtes is het mogelijk om waterpunten te installeren.
Metrages (BVO)
38 m² kantoorruimte
Huurcondities:
Huurprijs: € 1350,- excl. BTW
Servicekosten: €150,- excl. BTW per maand
Aanvaarding: per 15-09-2025
Opzegtermijn: een kalenderkwartaal
Zekerheidstelling: €4.500,-
FACILITEITEN
- In de servicekosten inbegrepen: verwarming, elektriciteit, water, internet, vergaderruimte, klein onderhoud, sleutels, gemeentelijke belastingen
- Systeembeheer: door SCC Business Systems B.V.
- Meubilair (optioneel): standaard tafel (150x75 cm) € 5,- per maand excl. BTW; zwarte bureaustoel € 10,- per maand excl. BTW
- Gratis gebruik van vergaderruimte: gedeeld met andere gebruikers
- Internet: eigen VLAN-netwerk per kantoorruimte via Ziggo Professional (1000/100 Mbps)
- Pantry met vaatwasser en koelkast: gedeeld met andere gebruikers
- Toiletten: gedeeld met andere gebruikers
- Schoonmaak: dagelijkse schoonmaak van toiletten en pantry
Meer informatie?
Voor meer informatie omtrent de mogelijkheden en de voorwaarden kunt u contact opnemen met Downtown Offices. Ga daarvoor naar dtoff.com.
Online Bedrijfsmakelaar BV is niet aansprakelijk te stellen voor onjuiste of onvolledige informatie die in deze publicatie vermeld staan. Aan deze gegevens kunnen geen rechten worden ontleend.
Ondanks dat deze publicatie met de grootst mogelijke zorgvuldigheid is samengesteld is de Online Bedrijfsmakelaar BV niet aansprakelijk te stellen voor onjuiste of onvolledige informatie die in deze publicatie vermeld staan. Aan deze gegevens kunnen geen rechten worden ontleend.
Een gloednieuwe en lichte kamer op de 3e verdieping van dit voormalige hoofdkantoor van drukkerij Ellerman & Harms. Ideaal voor startende ondernemers en met een gezamenlijke vergaderruimte op dezelfde verdieping.
Er zijn talloze mogelijkheden in overleg. We zijn flexibel en denken graag met je mee!
In alle ruimtes is het mogelijk om waterpunten te installeren.
Metrages (BVO)
38 m² kantoorruimte
Huurcondities:
Huurprijs: € 1350,- excl. BTW
Servicekosten: €150,- excl. BTW per maand
Aanvaarding: per 15-09-2025
Opzegtermijn: een kalenderkwartaal
Zekerheidstelling: €4.500,-
FACILITEITEN
- In de servicekosten inbegrepen: verwarming, elektriciteit, water, internet, vergaderruimte, klein onderhoud, sleutels, gemeentelijke belastingen
- Systeembeheer: door SCC Business Systems B.V.
- Meubilair (optioneel): standaard tafel (150x75 cm) € 5,- per maand excl. BTW; zwarte bureaustoel € 10,- per maand excl. BTW
- Gratis gebruik van vergaderruimte: gedeeld met andere gebruikers
- Internet: eigen VLAN-netwerk per kantoorruimte via Ziggo Professional (1000/100 Mbps)
- Pantry met vaatwasser en koelkast: gedeeld met andere gebruikers
- Toiletten: gedeeld met andere gebruikers
- Schoonmaak: dagelijkse schoonmaak van toiletten en pantry
Meer informatie?
Voor meer informatie omtrent de mogelijkheden en de voorwaarden kunt u contact opnemen met Downtown Offices. Ga daarvoor naar dtoff.com.
Online Bedrijfsmakelaar BV is niet aansprakelijk te stellen voor onjuiste of onvolledige informatie die in deze publicatie vermeld staan. Aan deze gegevens kunnen geen rechten worden ontleend.
Ondanks dat deze publicatie met de grootst mogelijke zorgvuldigheid is samengesteld is de Online Bedrijfsmakelaar BV niet aansprakelijk te stellen voor onjuiste of onvolledige informatie die in deze publicatie vermeld staan. Aan deze gegevens kunnen geen rechten worden ontleend.
Kenmerken
Overdracht
- Huurprijs
- € 1.350 per maand
- Servicekosten
- € 150 per maand (21% BTW van toepassing)
- Aangeboden sinds
-
- Status
- Beschikbaar
- Aanvaarding
- Per direct beschikbaar
Bouw
- Hoofdfunctie
- Kantoor
- Soort bouw
- Bestaande bouw
- Bouwjaar
- 1900
Oppervlakten
- Oppervlakte
- 38 m²
Indeling
- Aantal bouwlagen
- 1 bouwlaag
- Voorzieningen
- Airconditioning, mechanische ventilatie, topkoeling, inbouwarmaturen, te openen ramen, kabelgoten, systeemplafond, toilet, pantry, verwarming en kamerindeling
Energie
- Energielabel
- Niet verplicht
Omgeving
- Ligging
- Stadscentrum/dorpskern
Foto's