Omschrijving
TE HUUR KANTOORRUIMTE
Sarphatistraat 8-14 te Amsterdam (1017 WS)
Algemene informatie
Aan de statige Sarphatistraat, waar klassieke architectuur en stedelijke energie elkaar ontmoeten, bevindt zich het gebouw Sarphatistraat 8-14— een plek waar stijl, rust en professionaliteit samenkomen.
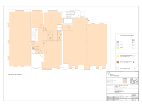
De algemene ruimtes zijn gerenoveerd en beschikken over een moderne look and feel. De beschikbare kantoorruimte van 434 m² v.v.o. is gelegen op de 3e verdieping en beschikt over een turnkey opleverniveau, inclusief vloerafwerking en pantry. De gebruikers binnen het gebouw hebben toegang tot de ruime tuin aan de achterzijde van het gebouw.
Locatie
De transformatie van het DNB-complex aan het Frederiksplein, gelegen op 100 meter afstand van het gebouw, fungeert als katalysator voor de heropleving van de omliggende omgeving. Een belangrijk onderdeel van de herontwikkeling is de introductie van een openbaar toegankelijke zone — met onder meer aangelegde tuinen, voetgangersroutes en mogelijke horecavoorzieningen — waarmee het karakter van de locatie fundamenteel verandert: van gesloten en institutioneel naar open, levendig en inclusief.
De toegenomen voetgangersstromen, verbeterde zichtbaarheid en versterkte profilering van het Frederiksplein positioneren het gebied als een hoogwaardige microlocatie in het centrum van Amsterdam. De op loopafstand gelegen Utrechtsestraat met haar boetieks en restaurants zorgt voor een hoog voorzieningen niveau.
Bereikbaarheid
Het openbaar vervoer
De locatie wordt direct bediend door meerdere tramlijnen en ligt op loopafstand van zowel de Noord/Zuidlijn als de metrolijnen 51, 53 en 54 bij het Weesperplein. Daarnaast is de locatie uitstekend bereikbaar per fiets via de Weteringsstraat, Utrechtsestraat, Sarphatistraat en Van Woustraat, wat zorgt voor een naadloze verbinding binnen Amsterdam.
Met eigen vervoer
De ligging aan de oostelijke rand van het stadscentrum biedt bovendien gemakkelijke autotoegang, met belangrijke doorgaande wegen en de ring A10 die snel bereikbaar zijn. Schiphol is met de auto binnen 25 minuten te bereiken.
Oppervlakte
Voor de verhuur is circa 434 m² v.v.o. kantoorruimte beschikbaar, gelegen op de derde verdieping.
De ruimten zijn conform NEN2580 inmeten.
Parkeren
In de directe omgeving is betaald parkeren aan de openbare weg mogelijk.
Huurprijs
€ 450,- per m² v.v.o. te vermeerderen met btw.
Over de huurprijs zal btw in rekening worden gebracht. Indien btw niet in rekening kan worden gebracht, geldt een nader te bepalen opslag op bovengenoemde huurprijzen.
Opleveringsniveau en voorzieningen
De kantoorruimten worden turnkey in huidige staat opgeleverd, inclusief de volgende zaken:
Kantoorruimte:
– afgewerkte vloeren en plafonds;
– radiatoren;
– mechanische ventilatie voor koelen en verwarmen;
– airco split units per ruimte regelbaar;
– pantry;
– kabelgoten;
– verlichting.
Energielabel
Energielabel A+.
Huurprijsaanpassing
Jaarlijks, op basis van het Consumenten Prijsindexcijfer (CPI), reeks Alle Huishoudens (2015=100); voor het eerst 1 jaar na de huuringangsdatum.
Huurtermijn
5 jaar met verlengingsperioden van telkens 5 jaar.
Betaling
Huur vermeerderd met btw per kwartaal vooruit.
Servicekosten
€ 60,- per m² v.v.o. per jaar, te vermeerderen met btw.
Zekerheidsstelling
Een bankgarantie ter grootte van 3 maanden huur vermeerderd met servicekosten en btw, welke gesteld en afgegeven dient te worden door een erkende Nederlandse bankinstelling.
Aanvaarding
In overleg.
Sarphatistraat 8-14 te Amsterdam (1017 WS)
Algemene informatie
Aan de statige Sarphatistraat, waar klassieke architectuur en stedelijke energie elkaar ontmoeten, bevindt zich het gebouw Sarphatistraat 8-14— een plek waar stijl, rust en professionaliteit samenkomen.
De algemene ruimtes zijn gerenoveerd en beschikken over een moderne look and feel. De beschikbare kantoorruimte van 434 m² v.v.o. is gelegen op de 3e verdieping en beschikt over een turnkey opleverniveau, inclusief vloerafwerking en pantry. De gebruikers binnen het gebouw hebben toegang tot de ruime tuin aan de achterzijde van het gebouw.
Locatie
De transformatie van het DNB-complex aan het Frederiksplein, gelegen op 100 meter afstand van het gebouw, fungeert als katalysator voor de heropleving van de omliggende omgeving. Een belangrijk onderdeel van de herontwikkeling is de introductie van een openbaar toegankelijke zone — met onder meer aangelegde tuinen, voetgangersroutes en mogelijke horecavoorzieningen — waarmee het karakter van de locatie fundamenteel verandert: van gesloten en institutioneel naar open, levendig en inclusief.
De toegenomen voetgangersstromen, verbeterde zichtbaarheid en versterkte profilering van het Frederiksplein positioneren het gebied als een hoogwaardige microlocatie in het centrum van Amsterdam. De op loopafstand gelegen Utrechtsestraat met haar boetieks en restaurants zorgt voor een hoog voorzieningen niveau.
Bereikbaarheid
Het openbaar vervoer
De locatie wordt direct bediend door meerdere tramlijnen en ligt op loopafstand van zowel de Noord/Zuidlijn als de metrolijnen 51, 53 en 54 bij het Weesperplein. Daarnaast is de locatie uitstekend bereikbaar per fiets via de Weteringsstraat, Utrechtsestraat, Sarphatistraat en Van Woustraat, wat zorgt voor een naadloze verbinding binnen Amsterdam.
Met eigen vervoer
De ligging aan de oostelijke rand van het stadscentrum biedt bovendien gemakkelijke autotoegang, met belangrijke doorgaande wegen en de ring A10 die snel bereikbaar zijn. Schiphol is met de auto binnen 25 minuten te bereiken.
Oppervlakte
Voor de verhuur is circa 434 m² v.v.o. kantoorruimte beschikbaar, gelegen op de derde verdieping.
De ruimten zijn conform NEN2580 inmeten.
Parkeren
In de directe omgeving is betaald parkeren aan de openbare weg mogelijk.
Huurprijs
€ 450,- per m² v.v.o. te vermeerderen met btw.
Over de huurprijs zal btw in rekening worden gebracht. Indien btw niet in rekening kan worden gebracht, geldt een nader te bepalen opslag op bovengenoemde huurprijzen.
Opleveringsniveau en voorzieningen
De kantoorruimten worden turnkey in huidige staat opgeleverd, inclusief de volgende zaken:
Kantoorruimte:
– afgewerkte vloeren en plafonds;
– radiatoren;
– mechanische ventilatie voor koelen en verwarmen;
– airco split units per ruimte regelbaar;
– pantry;
– kabelgoten;
– verlichting.
Energielabel
Energielabel A+.
Huurprijsaanpassing
Jaarlijks, op basis van het Consumenten Prijsindexcijfer (CPI), reeks Alle Huishoudens (2015=100); voor het eerst 1 jaar na de huuringangsdatum.
Huurtermijn
5 jaar met verlengingsperioden van telkens 5 jaar.
Betaling
Huur vermeerderd met btw per kwartaal vooruit.
Servicekosten
€ 60,- per m² v.v.o. per jaar, te vermeerderen met btw.
Zekerheidsstelling
Een bankgarantie ter grootte van 3 maanden huur vermeerderd met servicekosten en btw, welke gesteld en afgegeven dient te worden door een erkende Nederlandse bankinstelling.
Aanvaarding
In overleg.
Kaart
Kaart laden...
Kadastrale grens
Bebouwing
Reistijd
Krijg inzicht in de bereikbaarheid van dit object vanuit bijvoorbeeld een openbaar vervoer station of vanuit een adres.