Omschrijving
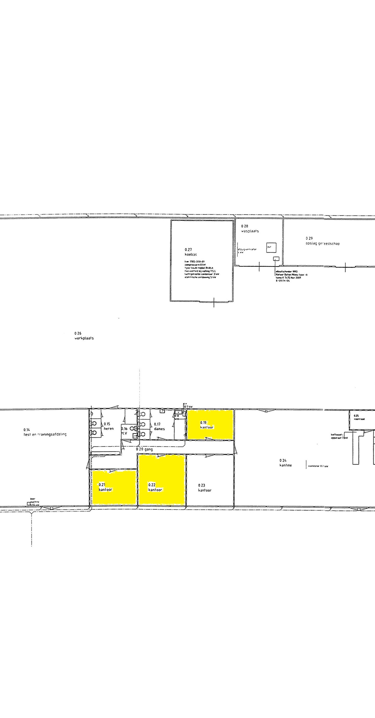
Kantoorruimte gelegen op een goede locatie in Dokkum op bedrijventerrein Betterwird. De ruimte maakt deel uit van een geheel van meerdere ruimtes met verschillende bedrijven, waaronder Lauwers Design. Er is hier nog één kantoor te huur (0.19), van circa 15 m². Tussen de kantoorruimtes is een gang. Gezamenlijk gebruik van toiletten.
Kenmerken:
- Enkelbestemming bedrijventerrein
- Contractduur in nader overleg te bepalen
- Per direct beschikbaar
- Voldoende parkeergelegenheid
- Huurprijs circa (excl. BTW) € 100,- per m² per jaar, dit hangt van de te huren ruimte af
- Huurprijs is incl. gas, water en elektra
- 1 maand borg
- Verwarming en warm water via cv-ketel
Bijzonderheden
Deze informatie is door Regiomakelaardij met de nodige zorgvuldigheid samengesteld. Onzerzijds wordt echter geen enkele aansprakelijkheid aanvaard voor enige onvolledigheid, onjuistheid of anderszins, dan wel de gevolgen daarvan. Alle opgegeven maten en oppervlakten zijn indicatief. Alle verhuuronderhandelingen geschieden onder voorbehoud van definitieve goedkeuring door verhuurder.
Kenmerken:
- Enkelbestemming bedrijventerrein
- Contractduur in nader overleg te bepalen
- Per direct beschikbaar
- Voldoende parkeergelegenheid
- Huurprijs circa (excl. BTW) € 100,- per m² per jaar, dit hangt van de te huren ruimte af
- Huurprijs is incl. gas, water en elektra
- 1 maand borg
- Verwarming en warm water via cv-ketel
Bijzonderheden
Deze informatie is door Regiomakelaardij met de nodige zorgvuldigheid samengesteld. Onzerzijds wordt echter geen enkele aansprakelijkheid aanvaard voor enige onvolledigheid, onjuistheid of anderszins, dan wel de gevolgen daarvan. Alle opgegeven maten en oppervlakten zijn indicatief. Alle verhuuronderhandelingen geschieden onder voorbehoud van definitieve goedkeuring door verhuurder.
Kaart
Kaart laden...
Kadastrale grens
Bebouwing
Reistijd
Krijg inzicht in de bereikbaarheid van dit object vanuit bijvoorbeeld een openbaar vervoer station of vanuit een adres.