Groenstraat 4-A 5642 CB Eindhoven

€ 24.583 /jr

Omschrijving

Zeer goed afgewerkte kantoorruimte, ca. 136 m², op centrale locatie, dichtbij uitvalwegen met een moderne representatieve uitstraling.

Begane grond:
Centrale entree met trap-/ en liftopgang.

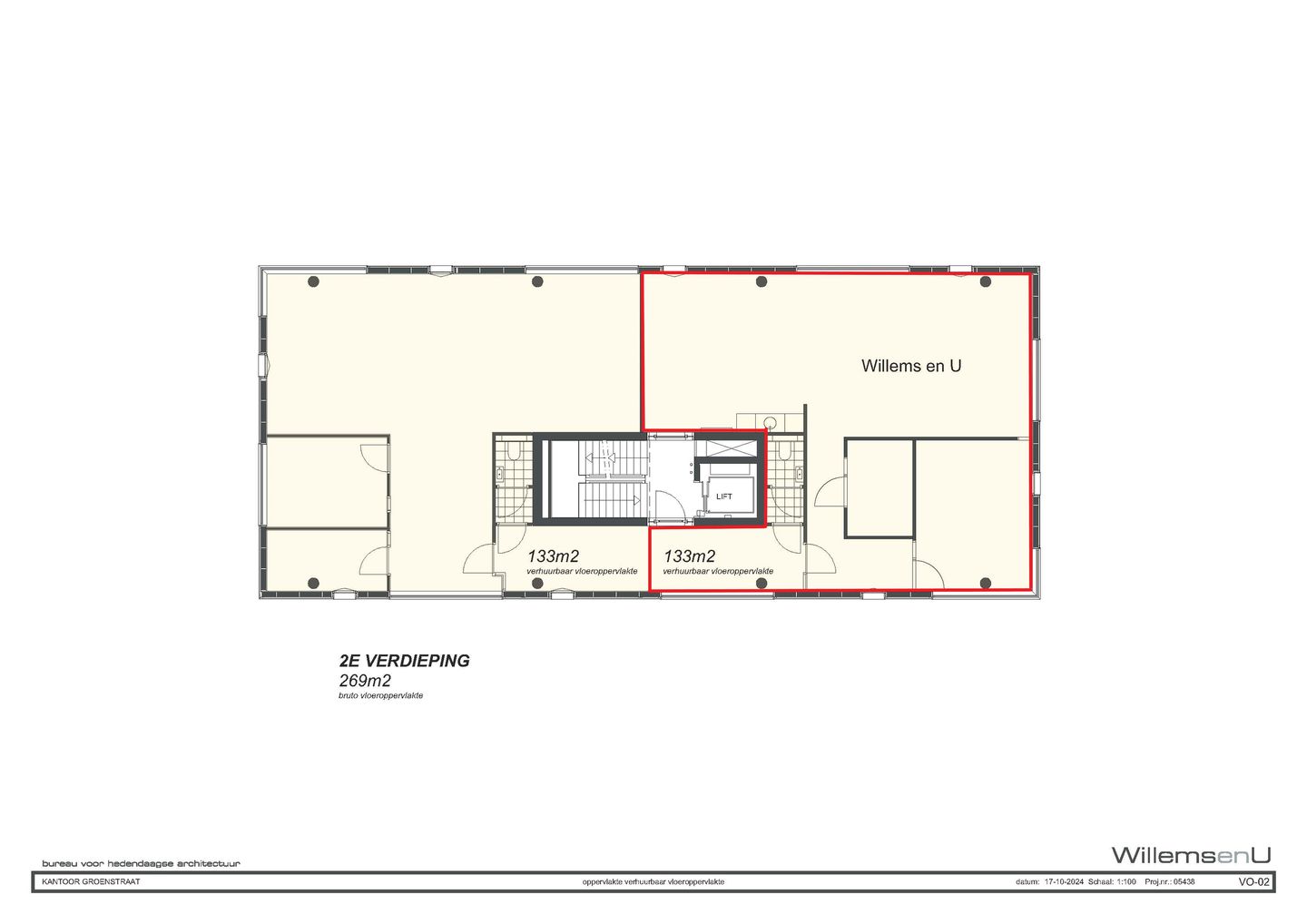
2e Verdieping:

Centrale entree.
Royale kantoorruimte met kitchenette.
2 Afzonderlijke kantoorkamers.
Toiletruimte.

Huurtermijn minimaal 2 jaar.
Huurprijs per parkeerplaats € 258,25 p/jaar, 2 parkeerplaatsen beschikbaar

Kenmerken

Overdracht

Huurprijs
€ 24.583 per jaar
Servicekosten
€ 443 per maand
Aangeboden sinds
Status
Beschikbaar
Aanvaarding
In overleg

Bouw

Hoofdfunctie
Kantoor
Soort bouw
Bestaande bouw
Bouwjaar
2009

Oppervlakten

Oppervlakte
136 m²

Indeling

Aantal bouwlagen
1 bouwlaag
Voorzieningen
Airconditioning, inbouwarmaturen, liften, systeemplafond, toilet, pantry, verwarming en kamerindeling

Energie

Energielabel
A++

Omgeving

Ligging
In woonwijk

Kaart

Kaart laden...

Kadastrale grens Bebouwing

Reistijd

Krijg inzicht in de bereikbaarheid van dit object vanuit bijvoorbeeld een openbaar vervoer station of vanuit een adres.

Groenstraat 4-A

€ 24.583 /jr