Omschrijving
Locatie:
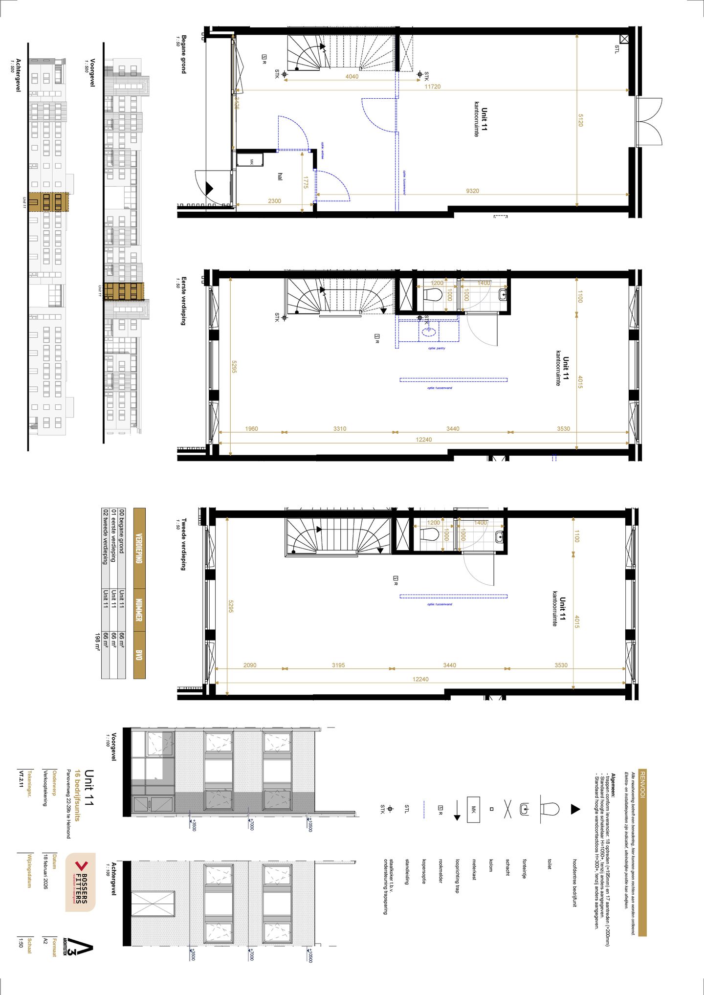
De te koop aangeboden volledig getransformeerde hoogwaardige duurzame Businesslofts (A++) met parkeerplaatsen aan de Panovenweg 22-29 te Helmond, genaamd "Project Panoven", zijn gelegen bij de Automotive Campus op Businesspark Groot Schooten. Met dit project wordt tegemoet gekomen aan de grote vraag naar zelfstandige compacte koop kantoorunits binnen de Brainport Regio. Een uitgelezen kans om uw bedrijf te vestigen op deze prachtige zichtlocatie, een nationale/internationale hotspot waar technologie, mobiliteit en ondernemerschap samenkomen.
Bereikbaarheid:
Het complex ligt op Businesspark Groot Schooten en is zowel met eigen vervoer als met het openbaar vervoer goed bereikbaar. De locatie ligt direct aan belangrijke wegen zoals de provinciale weg N270 (Helmond–Eindhoven) en heeft een snelle aansluiting op de A67, wat de locatie ook met de auto makkelijk toegankelijk maakt. Voor openbaar vervoer zijn er diverse bushaltes en een treinstation op loopafstand waardoor reizen per trein en bus ook zéér aantrekkelijk is.
OBJECTGEGEVENS
Beschikbare oppervlakte voor de verkoop:
Unit 11 - circa 198 m² (b.v.o.) - verdeeld over 3 bouwlagen
Parkeergelegenheid:
4 eigen parkeerplaatsen gelegen voor of achter het complex. Aanvullend gratis openbare parkeervakken aan de straatzijde.
Opleveringsniveau:
De Businesslofts worden hoogwaardig, duurzaam en nagenoeg instapklaar opgeleverd (vloerbedekking zelf nog in te vullen).
Koperswensen:
Koperswensen zijn mogelijk, waarbij Bouwbedrijf van Gerwen de kopersbegeleiding verzorgt.
Aanvaarding:
250 werkbare dagen vanaf start bouw. Start bouw bij 80% verkocht (= 13 Businesslofts)
Energielabel:
De Businesslofts beschikken bij oplevering over het zéér gunstige energielabel A++
Hiermee voldoen de Businesslofts ruimschoots aan de overheidsdoelstelling waarbij vanaf 2023 alle utiliteitsgebouwen minimaal een energielabel C dienen te hebben.
Kadastrale gegevens Panovenweg 22-29 te Helmond:
Gemeente: Helmond
Sectie: T
Perceelnummer: 8017
Gedeeltelijk
Bestemmingsplan:
Het bestemmingsplan van Project Panoven aan de Panovenweg 22-29 te Helmond op Businesspark GF is op te vragen via één van onze bedrijfsmakelaars bij Bossers & Fitters Bedrijfshuisvesting B.V. en/of via de website van het omgevingsloket.
Bouwjaar:
2026
Technische info:
Voor meer informatie zie onze brochure van Panovenweg 22-29 te Helmond.
KOOPGEGEVENS
Koopsom:
Unit 11: € 443.600,00 Kosten Koper
Notaris:
Inbegrepen in de koopsom, PVM Notarissen te Almere.
Zekerheidsstelling:
10% van de koopsom te storten binnen 7 dagen na ondertekening van de koopovereenkomst en algemene voorwaarden van aanneming.
B.T.W.:
Er zal niet worden geopteerd voor een met B.T.W.-belaste verkoop.
Bijzonderheden:
Er is overdrachtsbelasting van toepassing waarmee Kopers rekening dienen te houden.
Meer informatie:
Wenst u meer informatie over de verkoop van deze Businesslofts aan de Panovenweg 22-29 te Helmond, neem dan vrijblijvend contact op met één van de bedrijfsmakelaars bij Bossers & Fitters Bedrijfshuisvesting B.V.
Onze bedrijfsmakelaar de heer B. Deitmers RM RT is van alle beschikbare informatie op de hoogte.
De te koop aangeboden volledig getransformeerde hoogwaardige duurzame Businesslofts (A++) met parkeerplaatsen aan de Panovenweg 22-29 te Helmond, genaamd "Project Panoven", zijn gelegen bij de Automotive Campus op Businesspark Groot Schooten. Met dit project wordt tegemoet gekomen aan de grote vraag naar zelfstandige compacte koop kantoorunits binnen de Brainport Regio. Een uitgelezen kans om uw bedrijf te vestigen op deze prachtige zichtlocatie, een nationale/internationale hotspot waar technologie, mobiliteit en ondernemerschap samenkomen.
Bereikbaarheid:
Het complex ligt op Businesspark Groot Schooten en is zowel met eigen vervoer als met het openbaar vervoer goed bereikbaar. De locatie ligt direct aan belangrijke wegen zoals de provinciale weg N270 (Helmond–Eindhoven) en heeft een snelle aansluiting op de A67, wat de locatie ook met de auto makkelijk toegankelijk maakt. Voor openbaar vervoer zijn er diverse bushaltes en een treinstation op loopafstand waardoor reizen per trein en bus ook zéér aantrekkelijk is.
OBJECTGEGEVENS
Beschikbare oppervlakte voor de verkoop:
Unit 11 - circa 198 m² (b.v.o.) - verdeeld over 3 bouwlagen
Parkeergelegenheid:
4 eigen parkeerplaatsen gelegen voor of achter het complex. Aanvullend gratis openbare parkeervakken aan de straatzijde.
Opleveringsniveau:
De Businesslofts worden hoogwaardig, duurzaam en nagenoeg instapklaar opgeleverd (vloerbedekking zelf nog in te vullen).
Koperswensen:
Koperswensen zijn mogelijk, waarbij Bouwbedrijf van Gerwen de kopersbegeleiding verzorgt.
Aanvaarding:
250 werkbare dagen vanaf start bouw. Start bouw bij 80% verkocht (= 13 Businesslofts)
Energielabel:
De Businesslofts beschikken bij oplevering over het zéér gunstige energielabel A++
Hiermee voldoen de Businesslofts ruimschoots aan de overheidsdoelstelling waarbij vanaf 2023 alle utiliteitsgebouwen minimaal een energielabel C dienen te hebben.
Kadastrale gegevens Panovenweg 22-29 te Helmond:
Gemeente: Helmond
Sectie: T
Perceelnummer: 8017
Gedeeltelijk
Bestemmingsplan:
Het bestemmingsplan van Project Panoven aan de Panovenweg 22-29 te Helmond op Businesspark GF is op te vragen via één van onze bedrijfsmakelaars bij Bossers & Fitters Bedrijfshuisvesting B.V. en/of via de website van het omgevingsloket.
Bouwjaar:
2026
Technische info:
Voor meer informatie zie onze brochure van Panovenweg 22-29 te Helmond.
KOOPGEGEVENS
Koopsom:
Unit 11: € 443.600,00 Kosten Koper
Notaris:
Inbegrepen in de koopsom, PVM Notarissen te Almere.
Zekerheidsstelling:
10% van de koopsom te storten binnen 7 dagen na ondertekening van de koopovereenkomst en algemene voorwaarden van aanneming.
B.T.W.:
Er zal niet worden geopteerd voor een met B.T.W.-belaste verkoop.
Bijzonderheden:
Er is overdrachtsbelasting van toepassing waarmee Kopers rekening dienen te houden.
Meer informatie:
Wenst u meer informatie over de verkoop van deze Businesslofts aan de Panovenweg 22-29 te Helmond, neem dan vrijblijvend contact op met één van de bedrijfsmakelaars bij Bossers & Fitters Bedrijfshuisvesting B.V.
Onze bedrijfsmakelaar de heer B. Deitmers RM RT is van alle beschikbare informatie op de hoogte.
Kaart
Kaart laden...
Kadastrale grens
Bebouwing
Reistijd
Krijg inzicht in de bereikbaarheid van dit object vanuit bijvoorbeeld een openbaar vervoer station of vanuit een adres.