Omschrijving
ALGEMEEN
Het betreft een representatief en modern kantoorgebouw op een zichtlocatie aan de rijksweg A1 nabij knooppunt Hoevelaken. Het gebouw is de middelste van een drietal identieke kantoorgebouwen.
De business units in Hub House Hoevelaken zijn beschikbaar vanaf 35 m2 v.v.o. welke gelegen zijn op de 1e verdieping. Hub House Hoevelaken is voorzien van gemeenschappelijke faciliteiten zoals een vergader- en presentatieruimte, lunchruimte en sportruimte.
Het kantoorgebouw is gelegen op het bedrijventerrein Horstbeek. In de nabijheid zijn diverse gerenommeerde (inter-)nationale organisaties gevestigd, waaronder, Euretco, GE Healthcare, De Bubbelkoning en Yourizon B.V.
BEREIKBAARHEID
Eigen vervoer:
De bereikbaarheid van het bedrijventerrein Horstbeek is zonder meer goed te noemen. De op- en afrit nummer 14 “Hoevelaken” biedt in circa 5 autominuten afstand een perfecte ontsluiting op de rijksweg A1. Hierdoor is een uitstekende verbinding in de richting van de rijkswegen A1, A27, A28 en A30 gewaarborgd.
Openbaar vervoer:
Vanaf het kantoorgebouw is het treinstation Hoevelaken in circa 10 minuten lopen bereikbaar. Vanaf dit treinstation vertrekken op regelmatige basis treinen in de richting van Amersfoort, Barneveld-Zuid en Ede-Wageningen.
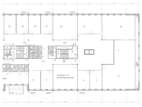
VLOEROPPERVLAK
Voor de verhuur is totaal beschikbaar circa 681,4 m² v.v.o. kantoorruimte verdeeld als volgt:
Unit | Oppervlakte in m2 v.v.o. | All-in huurprijs per maand | Beschikbaarheid
1 + 2 | circa 235,36 m2 | € 3.769,00 | Per direct
4 | circa 35,19 m2 | € 629,00 | per direct
7 | circa 94,16 m2 | € 1.559,00 | Per direct
9 | circa 94,16 m2 | € 1.559,00 | Per direct
10 | circa 46,92 m2 | € 809,00 | Per direct
12 | circa 35,19 m2 | € 629,00 | Per direct
16 | circa 93,83 m2 | € 1.549,00 | Per direct
18 | circa 140,75 m2 | € 2.289,00 | Per direct
Huurprijzen per maand zijn inclusief de vaste servicekosten en inclusief internet, meubilair en te vermeerderen met omzetbelasting.
Genoemde metrages zijn inclusief een aandeel in de gemeenschappelijke ruimtes.
PARKEERGELEGENHEID
Het gebouw beschikt over 56 parkeerplaatsen. Parkeernorm 1:50.
De kosten voor 1 (één) parkeerplaats bedragen € 420,00 per jaar, te vermeerderen met omzetbelasting.
OPLEVERINGSNIVEAU
De kantoorruimte wordt opgeleverd met de volgende voorzieningen:
• (medegebruik) entree voorzien van een ontvangstruimte;
• gedeelde glasvezel internet/wifi verbinding op basis van 100/100mbps;
• elektrische zit- en sta werkplekken (bureau en bureaustoelen);
• onbeperkt gebruik verse biologische bonenkoffie en thee;
• huidige systeemplafonds voorzien van verlichtingsarmaturen en inbouwspots;
• huidige vloerbedekking;
• liftinstallatie en trappartijen;
• mechanische ventilatie met topkoeling;
• huidige luchtbehandelingsinstallatie (per ruimte regelbaar);
• huidige kabelgoten voorzien van elektra;
• huidige radiatoren;
• deels te openen ramen;
• gemeenschappelijke garderobe;
• gemeenschappelijke vergaderruimte;
• gemeenschappelijke pantry;
• gescheiden sanitaire groepen;
• medegebruik personenlift (8 personen/630 kg);
• huidige lamellen (waar aanwezig).
CIRCULAIR KANTOOR
De verhuurder hecht veel waarde op het circulaire gebruik van kantoren of werkplekken. Dit is onder andere terug te zien in de inrichting van de kantoorruimte. Zo is gekozen voor modulaire meubels, waarvan onderdelen kunnen worden vervangen en behouden. Verder worden de meubels hergebruikt in verschillende ruimtes waar alles nog mogelijk is. Daarnaast wordt gestreefd naar verlenging van de levensduur van de meubels, onder andere door reiniging of her-stofferen. Ook wordt om de paar jaar de kwaliteit van een bureaustoel gecontroleerd, op basis waarvan reparaties uitgevoerd kunnen worden om de levensduur te verlengen.
ENEGERGIELABEL
Het kantoorgebouw is voorzien van een Energielabel A.
AANVAARDING
Per direct.
SERVICEKOSTEN
In de All-in huurprijs zijn inbegrepen een voorschot servicekosten en de volgende leveringen en diensten:
• gas- en waterverbruik inclusief vastrecht;
• elektriciteitsverbruik inclusief vastrecht van het gehuurde;
• elektriciteitsverbruik inclusief vastrecht ten behoeve van de gebouwgebonden installaties en de gemeenschappelijke ruimten;
• onderhoud en/of periodieke controle van de personenlift inclusief telefoonkosten;
• schoonmaak algemene en gemeenschappelijke ruimten;
• periodieke glasbewassing buitenzijde;
• sanitaire benodigdheden;
• onderhoud groenvoorziening;
• onderhoud en/of periodieke controle brandbeveiliging;
• gasten WiFi;
• vuilafvoer;
• onderhoud en/of periodieke controle van de CV- en luchtbehandelingsinstallatie;
• 5% administratiekosten over bovenstaande leveringen en diensten.
Bovenstaande lijst is niet limitatief. verhuurder behoudt zich het recht voor genoemde leveringen en diensten en speciale voorzieningen uit te breiden of in te krimpen en het door huurder te betalen aandeel in de kosten dienovereenkomstig te wijzigen.
BTW-HEFFING
Uitgangspunt is BTW-belaste verhuur. Derhalve dient bovengenoemd bedrag te worden vermeerderd met het van toepassing zijnde BTW-percentage. Indien huurder niet aan het 90% criterium voldoet, is er van rechtswege sprake van omzetbelasting vrijgestelde verhuur. Alsdan wordt de overeengekomen kale huurprijs, exclusief omzetbelasting, zodanig verhoogd dat het voor verhuurder ontstane nadeel wordt gecompenseerd.
HUURTERMIJN
Flexibele huurtermijnen vanaf 1 (één) jaar zijn bespreekbaar.
HUURBETALING
De huur en de vaste servicekosten, te vermeerderen met omzetbelasting, per maand vooruit.
HUURPRIJSHERZIENING
Jaarlijks, voor het eerst 1 (één) jaar na huuringangsdatum, op basis van de wijziging van het maandprijsindexcijfer volgens het consumenten-prijsindexcijfer (CPI), reeks voor alle huishoudens (2015 = 100), gepubliceerd door het Centraal Bureau voor de Statistiek (CBS).
HUUROVEREENKOMST
De op te stellen huurovereenkomst is conform de overeenkomst die door de Raad voor Onroerende Zaken in februari 2015 is vastgesteld en zoals gehanteerd wordt door de Nederlandse Vereniging van Makelaars NVM met de bijbehorende Algemene Bepalingen.
ZEKERHEIDSSTELLING
Een bankgarantie, model ROZ, of waarborgsom, ter grootte van drie maanden huurpenningen en servicekosten, te vermeerderen met omzetbelasting.
Het betreft een representatief en modern kantoorgebouw op een zichtlocatie aan de rijksweg A1 nabij knooppunt Hoevelaken. Het gebouw is de middelste van een drietal identieke kantoorgebouwen.
De business units in Hub House Hoevelaken zijn beschikbaar vanaf 35 m2 v.v.o. welke gelegen zijn op de 1e verdieping. Hub House Hoevelaken is voorzien van gemeenschappelijke faciliteiten zoals een vergader- en presentatieruimte, lunchruimte en sportruimte.
Het kantoorgebouw is gelegen op het bedrijventerrein Horstbeek. In de nabijheid zijn diverse gerenommeerde (inter-)nationale organisaties gevestigd, waaronder, Euretco, GE Healthcare, De Bubbelkoning en Yourizon B.V.
BEREIKBAARHEID
Eigen vervoer:
De bereikbaarheid van het bedrijventerrein Horstbeek is zonder meer goed te noemen. De op- en afrit nummer 14 “Hoevelaken” biedt in circa 5 autominuten afstand een perfecte ontsluiting op de rijksweg A1. Hierdoor is een uitstekende verbinding in de richting van de rijkswegen A1, A27, A28 en A30 gewaarborgd.
Openbaar vervoer:
Vanaf het kantoorgebouw is het treinstation Hoevelaken in circa 10 minuten lopen bereikbaar. Vanaf dit treinstation vertrekken op regelmatige basis treinen in de richting van Amersfoort, Barneveld-Zuid en Ede-Wageningen.
VLOEROPPERVLAK
Voor de verhuur is totaal beschikbaar circa 681,4 m² v.v.o. kantoorruimte verdeeld als volgt:
Unit | Oppervlakte in m2 v.v.o. | All-in huurprijs per maand | Beschikbaarheid
1 + 2 | circa 235,36 m2 | € 3.769,00 | Per direct
4 | circa 35,19 m2 | € 629,00 | per direct
7 | circa 94,16 m2 | € 1.559,00 | Per direct
9 | circa 94,16 m2 | € 1.559,00 | Per direct
10 | circa 46,92 m2 | € 809,00 | Per direct
12 | circa 35,19 m2 | € 629,00 | Per direct
16 | circa 93,83 m2 | € 1.549,00 | Per direct
18 | circa 140,75 m2 | € 2.289,00 | Per direct
Huurprijzen per maand zijn inclusief de vaste servicekosten en inclusief internet, meubilair en te vermeerderen met omzetbelasting.
Genoemde metrages zijn inclusief een aandeel in de gemeenschappelijke ruimtes.
PARKEERGELEGENHEID
Het gebouw beschikt over 56 parkeerplaatsen. Parkeernorm 1:50.
De kosten voor 1 (één) parkeerplaats bedragen € 420,00 per jaar, te vermeerderen met omzetbelasting.
OPLEVERINGSNIVEAU
De kantoorruimte wordt opgeleverd met de volgende voorzieningen:
• (medegebruik) entree voorzien van een ontvangstruimte;
• gedeelde glasvezel internet/wifi verbinding op basis van 100/100mbps;
• elektrische zit- en sta werkplekken (bureau en bureaustoelen);
• onbeperkt gebruik verse biologische bonenkoffie en thee;
• huidige systeemplafonds voorzien van verlichtingsarmaturen en inbouwspots;
• huidige vloerbedekking;
• liftinstallatie en trappartijen;
• mechanische ventilatie met topkoeling;
• huidige luchtbehandelingsinstallatie (per ruimte regelbaar);
• huidige kabelgoten voorzien van elektra;
• huidige radiatoren;
• deels te openen ramen;
• gemeenschappelijke garderobe;
• gemeenschappelijke vergaderruimte;
• gemeenschappelijke pantry;
• gescheiden sanitaire groepen;
• medegebruik personenlift (8 personen/630 kg);
• huidige lamellen (waar aanwezig).
CIRCULAIR KANTOOR
De verhuurder hecht veel waarde op het circulaire gebruik van kantoren of werkplekken. Dit is onder andere terug te zien in de inrichting van de kantoorruimte. Zo is gekozen voor modulaire meubels, waarvan onderdelen kunnen worden vervangen en behouden. Verder worden de meubels hergebruikt in verschillende ruimtes waar alles nog mogelijk is. Daarnaast wordt gestreefd naar verlenging van de levensduur van de meubels, onder andere door reiniging of her-stofferen. Ook wordt om de paar jaar de kwaliteit van een bureaustoel gecontroleerd, op basis waarvan reparaties uitgevoerd kunnen worden om de levensduur te verlengen.
ENEGERGIELABEL
Het kantoorgebouw is voorzien van een Energielabel A.
AANVAARDING
Per direct.
SERVICEKOSTEN
In de All-in huurprijs zijn inbegrepen een voorschot servicekosten en de volgende leveringen en diensten:
• gas- en waterverbruik inclusief vastrecht;
• elektriciteitsverbruik inclusief vastrecht van het gehuurde;
• elektriciteitsverbruik inclusief vastrecht ten behoeve van de gebouwgebonden installaties en de gemeenschappelijke ruimten;
• onderhoud en/of periodieke controle van de personenlift inclusief telefoonkosten;
• schoonmaak algemene en gemeenschappelijke ruimten;
• periodieke glasbewassing buitenzijde;
• sanitaire benodigdheden;
• onderhoud groenvoorziening;
• onderhoud en/of periodieke controle brandbeveiliging;
• gasten WiFi;
• vuilafvoer;
• onderhoud en/of periodieke controle van de CV- en luchtbehandelingsinstallatie;
• 5% administratiekosten over bovenstaande leveringen en diensten.
Bovenstaande lijst is niet limitatief. verhuurder behoudt zich het recht voor genoemde leveringen en diensten en speciale voorzieningen uit te breiden of in te krimpen en het door huurder te betalen aandeel in de kosten dienovereenkomstig te wijzigen.
BTW-HEFFING
Uitgangspunt is BTW-belaste verhuur. Derhalve dient bovengenoemd bedrag te worden vermeerderd met het van toepassing zijnde BTW-percentage. Indien huurder niet aan het 90% criterium voldoet, is er van rechtswege sprake van omzetbelasting vrijgestelde verhuur. Alsdan wordt de overeengekomen kale huurprijs, exclusief omzetbelasting, zodanig verhoogd dat het voor verhuurder ontstane nadeel wordt gecompenseerd.
HUURTERMIJN
Flexibele huurtermijnen vanaf 1 (één) jaar zijn bespreekbaar.
HUURBETALING
De huur en de vaste servicekosten, te vermeerderen met omzetbelasting, per maand vooruit.
HUURPRIJSHERZIENING
Jaarlijks, voor het eerst 1 (één) jaar na huuringangsdatum, op basis van de wijziging van het maandprijsindexcijfer volgens het consumenten-prijsindexcijfer (CPI), reeks voor alle huishoudens (2015 = 100), gepubliceerd door het Centraal Bureau voor de Statistiek (CBS).
HUUROVEREENKOMST
De op te stellen huurovereenkomst is conform de overeenkomst die door de Raad voor Onroerende Zaken in februari 2015 is vastgesteld en zoals gehanteerd wordt door de Nederlandse Vereniging van Makelaars NVM met de bijbehorende Algemene Bepalingen.
ZEKERHEIDSSTELLING
Een bankgarantie, model ROZ, of waarborgsom, ter grootte van drie maanden huurpenningen en servicekosten, te vermeerderen met omzetbelasting.
Kaart
Kaart laden...
Kadastrale grens
Bebouwing
Reistijd
Krijg inzicht in de bereikbaarheid van dit object vanuit bijvoorbeeld een openbaar vervoer station of vanuit een adres.