Wagenaarstraat 1 4331 CX Middelburg
Huurprijs op aanvraag
Omschrijving
Sinke Komejan Bedrijfsmakelaars mag u namens haar opdrachtgever een prachtig statig kantoor-praktijkgebouw van ca. 975 m2 VVO in de stadskern van Middelburg te huur aanbieden.
Het object, dat gelegen is aan de Wagenaarstraat 1, heeft tot voor kort de dienst gedaan als kantoorlocatie van een gerenommeerd notariskantoor. In verband met verhuizing is dit prachtige object voor de verhuur beschikbaar gekomen. Het gehele kantoor-praktijkgebouw is ca. 975 m2 VVO groot. De metrages zijn verdeeld over 4 bouwlagen. Aan de achterzijde is een buitenplaats van ca. 530 m2 gesitueerd. Deze buitenplaats biedt ruimte voor ca. 14 parkeergelegenheden op eigen terrein.
De eerste bouwlaag is het souterrain. Het oppervlakte van deze bouwlaag is ca. 163 m2 VVO groot. In het verleden heeft het souterrain de dienst gedaan als opslagruimte. Aan de voorzijde van het pand is een (buiten)trap gesitueerd. Deze trap geeft toegang tot het entree. Gemakshalve wordt deze bouwlaag ‘begane grond’ genoemd. Deze verdieping is ca. 307 m2 VVO groot en verkeert in nette staat van onderhoud. Diverse authentieke ornamenten en historische schilderingen geven deze bouwlaag een statige en indrukwekkende uitstraling. Middels een glazen tussenportaal wordt toegang verkregen tot de centrale aankomsthal. De hal biedt toegang tot 6 kantoor-praktijkruimtes, de receptie, diverse toiletvoorzieningen, een lift en de trapopgang naar de 1e verdieping.
De 1e verdieping heeft een oppervlakte van ca. 285 m2 VVO en is onderverdeeld in ca. 9 kantoorruimtes. Op deze verdieping zijn eveneens twee toiletgroepen gesitueerd. De laatste en vierde bouwlaag is de bereiken middels een tweede trapopgang. Op deze 2e verdieping zijn nog enkele kantoorruimtes, twee toiletvoorzieningen, een opslagruimte van 80 m2 VVO en de cv-opstelling gesitueerd.
Samenvattend is deze locatie uitermate geschikt voor bedrijven en instellingen die op zoek zijn naar een unieke kantoor-praktijklocatie met veel allure en een prachtige statige uitstraling.
In het kort:
- Wagenaarstraat 1, 4331 CX Middelburg
- Een statig kantoorpand van ca. 975 m2 VVO, verdeeld over 4 bouwlagen
- 14 parkeerplaatsen op een eigen terrein
- Huurprijs op aanvraag
- Deelverhuur in overleg
Historie:
Het pand bestaat uit ca. 975 m2 kantoorruimte in een voormalig patriciërs huis aan de Wagenaarstraat, een van de oudste straten van Middelburg. Het gebouw werd in 1735 oorspronkelijk gebouwd als woonhuis en was vanaf 1888 tot 1972 in handen van het Zeeuws Genootschap der Wetenschappen. Het werd verbouwd tot vergadergebouw en museum. De laatste jaren is het gebouw in gebruik geweest als kantoorruimte.
Vanaf de straat is goed te zien dat de 18de-eeuwse voorbouw als een los blok voor het middeleeuwse huis staat. Aan de linkerzijde van het pand staat de voormalige bibliotheek van het Zeeuws Genootschap. Deze bibliotheek maakt geen deel meer uit van het aangeboden gebouw. In de achtervleugel zijn twee kamers bewaard gebleven met stucplafonds van omstreeks 1710. Deze zijn in de trant van Daniel Marot met fijn uitgevoerde bloemslingers, vogels en spelende putti en deze behoren tot de mooiste van ons land.
In 1888 werd een van de twee nog overgebleven historische houten gevels die Middelburg nog rijk is geplaatst tegen de zijgevel van het gebouw. Deze historische houten topgevel was afkomstig van een huis aan de Lange Delft en is nog steeds aanwezig. Het gebouw is uitstekend geschikt voor kantoorruimte, mede vanwege de representatieve uitstraling van zowel de buitenzijde als het interieur en vanwege de aanwezigheid van een eigen parkeerterrein grenzend direct aan de achterzijde van het gebouw.
Locatie:
Middelburg is de hoofdstad van Zeeland en heeft ruim 48.000 inwoners, daarnaast is het de vijfde monumentenstad van Nederland. Het pand is prachtig gelegen in het historische stadscentrum en in het kernwinkelgebied. Een levendige binnenstad met meer dan 1.200 monumenten en talrijke winkels, terrasjes, cafés, restaurant en culturele voorzieningen. De bereikbaarheid met het openbaar vervoer is uitstekend en er zijn voldoende (betaalde) parkeermogelijkheden in de omgeving.
Huurprijs:
Op aanvraag.
Nutsvoorzieningen:
De kosten voor gas, water en elektra komen op naam en voor rekening van huurder. De huurder is zelf verantwoordelijk voor het afsluiten hiervan.
Opleveringsniveau:
Verhuurder treedt graag in nader overleg over het gewenste opleveringsniveau.
Parkeren:
Aan de achterzijde van het pand zijn 14 parkeerplaatsen op eigen terrein gesitueerd. Aan de achterzijde bevindt zich eveneens een ruime openbare parkeermogelijkheid waar tegen betaling of met vergunning kan worden geparkeerd.
Afmetingen:
- Souterrain: ca. 163 m2 VVO
- Begane grond: ca. 307 m2 VVO
- 1e verdieping: ca. 285 m2 VVO
- 2e verdieping: ca. 220 m2 VVO
- Totaal: ca. 975 m2 VVO
Indeling:
Souterrain:
Het souterrain is onderverdeeld in meerdere ruimten alsmede een toiletruimte. Het souterrain is bereikbaar via een tweetal entrees aan de voorzijde van het gebouw alsmede middels een inpandige entree via het trappenhuis.
Begane grond:
De begane grond is als volgt ingedeeld; entree via bordestrap aan de voorzijde van het gebouw, royale hal met glazen tochtportaal en toegang tot de lift, toiletgroep, ruime receptie, eenvoudige pantry, achteringang vanaf het achtergelegen parkeerterrein, zes vertrekken deels voorzien van fraaie stucplafonds en marmeren schouwen waarvan enkele zijn voorzien van historische schilderingen erboven.
1e verdieping:
De ruimtes op de 1e verdieping is bereikbaar via het imposante trappenhuis met negen vertrekken, een toiletgroep en toegang tot de lift.
2e verdieping:
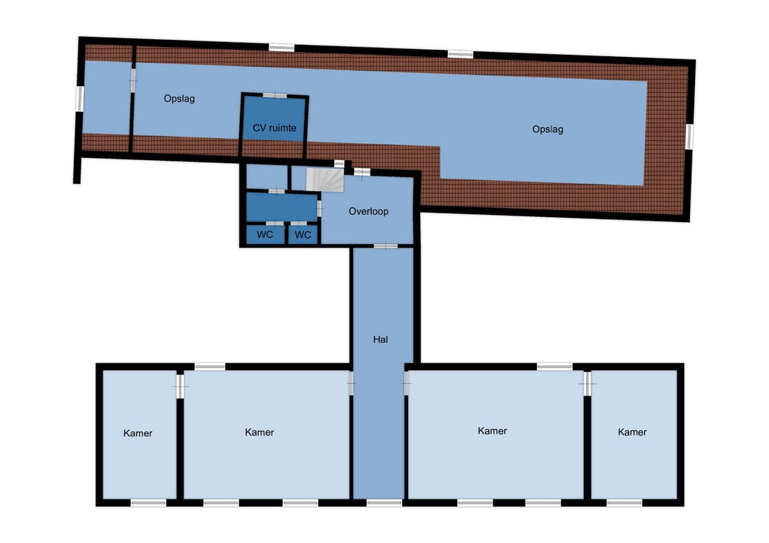
De kantoorruimtes op de 2e verdieping is bereikbaar via een eenvoudige trap met een overloop, toiletgroep, gang met toegang tot vier vertrekken en een entree naar een ruime zolderruimte aan de achterzijde van het gebouw. Er is tevens een toegang via een luik en losse trap naar een bergvliering aan de voorzijde van het gebouw.
Bestemming:
Het object ligt binnen het bestemmingsplan ‘Binnenstad’ dat onherroepelijk is vastgesteld op 15-12-2015 en heeft de bestemming ‘Gemengd-9’. Deze gronden zijn bestemd onder andere bestemd voor kantoren en maatschappelijke doeleinden.
Energielabel:
Geen energielabelverplichting, omdat het object is een rijksmonument betreft. Het object staat in het monumentenregister geregistreerd onder nummer: 29684.
Kenmerken overeenkomst:
In geval u verdere interesse heeft en er uiteindelijk een overeenkomst tot stand komt, gelden de navolgende bepalingen:
Huurprijsaanpassing:
Jaarlijks, voor het eerst 1 jaar na ingangsdatum huurovereenkomst, op basis van de wijziging van het maandprijsindexcijfer volgens de Consumentenprijsindex (CPI), reeks, CPI- Alle Huishoudens (2015= 100) zoals gepubliceerd door het Centraal Bureau voor de Statistiek (CBS).
Omzetbelasting:
Verhuurder wenst te opteren voor BTW belaste huur en verhuur. Ingeval huurder niet aan de gestelde criteria voor belaste verhuur voldoet, wordt de huurprijs verhoogd ter compensatie van de gevolgen van het vervallen van de mogelijkheid om te opteren voor de BTW belaste huur.
Aanvaarding:
In overleg.
Huurtermijn:
In nader overleg overeen te komen. De genoemde huurprijs is op basis van een langjarige huurovereenkomst.
Opzegtermijn:
In overleg.
Huurbetaling:
De huurpenningen dienen te worden voldaan bij vooruitbetaling per maand of kwartaal.
Waarborgsom:
Een waarborgsom ter grootte van een betalingsverplichting van 2 maanden huur.
Huurovereenkomst:
Huurovereenkomst volgens ROZ-Model.
Algemeen:
Deze informatie is met zorg samengesteld. Voor de juistheid daarvan kan echter geen aansprakelijkheid worden aanvaard, noch kan aan de vermelde gegevens enig recht worden ontleend. Alle opgegeven afmetingen zijn indicatief. Deze informatie dient slechts als uitnodiging om in onderhandeling te treden en kan derhalve niet kan worden beschouwd als een aanbod of offerte.
Het object, dat gelegen is aan de Wagenaarstraat 1, heeft tot voor kort de dienst gedaan als kantoorlocatie van een gerenommeerd notariskantoor. In verband met verhuizing is dit prachtige object voor de verhuur beschikbaar gekomen. Het gehele kantoor-praktijkgebouw is ca. 975 m2 VVO groot. De metrages zijn verdeeld over 4 bouwlagen. Aan de achterzijde is een buitenplaats van ca. 530 m2 gesitueerd. Deze buitenplaats biedt ruimte voor ca. 14 parkeergelegenheden op eigen terrein.
De eerste bouwlaag is het souterrain. Het oppervlakte van deze bouwlaag is ca. 163 m2 VVO groot. In het verleden heeft het souterrain de dienst gedaan als opslagruimte. Aan de voorzijde van het pand is een (buiten)trap gesitueerd. Deze trap geeft toegang tot het entree. Gemakshalve wordt deze bouwlaag ‘begane grond’ genoemd. Deze verdieping is ca. 307 m2 VVO groot en verkeert in nette staat van onderhoud. Diverse authentieke ornamenten en historische schilderingen geven deze bouwlaag een statige en indrukwekkende uitstraling. Middels een glazen tussenportaal wordt toegang verkregen tot de centrale aankomsthal. De hal biedt toegang tot 6 kantoor-praktijkruimtes, de receptie, diverse toiletvoorzieningen, een lift en de trapopgang naar de 1e verdieping.
De 1e verdieping heeft een oppervlakte van ca. 285 m2 VVO en is onderverdeeld in ca. 9 kantoorruimtes. Op deze verdieping zijn eveneens twee toiletgroepen gesitueerd. De laatste en vierde bouwlaag is de bereiken middels een tweede trapopgang. Op deze 2e verdieping zijn nog enkele kantoorruimtes, twee toiletvoorzieningen, een opslagruimte van 80 m2 VVO en de cv-opstelling gesitueerd.
Samenvattend is deze locatie uitermate geschikt voor bedrijven en instellingen die op zoek zijn naar een unieke kantoor-praktijklocatie met veel allure en een prachtige statige uitstraling.
In het kort:
- Wagenaarstraat 1, 4331 CX Middelburg
- Een statig kantoorpand van ca. 975 m2 VVO, verdeeld over 4 bouwlagen
- 14 parkeerplaatsen op een eigen terrein
- Huurprijs op aanvraag
- Deelverhuur in overleg
Historie:
Het pand bestaat uit ca. 975 m2 kantoorruimte in een voormalig patriciërs huis aan de Wagenaarstraat, een van de oudste straten van Middelburg. Het gebouw werd in 1735 oorspronkelijk gebouwd als woonhuis en was vanaf 1888 tot 1972 in handen van het Zeeuws Genootschap der Wetenschappen. Het werd verbouwd tot vergadergebouw en museum. De laatste jaren is het gebouw in gebruik geweest als kantoorruimte.
Vanaf de straat is goed te zien dat de 18de-eeuwse voorbouw als een los blok voor het middeleeuwse huis staat. Aan de linkerzijde van het pand staat de voormalige bibliotheek van het Zeeuws Genootschap. Deze bibliotheek maakt geen deel meer uit van het aangeboden gebouw. In de achtervleugel zijn twee kamers bewaard gebleven met stucplafonds van omstreeks 1710. Deze zijn in de trant van Daniel Marot met fijn uitgevoerde bloemslingers, vogels en spelende putti en deze behoren tot de mooiste van ons land.
In 1888 werd een van de twee nog overgebleven historische houten gevels die Middelburg nog rijk is geplaatst tegen de zijgevel van het gebouw. Deze historische houten topgevel was afkomstig van een huis aan de Lange Delft en is nog steeds aanwezig. Het gebouw is uitstekend geschikt voor kantoorruimte, mede vanwege de representatieve uitstraling van zowel de buitenzijde als het interieur en vanwege de aanwezigheid van een eigen parkeerterrein grenzend direct aan de achterzijde van het gebouw.
Locatie:
Middelburg is de hoofdstad van Zeeland en heeft ruim 48.000 inwoners, daarnaast is het de vijfde monumentenstad van Nederland. Het pand is prachtig gelegen in het historische stadscentrum en in het kernwinkelgebied. Een levendige binnenstad met meer dan 1.200 monumenten en talrijke winkels, terrasjes, cafés, restaurant en culturele voorzieningen. De bereikbaarheid met het openbaar vervoer is uitstekend en er zijn voldoende (betaalde) parkeermogelijkheden in de omgeving.
Huurprijs:
Op aanvraag.
Nutsvoorzieningen:
De kosten voor gas, water en elektra komen op naam en voor rekening van huurder. De huurder is zelf verantwoordelijk voor het afsluiten hiervan.
Opleveringsniveau:
Verhuurder treedt graag in nader overleg over het gewenste opleveringsniveau.
Parkeren:
Aan de achterzijde van het pand zijn 14 parkeerplaatsen op eigen terrein gesitueerd. Aan de achterzijde bevindt zich eveneens een ruime openbare parkeermogelijkheid waar tegen betaling of met vergunning kan worden geparkeerd.
Afmetingen:
- Souterrain: ca. 163 m2 VVO
- Begane grond: ca. 307 m2 VVO
- 1e verdieping: ca. 285 m2 VVO
- 2e verdieping: ca. 220 m2 VVO
- Totaal: ca. 975 m2 VVO
Indeling:
Souterrain:
Het souterrain is onderverdeeld in meerdere ruimten alsmede een toiletruimte. Het souterrain is bereikbaar via een tweetal entrees aan de voorzijde van het gebouw alsmede middels een inpandige entree via het trappenhuis.
Begane grond:
De begane grond is als volgt ingedeeld; entree via bordestrap aan de voorzijde van het gebouw, royale hal met glazen tochtportaal en toegang tot de lift, toiletgroep, ruime receptie, eenvoudige pantry, achteringang vanaf het achtergelegen parkeerterrein, zes vertrekken deels voorzien van fraaie stucplafonds en marmeren schouwen waarvan enkele zijn voorzien van historische schilderingen erboven.
1e verdieping:
De ruimtes op de 1e verdieping is bereikbaar via het imposante trappenhuis met negen vertrekken, een toiletgroep en toegang tot de lift.
2e verdieping:
De kantoorruimtes op de 2e verdieping is bereikbaar via een eenvoudige trap met een overloop, toiletgroep, gang met toegang tot vier vertrekken en een entree naar een ruime zolderruimte aan de achterzijde van het gebouw. Er is tevens een toegang via een luik en losse trap naar een bergvliering aan de voorzijde van het gebouw.
Bestemming:
Het object ligt binnen het bestemmingsplan ‘Binnenstad’ dat onherroepelijk is vastgesteld op 15-12-2015 en heeft de bestemming ‘Gemengd-9’. Deze gronden zijn bestemd onder andere bestemd voor kantoren en maatschappelijke doeleinden.
Energielabel:
Geen energielabelverplichting, omdat het object is een rijksmonument betreft. Het object staat in het monumentenregister geregistreerd onder nummer: 29684.
Kenmerken overeenkomst:
In geval u verdere interesse heeft en er uiteindelijk een overeenkomst tot stand komt, gelden de navolgende bepalingen:
Huurprijsaanpassing:
Jaarlijks, voor het eerst 1 jaar na ingangsdatum huurovereenkomst, op basis van de wijziging van het maandprijsindexcijfer volgens de Consumentenprijsindex (CPI), reeks, CPI- Alle Huishoudens (2015= 100) zoals gepubliceerd door het Centraal Bureau voor de Statistiek (CBS).
Omzetbelasting:
Verhuurder wenst te opteren voor BTW belaste huur en verhuur. Ingeval huurder niet aan de gestelde criteria voor belaste verhuur voldoet, wordt de huurprijs verhoogd ter compensatie van de gevolgen van het vervallen van de mogelijkheid om te opteren voor de BTW belaste huur.
Aanvaarding:
In overleg.
Huurtermijn:
In nader overleg overeen te komen. De genoemde huurprijs is op basis van een langjarige huurovereenkomst.
Opzegtermijn:
In overleg.
Huurbetaling:
De huurpenningen dienen te worden voldaan bij vooruitbetaling per maand of kwartaal.
Waarborgsom:
Een waarborgsom ter grootte van een betalingsverplichting van 2 maanden huur.
Huurovereenkomst:
Huurovereenkomst volgens ROZ-Model.
Algemeen:
Deze informatie is met zorg samengesteld. Voor de juistheid daarvan kan echter geen aansprakelijkheid worden aanvaard, noch kan aan de vermelde gegevens enig recht worden ontleend. Alle opgegeven afmetingen zijn indicatief. Deze informatie dient slechts als uitnodiging om in onderhandeling te treden en kan derhalve niet kan worden beschouwd als een aanbod of offerte.
Kenmerken
Overdracht
- Huurprijs
- Huurprijs op aanvraag
- Servicekosten
- Geen servicekosten bekend
- Aangeboden sinds
-
- Status
- Beschikbaar
- Aanvaarding
- In overleg
Bouw
- Hoofdfunctie
- Kantoor
- Soort bouw
- Bestaande bouw
- Bouwjaar
- 1735
Oppervlakten
- Oppervlakte
- 975 m²
- Perceel
- 1.055 m²
Indeling
- Aantal bouwlagen
- 4 bouwlagen
- Voorzieningen
- Liften, te openen ramen, toilet, pantry, verwarming en kamerindeling
Energie
- Energielabel
- Niet beschikbaar
Omgeving
- Ligging
- In woonwijk
- Bereikbaarheid
- Bushalte op 1500 m tot 2000 m, NS Intercitystation op 1500 m tot 2000 m en snelwegafrit op 1000 m tot 1500 m
Parkeergelegenheid
- Parkeerplaatsen
- 14 niet-overdekte parkeerplaatsen
Foto's
Plattegrond
Begane grond
1e verdieping
2e verdieping
3e verdieping