Omschrijving
Vrijstaand kantoorgebouw van ca. 2.276 m², verdeeld over vijf verdiepingen, gelegen op het hoogwaardige RichPort Park in Schiphol-Rijk.
Het kantoorgebouw is het enig beschikbare single-tenantgebouw van deze grootte in Schiphol-Rijk.
Of u nu één verdieping huurt of het hele gebouw: Le Carré A staat garant voor maatwerk. De kantoorruimte wordt opgeleverd in de huidige staat, maar is ook volledig naar wens van een single-tenant huurder te renoveren en in te richten. Een echte “tailor-made solution”, waar de verhuurder ruime ervaring mee heeft.
Duurzaam en klaar voor de toekomst: met energielabel A+ voldoet het gebouw aan de eisen van moderne, energiezuinige gebruikers.
Huurders van Le Carré A kunnen gebruik maken van het volledig uitgeruste vergadercentrum in het naastgelegen gebouw Le Carré B, inclusief bemande receptie en vier moderne vergaderrruimten die flexibel te boeken zijn.
RichPort Park Schiphol-Rijk is een kantorenpark in een zeer verzorgde omgeving met ruim opgezette waterpartijen en bijbehorende groenvoorzieningen. In het park bevinden zich twee hotels, waaronder het Radisson Blu hotel met onder meer een bar/restaurant. De hotels hebben shuttlebusdiensten van- en naar de Luchthaven Schiphol. Tevens heeft het bedrijf CompaNanny een vestiging met een kinderdagverblijf en buitenschoolse opvang (compananny.nl). Het park heeft daarnaast een parkmanagement-organisatie. Kenmerkend hiervoor is een gecoördineerd, gezamenlijk gebruik van diverse faciliteiten op een bedrijventerrein. Diensten als het onderhoud van de openbare- en private terreinen, de groen- en watervoorzieningen en beveiliging worden door het parkmanagement verzorgd.
Ligging/bereikbaarheid
Het kantorenpark ligt aan de voet van de afrit van de Rijksweg A4/A44/A5 richting Amsterdam, Haarlem, Den Haag en Rotterdam aan de N201. Daarnaast is de locatie eenvoudig te bereiken vanaf de A9 en vanuit Amstelveen. De Luchthaven Schiphol en het treinstation Hoofddorp zijn zowel met de auto als met het openbaar vervoer binnen enkele minuten bereikbaar. Het openbaar vervoer van- en naar RichPort Park Schiphol-Rijk wordt verzorgd door Connexxion en R-Net. Aan de entree van het park (kruising Fokkerweg/Kruisweg), op steenworp afstand van de kantoren, ligt “Knooppunt Schiphol Zuid” waar in de spits iedere 7 minuten en na de spits iedere 15 minuten een bus stopt, te weten Connexxion Cirkellijn 180/181en R-Net buslijn 340 en van waaruit via (deels) autonome busbanen de hele regio Schiphol, Amsterdam en Hoofddorp bereikbaar is. Nadere informatie treft u aan op connexxion.nl.
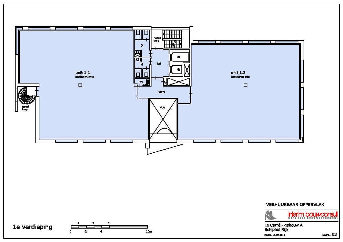
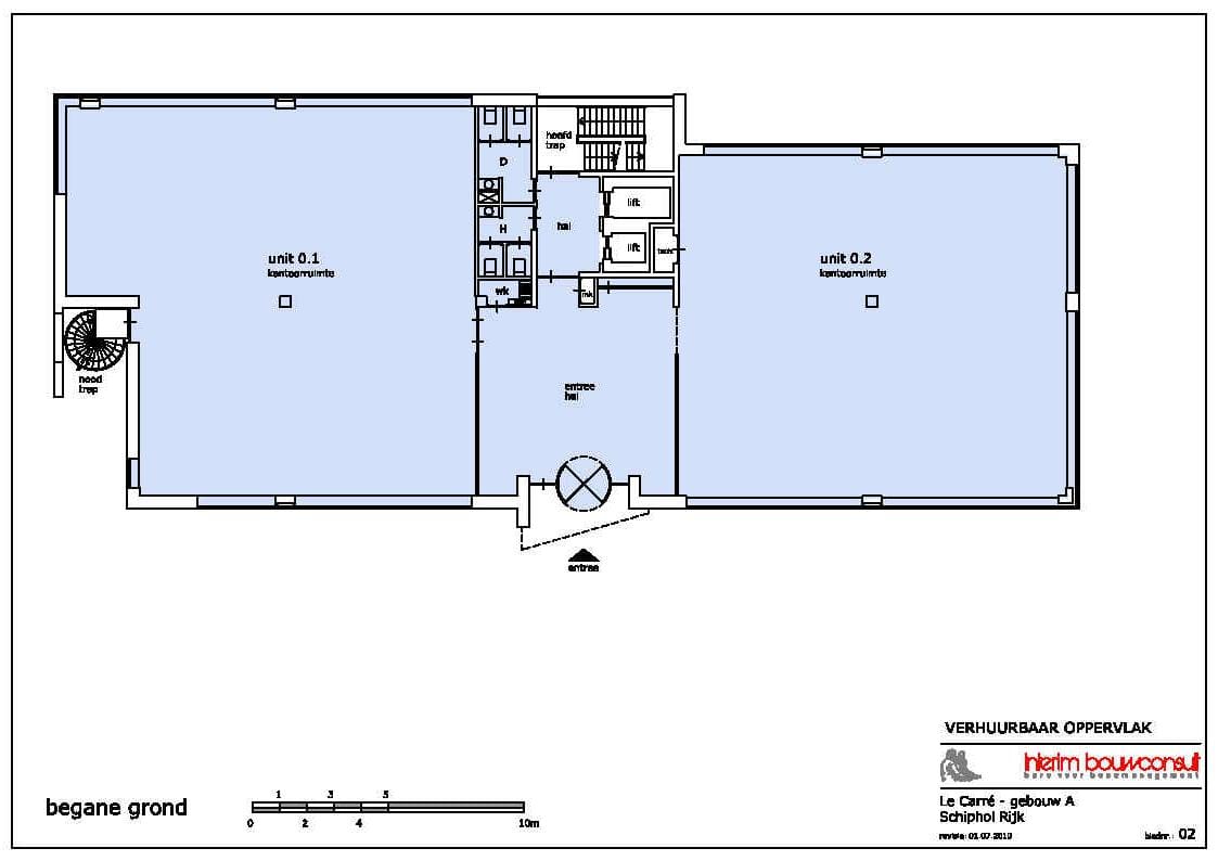
Vloeroppervlak
Het gebouw heeft een totaal vloeroppervlak van ca. 2.276 m², als volgt verdeeld:
begane grond : ca. 477 m²;
1e verdieping : ca. 452 m²;
2e verdieping : ca. 474 m²;
3e verdieping : ca. 474 m2;
4e verdieping : ca. 399 m².
Parkeren
Bij het kantoorgebouw zijn in totaal 61 parkeerplaatsen beschikbaar, (alsmede twee plekken voor het opstellen van motoren), afgesloten door middel van slagbomen.
Er zijn momenteel 10 laadpalen voor algemeen gebruik aanwezig.
Opleveringsniveau
Het gebouw c.q. de kantoorruimte is onder meer voorzien van:
- ruime entree;
- twee gerenoveerde liften;
- te openen ramen;
- industrieel plafond voorzien van ledverlichting;
- mechanische ventilatie met topkoeling;
- twee sanitaire groepen per verdieping.
- automatische zonwering.
Het pand is momenteel voorzien van energielabel A+.
Verhuurder heeft recent investeringen gedaan in de installaties van het gebouw, waardoor het energielabel zal worden verbeterd, zij is momenteel in afwachting van dit nieuwe energielabel.
Het gebouw biedt de unieke kans om, samen met verhuurder, volledig naar wens van een huurder gerenoveerd/ingericht te worden. Een "tailormade solution" waar verhuurder recent goede ervaring mee heeft opgedaan.
Huurprijs
De huurprijs voor de kantoorruimte bedraagt € 135,-- per m² per jaar te vermeerderen met BTW en servicekosten.
De huurprijs voor de parkeerplaatsen bedraagt € 950,-- per plaats per jaar te vermeerderen met BTW.
Bij vaststelling van de huurprijs is uitgangspunt dat huurder het gehuurde voor ten minste het bij de wet vastgestelde of nader vast te stellen minimum percentage blijvend zal gebruiken voor prestaties die recht geven op aftrek van BTW, zodanig dat kan worden geopteerd voor een belaste (ver)huur.
Servicekosten
Het voorschot servicekosten bedraagt € 25,-- per m² per jaar te vermeerderen met BTW en het voorschot voor het energieverbruik bedraagt € 25,-- per m² per jaar te vermeerderen met BTW. Afrekening geschiedt jaarlijks op basis van de werkelijk gemaakte kosten.
Aanvaarding
Per direct.
Alle door BT Makelaars verstrekte informatie is met zorg samengesteld. Aan de juistheid van de vrijblijvend verstrekte informatie kunnen echter geen rechten worden ontleend.
Het kantoorgebouw is het enig beschikbare single-tenantgebouw van deze grootte in Schiphol-Rijk.
Of u nu één verdieping huurt of het hele gebouw: Le Carré A staat garant voor maatwerk. De kantoorruimte wordt opgeleverd in de huidige staat, maar is ook volledig naar wens van een single-tenant huurder te renoveren en in te richten. Een echte “tailor-made solution”, waar de verhuurder ruime ervaring mee heeft.
Duurzaam en klaar voor de toekomst: met energielabel A+ voldoet het gebouw aan de eisen van moderne, energiezuinige gebruikers.
Huurders van Le Carré A kunnen gebruik maken van het volledig uitgeruste vergadercentrum in het naastgelegen gebouw Le Carré B, inclusief bemande receptie en vier moderne vergaderrruimten die flexibel te boeken zijn.
RichPort Park Schiphol-Rijk is een kantorenpark in een zeer verzorgde omgeving met ruim opgezette waterpartijen en bijbehorende groenvoorzieningen. In het park bevinden zich twee hotels, waaronder het Radisson Blu hotel met onder meer een bar/restaurant. De hotels hebben shuttlebusdiensten van- en naar de Luchthaven Schiphol. Tevens heeft het bedrijf CompaNanny een vestiging met een kinderdagverblijf en buitenschoolse opvang (compananny.nl). Het park heeft daarnaast een parkmanagement-organisatie. Kenmerkend hiervoor is een gecoördineerd, gezamenlijk gebruik van diverse faciliteiten op een bedrijventerrein. Diensten als het onderhoud van de openbare- en private terreinen, de groen- en watervoorzieningen en beveiliging worden door het parkmanagement verzorgd.
Ligging/bereikbaarheid
Het kantorenpark ligt aan de voet van de afrit van de Rijksweg A4/A44/A5 richting Amsterdam, Haarlem, Den Haag en Rotterdam aan de N201. Daarnaast is de locatie eenvoudig te bereiken vanaf de A9 en vanuit Amstelveen. De Luchthaven Schiphol en het treinstation Hoofddorp zijn zowel met de auto als met het openbaar vervoer binnen enkele minuten bereikbaar. Het openbaar vervoer van- en naar RichPort Park Schiphol-Rijk wordt verzorgd door Connexxion en R-Net. Aan de entree van het park (kruising Fokkerweg/Kruisweg), op steenworp afstand van de kantoren, ligt “Knooppunt Schiphol Zuid” waar in de spits iedere 7 minuten en na de spits iedere 15 minuten een bus stopt, te weten Connexxion Cirkellijn 180/181en R-Net buslijn 340 en van waaruit via (deels) autonome busbanen de hele regio Schiphol, Amsterdam en Hoofddorp bereikbaar is. Nadere informatie treft u aan op connexxion.nl.
Vloeroppervlak
Het gebouw heeft een totaal vloeroppervlak van ca. 2.276 m², als volgt verdeeld:
begane grond : ca. 477 m²;
1e verdieping : ca. 452 m²;
2e verdieping : ca. 474 m²;
3e verdieping : ca. 474 m2;
4e verdieping : ca. 399 m².
Parkeren
Bij het kantoorgebouw zijn in totaal 61 parkeerplaatsen beschikbaar, (alsmede twee plekken voor het opstellen van motoren), afgesloten door middel van slagbomen.
Er zijn momenteel 10 laadpalen voor algemeen gebruik aanwezig.
Opleveringsniveau
Het gebouw c.q. de kantoorruimte is onder meer voorzien van:
- ruime entree;
- twee gerenoveerde liften;
- te openen ramen;
- industrieel plafond voorzien van ledverlichting;
- mechanische ventilatie met topkoeling;
- twee sanitaire groepen per verdieping.
- automatische zonwering.
Het pand is momenteel voorzien van energielabel A+.
Verhuurder heeft recent investeringen gedaan in de installaties van het gebouw, waardoor het energielabel zal worden verbeterd, zij is momenteel in afwachting van dit nieuwe energielabel.
Het gebouw biedt de unieke kans om, samen met verhuurder, volledig naar wens van een huurder gerenoveerd/ingericht te worden. Een "tailormade solution" waar verhuurder recent goede ervaring mee heeft opgedaan.
Huurprijs
De huurprijs voor de kantoorruimte bedraagt € 135,-- per m² per jaar te vermeerderen met BTW en servicekosten.
De huurprijs voor de parkeerplaatsen bedraagt € 950,-- per plaats per jaar te vermeerderen met BTW.
Bij vaststelling van de huurprijs is uitgangspunt dat huurder het gehuurde voor ten minste het bij de wet vastgestelde of nader vast te stellen minimum percentage blijvend zal gebruiken voor prestaties die recht geven op aftrek van BTW, zodanig dat kan worden geopteerd voor een belaste (ver)huur.
Servicekosten
Het voorschot servicekosten bedraagt € 25,-- per m² per jaar te vermeerderen met BTW en het voorschot voor het energieverbruik bedraagt € 25,-- per m² per jaar te vermeerderen met BTW. Afrekening geschiedt jaarlijks op basis van de werkelijk gemaakte kosten.
Aanvaarding
Per direct.
Alle door BT Makelaars verstrekte informatie is met zorg samengesteld. Aan de juistheid van de vrijblijvend verstrekte informatie kunnen echter geen rechten worden ontleend.
Kaart
Kaart laden...
Kadastrale grens
Bebouwing
Reistijd
Krijg inzicht in de bereikbaarheid van dit object vanuit bijvoorbeeld een openbaar vervoer station of vanuit een adres.