Verhuurgeschiedenis
- Aangeboden sinds
- 15 augustus 2025
- Verhuurdatum
- 15 oktober 2025
- Looptijd
- 2 maanden
Omschrijving
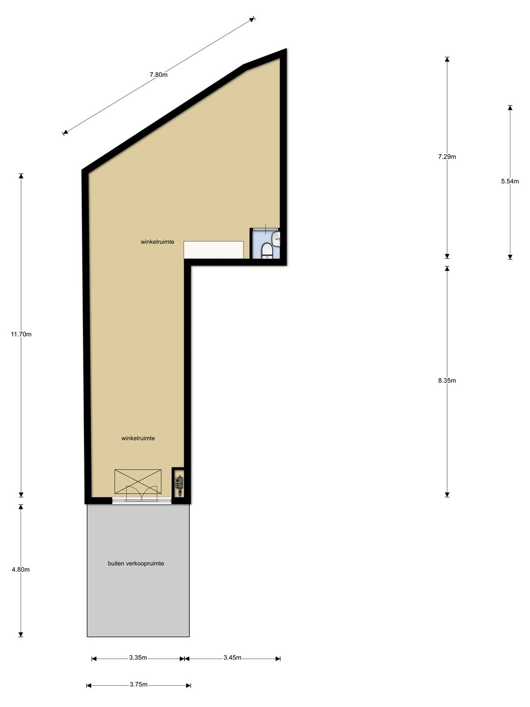
In het centrum van Zetten kleinschalig (65 m2) winkel/kantoor/praktijkruimte met parkeerplaats of verkoop buitenruimte voor de winkel, oplevering in overleg! Op een ideale locatie in het centrum van Zetten gelegen. Zeer druk passantengebied vlakbij de AH. De ruimte is voorzien van een pantry, airco, systeemplafond, vloerafwerking en toilet.
- Volledig geïsoleerd.
- Eigen nutsvoorzieningen, ook glasvezel aanwezig.
- Systeemplafond met verlichting aanwezig. Wandtoilet met fontein en kitchenette.
- Verkoopbuitenterrein of parkeerterrein voor de winkel/kantoor/praktijkruimte.
- Reacties graag via de email:
- Huurprijs indicatie € 750,- per maand (exclusief BTW en afhankelijk van de duur van het contract).
- 1 Eigen parkeerplaats/buitenverkoopruimte voor de winkel van ca. 18 m2.
Wilt u meer info bel ons gerust op telefoonnummer 0488- 42 00 44.
- Volledig geïsoleerd.
- Eigen nutsvoorzieningen, ook glasvezel aanwezig.
- Systeemplafond met verlichting aanwezig. Wandtoilet met fontein en kitchenette.
- Verkoopbuitenterrein of parkeerterrein voor de winkel/kantoor/praktijkruimte.
- Reacties graag via de email:
- Huurprijs indicatie € 750,- per maand (exclusief BTW en afhankelijk van de duur van het contract).
- 1 Eigen parkeerplaats/buitenverkoopruimte voor de winkel van ca. 18 m2.
Wilt u meer info bel ons gerust op telefoonnummer 0488- 42 00 44.
Betrokken makelaar
Kaart
Kaart laden...
Kadastrale grens
Bebouwing
Reistijd
Krijg inzicht in de bereikbaarheid van dit object vanuit bijvoorbeeld een openbaar vervoer station of vanuit een adres.