Zeevangsdijkje 3 1135 GR Edam
- Verkocht
€ 629.500 k.k.
Omschrijving
Op een prachtige locatie aan de buitenrand van bedrijventerrein Oosthuizerweg in Edam is dit markante vrijstaande kantoorpand in verkoop gekomen.
Een instap-klaar kantoor-/bedrijfspand met een moderne uitstraling en een prachtig vrij uitzicht over de Purmer Ringvaart en de weilanden van de Purmer.
Op speelse wijze en in fraaie vormgeving is gebruik gemaakt van de lichttoetreding met een centrale open trappartij, vide en veel raampartijen rondom. Een bijzonder fijne werkplek!
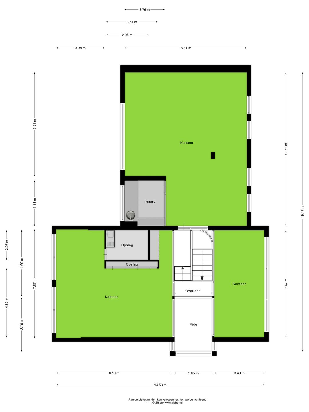
De verhuurbare vloeroppervlaktes (v.v.o., binnenwerkse maten) bedragen ca.:
Begane grond 193 m2.
Verdieping 190 m2.
Een deel van de begane grond van ca. 80 m2 kan ook als bedrijfsruimte worden gebruikt. De hoogte daarvan bedraagt 3.50 meter.
Het perceel grond meet 775 m2 eigen grond, waarop tevens 8 eigen parkeerplaatsen zijn gesitueerd.
Rondom is een mooie en onderhoudsvriendelijke tuin aangelegd.
Het pand is zowel vanaf de Zeevangsdijk aan de voorzijde, als vanaf de Ambachtsstraat aan de achterzijde bereikbaar.
De indeling is als volgt:
Begane grond: fraaie zij-entree naar de lichte hal met veel glaspartijen, vide en moderne stalen trappartij.
Aan de linkerzijde het receptiekantoor en centraal blok met pantry en sanitaire groep met dames- en herentoilet. Aan de rechterzijde een mooie spreek-/werkkamer en aan de achterzijde een royale werk-/kantoor- of opslagruimte, waarin tevens een sanitaire groep met toilet en douche, technische ruimte, serverkamer en een bergzolder.
1e Verdieping, waarbij de ruimtes via een stalen loopbrug met elkaar zijn verbonden, hetgeen een licht en ruimtelijk effect geeft:
mooie directie-/kantoorkamer, 2e kantoorkamer met koffie-corner en archief, alsmede de grote kantoorruimte inclusief kamer met keukenblad en afzuigkap.
Voorzieningen zijn onder meer: centrale verwarming (HR ketel uit 2023), alarminstallatie, airco in diverse ruimtes en aluminum ramen en kozijnen met isolatieglas. Bouwjaar 1991.
Het Energielabel is C.
Door de indeling is het ook prima geschikt als kantoor-verzamelgebouw!
De bestemming luidt: bedrijventerrein met functieaanduiding kantoor en bedrijf tot en met categorie 3.1.
De bijna complete kantoorinventaris kan worden overgenomen.
Aanvaarding eerste kwartaal 2026.
Wij nodigen u uit voor een bezichtiging.
Een instap-klaar kantoor-/bedrijfspand met een moderne uitstraling en een prachtig vrij uitzicht over de Purmer Ringvaart en de weilanden van de Purmer.
Op speelse wijze en in fraaie vormgeving is gebruik gemaakt van de lichttoetreding met een centrale open trappartij, vide en veel raampartijen rondom. Een bijzonder fijne werkplek!
De verhuurbare vloeroppervlaktes (v.v.o., binnenwerkse maten) bedragen ca.:
Begane grond 193 m2.
Verdieping 190 m2.
Een deel van de begane grond van ca. 80 m2 kan ook als bedrijfsruimte worden gebruikt. De hoogte daarvan bedraagt 3.50 meter.
Het perceel grond meet 775 m2 eigen grond, waarop tevens 8 eigen parkeerplaatsen zijn gesitueerd.
Rondom is een mooie en onderhoudsvriendelijke tuin aangelegd.
Het pand is zowel vanaf de Zeevangsdijk aan de voorzijde, als vanaf de Ambachtsstraat aan de achterzijde bereikbaar.
De indeling is als volgt:
Begane grond: fraaie zij-entree naar de lichte hal met veel glaspartijen, vide en moderne stalen trappartij.
Aan de linkerzijde het receptiekantoor en centraal blok met pantry en sanitaire groep met dames- en herentoilet. Aan de rechterzijde een mooie spreek-/werkkamer en aan de achterzijde een royale werk-/kantoor- of opslagruimte, waarin tevens een sanitaire groep met toilet en douche, technische ruimte, serverkamer en een bergzolder.
1e Verdieping, waarbij de ruimtes via een stalen loopbrug met elkaar zijn verbonden, hetgeen een licht en ruimtelijk effect geeft:
mooie directie-/kantoorkamer, 2e kantoorkamer met koffie-corner en archief, alsmede de grote kantoorruimte inclusief kamer met keukenblad en afzuigkap.
Voorzieningen zijn onder meer: centrale verwarming (HR ketel uit 2023), alarminstallatie, airco in diverse ruimtes en aluminum ramen en kozijnen met isolatieglas. Bouwjaar 1991.
Het Energielabel is C.
Door de indeling is het ook prima geschikt als kantoor-verzamelgebouw!
De bestemming luidt: bedrijventerrein met functieaanduiding kantoor en bedrijf tot en met categorie 3.1.
De bijna complete kantoorinventaris kan worden overgenomen.
Aanvaarding eerste kwartaal 2026.
Wij nodigen u uit voor een bezichtiging.
Kenmerken
Overdracht
- Laatste vraagprijs
- € 629.500 kosten koper
- Servicekosten
- Geen servicekosten bekend
- Aangeboden sinds
-
- Status
- Verkocht
Bouw
- Hoofdfunctie
- Kantoor
- Soort bouw
- Bestaande bouw
- Bouwjaar
- 1991
Oppervlakten
- Oppervlakte
- 383 m²
- Perceel
- 775 m²
Indeling
- Aantal bouwlagen
- 2 bouwlagen
- Voorzieningen
- Airconditioning, inbouwarmaturen, te openen ramen, toilet, pantry, verwarming en kamerindeling
Energie
- Energielabel
- C 1,29
Omgeving
- Ligging
- Bedrijventerrein
NVM makelaar
Foto's