Omschrijving
Te huur: Winkelruimte in het bruisende centrum van Amsterdam
Een unieke kans om uw winkel te vestigen op een toplocatie in het hart van Amsterdam! Deze winkelruimte ligt in een van de drukst bezochte en meest levendige delen van de stad, omringd door populaire winkels, cafés en restaurants. Dankzij de constante stroom van zowel toeristen als lokale bewoners profiteert deze locatie van maximale zichtbaarheid en een sterke commerciële aantrekkingskracht.
OPPERVLAKTE
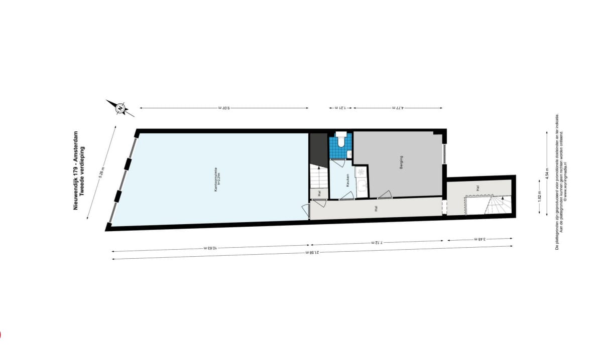
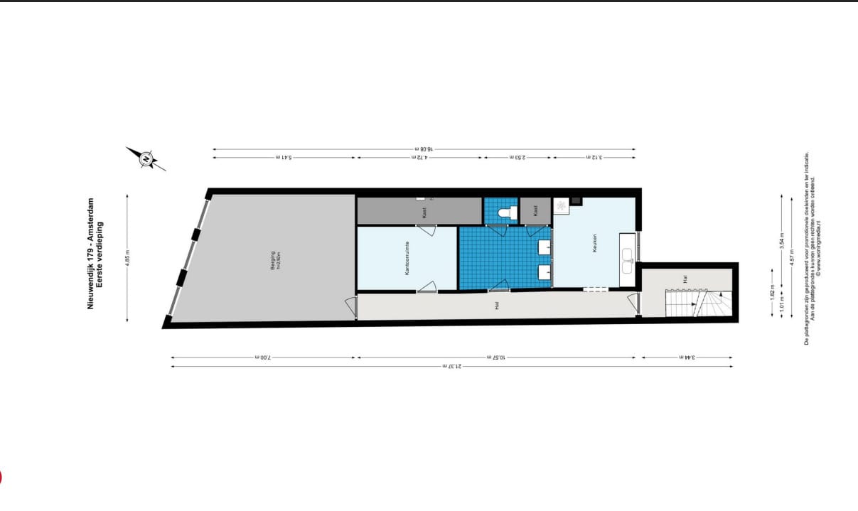
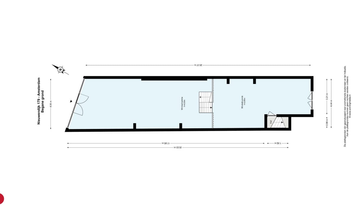
De totale winkeloppervlakte bedraagt circa 347 m², verdeeld over drie niveaus:
Begane grond: circa 95 m² winkelruimte.
Eerste, tweede en derde verdieping: circa 252 m², thans in gebruik als opslag-, keuken- en kantoorruimte, maar tevens geschikt voor winkeldoeleinden.
KENMERKEN
- Uitstekende ligging in het centrum van Amsterdam
- Hoge passantenstroom en uitstekende zichtbaarheid vanaf de straat
- Zeer scherpe huurprijs voor deze toplocatie
- Instapklare ruimte met nette afwerking
- Geschikt voor diverse concepten: mode, sieraden, beauty, cadeauwinkel, koffiebar, delicatessen en meer
DETAILS
- Type: Winkelruimte
- Locatie: Amsterdam Centrum
- Huurprijs: Op aanvraag
- Beschikbaarheid: Per direct
OMSCHRIJVING
Deze representatieve winkelruimte biedt ondernemers de perfecte kans om zich te vestigen in een commercieel sterke en goed bereikbare omgeving. De begane grond en eerste verdieping zijn ideaal ingericht als winkelruimte, terwijl de tweede verdieping uitstekend geschikt is als opslag- of kantoorruimte. Met zijn aantrekkelijke uitstraling, ruime indeling en gunstige huurprijs is dit pand uitermate geschikt voor wie zoekt naar een combinatie van kwaliteit, zichtbaarheid en groeipotentie.
Neem gerust contact op voor meer informatie of om een bezichtiging in te plannen – een zeldzame kans in het hart van Amsterdam!
GOEDKEURING
Bovenstaande is onder finaal voorbehoud de eigenaar.
Disclaimer: Ondanks dat deze publicatie met de grootst mogelijke zorgvuldigheid is samengesteld is de Online Bedrijfsmakelaar BV niet aansprakelijk te stellen voor onjuiste of onvolledige informatie die in deze publicatie vermeld staan. Aan deze gegevens kunnen geen rechten worden ontleend.
====================
Alle beschikbare informatie ontvangen?
Benieuwd naar alle beschikbare informatie over het pand? Vraag dan nu, onder de grote contactbutton, de gratis objectbrochure van de Nieuwendijk 179 in Amsterdam aan en ontvang de objectbrochure binnen 5 minuten in uw mailbox. Uiteraard kunt u ook direct een geheel vrijblijvende bezichtiging met de beheerder van het pand inplannen.
Een unieke kans om uw winkel te vestigen op een toplocatie in het hart van Amsterdam! Deze winkelruimte ligt in een van de drukst bezochte en meest levendige delen van de stad, omringd door populaire winkels, cafés en restaurants. Dankzij de constante stroom van zowel toeristen als lokale bewoners profiteert deze locatie van maximale zichtbaarheid en een sterke commerciële aantrekkingskracht.
OPPERVLAKTE
De totale winkeloppervlakte bedraagt circa 347 m², verdeeld over drie niveaus:
Begane grond: circa 95 m² winkelruimte.
Eerste, tweede en derde verdieping: circa 252 m², thans in gebruik als opslag-, keuken- en kantoorruimte, maar tevens geschikt voor winkeldoeleinden.
KENMERKEN
- Uitstekende ligging in het centrum van Amsterdam
- Hoge passantenstroom en uitstekende zichtbaarheid vanaf de straat
- Zeer scherpe huurprijs voor deze toplocatie
- Instapklare ruimte met nette afwerking
- Geschikt voor diverse concepten: mode, sieraden, beauty, cadeauwinkel, koffiebar, delicatessen en meer
DETAILS
- Type: Winkelruimte
- Locatie: Amsterdam Centrum
- Huurprijs: Op aanvraag
- Beschikbaarheid: Per direct
OMSCHRIJVING
Deze representatieve winkelruimte biedt ondernemers de perfecte kans om zich te vestigen in een commercieel sterke en goed bereikbare omgeving. De begane grond en eerste verdieping zijn ideaal ingericht als winkelruimte, terwijl de tweede verdieping uitstekend geschikt is als opslag- of kantoorruimte. Met zijn aantrekkelijke uitstraling, ruime indeling en gunstige huurprijs is dit pand uitermate geschikt voor wie zoekt naar een combinatie van kwaliteit, zichtbaarheid en groeipotentie.
Neem gerust contact op voor meer informatie of om een bezichtiging in te plannen – een zeldzame kans in het hart van Amsterdam!
GOEDKEURING
Bovenstaande is onder finaal voorbehoud de eigenaar.
Disclaimer: Ondanks dat deze publicatie met de grootst mogelijke zorgvuldigheid is samengesteld is de Online Bedrijfsmakelaar BV niet aansprakelijk te stellen voor onjuiste of onvolledige informatie die in deze publicatie vermeld staan. Aan deze gegevens kunnen geen rechten worden ontleend.
====================
Alle beschikbare informatie ontvangen?
Benieuwd naar alle beschikbare informatie over het pand? Vraag dan nu, onder de grote contactbutton, de gratis objectbrochure van de Nieuwendijk 179 in Amsterdam aan en ontvang de objectbrochure binnen 5 minuten in uw mailbox. Uiteraard kunt u ook direct een geheel vrijblijvende bezichtiging met de beheerder van het pand inplannen.
Kaart
Kaart laden...
Kadastrale grens
Bebouwing
Reistijd
Krijg inzicht in de bereikbaarheid van dit object vanuit bijvoorbeeld een openbaar vervoer station of vanuit een adres.