Omschrijving
Adres: Goudsbloemlaan 124, 2565 CW te Den Haag (Bloemenbuurt)
TE HUUR:
IN GEZELLIG WINKELCENTRUM GELEGEN, ZO TE BETREKKEN WINKELRUIMTE VAN CA. 92M² MET KELDERRUIMTE/MAGAZIJN VAN CA. 41M²
Algemeen
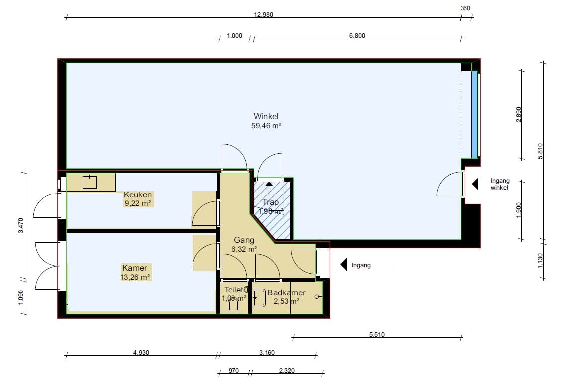
In het gezellige en goed bezochte winkelcentrum aan de Goudsbloemlaan, in winkelstrip, om de hoek van de supermarkt "Jumbo" gelegen fraaie zo te betrekken winkelruimte van ca. 92m² en kelderruimte van ca. 41m². De winkelruimte is thans nog in gebruik als kledingzaak doch komt i.v.m. verhuizing binnenkort vrij. De winkelruimte beschikt over een uitgebreid voorzieningenniveau (zie onder opleveringsniveau). Aan de achterzijde beschikt de winkelruimte over een goed aangelegde achtertuin met schuur en achterom.
In de directe omgeving bevinden zich naast grootwinkelbedrijven als Kruidvat en Jumbo ook diverse gespecialiseerde lokale ondernemers waaronder o.a. versspecialisten, Charlie's Fika, Cisé Hairstudio, fietsenspeciaalzaak en modewinkels .
De winkelruimte heeft door haar frontbreedte van circa 6 meter en ligging aan het plein een goede attentiewaarde. Aan de openbare weg kan men gratis parkeren (vanaf 18.00 uur tot 24.00 uur betaald parkeren).
Bestemming:
- detailhandel
Verhuurder is naast de bestaande zaak op zoek naar een invulling welke het bestaande aanbod van het winkelcentrum aanvult.
Vloeroppervlak:
Begane grond: ca. 92 m2
Souterrain/kelderruimte: circa 41m² (stahoogte)
Totaal: circa 133m²
Parkeergelegenheid
Aan de openbare weg zijn voldoende gratis parkeermogelijkheden aanwezig (Betaald parkeren vanaf 18.00 uur).
Openbaar vervoer
Goede bereikbaarheid met auto en openbaar vervoer. Diverse bus- en tramhalten zijn op loopafstand van de winkelruimte gelegen.
Opleveringsniveau
Het object wordt op basis van casco staat verhuurd doch is voorzien van een uitgebreid voorzieningenniveau waaronder, o.a.:
- CV installatie;
- Moderne keukeninstallatie met apparatuur;
- Modern betegeld toilet met douchegelegenheid;
- Fraai aangelegde achtertuin met achterom.
Huurprijs
€ 1.950,-- per maand te vermeerderen met Btw.
BTW:
Verhuurder zal opteren voor een met Btw belaste verhuur, huurder verleent hiertoe zijn medewerking en verklaart voor tenminste 90% belaste prestaties te leveren.
Huurprijsbetaling
Per maand vooruit te voldoen.
Huurtermijn
In overleg.
Huurprijsaanpassing
Jaarlijks, voor het eerst 1 jaar na huuringangsdatum, op basis van de wijziging van het prijsindexcijfer volgens de Consumentenprijsindex (CPI), Alle Huishoudens (2015=100), gepubliceerd door het Centraal Bureau voor de Statistiek (CBS).
Servicekosten
Geen, de huurder dient zelf zorg te dragen voor de aansluiting op en betaling van alle nutsvoorzieningen.
Zekerheidsstelling
Waarborgsom of bankgarantie ter grootte van 3 maanden huurverplichting.
Aanvaarding
In overleg direct.
Huurovereenkomst
De huurovereenkomst zal worden opgesteld conform de door de Raad voor Onroerende Zaken (ROZ) in 2012 vastgestelde ROZ model Huurovereenkomst Winkelruimte.
Courtage
Mocht door bemiddeling van Martijn de Lange Bedrijfsmakelaars bij dit object een transactie tot stand worden gebracht, dan zult u ons hiervoor geen kosten of courtage verschuldigd zijn.
TE HUUR:
IN GEZELLIG WINKELCENTRUM GELEGEN, ZO TE BETREKKEN WINKELRUIMTE VAN CA. 92M² MET KELDERRUIMTE/MAGAZIJN VAN CA. 41M²
Algemeen
In het gezellige en goed bezochte winkelcentrum aan de Goudsbloemlaan, in winkelstrip, om de hoek van de supermarkt "Jumbo" gelegen fraaie zo te betrekken winkelruimte van ca. 92m² en kelderruimte van ca. 41m². De winkelruimte is thans nog in gebruik als kledingzaak doch komt i.v.m. verhuizing binnenkort vrij. De winkelruimte beschikt over een uitgebreid voorzieningenniveau (zie onder opleveringsniveau). Aan de achterzijde beschikt de winkelruimte over een goed aangelegde achtertuin met schuur en achterom.
In de directe omgeving bevinden zich naast grootwinkelbedrijven als Kruidvat en Jumbo ook diverse gespecialiseerde lokale ondernemers waaronder o.a. versspecialisten, Charlie's Fika, Cisé Hairstudio, fietsenspeciaalzaak en modewinkels .
De winkelruimte heeft door haar frontbreedte van circa 6 meter en ligging aan het plein een goede attentiewaarde. Aan de openbare weg kan men gratis parkeren (vanaf 18.00 uur tot 24.00 uur betaald parkeren).
Bestemming:
- detailhandel
Verhuurder is naast de bestaande zaak op zoek naar een invulling welke het bestaande aanbod van het winkelcentrum aanvult.
Vloeroppervlak:
Begane grond: ca. 92 m2
Souterrain/kelderruimte: circa 41m² (stahoogte)
Totaal: circa 133m²
Parkeergelegenheid
Aan de openbare weg zijn voldoende gratis parkeermogelijkheden aanwezig (Betaald parkeren vanaf 18.00 uur).
Openbaar vervoer
Goede bereikbaarheid met auto en openbaar vervoer. Diverse bus- en tramhalten zijn op loopafstand van de winkelruimte gelegen.
Opleveringsniveau
Het object wordt op basis van casco staat verhuurd doch is voorzien van een uitgebreid voorzieningenniveau waaronder, o.a.:
- CV installatie;
- Moderne keukeninstallatie met apparatuur;
- Modern betegeld toilet met douchegelegenheid;
- Fraai aangelegde achtertuin met achterom.
Huurprijs
€ 1.950,-- per maand te vermeerderen met Btw.
BTW:
Verhuurder zal opteren voor een met Btw belaste verhuur, huurder verleent hiertoe zijn medewerking en verklaart voor tenminste 90% belaste prestaties te leveren.
Huurprijsbetaling
Per maand vooruit te voldoen.
Huurtermijn
In overleg.
Huurprijsaanpassing
Jaarlijks, voor het eerst 1 jaar na huuringangsdatum, op basis van de wijziging van het prijsindexcijfer volgens de Consumentenprijsindex (CPI), Alle Huishoudens (2015=100), gepubliceerd door het Centraal Bureau voor de Statistiek (CBS).
Servicekosten
Geen, de huurder dient zelf zorg te dragen voor de aansluiting op en betaling van alle nutsvoorzieningen.
Zekerheidsstelling
Waarborgsom of bankgarantie ter grootte van 3 maanden huurverplichting.
Aanvaarding
In overleg direct.
Huurovereenkomst
De huurovereenkomst zal worden opgesteld conform de door de Raad voor Onroerende Zaken (ROZ) in 2012 vastgestelde ROZ model Huurovereenkomst Winkelruimte.
Courtage
Mocht door bemiddeling van Martijn de Lange Bedrijfsmakelaars bij dit object een transactie tot stand worden gebracht, dan zult u ons hiervoor geen kosten of courtage verschuldigd zijn.
Kaart
Kaart laden...
Kadastrale grens
Bebouwing
Reistijd
Krijg inzicht in de bereikbaarheid van dit object vanuit bijvoorbeeld een openbaar vervoer station of vanuit een adres.