Verhuurgeschiedenis
- Aangeboden sinds
- 27 januari 2025
- Verhuurdatum
- 14 augustus 2025
- Looptijd
- 6½ maand
Omschrijving
BETREFT
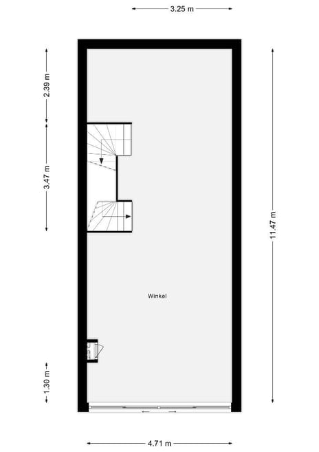
Ca. 160 m2 winkelruimte gelegen aan het Ambachtsplein 19-21 te Rotterdam- Zevenkamp.
LIGGING EN BEREIKBAARHEID
Deze locatie bevindt zich in de wijk Zevenkamp. De wijk Zevenkamp is dichtbij de Zevenhuizerplas en de Rottemeren gelegen aan de oostkant van Rotterdam. De wijk bestaat uit een mix van eengezinswoningen en gestapelde bouw. Het winkelcentrum 'Ambachstland' waar deze winkelruimte onderdeel van uitmaakt, bedient een ruim verzorgingsgebied. Het winkelcentrum is uitstekend te bereiken met zowel eigen vervoer als openbaar vervoer. De ingang van Metrostation Ambachtsland bevindt zich zo goed als naast de winkelruimte.
PARKEREN
In de directe omgeving is voldoende gratis parkeergelegenheid.
OPPERVLAKTE
ca. 160 m2.
De oppervlakten zijn zo zorgvuldig mogelijk vastgesteld, doch mogen niet worden aangemerkt als zuivere verhuurbare oppervlakte volgens de Nederlandse Eenheid Norm NEN 2580.
HUURPRIJS
€ 2.670,00 per maand exclusief btw en servicekosten.
WIJZE VAN OPLEVERING
De ruimte zal in casco staat verhuurd worden verhuurd.
HUURTERMIJN
Bespreekbaar.
BESCHIKBAARHEID
Per direct beschikbaar.
BETALINGSWIJZE
De huurpenningen en BTW dienen te worden voldaan bij vooruitbetaling per maand.
WAARBORGSOM
Huurder dient bij ondertekening van de huurovereenkomst een waarborgsom te storten ter grootte van 3 bruto maandverplichtingen, dat wil zeggen 3 maanden huur te vermeerderen met BTW.
HUURINDEXERING
Jaarlijks, op basis van de wijziging van het prijsindexcijfer volgens de consumentenprijsindex (CPI) reeks CPI-Alle Huishoudens (2015=100), gepubliceerd door de Centraal Bureau voor de Statistieken (CBS), met dien verstande, dat de huurprijs nimmer zal dalen beneden de laatst geldende huurprijs.
OMZETBELASTING
Verhuurder wenst te opteren voor BTW-belaste huur en verhuur. Ingeval huurder niet aan de gestelde criteria voor belaste verhuur voldoet, wordt de huurprijs verhoogd ter compensatie van de gevolgen van het vervallen van de mogelijkheid om te opteren voor de BTW-belaste huur.
HUUROVEREENKOMST
De huurovereenkomst is op basis van het standaard model van de Raad voor Onroerende Zaken (ROZ), de meest recente versie, met de daarbij behorende algemene bepalingen.
Deze informatie is met zorg samengesteld, maar voor de juistheid ervan kan geen aansprakelijkheid worden aanvaard, noch kan aan de vermelde gegevens enig recht worden ontleend. Nadrukkelijk is vermeld dat deze informatie vestrekking niet als een aanbieding of offerte mag worden beschouwd.Lees minder
Ca. 160 m2 winkelruimte gelegen aan het Ambachtsplein 19-21 te Rotterdam- Zevenkamp.
LIGGING EN BEREIKBAARHEID
Deze locatie bevindt zich in de wijk Zevenkamp. De wijk Zevenkamp is dichtbij de Zevenhuizerplas en de Rottemeren gelegen aan de oostkant van Rotterdam. De wijk bestaat uit een mix van eengezinswoningen en gestapelde bouw. Het winkelcentrum 'Ambachstland' waar deze winkelruimte onderdeel van uitmaakt, bedient een ruim verzorgingsgebied. Het winkelcentrum is uitstekend te bereiken met zowel eigen vervoer als openbaar vervoer. De ingang van Metrostation Ambachtsland bevindt zich zo goed als naast de winkelruimte.
PARKEREN
In de directe omgeving is voldoende gratis parkeergelegenheid.
OPPERVLAKTE
ca. 160 m2.
De oppervlakten zijn zo zorgvuldig mogelijk vastgesteld, doch mogen niet worden aangemerkt als zuivere verhuurbare oppervlakte volgens de Nederlandse Eenheid Norm NEN 2580.
HUURPRIJS
€ 2.670,00 per maand exclusief btw en servicekosten.
WIJZE VAN OPLEVERING
De ruimte zal in casco staat verhuurd worden verhuurd.
HUURTERMIJN
Bespreekbaar.
BESCHIKBAARHEID
Per direct beschikbaar.
BETALINGSWIJZE
De huurpenningen en BTW dienen te worden voldaan bij vooruitbetaling per maand.
WAARBORGSOM
Huurder dient bij ondertekening van de huurovereenkomst een waarborgsom te storten ter grootte van 3 bruto maandverplichtingen, dat wil zeggen 3 maanden huur te vermeerderen met BTW.
HUURINDEXERING
Jaarlijks, op basis van de wijziging van het prijsindexcijfer volgens de consumentenprijsindex (CPI) reeks CPI-Alle Huishoudens (2015=100), gepubliceerd door de Centraal Bureau voor de Statistieken (CBS), met dien verstande, dat de huurprijs nimmer zal dalen beneden de laatst geldende huurprijs.
OMZETBELASTING
Verhuurder wenst te opteren voor BTW-belaste huur en verhuur. Ingeval huurder niet aan de gestelde criteria voor belaste verhuur voldoet, wordt de huurprijs verhoogd ter compensatie van de gevolgen van het vervallen van de mogelijkheid om te opteren voor de BTW-belaste huur.
HUUROVEREENKOMST
De huurovereenkomst is op basis van het standaard model van de Raad voor Onroerende Zaken (ROZ), de meest recente versie, met de daarbij behorende algemene bepalingen.
Deze informatie is met zorg samengesteld, maar voor de juistheid ervan kan geen aansprakelijkheid worden aanvaard, noch kan aan de vermelde gegevens enig recht worden ontleend. Nadrukkelijk is vermeld dat deze informatie vestrekking niet als een aanbieding of offerte mag worden beschouwd.Lees minder
Betrokken makelaar
Kaart
Kaart laden...
Kadastrale grens
Bebouwing
Reistijd
Krijg inzicht in de bereikbaarheid van dit object vanuit bijvoorbeeld een openbaar vervoer station of vanuit een adres.