Gedeputeerde Laanweg 4 1619 PB Andijk

€ 1.750.000 k.k.

Omschrijving

Centraal gelegen AGRARISCH BEDRIJF op een totaal van 01.98.89 hectare, bestaande uit een uitgebouwde en vrijstaande bedrijfswoning, glasopstanden, een drietal schuurruimtes, celruimtes, cultuurgronden, erfverharding en een tweetal waterbassins.

Gelegen in het West-Friese lintdorp Andijk nabij het buitengebied van Wervershoof op korte afstand van ontsluitings-en uitvalswegen.

BEDRIJFSSCHUUR 1
- Bouwjaar 1985
- Afmeting 20 x 16 meter (320 m²)
- Voorzien van kantoorruimte, koelcel en droogwanden
- Nokhoogte 6,50 meter
- Goothoogte 3,50 meter
- Damwandprofielplaten gevels
- Golfplaten dakbedekking (ABC)
- Stalen spantconstructie
- Betonnen infrastructuur

BEDRIJFSSCHUUR 2
- Bouwjaar 1995
- Afmeting 23,50 x 39 meter (917 m²)
- Voorzien van 7 koelcellen, waarvan;
- 4 maal 8,5 x 9 meter
- 2 maal 9 x 6 meter
- 1 maal 12 x 9 meter
- Goothoogte 5,40 meter
- Damwandprofielplaten gevels
- Dupanelen dakbedekking
- Stalen spantconstructie
- Betonnen infrastructuur

BEDRIJFSSCHUUR 3
- Bouwjaar 2015
- Afmeting 34 x 35 meter (1.190 m²)
- Voorzien van een koelcel (8 x 14 meter) en verwerkingsruimte
- Nokhoogte 12 meter
- Goothoogte 6,20 meter
- Sandwichpanelen gevels
- Sandwichpanelen dakbedekking
- Stalen spantconstructie
- Betonnen infrastructuur

Medio 2018 zijn verdeeld over de bedrijfsschuren 1.120 zonnepanelen aangebracht met omvormers (totaal van circa 300.000 kWh).

GLASOPSTAND 1
- Bouwjaar 1990
- Type Venlo
- Poeren fundering
- Afmeting 32 x 19,20 meter (614 m²)
- Tralieligger 9,60 meter
- Kapbreedte 6 x 3,20 meter
- Enkel glas gevel en dak
- Schermdoek dak en gevel
- Betonvloeren teeltsysteem
- 4 x 21 mm verwarmingsbuizen

GLASOPSTAND 2
- Bouwjaar 1992
- Type Venlo
- Poeren fundering
- Afmeting 32 x 19,20 meter (614 m²)
- Tralieligger 9,60 meter
- Kapbreedte 6 x 3,20 meter
- Enkel glas gevel en dak
- Schermdoek dak en gevel
- Betonvloeren teeltsysteem
- 4 x 21 mm verwarmingsbuizen

GLASOPSTAND 3
- Bouwjaar 2001
- Type Venlo
- Poeren fundering
- Afmeting 32 x 19,20 meter (614 m²)
- Tralieligger 9,60 meter
- Kapbreedte 6 x 3,20 meter
- Enkel glas gevel en dak
- Schermdoek dak en gevel
- Betonvloeren teeltsysteem
- 4 x 21 mm verwarmingsbuizen

GLASOPSTAND 4
- Bouwjaar 2011
- Type Venlo
- Poeren Fundering
- Afmeting 32 x 28,80 meter (922 m²)
-Enkel glas gevel en dak
- Schermdoek dak
- Betonvloeren teeltsysteem
- 5 x 51 mm verwarmingsbuizen

ERFVERHARDING
Betonplein voor-en naast de Bedrijfsschuren en glasopstanden bestaande uit stelcon beplating en puinverharding. Totale oppervlakte circa 2.835 m².

OVERIGE LANDERIJEN
Gelegen achter en naast de bedrijfsschuren en glasopstanden met een oppervlakte van circa 00.93.85 hectare bestaande uit geëgaliseerde en verwerkte zeekleigronden (eerd- en vaaggronden met gerijpte ondergrond); zware zavel en klei, kalkrijk. De cultuurgrond is bereikbaar middels de erfverharding aan de oostzijde van de bedrijfsschuren.

Aan de zuidzijde van de cultuurgrond zijn een tweetal waterbassins gerealiseerd, waarvan de een met een oppervlakte heeft van 750 m² en de ander van 360 m².

DE VRIJSTAANDE BEDRIJFSWONING
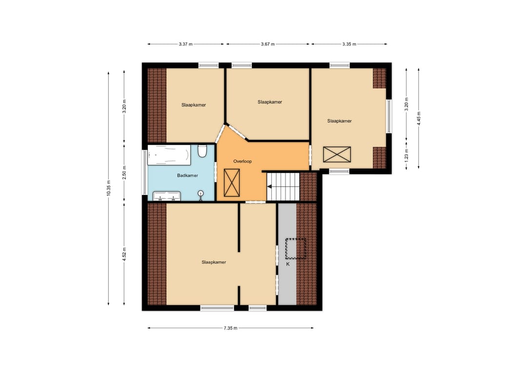
Nette en goed verzorgde bedrijfswoning met ondergrond, tuin en erf. Oorspronkelijk gebouwd in 1995 met een ruime en praktische opzet. De woning is grotendeels gerenoveerd en uitgebouwd in 2020. Binnenkomst middels de entreehal met garderobe, trapopgang en toegang tot het leefgedeelte. De riante woonkamer is voorzien van genoeg ruimte voor een of meerdere zithoeken en een grote eettafel. Dankzij de openslaande tuindeuren is via de woonkamer het terras bereikbaar. De open keuken is tijdens de renovatie volledig gemoderniseerd en is voorzien van alle hedendaagse gemakken. De bijkeuken is voorzien van een witgoedaansluiting, wasbak, kastruimte en de achterdeur. De garage is geïsoleerd en uitgerust met kantoorruimte. Op de verdieping een ruime overloop, een 4-tal goede slaapkamers en een badkamer uitgerust met douche, toilet, ligbad en een dubbel wastafelmeubel. Via een vlizotrap is de bergzolder bereikbaar.

De op het zuiden gerichte achtertuin is ingericht met een groot terras met ruimte voor een grote tafel, loungeset en eventueel een buitenkeuken. De overkapping biedt ruimte voor een gezellige tuinset en de vrijstaande houten berging is ideaal voor het stallen van de fietsen en tuingereedschappen.

BESTEMMING
Zowel de bedrijfskavel als huiskavel hebben als vigerende bestemming agrarisch grondgebonden.

KENMERKEN
- Gunstig gelegen in het buitengebied van Andijk, nabij Wervershoof.
- Woonoppervlakte 167 m²
- Inhoud woning 646 m³
- Tuin op het zuiden
- 4-tal slaapkamers
- Garage van 19 m²
- Mogelijkheid tot gelijkvloers wonen
- Grotendeels gerenoveerd en uitgebouwd (medio 2020)
- 15 zonnepanelen aanwezig op de woning (medio 2017)
- 1.120 zonnepanelen aanwezig op bedrijfsschuren (medio 2018)
- 8-tal koelcellen in de bedrijfsschuren
- Bedrijfsschuren totaal oppervlakte 2.427 m²
- Glasopstanden totaal oppervlakte 2.764 m²
- Erfverharding circa 2.835 m²
- Celcapaciteit van circa 900 kisten
- Voldoende uitbereidingsmogelijkheden
- Agrarisch bouwblok van circa 01.30.00 hectare

Meer informatie is op te vragen bij Kwantes Makelaardij. U bent van harte welkom voor een uitgebreide rondleiding.

Kenmerken

Overdracht

Vraagprijs
€ 1.750.000 k.k.
Aangeboden sinds
Status
Beschikbaar
Aanvaarding
In overleg

Bouw

Hoofdfunctie
Overig
Soort bouw
Bestaande bouw
Opstallen
7 opstallen (bouwjaar tussen 1985 en 2015)

Oppervlakten

Totale oppervlakte
1 ha 98 a 89 ca
Bouwkavels
1 bouwkavel (1 ha 30 a 0 ca)
Veldkavels
0 ha 62 a 89 ca
Huiskavels
0 ha 6 a 0 ca
Grondsoort
Klei, zand en zavel

Woonruimte

Bedrijfswoningen
1
Hoofdwoning
Inhoud
646 m³
Bouwjaar
1995

Kadastrale gegevens

ANDIJK K 3215
Kadastrale kaart
Eigendomssituatie
0 ha 6 a 0 ca (geheel perceel)
ANDIJK K 4051
Eigendomssituatie
1 ha 92 a 89 ca (geheel perceel)

Kaart

Kaart laden...

Kadastrale grens Bebouwing

Reistijd

Krijg inzicht in de bereikbaarheid van dit object vanuit bijvoorbeeld een openbaar vervoer station of vanuit een adres.

Gedeputeerde Laanweg 4

€ 1.750.000 k.k.