Omschrijving
Op een unieke plek in Sappemeer ligt deze kwekerij met een vrijstaande bedrijfswoning. Het besloten perceel ligt aan het water en biedt veel privacy met ruim uitzicht over het eigen terrein.
De woning is levensloopbestendig met een slaapkamer op de begane grond met een douche en-suite.
Rondom het woonhuis ligt een fraai aangelegde tuin met veel (fruit)bomen en een groot grasveld van ongeveer 3.000 m².
In de tuin is nog goed terug te zien dat hier in het verleden een kwekerij van Japanse esdoorns is geweest.
Het perceel is bereikbaar via een eigen dam in het Borgercompagniesterdiep. Voor de kassen (6300m²) met schuur (220 m²) is een parkeerplaats. Via de oprit komt u bij het woonhuis. De oprit loopt om het huis door tot achter op het perceel, waar nog een tunnelkas staat (24x12,8 m), die momenteel in gebruik is als hobbyruimte.
Kassencomplex:
Warenhuis groot ca.2500m2, 19 kappen van3,2m Breen en 41 m lang. Gegalvaniseerde onderbouw 2,4m, goothoogte, 2,7m, vakmaat 3m. Gevels van dubbel glas in Alum.roeden en gedekt met glas in Alum.roeden.
Warenhuis groot ca.3450m2, 20 kappen van3,2m Breen en 54 m lang. Gegalvaniseerde onderbouw 2,4m, goothoogte, 2,7m, vakmaat 3m. Gevels van dubbel glas in Alum.roeden en gedekt met glas in Alum.roeden.
Warenhuis groot ca.190m2, 2 kappen van3,2m Breen en 30m lang. Gegalvaniseerde onderbouw 2,4m, goothoogte, 2,7m, vakmaat 3m. Gevels van dubbel glas in Alum.roeden en gedekt met glas in Alum.roeden.
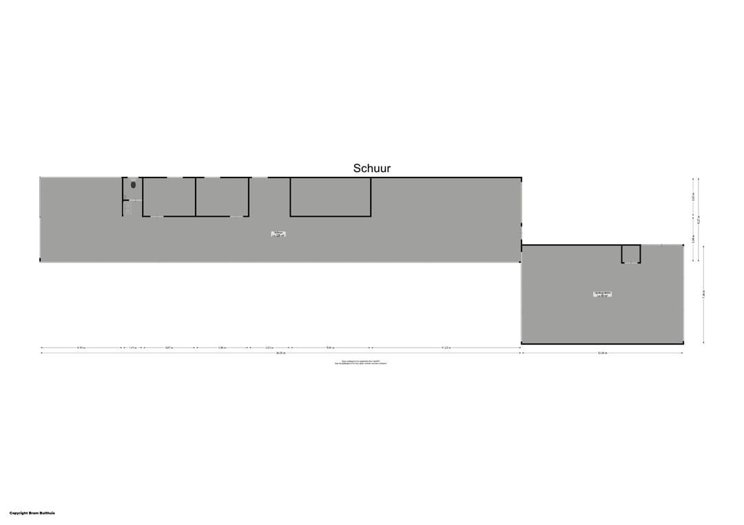
Bedrijfsruimte van totaal 220m2 en een schuur(voormalig ketelhuis) van 80m2
Indeling van de woning:
Aan de zijkant bevindt zich de entree van de woning; hal met een separaat toilet, toegang tot de kelder en de royale woonkeuken met vloerverwarming. De keuken is voorzien van een 5 pits gasfornuis met hete lucht oven, moderne wasemkap, onderbouwvaatwasser, koelkast en combimagnetron.
De gezellige woonkamer met houtkachel bestaat uit twee gedeelten. Via het achterste gedeelte is de veranda te bereiken die op het zuiden is gelegen.
Vanuit de woonkamer komt u via een kantoorruimte in de slaapkamer met douche. Ook in de slaapkamer is een deur naar de veranda en loopt u via de buitentrap zo de sfeervolle tuin in.
De bijkeuken met wasmachineaansluiting heeft een deur naar buiten en is bereikbaar vanuit de keuken.
In de hal is de vaste trap naar de bovenverdieping met 4 royale slaapkamers (11, 12, 14 en 20 m²), doucheruimte (3 m²) en balkon. Twee vlizotrappen geven toegang tot twee verschillende zolders met veel bergruimte.
Vanuit deze woonomgeving kunt u heerlijk fietsen, bent u binnendoor zo in Veendam en zit u binnen 3 minuten op de A7 richting Groningen en Duitsland. Het treinstation Hoogezand ligt op 5 minuten fiets. Hiervandaan vertrekt er 4 keer per uur een trein naar Groningen.
Basisscholen liggen op 5 minuten fietsafstand, het Voortgezet Onderwijs op 10 minuten.
Sappemeer heeft voldoende winkels voor dagelijkse boodschappen. Het winkelcentrum Hooge Meren ligt op 10 minuten fietsafstand.
INFO:
De huidige bestemming is kwekerij (agrarisch) en deels industrie.
Er is nog € 8.400 SNN subsidie beschikbaar.
Aanvaarding in goed overleg.
Bent u geïnteresseerd om dit unieke object geheel vrijblijvend te komen bekijken, neem dan gerust contact op met ons kantoor.
De woning is levensloopbestendig met een slaapkamer op de begane grond met een douche en-suite.
Rondom het woonhuis ligt een fraai aangelegde tuin met veel (fruit)bomen en een groot grasveld van ongeveer 3.000 m².
In de tuin is nog goed terug te zien dat hier in het verleden een kwekerij van Japanse esdoorns is geweest.
Het perceel is bereikbaar via een eigen dam in het Borgercompagniesterdiep. Voor de kassen (6300m²) met schuur (220 m²) is een parkeerplaats. Via de oprit komt u bij het woonhuis. De oprit loopt om het huis door tot achter op het perceel, waar nog een tunnelkas staat (24x12,8 m), die momenteel in gebruik is als hobbyruimte.
Kassencomplex:
Warenhuis groot ca.2500m2, 19 kappen van3,2m Breen en 41 m lang. Gegalvaniseerde onderbouw 2,4m, goothoogte, 2,7m, vakmaat 3m. Gevels van dubbel glas in Alum.roeden en gedekt met glas in Alum.roeden.
Warenhuis groot ca.3450m2, 20 kappen van3,2m Breen en 54 m lang. Gegalvaniseerde onderbouw 2,4m, goothoogte, 2,7m, vakmaat 3m. Gevels van dubbel glas in Alum.roeden en gedekt met glas in Alum.roeden.
Warenhuis groot ca.190m2, 2 kappen van3,2m Breen en 30m lang. Gegalvaniseerde onderbouw 2,4m, goothoogte, 2,7m, vakmaat 3m. Gevels van dubbel glas in Alum.roeden en gedekt met glas in Alum.roeden.
Bedrijfsruimte van totaal 220m2 en een schuur(voormalig ketelhuis) van 80m2
Indeling van de woning:
Aan de zijkant bevindt zich de entree van de woning; hal met een separaat toilet, toegang tot de kelder en de royale woonkeuken met vloerverwarming. De keuken is voorzien van een 5 pits gasfornuis met hete lucht oven, moderne wasemkap, onderbouwvaatwasser, koelkast en combimagnetron.
De gezellige woonkamer met houtkachel bestaat uit twee gedeelten. Via het achterste gedeelte is de veranda te bereiken die op het zuiden is gelegen.
Vanuit de woonkamer komt u via een kantoorruimte in de slaapkamer met douche. Ook in de slaapkamer is een deur naar de veranda en loopt u via de buitentrap zo de sfeervolle tuin in.
De bijkeuken met wasmachineaansluiting heeft een deur naar buiten en is bereikbaar vanuit de keuken.
In de hal is de vaste trap naar de bovenverdieping met 4 royale slaapkamers (11, 12, 14 en 20 m²), doucheruimte (3 m²) en balkon. Twee vlizotrappen geven toegang tot twee verschillende zolders met veel bergruimte.
Vanuit deze woonomgeving kunt u heerlijk fietsen, bent u binnendoor zo in Veendam en zit u binnen 3 minuten op de A7 richting Groningen en Duitsland. Het treinstation Hoogezand ligt op 5 minuten fiets. Hiervandaan vertrekt er 4 keer per uur een trein naar Groningen.
Basisscholen liggen op 5 minuten fietsafstand, het Voortgezet Onderwijs op 10 minuten.
Sappemeer heeft voldoende winkels voor dagelijkse boodschappen. Het winkelcentrum Hooge Meren ligt op 10 minuten fietsafstand.
INFO:
De huidige bestemming is kwekerij (agrarisch) en deels industrie.
Er is nog € 8.400 SNN subsidie beschikbaar.
Aanvaarding in goed overleg.
Bent u geïnteresseerd om dit unieke object geheel vrijblijvend te komen bekijken, neem dan gerust contact op met ons kantoor.
Kaart
Kaart laden...
Kadastrale grens
Bebouwing
Reistijd
Krijg inzicht in de bereikbaarheid van dit object vanuit bijvoorbeeld een openbaar vervoer station of vanuit een adres.