Verkoopgeschiedenis
- Aangeboden sinds
- 28 oktober 2025
Omschrijving
Namens onze opdrachtgever mogen wij u aanbieden EEN PERCEEL AGRARISCHE GROND. De grond wordt aangeboden middels een (besloten) vrijwillige verkoop bij inschrijving. De voorwaarden en condities die voor deze inschrijving gelden leest u terug in de brochure.
Het biedingsformulier, welke te verkrijgen is via ons kantoor, is in te leveren t/m woensdag 19 november 2025 tot 12:00 uur bij Midden Nederland Makelaars Barneveld, Kampstraat 32 te Barneveld of per e-mail: (met ontvangstbevestiging versturen).
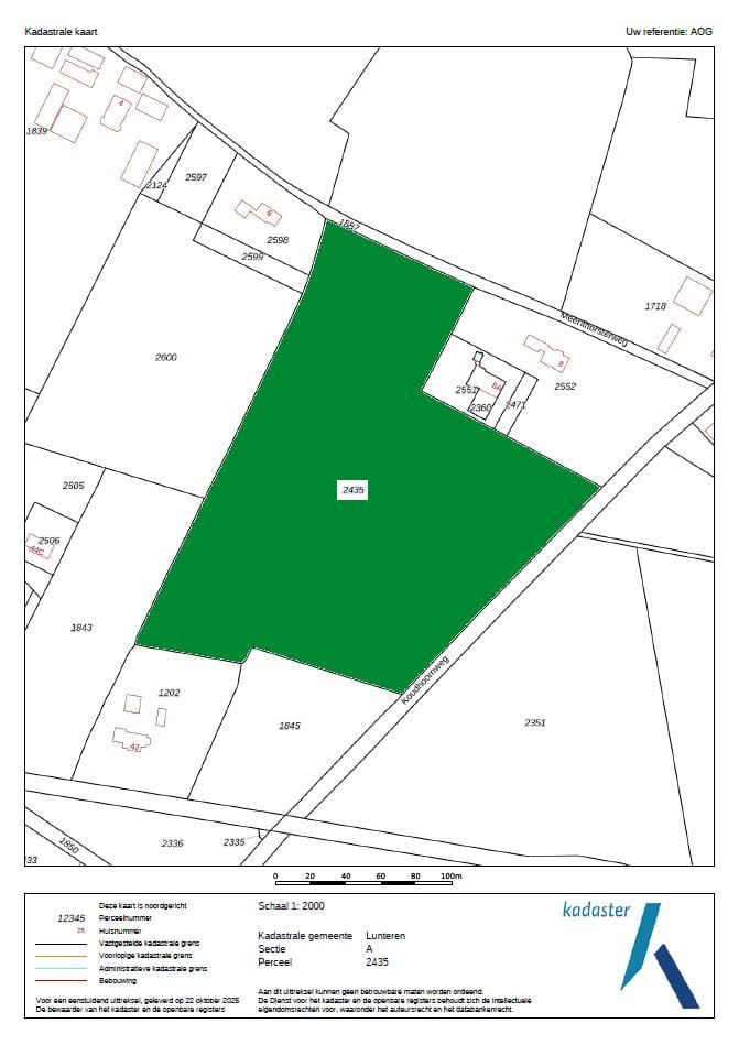
Kadastrale informatie: kadastraal bekend bij de gemeente Lunteren, sectie A, nummer 2435, groot ca. 36.858 m².
Bestemming: voor alle percelen geldt de bestemming "agrarisch zonder bebouwingsmogelijkheden".
Bijzonderheden:
- Het perceel is individueel ontsloten middels een eigen inrit.
- De koper dient het agrarisch gebruik voort te zetten i.v.m. het verkrijgen van vrijstelling art. 15.1.q. bij aankoop in 2023.
- Het perceel is geliberaliseerd verpacht tot 31 december 2026.
Het biedingsformulier, welke te verkrijgen is via ons kantoor, is in te leveren t/m woensdag 19 november 2025 tot 12:00 uur bij Midden Nederland Makelaars Barneveld, Kampstraat 32 te Barneveld of per e-mail: (met ontvangstbevestiging versturen).
Kadastrale informatie: kadastraal bekend bij de gemeente Lunteren, sectie A, nummer 2435, groot ca. 36.858 m².
Bestemming: voor alle percelen geldt de bestemming "agrarisch zonder bebouwingsmogelijkheden".
Bijzonderheden:
- Het perceel is individueel ontsloten middels een eigen inrit.
- De koper dient het agrarisch gebruik voort te zetten i.v.m. het verkrijgen van vrijstelling art. 15.1.q. bij aankoop in 2023.
- Het perceel is geliberaliseerd verpacht tot 31 december 2026.
Betrokken makelaar
Kaart
Kaart laden...
Kadastrale grens
Bebouwing
Reistijd
Krijg inzicht in de bereikbaarheid van dit object vanuit bijvoorbeeld een openbaar vervoer station of vanuit een adres.