Ringstraat 6005 Weert
Prijs op aanvraag
Omschrijving
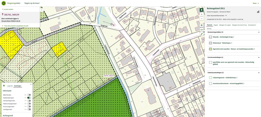
In het buitengebied van Weert, aan de rand van het kerkdorp Swartbroek, bieden wij u een strategisch gelegen perceel aan ter grootte van circa 0.52.09 ha.
Het perceel is gelegen aan de Ringstraat in Weert.
De laatste jaren is het in gebruik als grasland.
Planologisch:
Het perceel is gelegen in het bestemmingsplan 'Buitengebied 2011' van de gemeente Weert. Binnen dit bestemmingsplan heeft het perceel de enkelbestemming 'Agrarisch met waarden - Natuur- en landschapswaarden' en de dubbelbestemming 'Waarde - Archeologie hoog' en 'Waarde - Archeologie zeer hoog'.
Kadastrale gegevens:
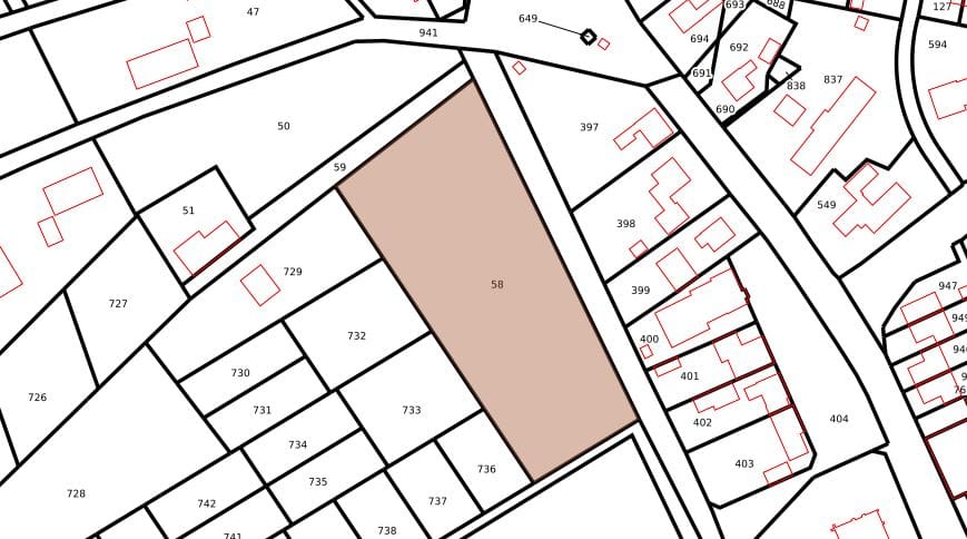
Het perceel is kadastraal bekend als gemeente Weert, sectie AA, nummer 58, ter grootte van 0.52.09 hectare.
Aanvaarding in overleg.
Het perceel is gelegen aan de Ringstraat in Weert.
De laatste jaren is het in gebruik als grasland.
Planologisch:
Het perceel is gelegen in het bestemmingsplan 'Buitengebied 2011' van de gemeente Weert. Binnen dit bestemmingsplan heeft het perceel de enkelbestemming 'Agrarisch met waarden - Natuur- en landschapswaarden' en de dubbelbestemming 'Waarde - Archeologie hoog' en 'Waarde - Archeologie zeer hoog'.
Kadastrale gegevens:
Het perceel is kadastraal bekend als gemeente Weert, sectie AA, nummer 58, ter grootte van 0.52.09 hectare.
Aanvaarding in overleg.
Kenmerken
Overdracht
- Vraagprijs
- Prijs op aanvraag
- Aangeboden sinds
-
- Status
- Beschikbaar
- Aanvaarding
- In overleg
Bouw
- Hoofdfunctie
- Losse grond
Oppervlakten
- Totale oppervlakte
- 0 ha 52 a 9 ca
- Huiskavels
- 0 ha 52 a 9 ca
- Type land
- Grasland
- Grondsoort
- Zand
Kadastrale gegevens
-
WEERT AA 58
- Kadastrale kaart
- Eigendomssituatie
- 0 ha 52 a 9 ca (geheel perceel)
NVM makelaar
Foto's