Trade Park Cruquius 2142 EW Cruquius
Van € 180.000 tot € 360.000 v.o.n.
Omschrijving
Nu te koop en in aanbouw!
Bedrijfsunits Trade Park Cruquius
Op een zeer centrale en goed bereikbare locatie gelegen bedrijfsunits met courante oppervlakte.
De bedrijfsunits zijn gelegen op een mooie locatie aan de rand van het bekende winkelgebied Woonboulevard Cruquius. Hier wordt nu de laatste fase van het Trade Park Cruquius gerealiseerd.
De bedrijfsunits zijn gelegen in het eerste blok gezien vanaf de Cruquiuszoom. Hier worden 37 bedrijfsunits gerealiseerd. In totaal zijn nog 17 bedrijfsunits beschikbaar waarvan:
-15 bedrijfsunits op de begane grond van ca. 50m² parterre en 50m² eerste verdieping
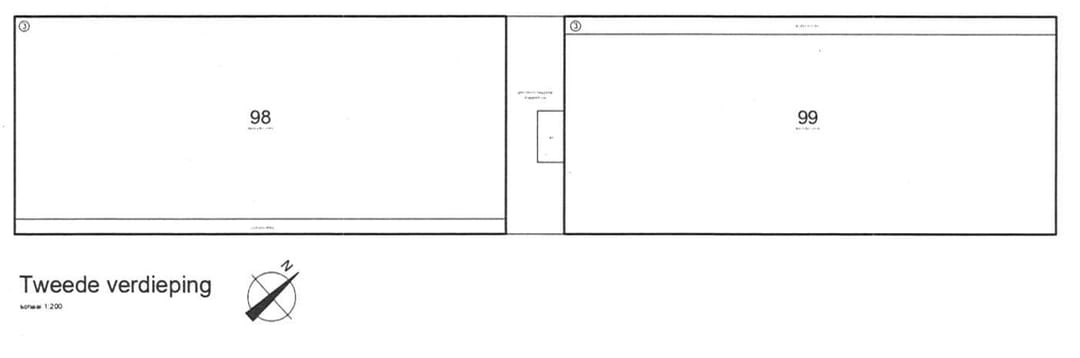
-2 grote bedrijfsruimtes van ca. 840m2 op de 2e verdieping bereikbaar via een trappenhuis en mogelijkheid voor (goederen/auto) lift.
Prijs bedrijfsunits ca. 100m² BVO inclusief 2 parkeerplaatsen vanaf € 180.000,- exclusief B.T.W.
Prijs 2 grote bedrijfsruimten op aanvraag.
De bouw is gestart en bouwkundige oplevering wordt verwacht in Q3 2026 onder voorbehoud oplevering nutsvoorzieningen.
Technische uitgangspunten:
GEBOUW
• Oplevering casco bouwkundig (excl. installaties)
• Fundatie op prefab betonnen heipalen conform opgaaf constructeur
• Begane grondvloer (gemiddelde vloerbelasting 1500kg/m²) bestaat uit een
geïsoleerde monoliet betonvloer
• Verdiepingsvloeren (gemiddelde vloerbelasting 450kg/m²) bestaat uit kanaalplaatvloer
(excl. cement-dekvloer)
• Hoofddak bestaat uit kanaalplaatvloer incl. PIR-isolatie met dakbedekking
RC-waarde 6,3
• Riolering afgedopt op 2 posities per unit begane grond
• HWA uitwendig incl. gegalvaniseerde ondereinden
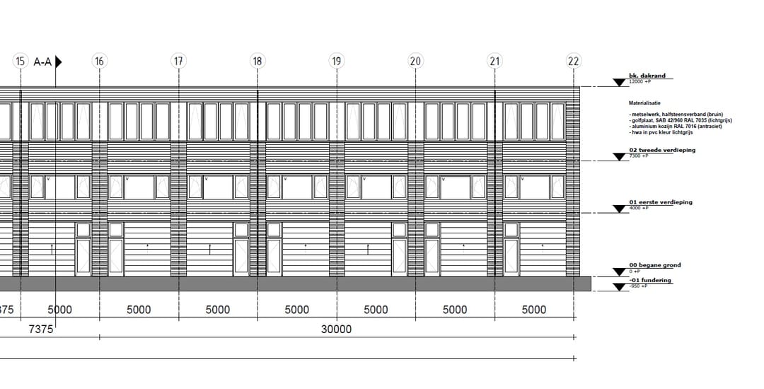
• Buitengevel voorzien van metselwerk gecombineerd met geisoleerde gevelpanelen
RAL 7035 (lichtgrijs)
• Gevelkozijnen aluminium RAL 7016 (antraciet) voorzien van HR++ beglazing
• Ventilatie middels roosters in kozijnen
• Overheaddeuren +/- 3000x3150 (bxh) handbediend
• Scheidingswanden kalkzandsteen
• Vuren houten open trappen wit gespoten incl. traphek en leuningen van begane
grond naar 1e verdieping
• Prefab meterkast bij elke unit incl. aansluitingen tot in meterkast voor elektra,
water en data (excl. aansluitkosten)
• Stalen trap met houten treden t.p.v. hoofdentree naar 2e verdieping
• Goederen/autolift naar 2e verdieping (in overleg koper 2e verdieping)
• Bij de unit is geen gasaansluiting mogelijk
• Elke unit mogelijkheid voor gevel reclame in overleg met reeds aanwezige VVE
BUITENTERREIN
• Verharding middels betonklinkerbestrating
• Parkeermarkeringen middels andere kleur betonklinker
• Centrale buitenpostkasten
De projectontwikkelaar biedt de mogelijkheid en flexibiliteit om de oplevering geheel naar eigen behoefte zelf te bepalen zoals posities binnenwanden/indelingen, afwerking etc.
Dus een project vanaf casco oplevering t/m turn-key oplevering en alles ertussenin is mogelijk. Deze flexibiliteit en service zult u niet veel tegenkomen bij dit soort nieuwbouwprojecten.
De nieuwbouw bedrijfsunits zijn gelegen op een uitstekend bereikbare locatie in de regio tussen Haarlem/Heemstede en Haarlemmermeer en met veel bedrijvigheid in de directe omgeving.
Een mooie kans voor de ondernemer die op zoek is naar betaalbare bedrijfsruimte met kantoor en/of opslagruimte. De units zijn ook goed in 2 delen te gebruiken en vrij in te delen binnen de kaders van de huidige bestemmingsplan.
INFORMATIE
• V.V.E. beheer aanwezig
• Gemeenschappelijke opstalverzekering, reservering onderhoud en terreinonderhoud via V.V.E.
• Splitsingsakte, splitsingstekening en concept Koop/Aanneemovereenkomst op aanvraag.
• Adressen binnen dit complex: Cruquiuszoom 128 t/m 200
• Projectnotaris Jager Notarissen
• Makelaar Bedrijfslocatie.NL
DISCLAIMER
De vermelde informatie, beelden, impressie, maten, oppervlakte zijn zo nauwkeurig
mogelijk vastgesteld. Hieraan kunnen geen rechten worden ontleend.
Geïnteresseerd in één of meerdere units?
Neem dan contact op met ons kantoor via 023-525 15 25 of
Bedrijfsunits Trade Park Cruquius
Op een zeer centrale en goed bereikbare locatie gelegen bedrijfsunits met courante oppervlakte.
De bedrijfsunits zijn gelegen op een mooie locatie aan de rand van het bekende winkelgebied Woonboulevard Cruquius. Hier wordt nu de laatste fase van het Trade Park Cruquius gerealiseerd.
De bedrijfsunits zijn gelegen in het eerste blok gezien vanaf de Cruquiuszoom. Hier worden 37 bedrijfsunits gerealiseerd. In totaal zijn nog 17 bedrijfsunits beschikbaar waarvan:
-15 bedrijfsunits op de begane grond van ca. 50m² parterre en 50m² eerste verdieping
-2 grote bedrijfsruimtes van ca. 840m2 op de 2e verdieping bereikbaar via een trappenhuis en mogelijkheid voor (goederen/auto) lift.
Prijs bedrijfsunits ca. 100m² BVO inclusief 2 parkeerplaatsen vanaf € 180.000,- exclusief B.T.W.
Prijs 2 grote bedrijfsruimten op aanvraag.
De bouw is gestart en bouwkundige oplevering wordt verwacht in Q3 2026 onder voorbehoud oplevering nutsvoorzieningen.
Technische uitgangspunten:
GEBOUW
• Oplevering casco bouwkundig (excl. installaties)
• Fundatie op prefab betonnen heipalen conform opgaaf constructeur
• Begane grondvloer (gemiddelde vloerbelasting 1500kg/m²) bestaat uit een
geïsoleerde monoliet betonvloer
• Verdiepingsvloeren (gemiddelde vloerbelasting 450kg/m²) bestaat uit kanaalplaatvloer
(excl. cement-dekvloer)
• Hoofddak bestaat uit kanaalplaatvloer incl. PIR-isolatie met dakbedekking
RC-waarde 6,3
• Riolering afgedopt op 2 posities per unit begane grond
• HWA uitwendig incl. gegalvaniseerde ondereinden
• Buitengevel voorzien van metselwerk gecombineerd met geisoleerde gevelpanelen
RAL 7035 (lichtgrijs)
• Gevelkozijnen aluminium RAL 7016 (antraciet) voorzien van HR++ beglazing
• Ventilatie middels roosters in kozijnen
• Overheaddeuren +/- 3000x3150 (bxh) handbediend
• Scheidingswanden kalkzandsteen
• Vuren houten open trappen wit gespoten incl. traphek en leuningen van begane
grond naar 1e verdieping
• Prefab meterkast bij elke unit incl. aansluitingen tot in meterkast voor elektra,
water en data (excl. aansluitkosten)
• Stalen trap met houten treden t.p.v. hoofdentree naar 2e verdieping
• Goederen/autolift naar 2e verdieping (in overleg koper 2e verdieping)
• Bij de unit is geen gasaansluiting mogelijk
• Elke unit mogelijkheid voor gevel reclame in overleg met reeds aanwezige VVE
BUITENTERREIN
• Verharding middels betonklinkerbestrating
• Parkeermarkeringen middels andere kleur betonklinker
• Centrale buitenpostkasten
De projectontwikkelaar biedt de mogelijkheid en flexibiliteit om de oplevering geheel naar eigen behoefte zelf te bepalen zoals posities binnenwanden/indelingen, afwerking etc.
Dus een project vanaf casco oplevering t/m turn-key oplevering en alles ertussenin is mogelijk. Deze flexibiliteit en service zult u niet veel tegenkomen bij dit soort nieuwbouwprojecten.
De nieuwbouw bedrijfsunits zijn gelegen op een uitstekend bereikbare locatie in de regio tussen Haarlem/Heemstede en Haarlemmermeer en met veel bedrijvigheid in de directe omgeving.
Een mooie kans voor de ondernemer die op zoek is naar betaalbare bedrijfsruimte met kantoor en/of opslagruimte. De units zijn ook goed in 2 delen te gebruiken en vrij in te delen binnen de kaders van de huidige bestemmingsplan.
INFORMATIE
• V.V.E. beheer aanwezig
• Gemeenschappelijke opstalverzekering, reservering onderhoud en terreinonderhoud via V.V.E.
• Splitsingsakte, splitsingstekening en concept Koop/Aanneemovereenkomst op aanvraag.
• Adressen binnen dit complex: Cruquiuszoom 128 t/m 200
• Projectnotaris Jager Notarissen
• Makelaar Bedrijfslocatie.NL
DISCLAIMER
De vermelde informatie, beelden, impressie, maten, oppervlakte zijn zo nauwkeurig
mogelijk vastgesteld. Hieraan kunnen geen rechten worden ontleend.
Geïnteresseerd in één of meerdere units?
Neem dan contact op met ons kantoor via 023-525 15 25 of
Kenmerken
Overdracht
- Vraagprijs
- Van € 180.000 tot € 360.000 v.o.n.
- Aangeboden sinds
-
- Status
- Beschikbaar
Foto's