Nijverheidsweg-Noord 42 3812 PM Amersfoort
Huurprijs op aanvraag
Omschrijving
ALGEMEEN
Het bedrijfsobject aan de Nijverheidsweg-Noord 42 te Amersfoort bestaat uit representatieve kantoor- en winkelruimte, gecombineerd met achtergelegen buitenterrein. Het pand is geschikt voor diverse kantoor-, winkel- of bedrijfsconcepten. De ruimtes zijn bereikbaar via een nette entree en bieden een prettige werkomgeving met veel daglicht.
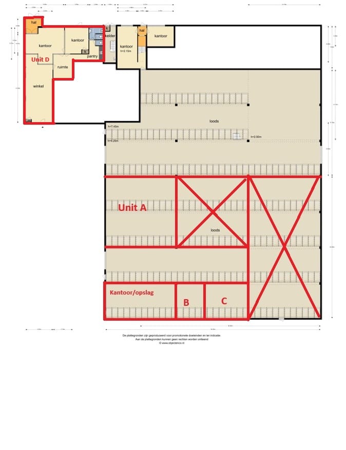
Het aanbod omvat verschillende typen ruimten, variërend van kantoor- en winkelruimte met kelder tot praktische bedrijfsunits en een royaal buitenterrein. De kantoorruimten zijn licht, goed indeelbaar en geschikt voor uiteenlopende bedrijfsactiviteiten. De hallen bieden uitstekende mogelijkheden voor opslag, werkplaats of lichte productie. Bovengelegen kantoorruimtes zijn eveneens beschikbaar en bieden een lichte en representatieve werkomgeving. Het achtergelegen terrein biedt ruimte voor laden, lossen of parkeren en kan separaat worden gehuurd.
LOCATIE
Het object is gelegen op bedrijventerrein Nijverheidsweg-Noord, een goed bereikbaar en professioneel gebied aan de noordzijde van Amersfoort. De locatie biedt snelle aansluiting op de A1 en de A28, evenals goede verbindingen met het centrum van Amersfoort.
BEREIKBAARHEID
Het pand is uitstekend bereikbaar met de auto, met ruime parkeermogelijkheden op eigen terrein en in de directe omgeving. Openbaar vervoer is op korte afstand beschikbaar.
OPPERVLAKTEN SAMENGEVAT
Totaal kantoor: 325 m² (incl. 50 m² kelder).
Totaal bedrijfsruimte: 342 m².
Totaal terrein: 600 m².
Deelverhuur is mogelijk!
OPPERVLAKTE EN HUURPRIJS
- Kantoorruimte/winkel:
145 m² kantoor/winkel (unit D) en 50 m² kelder
huurprijs € 100,- per m² per jaar voor kantoor en
€ 30,- per m² per jaar voor kelder.
Bovengelegen kantoorruimtes: 130 m²
huurprijs € 40,- per m² per jaar.
- Bedrijfsruimte:
Unit A: 143 m²
huurprijs € 1.250,- per maand.
Unit B 21m² + entresol 50 m² + Unit C 53 m²
totaal huurprijs € 850,- per maand.
- Functionele ruimte
kantoor/opslag): 75 m²
huurprijs € 475,- per maand.
- Achtergelegen terrein: circa 600 m²
huurprijs € 1.750,- per maand, separaat te huur en flexibel in te zetten.
Alle genoemde bedragen zijn exclusief servicekosten en btw.
WIJ VERWIJZEN U NAAR DE IN DE BROCHURE OPGENOMEN PLATTEGROND TER ILLUSTRATIE.
VOORZIENINGEN
De ruimtes zijn voorzien van
- nette kantoor- en winkelvloeren,
- kabelgoten en elektra-aansluitingen,
- gemeenschappelijke sanitaire voorzieningen,
- pantry en faciliteiten voor medewerkers,
- toegang tot kelderruimte voor archief of opslag,
- een representatieve entree.
PARKEREN
Parkeermogelijkheden in de directe omgeving.
SERVICEKOSTEN
Servicekosten worden in overleg bepaald en betreffen onder andere onderhoud van gemeenschappelijke ruimten, schoonmaak en afvalafvoer. Huurder is zelf verantwoordelijk voor nutsvoorzieningen en verzekeringen.
BTW
Uitgangspunt is een met btw belaste huurprijs. Daarom dient de huurprijs te worden vermeerderd met het van toepassing zijnde btw-percentage. Indien huurder niet aan het 90% criterium voldoet, zal er van rechtswege sprake zijn van omzetbelasting vrijgestelde huur. Dan wordt de overeengekomen kale huurprijs, exclusief omzetbelasting, zodanig verhoogd dat het voor verhuurder ontstane nadeel wordt gecompenseerd.
INDEXERING
De huurprijs zal jaarlijks, voor het eerst één jaar na huuringangsdatum, worden verhoogd op basis van de consumentenprijsindex (CPI), reeks voor alle huishoudens (2015 = 100), zoals wordt gepubliceerd door het Centraal Bureau voor de Statistiek (CBS).
BETALINGEN
Verhuurder geeft de voorkeur aan betaling per maand vooruit.
HUURTERMIJN
Flexibele huurtermijnen mogelijk en bespreekbaar.
OPZEGTERMIJN
12 maanden voor expiratiedatum.
ZEKERHEIDSTELLING
Een bankgarantie of waarborgsom van tenminste drie maanden huur en servicekosten te vermeerderen met btw.
HUUROVEREENKOMST
De huurovereenkomst zal zijn gebaseerd op het model Kantoorruimte en andere bedrijfsruimte in de zin van artikel 7:230a BW, zoals is vastgesteld door de Raad voor Onroerende Zaken (ROZ) in 2015, met de bijbehorende algemene bepalingen.
AANVAARDING
In overleg.
Het bedrijfsobject aan de Nijverheidsweg-Noord 42 te Amersfoort bestaat uit representatieve kantoor- en winkelruimte, gecombineerd met achtergelegen buitenterrein. Het pand is geschikt voor diverse kantoor-, winkel- of bedrijfsconcepten. De ruimtes zijn bereikbaar via een nette entree en bieden een prettige werkomgeving met veel daglicht.
Het aanbod omvat verschillende typen ruimten, variërend van kantoor- en winkelruimte met kelder tot praktische bedrijfsunits en een royaal buitenterrein. De kantoorruimten zijn licht, goed indeelbaar en geschikt voor uiteenlopende bedrijfsactiviteiten. De hallen bieden uitstekende mogelijkheden voor opslag, werkplaats of lichte productie. Bovengelegen kantoorruimtes zijn eveneens beschikbaar en bieden een lichte en representatieve werkomgeving. Het achtergelegen terrein biedt ruimte voor laden, lossen of parkeren en kan separaat worden gehuurd.
LOCATIE
Het object is gelegen op bedrijventerrein Nijverheidsweg-Noord, een goed bereikbaar en professioneel gebied aan de noordzijde van Amersfoort. De locatie biedt snelle aansluiting op de A1 en de A28, evenals goede verbindingen met het centrum van Amersfoort.
BEREIKBAARHEID
Het pand is uitstekend bereikbaar met de auto, met ruime parkeermogelijkheden op eigen terrein en in de directe omgeving. Openbaar vervoer is op korte afstand beschikbaar.
OPPERVLAKTEN SAMENGEVAT
Totaal kantoor: 325 m² (incl. 50 m² kelder).
Totaal bedrijfsruimte: 342 m².
Totaal terrein: 600 m².
Deelverhuur is mogelijk!
OPPERVLAKTE EN HUURPRIJS
- Kantoorruimte/winkel:
145 m² kantoor/winkel (unit D) en 50 m² kelder
huurprijs € 100,- per m² per jaar voor kantoor en
€ 30,- per m² per jaar voor kelder.
Bovengelegen kantoorruimtes: 130 m²
huurprijs € 40,- per m² per jaar.
- Bedrijfsruimte:
Unit A: 143 m²
huurprijs € 1.250,- per maand.
Unit B 21m² + entresol 50 m² + Unit C 53 m²
totaal huurprijs € 850,- per maand.
- Functionele ruimte
kantoor/opslag): 75 m²
huurprijs € 475,- per maand.
- Achtergelegen terrein: circa 600 m²
huurprijs € 1.750,- per maand, separaat te huur en flexibel in te zetten.
Alle genoemde bedragen zijn exclusief servicekosten en btw.
WIJ VERWIJZEN U NAAR DE IN DE BROCHURE OPGENOMEN PLATTEGROND TER ILLUSTRATIE.
VOORZIENINGEN
De ruimtes zijn voorzien van
- nette kantoor- en winkelvloeren,
- kabelgoten en elektra-aansluitingen,
- gemeenschappelijke sanitaire voorzieningen,
- pantry en faciliteiten voor medewerkers,
- toegang tot kelderruimte voor archief of opslag,
- een representatieve entree.
PARKEREN
Parkeermogelijkheden in de directe omgeving.
SERVICEKOSTEN
Servicekosten worden in overleg bepaald en betreffen onder andere onderhoud van gemeenschappelijke ruimten, schoonmaak en afvalafvoer. Huurder is zelf verantwoordelijk voor nutsvoorzieningen en verzekeringen.
BTW
Uitgangspunt is een met btw belaste huurprijs. Daarom dient de huurprijs te worden vermeerderd met het van toepassing zijnde btw-percentage. Indien huurder niet aan het 90% criterium voldoet, zal er van rechtswege sprake zijn van omzetbelasting vrijgestelde huur. Dan wordt de overeengekomen kale huurprijs, exclusief omzetbelasting, zodanig verhoogd dat het voor verhuurder ontstane nadeel wordt gecompenseerd.
INDEXERING
De huurprijs zal jaarlijks, voor het eerst één jaar na huuringangsdatum, worden verhoogd op basis van de consumentenprijsindex (CPI), reeks voor alle huishoudens (2015 = 100), zoals wordt gepubliceerd door het Centraal Bureau voor de Statistiek (CBS).
BETALINGEN
Verhuurder geeft de voorkeur aan betaling per maand vooruit.
HUURTERMIJN
Flexibele huurtermijnen mogelijk en bespreekbaar.
OPZEGTERMIJN
12 maanden voor expiratiedatum.
ZEKERHEIDSTELLING
Een bankgarantie of waarborgsom van tenminste drie maanden huur en servicekosten te vermeerderen met btw.
HUUROVEREENKOMST
De huurovereenkomst zal zijn gebaseerd op het model Kantoorruimte en andere bedrijfsruimte in de zin van artikel 7:230a BW, zoals is vastgesteld door de Raad voor Onroerende Zaken (ROZ) in 2015, met de bijbehorende algemene bepalingen.
AANVAARDING
In overleg.
Kenmerken
Overdracht
- Huurprijs
- Huurprijs op aanvraag
- Aangeboden sinds
-
- Status
- Beschikbaar
- Aanvaarding
- In overleg
Bouw
- Hoofdfunctie
- Bedrijfshal
- Soort bouw
- Bestaande bouw
- Bouwjaar
- 1960
Oppervlakten
- Oppervlakte
- 667 m² (in units vanaf 20 m²)
- Bedrijfshal oppervlak
- 342 m²
- Terrein oppervlak
- 600 m²
- Kantoor oppervlak
- 325 m²
- Perceel
- 4.181 m²
Indeling
- Aantal bouwlagen
- 1 bouwlaag
- Voorzieningen
- Betonvloer en toilet
Energie
- Energielabel
- Niet beschikbaar
Omgeving
- Ligging
- Bedrijventerrein
Foto's