Omschrijving
HET GEBOUW
Het betreft een bedrijfsruimte gelegen op een centrale locatie aan het Waterlooplein 289 in het hart van Amsterdam. Deze representatieve ruimte maakt deel uit van een multifunctioneel gebouw met een gemengd karakter. Dankzij de ligging midden in het historische centrum en op steenworp afstand van de Amstel, geniet de locatie van een uitstekende zichtbaarheid en dynamische uitstraling.
De omgeving wordt gekenmerkt door een mix van culturele voorzieningen, horeca en winkels, wat bijdraagt aan een levendige en inspirerende werkomgeving. De directe nabijheid van het openbaar vervoer –waaronder metrostation Waterlooplein –garandeert een optimale bereikbaarheid voor medewerkers en bezoekers.
Deze locatie biedt een uitstekende balans tussen de bruisende binnenstad en een professionele werkomgeving, waardoor het uitermate geschikt is voor bedrijven die op zoek zijn naar een unieke vestigingsplek met karakter en functionaliteit.
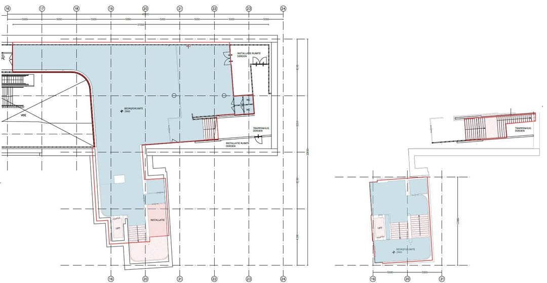
VERHUURBARE OPPERVLAKTE
Het betreft hier in totaal circa 460 m² v.v.o. bedrijfsruimte verdeeld over de begane grond en het souterrain:
Begane grond: circa 68 m²
Souterrain: circa 392 m²
AANVANGHUURPRIJS
€ 82.500,-per jaar te vermeerderen met omzetbelasting en servicekosten.
SERVICEKOSTEN
PM
HUURINGANGSDATUM/OPLEVERING
Per direct.
BESTEMMING
De publiek-/privaatrechtelijke bestemming is bedrijfsruimte.
• kantoren met baliefunctie
• voorzieningen, max 1000 m², met inbegrip van additionele horeca met uitzondering van automatenhallen;
• galeries;
• detailhandel, met inbegrip van een mengformule, met uitzondering van smartshops, minisupermarkten, souvenirwinkels, headshops, seedshops en growshops.
• consumentverzorgende dienstverlening, max 300 m², met inbegrip van een mengformule, met uitzondering van geldwisselkantoren, telefoneerinrichtingen en massagesalons.
• inpandige en ondergrondse fietsenstallingen.
HUURPRIJSINDEXERING
De huurprijs wordt jaarlijks geïndexeerd, voor het eerst één jaar na huuringangsdatum, op basis van het prijsindexcijfer volgens de consumentenprijsindex (CPI) reeks Alle Huishoudens (2015 = 100) gepubliceerd door het Centraal Bureau voor de Statistiek (CBS).
HUURTERMIJN
5 (vijf) jaren met een verlengingsperiode van 5 (vijf) jaren; opzegtermijn 12 (twaalf) maanden.
ZEKERHEIDSSTELLING
Er dient een bankgarantie gesteld te worden ter grootte van een bedrag gelijk aan 3 (drie) maanden huur en servicekosten, te vermeerderen met BTW, afhankelijk van de te verkrijgen kredietinformatie.
VOORWAARDEN &CONDITIES
Er zal gewerkt worden langs de lijnen van een standaard huurcontract, zoals opgesteld door de Raad voor Onroerende Zaken (ROZ), model februari 2015.
BTW
Er zal geopteerd worden voor BTW-belaste verhuur. Huurder dient derhalve voor meer dan 90% BTW-belaste leveringen en diensten blijvend te leveren.
BEREIKBAARHEID
Auto
Waterlooplein 289 is goed bereikbaar met de auto via de Valkenburgerstraat (S116) en de IJtunnel, met directe aansluiting op de ringweg A10. Vanuit de A10 is het centrum snel te bereiken, waardoor ook locaties zoals Amsterdam-Zuid, Schiphol en omliggende regio’s goed toegankelijk zijn.
Parkeren
Parkeren is mogelijk op de openbare weg rondom het Waterlooplein, waar betaald parkeren geldt. In de directe omgeving bevinden zich tevens diverse parkeergarages op loopafstand.
Openbaar vervoer
De bereikbaarheid met het openbaar vervoer is uitstekend. Metrostation Waterlooplein ligt direct voor de deur en biedt toegang tot metrolijnen 51, 53 en 54 met een snelle verbinding naar Amsterdam Centraal, Amsterdam Amstel en Station Zuid. Ook stoppen meerdere tramlijnen (waaronder lijn 14) in de directe nabijheid, wat zorgt voor een vlotte verbinding binnen de stad.
Het betreft een bedrijfsruimte gelegen op een centrale locatie aan het Waterlooplein 289 in het hart van Amsterdam. Deze representatieve ruimte maakt deel uit van een multifunctioneel gebouw met een gemengd karakter. Dankzij de ligging midden in het historische centrum en op steenworp afstand van de Amstel, geniet de locatie van een uitstekende zichtbaarheid en dynamische uitstraling.
De omgeving wordt gekenmerkt door een mix van culturele voorzieningen, horeca en winkels, wat bijdraagt aan een levendige en inspirerende werkomgeving. De directe nabijheid van het openbaar vervoer –waaronder metrostation Waterlooplein –garandeert een optimale bereikbaarheid voor medewerkers en bezoekers.
Deze locatie biedt een uitstekende balans tussen de bruisende binnenstad en een professionele werkomgeving, waardoor het uitermate geschikt is voor bedrijven die op zoek zijn naar een unieke vestigingsplek met karakter en functionaliteit.
VERHUURBARE OPPERVLAKTE
Het betreft hier in totaal circa 460 m² v.v.o. bedrijfsruimte verdeeld over de begane grond en het souterrain:
Begane grond: circa 68 m²
Souterrain: circa 392 m²
AANVANGHUURPRIJS
€ 82.500,-per jaar te vermeerderen met omzetbelasting en servicekosten.
SERVICEKOSTEN
PM
HUURINGANGSDATUM/OPLEVERING
Per direct.
BESTEMMING
De publiek-/privaatrechtelijke bestemming is bedrijfsruimte.
• kantoren met baliefunctie
• voorzieningen, max 1000 m², met inbegrip van additionele horeca met uitzondering van automatenhallen;
• galeries;
• detailhandel, met inbegrip van een mengformule, met uitzondering van smartshops, minisupermarkten, souvenirwinkels, headshops, seedshops en growshops.
• consumentverzorgende dienstverlening, max 300 m², met inbegrip van een mengformule, met uitzondering van geldwisselkantoren, telefoneerinrichtingen en massagesalons.
• inpandige en ondergrondse fietsenstallingen.
HUURPRIJSINDEXERING
De huurprijs wordt jaarlijks geïndexeerd, voor het eerst één jaar na huuringangsdatum, op basis van het prijsindexcijfer volgens de consumentenprijsindex (CPI) reeks Alle Huishoudens (2015 = 100) gepubliceerd door het Centraal Bureau voor de Statistiek (CBS).
HUURTERMIJN
5 (vijf) jaren met een verlengingsperiode van 5 (vijf) jaren; opzegtermijn 12 (twaalf) maanden.
ZEKERHEIDSSTELLING
Er dient een bankgarantie gesteld te worden ter grootte van een bedrag gelijk aan 3 (drie) maanden huur en servicekosten, te vermeerderen met BTW, afhankelijk van de te verkrijgen kredietinformatie.
VOORWAARDEN &CONDITIES
Er zal gewerkt worden langs de lijnen van een standaard huurcontract, zoals opgesteld door de Raad voor Onroerende Zaken (ROZ), model februari 2015.
BTW
Er zal geopteerd worden voor BTW-belaste verhuur. Huurder dient derhalve voor meer dan 90% BTW-belaste leveringen en diensten blijvend te leveren.
BEREIKBAARHEID
Auto
Waterlooplein 289 is goed bereikbaar met de auto via de Valkenburgerstraat (S116) en de IJtunnel, met directe aansluiting op de ringweg A10. Vanuit de A10 is het centrum snel te bereiken, waardoor ook locaties zoals Amsterdam-Zuid, Schiphol en omliggende regio’s goed toegankelijk zijn.
Parkeren
Parkeren is mogelijk op de openbare weg rondom het Waterlooplein, waar betaald parkeren geldt. In de directe omgeving bevinden zich tevens diverse parkeergarages op loopafstand.
Openbaar vervoer
De bereikbaarheid met het openbaar vervoer is uitstekend. Metrostation Waterlooplein ligt direct voor de deur en biedt toegang tot metrolijnen 51, 53 en 54 met een snelle verbinding naar Amsterdam Centraal, Amsterdam Amstel en Station Zuid. Ook stoppen meerdere tramlijnen (waaronder lijn 14) in de directe nabijheid, wat zorgt voor een vlotte verbinding binnen de stad.
Kaart
Kaart laden...
Kadastrale grens
Bebouwing
Reistijd
Krijg inzicht in de bereikbaarheid van dit object vanuit bijvoorbeeld een openbaar vervoer station of vanuit een adres.