Westhavenweg 93 1042 BA Amsterdam
€ 395.000 /jr
€ 3.975.000 k.k.
Omschrijving
Kerngegevens:
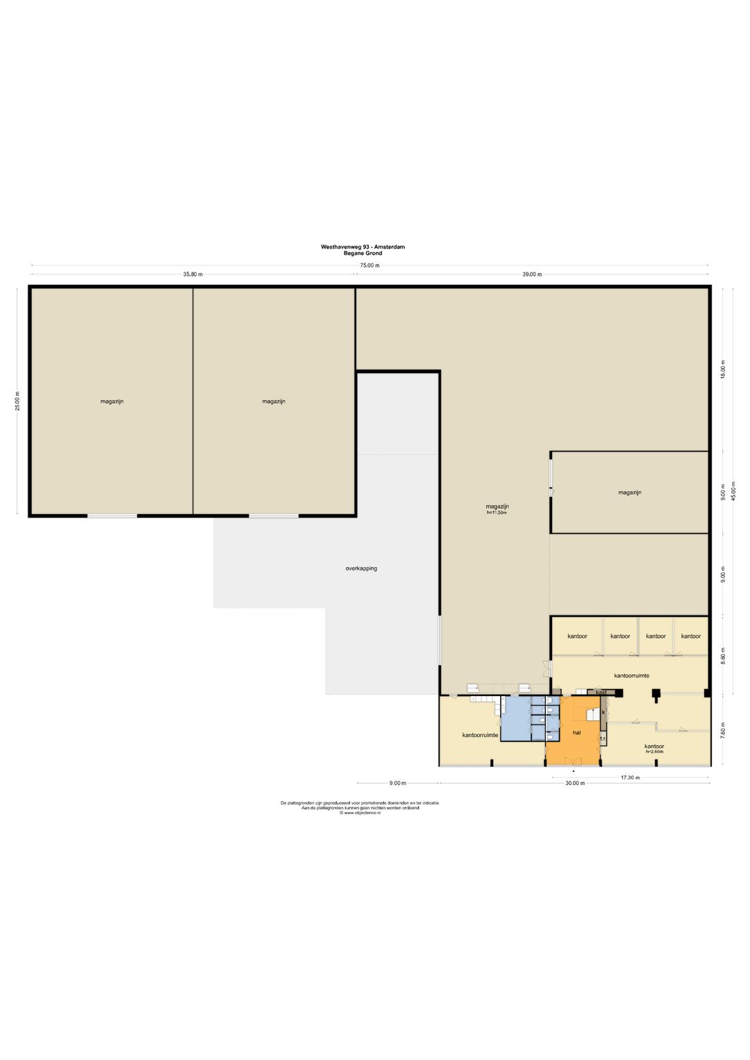
Vrijstaand bedrijfspand op een kavel van totaal 8.360 m²
met een bebouwing van circa:
- 2.180 m² bedrijfsruimte
- 900 m² mezzanine
- 500 m² overkapping
- 826 m² kantoorruimte
- - 5.000 m² terrein.
Vrije hoogte bedrijfsruimte: 11,5 m²
Circa 1.064 m² terrein extra bij te huren!!
Object:
Het object is gelegen aan de Westhavenweg 93 te Amsterdam en beschikt over een groot buitenterrein van circa 5.000 m², uit te breiden naar circa 6.064 m², welke afsluitbaar is middels een elektrisch bedienbaar hek. Het kantoor is verdeeld over 3 bouwlagen, waarbij elke bouwlaag is voorzien van een pantry en toiletgroep. Op de begane grond is een kantine gelegen. De bedrijfsruimte is achter de kantoorruimte gelegen, waarbij een deel 2 lagen entresolvloer heeft.
Bereikbaarheid:
Het object is uitstekend bereikbaar vanaf de ringweg A10 afslag S101 en S102 (Westpoort), via de Basisweg en de Radarweg vindt u makkelijk aansluiting op de Westhavenweg.
Opleveringsniveau:
Bedrijfsruimte:
- overheaddeuren
- laadkuil met 2 docks (heden dichtgestort maar te openen)
- vrije hoogte 11,5 m (grotendeels)
- vloerbelasting 2.500 m²
- betonvloer
- LED verlichting
- lichtstraten
- heaters.
Turn-key kantoorruimte onder andere voorzien van:
- systeemplafond voorzien van LED verlichting
- verwarmd en gekoeld
- vloerbedekking
- scheidingswanden
- toiletgroep
- pantry.
Stroom:
Het gecontracteerd transportvermogen is 35,0 kW.
Oppervlakte:
Kavel van totaal 8.360 m², waarop bebouwd, totaal 3.080 m² bedrijfsruimte, verdeeld over:
- 2.180 m² op de begane grond
- 450 m² entresolvloer ("eerste" verdieping)
- 450 m² entresolvloer ("tweede" verdieping)
Totaal 820 m² kantoorruimte, verdeeld over:
- 370 m² op de begane grond
- 225 m² op de eerste verdieping
- 225 m² op de tweede verdieping
Verder wordt er thans van de haven Amsterdam een tweetal terreinen gehuurd om personenauto's te parkeren.
Kadastraal:
Gemeente: Amsterdam / Sloten
Sectie: AI / K
Nummer: 728 / 3895
Kadastrale grootte: 7.930 m² resp. 430 m²
Koopsom:
€ 3.975.000,- k.k. te vermeerderen met BTW.
Aanvangshuurprijs:
€ 395.000,- per jaar vrij van BTW.
Huurprijsindexatie:
Jaarlijks op basis van de consumentenprijsindex, reeks alle huishoudens (2015 = 100) zoals gepubliceerd door het Centraal Bureau voor de Statistiek.
Huurtermijn:
5 jaar met een verlenging van telkens 5 jaar, andere termijnen bespreekbaar.
Rekening houdend met een opzegtermijn van 12 maanden.
Huurbetaling:
Per maand vooruit.
Bankgarantie:
Ter grootte van minimaal 3 maanden huur, te vermeerderen met servicekosten en de wettelijke verschuldigde BTW.
Aanvaarding:
In overleg eind Q1 2026.
Zakelijkrecht:
Tijdelijk recht van erfpacht uitgegeven door de gemeente Amsterdam. Het lopende tijdvak is 50 jaar en loopt tot en met 30-04-2059. De Algemene Voorwaarden voor Tijdelijke Erfpacht in het Havengebied 2007 zijn van toepassing.
Erfpachtcanon:
De huidige canon is € 94.322,80 per jaar (prijspeil 2025).
Bestemming:
Bestemmingsplan Westhaven, bestemming: Bedrijf-2, bestemd voor bedrijven die vallen in categorie 1, 2, 3, 4 of 5.
Tevens dient het object conform de erfpachtvoorwaarden te worden gebruikt.
Bijzonderheden:
Voor de verhuur / verkoop is toestemming nodig van de Haven Amsterdam.
De informatie is van algemene aard.
Aan deze informatie kunnen geen rechten worden ontleend.
Vrijstaand bedrijfspand op een kavel van totaal 8.360 m²
met een bebouwing van circa:
- 2.180 m² bedrijfsruimte
- 900 m² mezzanine
- 500 m² overkapping
- 826 m² kantoorruimte
- - 5.000 m² terrein.
Vrije hoogte bedrijfsruimte: 11,5 m²
Circa 1.064 m² terrein extra bij te huren!!
Object:
Het object is gelegen aan de Westhavenweg 93 te Amsterdam en beschikt over een groot buitenterrein van circa 5.000 m², uit te breiden naar circa 6.064 m², welke afsluitbaar is middels een elektrisch bedienbaar hek. Het kantoor is verdeeld over 3 bouwlagen, waarbij elke bouwlaag is voorzien van een pantry en toiletgroep. Op de begane grond is een kantine gelegen. De bedrijfsruimte is achter de kantoorruimte gelegen, waarbij een deel 2 lagen entresolvloer heeft.
Bereikbaarheid:
Het object is uitstekend bereikbaar vanaf de ringweg A10 afslag S101 en S102 (Westpoort), via de Basisweg en de Radarweg vindt u makkelijk aansluiting op de Westhavenweg.
Opleveringsniveau:
Bedrijfsruimte:
- overheaddeuren
- laadkuil met 2 docks (heden dichtgestort maar te openen)
- vrije hoogte 11,5 m (grotendeels)
- vloerbelasting 2.500 m²
- betonvloer
- LED verlichting
- lichtstraten
- heaters.
Turn-key kantoorruimte onder andere voorzien van:
- systeemplafond voorzien van LED verlichting
- verwarmd en gekoeld
- vloerbedekking
- scheidingswanden
- toiletgroep
- pantry.
Stroom:
Het gecontracteerd transportvermogen is 35,0 kW.
Oppervlakte:
Kavel van totaal 8.360 m², waarop bebouwd, totaal 3.080 m² bedrijfsruimte, verdeeld over:
- 2.180 m² op de begane grond
- 450 m² entresolvloer ("eerste" verdieping)
- 450 m² entresolvloer ("tweede" verdieping)
Totaal 820 m² kantoorruimte, verdeeld over:
- 370 m² op de begane grond
- 225 m² op de eerste verdieping
- 225 m² op de tweede verdieping
Verder wordt er thans van de haven Amsterdam een tweetal terreinen gehuurd om personenauto's te parkeren.
Kadastraal:
Gemeente: Amsterdam / Sloten
Sectie: AI / K
Nummer: 728 / 3895
Kadastrale grootte: 7.930 m² resp. 430 m²
Koopsom:
€ 3.975.000,- k.k. te vermeerderen met BTW.
Aanvangshuurprijs:
€ 395.000,- per jaar vrij van BTW.
Huurprijsindexatie:
Jaarlijks op basis van de consumentenprijsindex, reeks alle huishoudens (2015 = 100) zoals gepubliceerd door het Centraal Bureau voor de Statistiek.
Huurtermijn:
5 jaar met een verlenging van telkens 5 jaar, andere termijnen bespreekbaar.
Rekening houdend met een opzegtermijn van 12 maanden.
Huurbetaling:
Per maand vooruit.
Bankgarantie:
Ter grootte van minimaal 3 maanden huur, te vermeerderen met servicekosten en de wettelijke verschuldigde BTW.
Aanvaarding:
In overleg eind Q1 2026.
Zakelijkrecht:
Tijdelijk recht van erfpacht uitgegeven door de gemeente Amsterdam. Het lopende tijdvak is 50 jaar en loopt tot en met 30-04-2059. De Algemene Voorwaarden voor Tijdelijke Erfpacht in het Havengebied 2007 zijn van toepassing.
Erfpachtcanon:
De huidige canon is € 94.322,80 per jaar (prijspeil 2025).
Bestemming:
Bestemmingsplan Westhaven, bestemming: Bedrijf-2, bestemd voor bedrijven die vallen in categorie 1, 2, 3, 4 of 5.
Tevens dient het object conform de erfpachtvoorwaarden te worden gebruikt.
Bijzonderheden:
Voor de verhuur / verkoop is toestemming nodig van de Haven Amsterdam.
De informatie is van algemene aard.
Aan deze informatie kunnen geen rechten worden ontleend.
Kenmerken
Overdracht
- Vraagprijs
- € 3.975.000 kosten koper
- Huurprijs
- € 395.000 per jaar
- Aangeboden sinds
-
- Status
- Beschikbaar
- Aanvaarding
- In overleg
Bouw
- Hoofdfunctie
- Bedrijfshal
- Soort bouw
- Bestaande bouw
- Bouwjaar
- 2010
Oppervlakten
- Oppervlakte
- 3.006 m²
- Bedrijfshal oppervlak
- 2.180 m²
- Terrein oppervlak
- 5.000 m²
- Kantoor oppervlak
- 826 m²
- Vrije hoogte
- 11,5 m
- Vrije overspanning
- 30 m
- Draagvermogen
- 2.500 kg/m²
- Perceel
- 7.930 m²
Indeling
- Aantal bouwlagen
- 3 bouwlagen
- Voorzieningen
- Lichtstraten, overheaddeuren, krachtstroom, betonvloer, heater, toilet, pantry, airconditioning, mechanische ventilatie, inbouwarmaturen en te openen ramen
Energie
- Energielabel
- Niet beschikbaar
Omgeving
- Ligging
- Bedrijventerrein en havengebied
- Bereikbaarheid
- NS Intercitystation op 3000 m tot 4000 m en snelwegafrit op 1500 m tot 2000 m
NVM makelaar
Foto's
Plattegrond
BEGANE GROND
EERSTE VERDIEPING
TWEEDE VERDIEPING