Omschrijving
Multifunctioneel bedrijfspand met kantoorruimte beschikbaar aan de Lorentzstraat 29 in Bleiswijk
Op een goed bereikbare locatie aan de Lorentzstraat 29 in Bleiswijk bieden wij een multifunctioneel bedrijfspand met kantoorruimte aan. Het pand is modern ingericht en voldoet aan de hedendaagse eisen. Door de praktische indeling, de ruime opzet en de uitstekende bereikbaarheid is deze unit bij uitstek geschikt voor ondernemers in het midden- en kleinbedrijf.
Het bedrijfspand ligt op een strategische locatie op bedrijventerrein De Hoefslag, nabij de op- en afritten van de A12 en A20. Hierdoor zijn steden als Rotterdam, Den Haag, Gouda en Utrecht goed bereikbaar. Deze centrale ligging in de Randstad maakt het object aantrekkelijk voor zowel lokale als regionaal opererende bedrijven.
METRAGES (BVO)
Begane grond:
Bedrijfsruimte: circa 76 m2
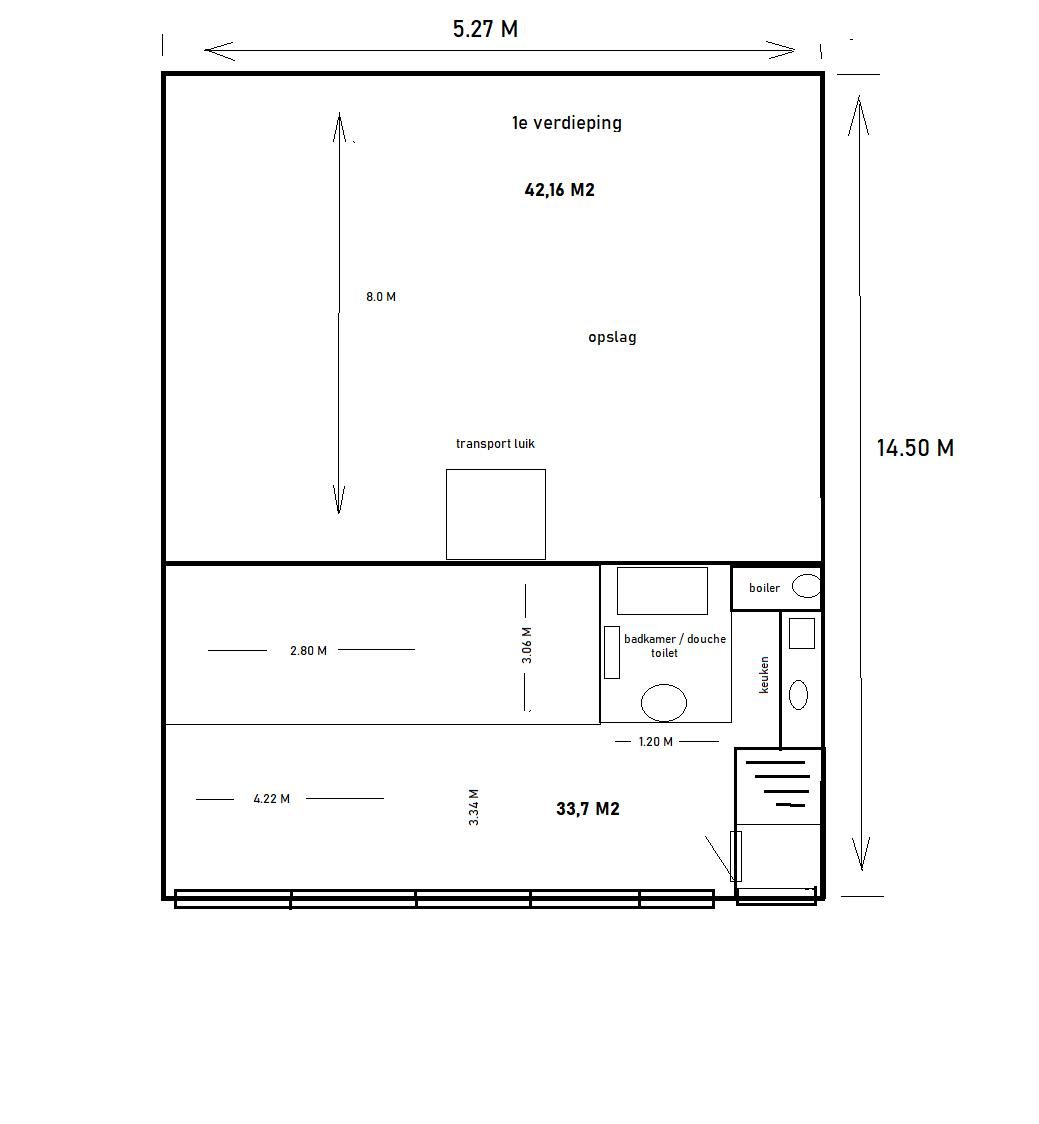
Eerste verdieping:
Kantoorruimte: circa 33 m2
Opslagruimte: circa. 42 m2
PARKEREN
Het bedrijfspand beschikt over één privé parkeerplaats. In de nabije omgeving is er voldoende extraparkeergelegenheid aanwezig.
BESTEMMINGSPLAN
Volgens het actuele bestemmingsplan heeft het pand een “Bedrijventerrein” bestemming met een functieaanduiding tot en met categorie 3.1.
Als gebruiker bent u zelf verantwoordelijk om navraag te doen naar het actuele bestemmingsplan bij de gemeente. Aan deze omschrijving kunnen geen rechten ontleend worden.
OPLEVERINGSNIVEAU KANTOORRUIMTE
- Hardhouten kozijnen met te openen ramen en dubbele belgazing
- Doucheruimte/ toilet
- Glasvezel in de meterkast
- Kamerindeling
- Laminaatvloer
- Pantry incl. koelkast, combimagnetron en elektrische kookplaat
- Stucwerkwanden
- Systeemplafond met inbouwledverlichting
- Zuinige elektrisch - boiler, jaar: 2024
- Zuinige elektrische verwarming
OPLEVERINGSNIVEAU BEDRIJFSRUIMTE
- Energielabel: A
- Brandpreventiemiddelen
- Krachtstroom (3x 40 A)
- Betonvloer
- Elektrische Reachtruck met lader (in overleg)
KADASTRALE GEGEVENS
Gemeente: Bleiswijk
Sectie: B
Percelen: 1687
Appartementsindex: 25
KOOPCONDITIES
Vraagprijs: € 249.000,- K.K.
Zekerheidstelling: Waarborgsom of bankgarantie van 10% van de koopsom. De koper dient deze 2 weken ná het vervallen van de ontbindende voorwaarden bij de desbetreffende notaris te deponeren.
VVE-bijdrage: € 2.400,- per jaar.
BTW: Nee, is niet van toepassing.
Aanvaarding: In overleg.
GOEDKEURING
Het bovenstaande is onder finaal voorbehoud van de eigenaar.
Disclaimer: Ondanks dat deze publicatie met de grootst mogelijke zorgvuldigheid is samengesteld is de Online Bedrijfsmakelaar BV niet aansprakelijk te stellen voor onjuiste of onvolledige informatie die in deze publicatie vermeld staan. Aan deze gegevens kunnen geen rechten worden ontleend.
====================
Alle beschikbare informatie ontvangen?
Benieuwd naar alle beschikbare informatie over het pand? Vraag dan nu, onder de grote contactbutton, de gratis objectbrochure van de Lorentzstraat 29 in Bleiswijk aan en ontvang de objectbrochure binnen 5 minuten in uw mailbox. Uiteraard kunt u ook direct een geheel vrijblijvende bezichtiging met de beheerder van het pand inplannen.
Op een goed bereikbare locatie aan de Lorentzstraat 29 in Bleiswijk bieden wij een multifunctioneel bedrijfspand met kantoorruimte aan. Het pand is modern ingericht en voldoet aan de hedendaagse eisen. Door de praktische indeling, de ruime opzet en de uitstekende bereikbaarheid is deze unit bij uitstek geschikt voor ondernemers in het midden- en kleinbedrijf.
Het bedrijfspand ligt op een strategische locatie op bedrijventerrein De Hoefslag, nabij de op- en afritten van de A12 en A20. Hierdoor zijn steden als Rotterdam, Den Haag, Gouda en Utrecht goed bereikbaar. Deze centrale ligging in de Randstad maakt het object aantrekkelijk voor zowel lokale als regionaal opererende bedrijven.
METRAGES (BVO)
Begane grond:
Bedrijfsruimte: circa 76 m2
Eerste verdieping:
Kantoorruimte: circa 33 m2
Opslagruimte: circa. 42 m2
PARKEREN
Het bedrijfspand beschikt over één privé parkeerplaats. In de nabije omgeving is er voldoende extraparkeergelegenheid aanwezig.
BESTEMMINGSPLAN
Volgens het actuele bestemmingsplan heeft het pand een “Bedrijventerrein” bestemming met een functieaanduiding tot en met categorie 3.1.
Als gebruiker bent u zelf verantwoordelijk om navraag te doen naar het actuele bestemmingsplan bij de gemeente. Aan deze omschrijving kunnen geen rechten ontleend worden.
OPLEVERINGSNIVEAU KANTOORRUIMTE
- Hardhouten kozijnen met te openen ramen en dubbele belgazing
- Doucheruimte/ toilet
- Glasvezel in de meterkast
- Kamerindeling
- Laminaatvloer
- Pantry incl. koelkast, combimagnetron en elektrische kookplaat
- Stucwerkwanden
- Systeemplafond met inbouwledverlichting
- Zuinige elektrisch - boiler, jaar: 2024
- Zuinige elektrische verwarming
OPLEVERINGSNIVEAU BEDRIJFSRUIMTE
- Energielabel: A
- Brandpreventiemiddelen
- Krachtstroom (3x 40 A)
- Betonvloer
- Elektrische Reachtruck met lader (in overleg)
KADASTRALE GEGEVENS
Gemeente: Bleiswijk
Sectie: B
Percelen: 1687
Appartementsindex: 25
KOOPCONDITIES
Vraagprijs: € 249.000,- K.K.
Zekerheidstelling: Waarborgsom of bankgarantie van 10% van de koopsom. De koper dient deze 2 weken ná het vervallen van de ontbindende voorwaarden bij de desbetreffende notaris te deponeren.
VVE-bijdrage: € 2.400,- per jaar.
BTW: Nee, is niet van toepassing.
Aanvaarding: In overleg.
GOEDKEURING
Het bovenstaande is onder finaal voorbehoud van de eigenaar.
Disclaimer: Ondanks dat deze publicatie met de grootst mogelijke zorgvuldigheid is samengesteld is de Online Bedrijfsmakelaar BV niet aansprakelijk te stellen voor onjuiste of onvolledige informatie die in deze publicatie vermeld staan. Aan deze gegevens kunnen geen rechten worden ontleend.
====================
Alle beschikbare informatie ontvangen?
Benieuwd naar alle beschikbare informatie over het pand? Vraag dan nu, onder de grote contactbutton, de gratis objectbrochure van de Lorentzstraat 29 in Bleiswijk aan en ontvang de objectbrochure binnen 5 minuten in uw mailbox. Uiteraard kunt u ook direct een geheel vrijblijvende bezichtiging met de beheerder van het pand inplannen.
Kaart
Kaart laden...
Kadastrale grens
Bebouwing
Reistijd
Krijg inzicht in de bereikbaarheid van dit object vanuit bijvoorbeeld een openbaar vervoer station of vanuit een adres.