Prismalaan West 17 2665 PC Bleiswijk
€ 275.000 /jr
Omschrijving
Algemeen: Het zeer representatieve en vrijstaande bedrijfspand is gelegen op het bedrijvenpark 'Prisma' te Bleiswijk.
Bereikbaarheid:
Eigen vervoer
Het bedrijvenpark 'Prisma' is door zijn ligging direct aan de rijksweg A-12 (Den Haag - Utrecht v.v.) en verbindingswegen N-209 en N-470 uitstekend bereikbaar.
Openbaar vervoer
Het RandstadRail station Zoetermeer, Van Tuyllpark is direct tegenover het object gelegen. Het station Lansingerland - Zoetermeer is eveneens gelegen op loopafstand en betreft een spoorwegstation op de kruising van het verlengde Oosterheemtracé van RandstadRail en de spoorlijn Gouda - Den Haag op de grens van Bleiswijk en Zoetermeer. Met 700 P+R plekken is het tevens een ideale overstaplocatie.
Adres: Prismalaan West 17, 2665 PC te Bleiswijk.
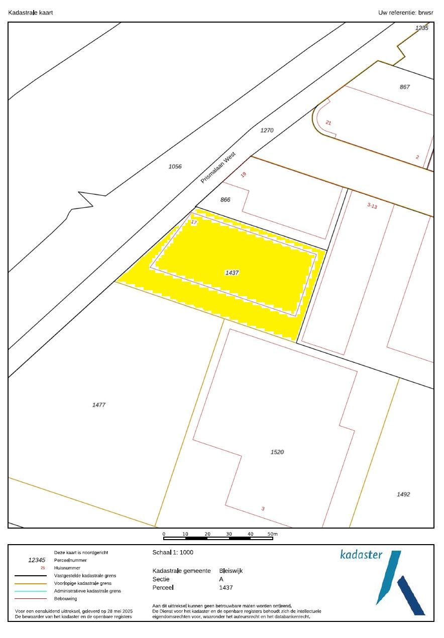
Kadastrale gegevens:
Gemeente: Bleiswijk
Sectie: A
Nummer: 1437
Grootte: 3.419 m² (eigen grond)
Bouwjaar: Omstreeks 2019.
Het bedrijfspand heeft een totaal vloeroppervlak van ca. 2.396 m² bvo en is als volgt verdeeld:
Circa 1.674 m² bvo bedrijfsruimte
Circa 526 m² bvo kantoor -/ showroomruimte
Circa 196 m² bvo entresol / verdiepingsvloer (betonnen)
Parkeren: 22 parkeerplaatsen gelegen op eigen terrein.
Bestemming: De voor 'Bedrijventerrein' aangewezen gronden zijn bestemd voor:
c. ter plaatse van de aanduiding 'bedrijf tot en met categorie 4.1': bedrijven tot en met milieucategorie 4.1 als opgenomen in de Staat van bedrijfsactiviteiten, als onderdeel van deze regels.
Energielabel: Het bedrijfspand heeft een energielabel A+.
Het bedrijfspand wordt opgeleverd in huidige staat en is onder andere voorzien van:
- glad afgewerkte vloeistofdichte betonvloer met een vloerbelasting van ca. 2.500 kg/m² begane grond;
- vrije hoogte circa 8m1;
- elektrisch bedienbare overheaddeuren;
- glazen pui met toegangsdeur;
- elektrische aansluiting van 3 x 250 A;
- toegangscontrolesysteem;
- krachtstroomaansluitingen;
- aanwezigheidsdetectie;
- noodverlichting;
- alarmsysteem met camerabewaking;
- databekabeling (cat. 6);
- rookmelders;
- CV- ketel ten behoeve van vloerverwarming bedrijfsruimte;
- lucht/water warmtepomp VRF systeem en begane grond (kantoor) vloerverwarming als bijverwarming;
- vloerverwarming is in de bedrijfshal hoofdverwarming en in de kantoren op de begane grond bij verwarming;
- airco-unit (serverruimte);
- geconditioneerde ventilatie lucht ten behoeve van de kantoren, showroom, vergaderruimte, kantine en kleedruimte;
- gedeeltelijk LED- verlichting;
- toiletgroep(en);
- uitgebreide pantry;
- stijlvolle stalen trap naar 1e verdieping;
- aluminium kozijnen v.v. isolerende beglazing;
- alarminstallatie met camerasysteem;
- compleet ingerichte meterkast;
- brandslanghaspel;
- huidige vloerbedekking en/of vloertegels;
- hekwerk met schuifpoort (handmatig bedienbaar);
- 296 zonnepanelen (2023, 500 WP, totale capaciteit 148 kWp).
HUURVOORWAARDEN
Huurprijs: € 275.000,- per jaar te vermeerderen met de wettelijk verschuldigde omzetbelasting.
Huurtermijn: 5 (vijf) jaar met de mogelijkheid de huurovereenkomst telkens met 5 (vijf) jaar te verlengen.
Opzegtermijn: 12 (twaalf) maanden voor expiratie huurovereenkomst per aangetekend schrijven of bij deurwaardersexploot.
Oplevering: In overleg, op korte termijn mogelijk.
Huurbetaling: Per kwartaal vooruit te voldoen.
Huurprijsaanpassing: Jaarlijks, zal per huuringangsdatum, voor het eerst 12 maanden na huuringangsdatum, de huurprijs worden aangepast op basis van de wijziging van het maandprijsindexcijfer volgens de consumentenprijsindex (CPI) reeks alle huishoudens (2015 = 100), gepubliceerd door het Centraal Bureau voor de Statistiek (CBS).
Service- en energiekosten: Nader in overleg te bepalen.
Huurovereenkomst: Standaard huurovereenkomst kantoorruimte en andere bedrijfsruimte in de zin van artikel 7:230a BW, vastgesteld door de Raad van Onroerende Zaken (ROZ) in januari 2015. Van deze huurovereenkomst maken deel uit de algemene bepalingen kantoorruimte en andere bedrijfsruimte in de zin van artikel 7:230a BW, welke op 17 februari 2015 gedeponeerd zijn bij de griffie van de rechtbank Den Haag en aldaar zijn ingeschreven onder nummer 15/21.
Zekerheidsstelling: Bij ondertekening van de huurovereenkomst, zal huurder een bankgarantie of waarborgsom stellen ter grootte van drie maanden huurverplichting te vermeerderen met servicekosten en de wettelijk verschuldigde omzetbelasting.
Voorbehoud:
- positief kredietinformatierapport ter beoordeling van verhuurder;
- goedkeuring directie verhuurder.
Bereikbaarheid:
Eigen vervoer
Het bedrijvenpark 'Prisma' is door zijn ligging direct aan de rijksweg A-12 (Den Haag - Utrecht v.v.) en verbindingswegen N-209 en N-470 uitstekend bereikbaar.
Openbaar vervoer
Het RandstadRail station Zoetermeer, Van Tuyllpark is direct tegenover het object gelegen. Het station Lansingerland - Zoetermeer is eveneens gelegen op loopafstand en betreft een spoorwegstation op de kruising van het verlengde Oosterheemtracé van RandstadRail en de spoorlijn Gouda - Den Haag op de grens van Bleiswijk en Zoetermeer. Met 700 P+R plekken is het tevens een ideale overstaplocatie.
Adres: Prismalaan West 17, 2665 PC te Bleiswijk.
Kadastrale gegevens:
Gemeente: Bleiswijk
Sectie: A
Nummer: 1437
Grootte: 3.419 m² (eigen grond)
Bouwjaar: Omstreeks 2019.
Het bedrijfspand heeft een totaal vloeroppervlak van ca. 2.396 m² bvo en is als volgt verdeeld:
Circa 1.674 m² bvo bedrijfsruimte
Circa 526 m² bvo kantoor -/ showroomruimte
Circa 196 m² bvo entresol / verdiepingsvloer (betonnen)
Parkeren: 22 parkeerplaatsen gelegen op eigen terrein.
Bestemming: De voor 'Bedrijventerrein' aangewezen gronden zijn bestemd voor:
c. ter plaatse van de aanduiding 'bedrijf tot en met categorie 4.1': bedrijven tot en met milieucategorie 4.1 als opgenomen in de Staat van bedrijfsactiviteiten, als onderdeel van deze regels.
Energielabel: Het bedrijfspand heeft een energielabel A+.
Het bedrijfspand wordt opgeleverd in huidige staat en is onder andere voorzien van:
- glad afgewerkte vloeistofdichte betonvloer met een vloerbelasting van ca. 2.500 kg/m² begane grond;
- vrije hoogte circa 8m1;
- elektrisch bedienbare overheaddeuren;
- glazen pui met toegangsdeur;
- elektrische aansluiting van 3 x 250 A;
- toegangscontrolesysteem;
- krachtstroomaansluitingen;
- aanwezigheidsdetectie;
- noodverlichting;
- alarmsysteem met camerabewaking;
- databekabeling (cat. 6);
- rookmelders;
- CV- ketel ten behoeve van vloerverwarming bedrijfsruimte;
- lucht/water warmtepomp VRF systeem en begane grond (kantoor) vloerverwarming als bijverwarming;
- vloerverwarming is in de bedrijfshal hoofdverwarming en in de kantoren op de begane grond bij verwarming;
- airco-unit (serverruimte);
- geconditioneerde ventilatie lucht ten behoeve van de kantoren, showroom, vergaderruimte, kantine en kleedruimte;
- gedeeltelijk LED- verlichting;
- toiletgroep(en);
- uitgebreide pantry;
- stijlvolle stalen trap naar 1e verdieping;
- aluminium kozijnen v.v. isolerende beglazing;
- alarminstallatie met camerasysteem;
- compleet ingerichte meterkast;
- brandslanghaspel;
- huidige vloerbedekking en/of vloertegels;
- hekwerk met schuifpoort (handmatig bedienbaar);
- 296 zonnepanelen (2023, 500 WP, totale capaciteit 148 kWp).
HUURVOORWAARDEN
Huurprijs: € 275.000,- per jaar te vermeerderen met de wettelijk verschuldigde omzetbelasting.
Huurtermijn: 5 (vijf) jaar met de mogelijkheid de huurovereenkomst telkens met 5 (vijf) jaar te verlengen.
Opzegtermijn: 12 (twaalf) maanden voor expiratie huurovereenkomst per aangetekend schrijven of bij deurwaardersexploot.
Oplevering: In overleg, op korte termijn mogelijk.
Huurbetaling: Per kwartaal vooruit te voldoen.
Huurprijsaanpassing: Jaarlijks, zal per huuringangsdatum, voor het eerst 12 maanden na huuringangsdatum, de huurprijs worden aangepast op basis van de wijziging van het maandprijsindexcijfer volgens de consumentenprijsindex (CPI) reeks alle huishoudens (2015 = 100), gepubliceerd door het Centraal Bureau voor de Statistiek (CBS).
Service- en energiekosten: Nader in overleg te bepalen.
Huurovereenkomst: Standaard huurovereenkomst kantoorruimte en andere bedrijfsruimte in de zin van artikel 7:230a BW, vastgesteld door de Raad van Onroerende Zaken (ROZ) in januari 2015. Van deze huurovereenkomst maken deel uit de algemene bepalingen kantoorruimte en andere bedrijfsruimte in de zin van artikel 7:230a BW, welke op 17 februari 2015 gedeponeerd zijn bij de griffie van de rechtbank Den Haag en aldaar zijn ingeschreven onder nummer 15/21.
Zekerheidsstelling: Bij ondertekening van de huurovereenkomst, zal huurder een bankgarantie of waarborgsom stellen ter grootte van drie maanden huurverplichting te vermeerderen met servicekosten en de wettelijk verschuldigde omzetbelasting.
Voorbehoud:
- positief kredietinformatierapport ter beoordeling van verhuurder;
- goedkeuring directie verhuurder.
Kenmerken
Overdracht
- Huurprijs
- € 275.000 per jaar
- Aangeboden sinds
-
- Status
- Beschikbaar
- Aanvaarding
- In overleg
Bouw
- Hoofdfunctie
- Bedrijfshal
- Soort bouw
- Bestaande bouw
- Bouwjaar
- 2019
Oppervlakten
- Oppervlakte
- 2.396 m²
- Bedrijfshal oppervlak
- 1.870 m²
- Kantoor oppervlak
- 526 m²
- Vrije hoogte
- 8 m
- Draagvermogen
- 2.500 kg/m²
Indeling
- Aantal bouwlagen
- 2 bouwlagen
- Voorzieningen
- Airconditioning, overheaddeuren, krachtstroom, betonvloer, toilet, pantry en mechanische ventilatie
Energie
- Energielabel
- A+
Omgeving
- Ligging
- Bedrijventerrein
- Bereikbaarheid
- Bushalte op minder dan 500 m, snelwegafrit op 500 m tot 1000 m en Tramhalte op minder dan 500 m
Parkeergelegenheid
- Parkeerplaatsen
- 22 niet-overdekte parkeerplaatsen
Foto's