Omschrijving
TE KOOP - DEEL VAN GROOTSCHALIG BEDRIJFSCOMPLEX
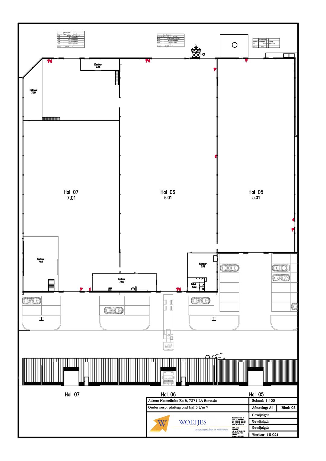
Voor de verkoop bieden wij u aan, een gedeelte (het linker gedeelte) van een vrijstaand en grootschalig bedrijfscomplex, gelegen aan de Hesselinks Es 6 te Borculo. Het betreft hier het deel van het bedrijfscomplex dat bestaat uit 3 bedrijfshallen met ondergrond, erf en verdere aanhorigheden. Aan de achterzijde van het complex bevindt zich nog een ruim volledig omheind en bestraat buitenterrein.
Het complex is tevens in zijn totaliteit te koop.
BESTEMMINGSPLAN
Bestemmingsplan “Borculo Bedrijventerrein 2011” met als enkelbestemming “Bedrijventerrein” en functieaanduiding ”bedrijf tot en met categorie 3.2”. (zie bijlage)
KADASTRAAL
Gemeente Geesteren, Sectie L, Nummer 454 (gedeeltelijk), 494, 691(gedeeltelijk) en 727, Oppervlakte geschatte oppervlakte ca. 7.550 m² - deels nog kadastraal in te meten.
BOUWJAAR
Deels 1987 en deels 1991.
INDELING EN OPPERVLAKTEN
De totale oppervlakte van het onderhavige object bedraagt circa 4.000 m² en is als volgt onderverdeeld:
ca. 1.000 m² bedrijfsruimte (5) gelegen op de begane grond.
ca. 3.000 m² bedrijfsruimte (6 & 7) gelegen op de begane grond.
De oppervlakten zijn gemeten door verkopend makelaar uit een kopie bouwtekening. Het opgegeven metrage is derhalve indicatief; er kunnen geen rechten aan worden ontleend noch kan er sprake zijn van enige verrekening achteraf.
Het object wordt opgeleverd met o.a. de volgende voorzieningen:
Bedrijfsruimte:
- Betonnen vloeren
- Meerdere gasheaters
- Hal 5, 6 en 7 voorzien van koeling
- Vrije overspanning ca. 25 mtr.
- Vrije hoogte variërend van ca. 6,0 tot 6,30 mtr.
- Verlichtingsarmaturen – deels led
- Toiletruimte – hal 6
- Overheaddeuren – handmatig – 7 stuks
- Diverse krachtstroomaansluitingen
- Polycarbonaten lichtstraten
- Brandslanghaspels
Algemeen:
- Volledig bestaat buitenterrein: deels beton en deels klinkers
- Zeer ruim buitenterrein t.b.v. parkeren personenauto’s + stalling
- Achter terrein volledig omheind middels hekwerk en toegangspoort
- Buitenverlichting
- Aansluitingen nutsbedrijven
KOOPSOM
€ 1.695.000,-- kosten koper.
ZEKERHEIDSSTELLING
Waarborgsom ter grootte van 10% van de koopsom te storten bij of af te geven aan de notaris uiterlijk 10 dagen na ondertekening van de koopovereenkomst.
OMGEVINGSFACTOREN
Het object bevindt zich op het bedrijventerrein Borculo en biedt ruimte aan meer dan 120 dynamische bedrijven in verschillende sectoren van de industrie en handel.
Het bedrijventerrein kent een actief parkmanagement. Door de groen- en waterstructuur vormt het bedrijventerrein een aantrekkelijke bedrijfsomgeving.
BEREIKBAARHEID
Het object is met zowel eigen als met openbaar vervoer goed bereikbaar. In de omgeving is er een bushalte op 480 meter van het object gelegen. Per auto is het object goed bereikbaar vanaf de N315, welke is gelegen op circa 3 minuten rijafstand. De snelwegen A1 en A18 zijn op circa 25 minuten rijafstand gelegen. Ook diverse omliggende dorpen en steden zoals Lochem, Neede, Eibergen en Groenlo zijn snel en goed bereikbaar.
PARKEREN
Op eigen terrein is er ruim voldoende mogelijkheid om te parkeren (ca. 75 parkeerplaatsen), alsmede voldoende laad-/los- en stallingsmogelijkheden op het achtergelegen bestrate en omheinde buitenterrein.
AANVAARDING
Aanvaarding op korte termijn in goed overleg.
VOORBEHOUD
Definitieve goedkeuring opdrachtgever en/of verkoper.
MILIEUBODEMGESTELDHEID
Het is verkoper niet bekend dat er feiten zijn waaruit blijkt dat de grond en/of grondwater onder en/of rondom het object enige verontreiniging bevat die voortzetting van het huidige gebruik belemmert of die heeft geleid of mogelijk zou kunnen leiden tot een saneringsverplichting van de grond en/of grondwater onder en rondom het object, dan wel het nemen van andere maatregelen (IBC-variant; isoleren, beheersen en controleren).
Voor de verkoop bieden wij u aan, een gedeelte (het linker gedeelte) van een vrijstaand en grootschalig bedrijfscomplex, gelegen aan de Hesselinks Es 6 te Borculo. Het betreft hier het deel van het bedrijfscomplex dat bestaat uit 3 bedrijfshallen met ondergrond, erf en verdere aanhorigheden. Aan de achterzijde van het complex bevindt zich nog een ruim volledig omheind en bestraat buitenterrein.
Het complex is tevens in zijn totaliteit te koop.
BESTEMMINGSPLAN
Bestemmingsplan “Borculo Bedrijventerrein 2011” met als enkelbestemming “Bedrijventerrein” en functieaanduiding ”bedrijf tot en met categorie 3.2”. (zie bijlage)
KADASTRAAL
Gemeente Geesteren, Sectie L, Nummer 454 (gedeeltelijk), 494, 691(gedeeltelijk) en 727, Oppervlakte geschatte oppervlakte ca. 7.550 m² - deels nog kadastraal in te meten.
BOUWJAAR
Deels 1987 en deels 1991.
INDELING EN OPPERVLAKTEN
De totale oppervlakte van het onderhavige object bedraagt circa 4.000 m² en is als volgt onderverdeeld:
ca. 1.000 m² bedrijfsruimte (5) gelegen op de begane grond.
ca. 3.000 m² bedrijfsruimte (6 & 7) gelegen op de begane grond.
De oppervlakten zijn gemeten door verkopend makelaar uit een kopie bouwtekening. Het opgegeven metrage is derhalve indicatief; er kunnen geen rechten aan worden ontleend noch kan er sprake zijn van enige verrekening achteraf.
Het object wordt opgeleverd met o.a. de volgende voorzieningen:
Bedrijfsruimte:
- Betonnen vloeren
- Meerdere gasheaters
- Hal 5, 6 en 7 voorzien van koeling
- Vrije overspanning ca. 25 mtr.
- Vrije hoogte variërend van ca. 6,0 tot 6,30 mtr.
- Verlichtingsarmaturen – deels led
- Toiletruimte – hal 6
- Overheaddeuren – handmatig – 7 stuks
- Diverse krachtstroomaansluitingen
- Polycarbonaten lichtstraten
- Brandslanghaspels
Algemeen:
- Volledig bestaat buitenterrein: deels beton en deels klinkers
- Zeer ruim buitenterrein t.b.v. parkeren personenauto’s + stalling
- Achter terrein volledig omheind middels hekwerk en toegangspoort
- Buitenverlichting
- Aansluitingen nutsbedrijven
KOOPSOM
€ 1.695.000,-- kosten koper.
ZEKERHEIDSSTELLING
Waarborgsom ter grootte van 10% van de koopsom te storten bij of af te geven aan de notaris uiterlijk 10 dagen na ondertekening van de koopovereenkomst.
OMGEVINGSFACTOREN
Het object bevindt zich op het bedrijventerrein Borculo en biedt ruimte aan meer dan 120 dynamische bedrijven in verschillende sectoren van de industrie en handel.
Het bedrijventerrein kent een actief parkmanagement. Door de groen- en waterstructuur vormt het bedrijventerrein een aantrekkelijke bedrijfsomgeving.
BEREIKBAARHEID
Het object is met zowel eigen als met openbaar vervoer goed bereikbaar. In de omgeving is er een bushalte op 480 meter van het object gelegen. Per auto is het object goed bereikbaar vanaf de N315, welke is gelegen op circa 3 minuten rijafstand. De snelwegen A1 en A18 zijn op circa 25 minuten rijafstand gelegen. Ook diverse omliggende dorpen en steden zoals Lochem, Neede, Eibergen en Groenlo zijn snel en goed bereikbaar.
PARKEREN
Op eigen terrein is er ruim voldoende mogelijkheid om te parkeren (ca. 75 parkeerplaatsen), alsmede voldoende laad-/los- en stallingsmogelijkheden op het achtergelegen bestrate en omheinde buitenterrein.
AANVAARDING
Aanvaarding op korte termijn in goed overleg.
VOORBEHOUD
Definitieve goedkeuring opdrachtgever en/of verkoper.
MILIEUBODEMGESTELDHEID
Het is verkoper niet bekend dat er feiten zijn waaruit blijkt dat de grond en/of grondwater onder en/of rondom het object enige verontreiniging bevat die voortzetting van het huidige gebruik belemmert of die heeft geleid of mogelijk zou kunnen leiden tot een saneringsverplichting van de grond en/of grondwater onder en rondom het object, dan wel het nemen van andere maatregelen (IBC-variant; isoleren, beheersen en controleren).
Kaart
Kaart laden...
Kadastrale grens
Bebouwing
Reistijd
Krijg inzicht in de bereikbaarheid van dit object vanuit bijvoorbeeld een openbaar vervoer station of vanuit een adres.