P.C. Hooftlaan 3 1985 BE Driehuis

€ 575.000 k.k.

Omschrijving

Unieke kans in het hart van Driehuis – veelzijdig pand met bedrijfsgedeelte en verhuurde bovenwoning

Aan de geliefde PC Hooftlaan 3 in Driehuis staat dit pand te koop: een bijzonder object dat wonen en werken op een perfecte manier combineert. Het betreft een gemengd pand met op de begane grond een bedrijfsgedeelte met bestemming Gemengd en op de verdieping een comfortabele bovenwoning, die momenteel verhuurd is. Ideaal voor beleggers of ondernemers die op zoek zijn naar een solide investering op een uitstekende locatie.

Het pand is gebouwd in de jaren '30 en heeft een winkelruimte/praktijkruimte op de begane grond (vrij van huur) en een bovenwoning met eigen entree en ruim dakterras, deze is momenteel verhuurd voor € 1.484,- per maand.
Het object is bouwkundig gesplitst, maar (nog) niet kadastraal en heeft al 2 afzonderlijke entrees.

Begane grond – bedrijfsruimte (leeg en beschikbaar)

De multifunctionele bedrijfsruimte op de begane grond biedt volop mogelijkheden. Dankzij de bestemming Gemengd zijn diverse bedrijfs- en dienstverlenende activiteiten toegestaan. De ruimte is licht, goed indeelbaar en biedt een uitstekende zichtlocatie aan een rustige, brede laan in een geliefde woonwijk. Perfect voor wie zoekt naar een kantoor, praktijk, atelier, studio of kleinschalige dienstverlening.

INDELING:
BEDRIJFSRUIMTE
Entree naar de bedrijfsruimte van circa 54 m2, deze bevat een aparte ruimte met een glazen wand en water aan- en afvoer; een toilet met fontein; een pantry met koelkast; airco (2023) en deur naar steeg met achterom. De CV ketel is uit 2006 en er is een boiler aanwezig. Daarnaast is de gehele begane grond v.v. vloerverwarming.

BOVENWONING
De bovenwoning (ca. 74m2) is via een eigen opgang bereikbaar en wordt in verhuurde staat verkocht. Een nette, verzorgde woning die momenteel stabiele huurinkomsten genereert. Daarmee biedt het pand direct rendement voor beleggers en een solide basis voor de toekomst.

INDELING:
Begane grond:
Entree (met individuele meterkast) naar de zelfstandige bovenwoning.

Eerste verdieping:
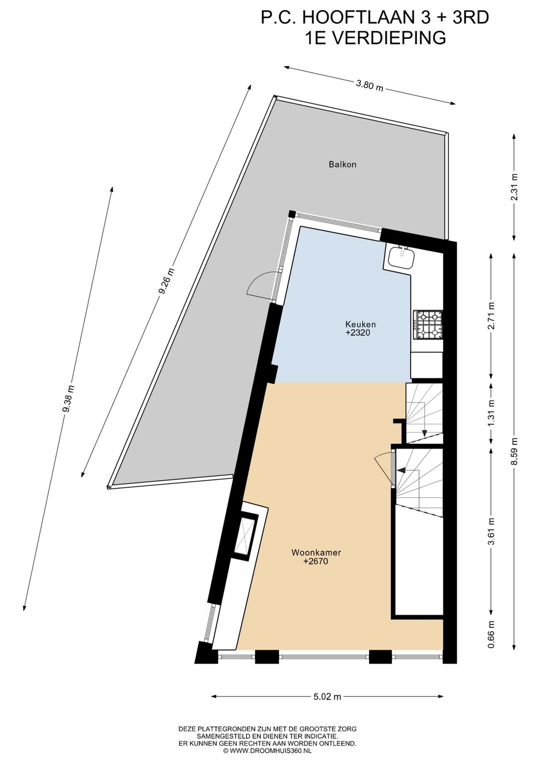
Entree woning; woonkamer met open haard en toegang tot het ruime dakterras van circa 21 m2; moderne open keuken voorzien van gaskookplaat, oven, koelkast, vriezer, afzuigkap en vaatwasser.

Tweede verdieping:
Overloop met CV-kast (Remeha Avanta 2020); drie slaapkamers; badkamer met douche, toilet, wastafel en wasmachine- en droger aansluiting.

Locatie – centraal en groen
Driehuis staat bekend om zijn groene karakter, uitstekende bereikbaarheid en fijne woonklimaat. Op korte afstand vind je winkels, sportfaciliteiten, scholen en openbaar vervoer. Het strand en de duinen liggen op fietsafstand en ook uitvalswegen richting Haarlem, Amsterdam en IJmuiden zijn snel bereikbaar.

Kortom
Een veelzijdig en karakteristiek pand op een aantrekkelijke locatie, met een leeg bedrijfsdeel op de begane grond én een verhuurde bovenwoning die direct rendement oplevert. Een mooie kans voor investeerders of ondernemers met visie.

Kenmerken

Overdracht

Vraagprijs
€ 575.000 kosten koper
Aangeboden sinds
Status
Beschikbaar
Aanvaarding
In overleg

Bouw

Hoofdfunctie
Bedrijfshal
Mogelijke functie(s)
Belegging, kantoorruimte en winkelruimte
Soort bouw
Bestaande bouw
Bouwjaar
1931

Oppervlakten

Oppervlakte
54 m²
Bedrijfshal oppervlak
54 m²
Perceel
70 m²

Indeling

Voorzieningen
Airconditioning, betonvloer, toilet en pantry

Energie

Energielabel
G

Omgeving

Ligging
In woonwijk
Bereikbaarheid
Bushalte op minder dan 500 m, NS Intercitystation op 500 m tot 1000 m en snelwegafrit op 5000 m of meer

Beleggingsobject

Huurders
1 huurder

Kaart

Kaart laden...

Kadastrale grens Bebouwing

Reistijd

Krijg inzicht in de bereikbaarheid van dit object vanuit bijvoorbeeld een openbaar vervoer station of vanuit een adres.

P.C. Hooftlaan 3

€ 575.000 k.k.