Galvanistraat 26-P 6716 AE Ede
€ 259.500 v.o.n.
Omschrijving
Nieuwbouw bedrijfsunit gelegen op het bedrijventerrein de Frankeneng te Ede!
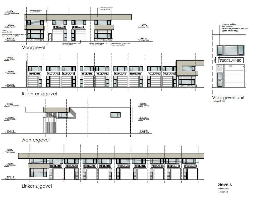
Op een zeer fraaie locatie aan de Galvanistraat in Ede is de realisatie van nieuwbouwproject “De Galvani” inmiddels ver gevorderd. Het project bestaat uit representatieve bedrijfsunits welke gebouwd worden met hoogwaardige materialen.
Het project kenmerkt zich door een aansprekende en eigentijdse architectuur. In combinatie met de uitstekende ligging vormt dit een sterke basis voor kwalitatieve en representatieve bedrijfsunits.
In dit project bieden wij unit 5 aan. Dit betreft een tussenunit met veel glas op de eerste verdieping, een aparte entree en een grote overheaddeur.
Adres:
Galvanistraat 26P te Ede.
Oppervlakte:
Ca. 114 m² verdeeld over de begane grond en de verdieping.
Opleveringsniveau:
De unit wordt casco opgeleverd en zal voorzien zijn van:
– een entree met toegangsdeur
– een elektrische overheaddeur van 3,50 meter hoog (niet aangesloten)
– monolithische afgewerkte betonvloer op de begane grond
– hele verdiepingsvloer
– cementdekvloer op de verdieping
– meterkast met voorbereidingen voor elektra en water
– goede isolatiewaarden
– hoogwaardig materiaal gebruik
– draai-kiepramen op de verdieping
Parkeren:
De unit beschikt over een eigen parkeerplaats.
Bereikbaarheid:
Zowel met eigen vervoer als ook met het openbaar vervoer is de unit uitstekend te bereiken.
Het project bevindt zich aan de Galvanistraat, een van de doorlopende wegen op industrieterrein de Frankeneng. In de nabijheid bevinden zich de op- en afritten van de Rijkswegen A-12 en A-30. Via de A-30 is de Rijksweg A-1 optimaal te bereiken. Diverse bushaltes bevinden zich op loopafstand en NS-station Ede-Wageningen is gelegen op korte afstand.
Vereniging van Eigenaren:
Om de kwaliteit te waarborgen is er een VvE actief.
Koopvoorwaarden:
Koopprijs:
€ 259.500,- (v.o.n. excl. BTW en excl. notariskosten.)
Koopovereenkomst:
Wanneer u de unit wenst aan te kopen dan zullen wij de koop(-aanneem)overeenkomst opstellen en de notaris zal de leveringsakte opstellen.
Zekerheidstelling:
Bankgarantie of waarborgsom ter grootte van 10% van de koopsom, af te geven bij of te storten op de rekening van het notariskantoor.
Notariskantoor:
Nader te bepalen.
Baten en lasten:
Alle baten en lasten komen voor rekening van de kopende partij vanaf de datum van notarieel transport en zullen tussen partijen naar rato worden verrekend.
Verwachte oplevering:
Q2/Q3 2026.
Bijzonderheden:
Eventuele aansluitkosten voor elektra/water komen voor rekening van de koper.
Interesse?
Heeft u na het zien van de beelden en het lezen van de informatie verdere vragen of interesse? Neem dan gerust contact met ons op. Wij helpen u graag.
Het bovenstaande behelst geen aanbod doch slechts vrijblijvende en globale informatie met betrekking tot het daarbij genoemde onroerend goed. Wij kunnen niet instaan voor de juistheid of volledigheid van deze gegevens.
Op een zeer fraaie locatie aan de Galvanistraat in Ede is de realisatie van nieuwbouwproject “De Galvani” inmiddels ver gevorderd. Het project bestaat uit representatieve bedrijfsunits welke gebouwd worden met hoogwaardige materialen.
Het project kenmerkt zich door een aansprekende en eigentijdse architectuur. In combinatie met de uitstekende ligging vormt dit een sterke basis voor kwalitatieve en representatieve bedrijfsunits.
In dit project bieden wij unit 5 aan. Dit betreft een tussenunit met veel glas op de eerste verdieping, een aparte entree en een grote overheaddeur.
Adres:
Galvanistraat 26P te Ede.
Oppervlakte:
Ca. 114 m² verdeeld over de begane grond en de verdieping.
Opleveringsniveau:
De unit wordt casco opgeleverd en zal voorzien zijn van:
– een entree met toegangsdeur
– een elektrische overheaddeur van 3,50 meter hoog (niet aangesloten)
– monolithische afgewerkte betonvloer op de begane grond
– hele verdiepingsvloer
– cementdekvloer op de verdieping
– meterkast met voorbereidingen voor elektra en water
– goede isolatiewaarden
– hoogwaardig materiaal gebruik
– draai-kiepramen op de verdieping
Parkeren:
De unit beschikt over een eigen parkeerplaats.
Bereikbaarheid:
Zowel met eigen vervoer als ook met het openbaar vervoer is de unit uitstekend te bereiken.
Het project bevindt zich aan de Galvanistraat, een van de doorlopende wegen op industrieterrein de Frankeneng. In de nabijheid bevinden zich de op- en afritten van de Rijkswegen A-12 en A-30. Via de A-30 is de Rijksweg A-1 optimaal te bereiken. Diverse bushaltes bevinden zich op loopafstand en NS-station Ede-Wageningen is gelegen op korte afstand.
Vereniging van Eigenaren:
Om de kwaliteit te waarborgen is er een VvE actief.
Koopvoorwaarden:
Koopprijs:
€ 259.500,- (v.o.n. excl. BTW en excl. notariskosten.)
Koopovereenkomst:
Wanneer u de unit wenst aan te kopen dan zullen wij de koop(-aanneem)overeenkomst opstellen en de notaris zal de leveringsakte opstellen.
Zekerheidstelling:
Bankgarantie of waarborgsom ter grootte van 10% van de koopsom, af te geven bij of te storten op de rekening van het notariskantoor.
Notariskantoor:
Nader te bepalen.
Baten en lasten:
Alle baten en lasten komen voor rekening van de kopende partij vanaf de datum van notarieel transport en zullen tussen partijen naar rato worden verrekend.
Verwachte oplevering:
Q2/Q3 2026.
Bijzonderheden:
Eventuele aansluitkosten voor elektra/water komen voor rekening van de koper.
Interesse?
Heeft u na het zien van de beelden en het lezen van de informatie verdere vragen of interesse? Neem dan gerust contact met ons op. Wij helpen u graag.
Het bovenstaande behelst geen aanbod doch slechts vrijblijvende en globale informatie met betrekking tot het daarbij genoemde onroerend goed. Wij kunnen niet instaan voor de juistheid of volledigheid van deze gegevens.
Kenmerken
Overdracht
- Vraagprijs
- € 259.500 vrij op naam
- Aangeboden sinds
-
- Status
- Beschikbaar
- Aanvaarding
- In overleg
Bouw
- Hoofdfunctie
- Bedrijfshal
- Soort bouw
- Bestaande bouw
- Bouwjaar
- Momenteel in aanbouw
Oppervlakten
- Oppervlakte
- 114 m²
- Bedrijfshal oppervlak
- 114 m²
- Draagvermogen
- 1.500 kg/m²
Indeling
- Voorzieningen
- Overheaddeuren en betonvloer
Energie
- Energielabel
- Niet verplicht
Omgeving
- Ligging
- Bedrijventerrein
Foto's