Omschrijving
Dirk Boutslaan 28-30 te Eindhoven (5613 LH)
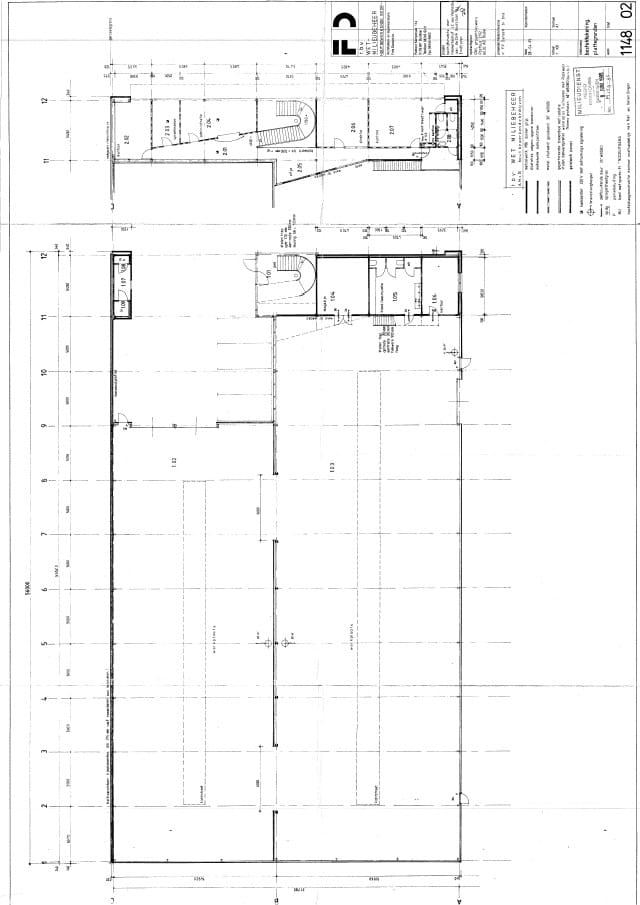
Nabij het centrum gelegen, op bedrijventerrein De Kade, multifunctioneel bedrijfscomplex bestaande uit twee met elkaar verbonden bedrijfsunits, bestaande uit bedrijfs-/opslag- en kantoorruimte met goede laad- en losmogelijkheden.
Totaal ca. 2.917 m² bedrijfs-/opslag-/kantoorruimte op een perceel van 3.560 m2.
ALGEMEEN
Bedrijfscomplex bestaande uit twee geschakelde bedrijfsunits, beide bestaande uit bedrijfsruimte met aan de voorzijde kantoorruimte in twee bouwlagen.
Dirk Boutslaan 28 is gebouwd in 1995 en Dirk Boutslaan 30 in 1999.
De vrije hoogte van de bedrijfsruimte bedraagt circa 7.40 meter.
Dirk Boutslaan 28
Verdieping Oppervlakte
Begane grond Bedrijfs-/magazijnruimte Ca. 1.440 m²
Begane grond Was-/kleedruimte Ca. 24 m²
Begane grond Kantoorruimte inclusief entree Ca. 62 m²
1e etage Kantoorruimte Ca. 160 m²
Totaal Ca. 1.686 m²
Dirk Boutslaan 30
Verdieping Oppervlakte
Begane grond Bedrijfs-/opslagruimte Ca. 970 m²
Begane grond Kantoorruimte Ca. 93 m²
1e etage Kantoorruimte Ca. 168 m²
Totaal Ca. 1.231m²
Dirk Boutslaan 28 beschikt over Energielabel F.
Dirk Boutslaan 30 beschikt over Energielabel A.
LOCATIE
BEREIKBAARHEID
Het object is goed bereikbaar met eigen vervoer. Het object is op circa 500 meter gelegen van de ringweg en op circa 4 kilometer afstand van de Rijksweg A2 en A67. Het wegennet rondom het complex is voldoende ruim opgezet, waardoor de locatie ook met vrachtvervoer goed bereikbaar is. De bereikbaarheid met openbaar vervoer is voldoende tot goed te noemen. Op circa 5 minuten loopafstand aan de Geldropseweg is een bushalte te vinden met frequente verbindingen. Het centraal station is gelegen op circa 1,5 kilometer afstand.
PARKEREN
Aan de voorzijde zijn meerder parkeerplaatsen aanwezig. Tevens zijn er voldoende parkeermogelijkheden in de directe omgeving (betaald parkeren, ook enkele laadpalen).
OMGEVINGFACTOREN
Het object is gelegen aan de Dirk Boutslaan op bedrijventerrein De Kade te Eindhoven in stadsdeel Tongelre. Het bedrijventerrein De Kade betreft het oudste en op één na grootste bedrijventerrein van Eindhoven. Dit bedrijventerrein is opgezet aan de noord- en zuidzijde van het Eindhovens Kanaal en wordt bovendien door de Rondweg in een westelijk en oostelijk deel opgesplitst. Op De Kade bevindt zich tevens een GDV-locatie met o.a. Praxis, Gamma, Karwei en Leen Bakker. Er is sprake van een mix van productiebedrijven (zoals DAF), handelsondernemingen, showrooms, dienstverleningen en detailhandel (grootschalig). Zoals het bedrijventerrein rondom veelal grenst aan woongebieden, grenst onderhavig object eveneens aan de overzijde van de weg aan een woongebied. De omgevingsbebouwing is gemêleerd. In de directe omgeving zijn o.s. gevestigd Citroën specialist Jan van Gompel, Ergen Groen, Jongeneel Eindhoven
Allseas, Vorspaget Home, B-Covered, Allsafe Mini Opslag Eindhoven en Scholengemeenschap Augustinianum.
Op enige afstand is het voormalige Campinaterrein gelegen wat thans getransformeerd wordt naar een nieuwe, zeer levendige binnenstedelijke woon-/werklocatie met een mix aan functies (o.a. wonen, kantoor, horeca).
KADASTRALE GEGEVENS
Gemeente: Stratum
Sectie: E
Nummer: 5943 - 5944
Perceelgrootte: 2.045 – 1.515 m², totaal 3.560 m²
OPLEVERINGSNIVEAU KANTOORRUIMTE
De kantoorruimte beschikt thans over o.a. de navolgende voorzieningen:
- systeemplafonds met TL-inbouw verlichtingsarmaturen;
- huidige kamerindeling met scheidingwanden;
- gedeeltelijk kabelgoten en gedeeltelijk vaste aansluiting in systeemwanden;
- verwarming middels gas c.v.-installaties en radiatoren in de vertrekken;
- airconditioning middels splitunits;
- huidige vloerbedekking (tapijt en laminaat);
- binnenzonwering / lamellen;
- deels elektrische zonnescreens;
- alarmsysteem met detectoren en magneetcontacten;
- complete sanitaire voorzieningen (meerdere sanitaire ruimten);
- diverse pantry’s met elektrische Daalderop close-in boiler;
- diverse patchkasten met databekabeling.
OPLEVERINGSNIVEAU BEDRIJFSRUIMTE
De bedrijfsruimte beschikt thans over o.a. de navolgende voorzieningen:
- betonvloer;
- huidige indeling;
- meerdere Polyester lichtstraten;
- TL opbouw verlichtingsarmaturen;
- heaters;
- dakventilatoren;
- krachstroomaansluitingen;
- diverse handbediende en elektrisch bedienbare overheaddeuren;
- Konecranes bovenloopkraan met een hefvermogen van 3.200 kg;
- elektrische Daalderop close-up boiler;
- brandslanghaspels;
- handbrandblussers.
BUITENTERREIN
- het terrein is verhard middels betonklinkers;
- terreinverlichting middels gevelarmaturen;
- drie vlaggenmasten.
HUURGEGEVENS
Huurprijs:
€ 235.000,00 per jaar, te vermeerderen met btw.
HUURTERMIJN
Vijf (5) jaar en telkens verlengingsperioden van vijf (5) jaar.
OPZEGTERMIJN
Twaalf (12) maanden voorafgaande aan de expiratiedatum, wederzijds opzegbaar.
BTW
Er wordt geopteerd voor een met btw belaste verhuur.
ZEKERHEIDSSTELLING
Een zekerheidsstelling in de vorm van een bankgarantie of waarborgsom ter grootte van de betalingsverplichting van 3 maanden (huur plus servicekosten plus btw).
INDEXERING
Jaarlijks, voor het eerst één jaar na huuringangsdatum, op basis van de wijziging van het maandprijsindexcijfer volgens de consumentenprijsindex (CPI), reeks CPI voor alle huishoudens (2025=100), gepubliceerd door het Centraal Bureau voor de Statistiek (CBS). De huurprijs zal nimmer minder bedragen dan de huurprijs van het voorafgaande jaar.
SERVICEKOSTEN
Niet van toepassing. Eventueel in overleg tussen huurder en verhuurder nader vast te stellen op basis van een voorschotbedrag per m2 per jaar, te vermeerderen met btw.
BETALINGEN
Per drie (3) maanden vooruit.
AANVAARDING
Aanvaarding vanaf ca. 15 juli 2026.
BESTEMMING
Het object valt onder het bestemmingsplan “De Kade” vastgesteld d.d. 25 juni 2013 en heeft de bestemming Bedrijf – 2. Via omgevingsloket.nl is het gehele bestemmingsplan in te zien.
HUUROVEREENKOMST
Conform het model opgesteld door de Raad van Onroerende Zaken (ROZ) 2015 met bijhorende Algemene Bepalingen.
INFORMATIE
Kijk voor meer informatie op dirkboutslaan28-30.nl.
Disclaimer
Deze informatie is door ons kantoor met de meeste zorg samengesteld aan de hand van de door de eigenaar aan ons ter hand gestelde gegevens en tekeningen. Niettemin aanvaarden wij en de opdrachtgever geen enkele aansprakelijkheid voor eventuele onjuistheden. Elke vorm van aansprakelijkheid voor eventuele schade, direct dan wel indirect, als gevolg van de aangeboden informatie, wordt dan ook door ons en de opdrachtgever uitdrukkelijk afgewezen. Het is uitsluitend bedoeld als uitnodiging tot het uitbrengen van een bod c.q. in onderhandeling te treden.
Nabij het centrum gelegen, op bedrijventerrein De Kade, multifunctioneel bedrijfscomplex bestaande uit twee met elkaar verbonden bedrijfsunits, bestaande uit bedrijfs-/opslag- en kantoorruimte met goede laad- en losmogelijkheden.
Totaal ca. 2.917 m² bedrijfs-/opslag-/kantoorruimte op een perceel van 3.560 m2.
ALGEMEEN
Bedrijfscomplex bestaande uit twee geschakelde bedrijfsunits, beide bestaande uit bedrijfsruimte met aan de voorzijde kantoorruimte in twee bouwlagen.
Dirk Boutslaan 28 is gebouwd in 1995 en Dirk Boutslaan 30 in 1999.
De vrije hoogte van de bedrijfsruimte bedraagt circa 7.40 meter.
Dirk Boutslaan 28
Verdieping Oppervlakte
Begane grond Bedrijfs-/magazijnruimte Ca. 1.440 m²
Begane grond Was-/kleedruimte Ca. 24 m²
Begane grond Kantoorruimte inclusief entree Ca. 62 m²
1e etage Kantoorruimte Ca. 160 m²
Totaal Ca. 1.686 m²
Dirk Boutslaan 30
Verdieping Oppervlakte
Begane grond Bedrijfs-/opslagruimte Ca. 970 m²
Begane grond Kantoorruimte Ca. 93 m²
1e etage Kantoorruimte Ca. 168 m²
Totaal Ca. 1.231m²
Dirk Boutslaan 28 beschikt over Energielabel F.
Dirk Boutslaan 30 beschikt over Energielabel A.
LOCATIE
BEREIKBAARHEID
Het object is goed bereikbaar met eigen vervoer. Het object is op circa 500 meter gelegen van de ringweg en op circa 4 kilometer afstand van de Rijksweg A2 en A67. Het wegennet rondom het complex is voldoende ruim opgezet, waardoor de locatie ook met vrachtvervoer goed bereikbaar is. De bereikbaarheid met openbaar vervoer is voldoende tot goed te noemen. Op circa 5 minuten loopafstand aan de Geldropseweg is een bushalte te vinden met frequente verbindingen. Het centraal station is gelegen op circa 1,5 kilometer afstand.
PARKEREN
Aan de voorzijde zijn meerder parkeerplaatsen aanwezig. Tevens zijn er voldoende parkeermogelijkheden in de directe omgeving (betaald parkeren, ook enkele laadpalen).
OMGEVINGFACTOREN
Het object is gelegen aan de Dirk Boutslaan op bedrijventerrein De Kade te Eindhoven in stadsdeel Tongelre. Het bedrijventerrein De Kade betreft het oudste en op één na grootste bedrijventerrein van Eindhoven. Dit bedrijventerrein is opgezet aan de noord- en zuidzijde van het Eindhovens Kanaal en wordt bovendien door de Rondweg in een westelijk en oostelijk deel opgesplitst. Op De Kade bevindt zich tevens een GDV-locatie met o.a. Praxis, Gamma, Karwei en Leen Bakker. Er is sprake van een mix van productiebedrijven (zoals DAF), handelsondernemingen, showrooms, dienstverleningen en detailhandel (grootschalig). Zoals het bedrijventerrein rondom veelal grenst aan woongebieden, grenst onderhavig object eveneens aan de overzijde van de weg aan een woongebied. De omgevingsbebouwing is gemêleerd. In de directe omgeving zijn o.s. gevestigd Citroën specialist Jan van Gompel, Ergen Groen, Jongeneel Eindhoven
Allseas, Vorspaget Home, B-Covered, Allsafe Mini Opslag Eindhoven en Scholengemeenschap Augustinianum.
Op enige afstand is het voormalige Campinaterrein gelegen wat thans getransformeerd wordt naar een nieuwe, zeer levendige binnenstedelijke woon-/werklocatie met een mix aan functies (o.a. wonen, kantoor, horeca).
KADASTRALE GEGEVENS
Gemeente: Stratum
Sectie: E
Nummer: 5943 - 5944
Perceelgrootte: 2.045 – 1.515 m², totaal 3.560 m²
OPLEVERINGSNIVEAU KANTOORRUIMTE
De kantoorruimte beschikt thans over o.a. de navolgende voorzieningen:
- systeemplafonds met TL-inbouw verlichtingsarmaturen;
- huidige kamerindeling met scheidingwanden;
- gedeeltelijk kabelgoten en gedeeltelijk vaste aansluiting in systeemwanden;
- verwarming middels gas c.v.-installaties en radiatoren in de vertrekken;
- airconditioning middels splitunits;
- huidige vloerbedekking (tapijt en laminaat);
- binnenzonwering / lamellen;
- deels elektrische zonnescreens;
- alarmsysteem met detectoren en magneetcontacten;
- complete sanitaire voorzieningen (meerdere sanitaire ruimten);
- diverse pantry’s met elektrische Daalderop close-in boiler;
- diverse patchkasten met databekabeling.
OPLEVERINGSNIVEAU BEDRIJFSRUIMTE
De bedrijfsruimte beschikt thans over o.a. de navolgende voorzieningen:
- betonvloer;
- huidige indeling;
- meerdere Polyester lichtstraten;
- TL opbouw verlichtingsarmaturen;
- heaters;
- dakventilatoren;
- krachstroomaansluitingen;
- diverse handbediende en elektrisch bedienbare overheaddeuren;
- Konecranes bovenloopkraan met een hefvermogen van 3.200 kg;
- elektrische Daalderop close-up boiler;
- brandslanghaspels;
- handbrandblussers.
BUITENTERREIN
- het terrein is verhard middels betonklinkers;
- terreinverlichting middels gevelarmaturen;
- drie vlaggenmasten.
HUURGEGEVENS
Huurprijs:
€ 235.000,00 per jaar, te vermeerderen met btw.
HUURTERMIJN
Vijf (5) jaar en telkens verlengingsperioden van vijf (5) jaar.
OPZEGTERMIJN
Twaalf (12) maanden voorafgaande aan de expiratiedatum, wederzijds opzegbaar.
BTW
Er wordt geopteerd voor een met btw belaste verhuur.
ZEKERHEIDSSTELLING
Een zekerheidsstelling in de vorm van een bankgarantie of waarborgsom ter grootte van de betalingsverplichting van 3 maanden (huur plus servicekosten plus btw).
INDEXERING
Jaarlijks, voor het eerst één jaar na huuringangsdatum, op basis van de wijziging van het maandprijsindexcijfer volgens de consumentenprijsindex (CPI), reeks CPI voor alle huishoudens (2025=100), gepubliceerd door het Centraal Bureau voor de Statistiek (CBS). De huurprijs zal nimmer minder bedragen dan de huurprijs van het voorafgaande jaar.
SERVICEKOSTEN
Niet van toepassing. Eventueel in overleg tussen huurder en verhuurder nader vast te stellen op basis van een voorschotbedrag per m2 per jaar, te vermeerderen met btw.
BETALINGEN
Per drie (3) maanden vooruit.
AANVAARDING
Aanvaarding vanaf ca. 15 juli 2026.
BESTEMMING
Het object valt onder het bestemmingsplan “De Kade” vastgesteld d.d. 25 juni 2013 en heeft de bestemming Bedrijf – 2. Via omgevingsloket.nl is het gehele bestemmingsplan in te zien.
HUUROVEREENKOMST
Conform het model opgesteld door de Raad van Onroerende Zaken (ROZ) 2015 met bijhorende Algemene Bepalingen.
INFORMATIE
Kijk voor meer informatie op dirkboutslaan28-30.nl.
Disclaimer
Deze informatie is door ons kantoor met de meeste zorg samengesteld aan de hand van de door de eigenaar aan ons ter hand gestelde gegevens en tekeningen. Niettemin aanvaarden wij en de opdrachtgever geen enkele aansprakelijkheid voor eventuele onjuistheden. Elke vorm van aansprakelijkheid voor eventuele schade, direct dan wel indirect, als gevolg van de aangeboden informatie, wordt dan ook door ons en de opdrachtgever uitdrukkelijk afgewezen. Het is uitsluitend bedoeld als uitnodiging tot het uitbrengen van een bod c.q. in onderhandeling te treden.
Kaart
Kaart laden...
Kadastrale grens
Bebouwing
Reistijd
Krijg inzicht in de bereikbaarheid van dit object vanuit bijvoorbeeld een openbaar vervoer station of vanuit een adres.