Omschrijving
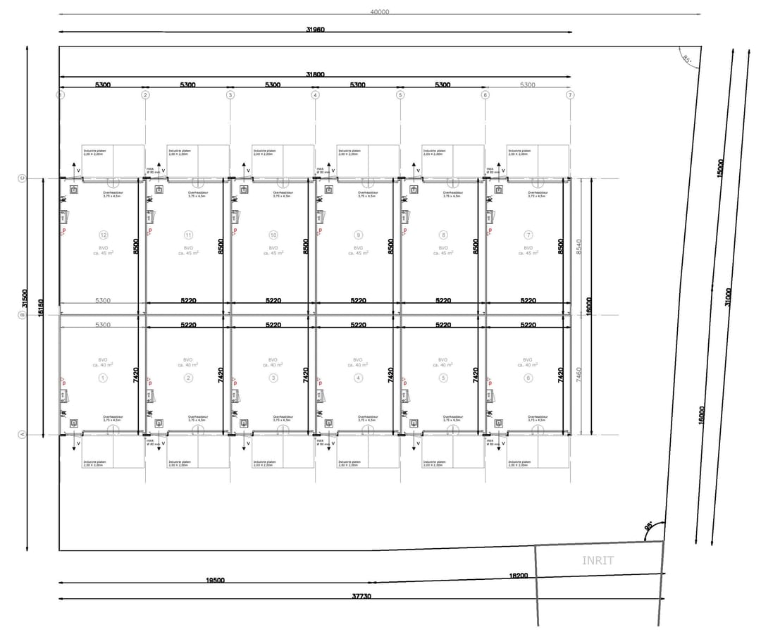
Op het oostelijk deel van het bedrijventerrein Veenwouden, aan de Feintensloane 54 (Feintenslaan 54) gelegen, zijn recent 12 representatieve bedrijfsruimtes ontwikkeld, waarvan nu 4 units met elk een BVO van 40 m² aangeboden worden.
Voor de ZZP-er, de ondernemer, maar ook de particulier is dit een uitgelezen kans om een scherp geprijsde unit te bemachtigen! De units zijn opgetrokken in hoogwaardige materialen en hebben een goede isolatiewaarde. Er is water en riolering aangelegd, waardoor er evt. een mogelijkheid voor toilet of pantry is.
De locatie is gunstig, goed bereikbaar en op korte afstand van de ontsluitingswegen, waaronder de N 356 en de Centrale As (N 361 - dubbelbaans). Daarnaast ligt Feanwâlden aan de spoorweg Leeuwarden - Groningen. Feanwâlden (Veenwouden) is dan ook een belangrijk knooppunt in de regio.
Afmetingen beschikbare units (type A): 5,3 x 7,54 m¹ = ca. 40 m².
Vrije hoogte inpandig is ca. 6,10 m¹.
Koopsom: € 69.600,- v.o.n en excl. BTW. Prijswijzigingen voorbehouden.
In de koopsom zijn inbegrepen:
* Transportakte notaris;
* Bouwkosten;
* Architecten- en advieshonoraria;
* Makelaarscourtage/verkoopkosten;
* Gemeentelijke leges;
* Kadastrale inmeting;
* Complete bouwvergunning;
* Aansluitingen water-, hemelwaterafvoer,- en elektriciteitsleidingen.
Bestemming:
Staat van bedrijfsactiviteiten categorie 1 t/m 3.1. Een uittreksel van het bestemmingsplan is beschikbaar.
Indeling.
Bedrijfsruimte: entree, middels kunststof pui met een bovenlicht, meterkast en overheaddeur (3,75 m x 4.5 m¹).
Bouwkundige en technische gegevens.
Betonvloer is op heipalen en funderingsbalken gestort, de betonvloer is aan de bovenzijde mechanisch gevlinderd. De vloerbelasting bedraagt 1.000 kg/m². De dragende constructie is uitgevoerd in staal. De dakbedekking bestaat uit stalen verzinkte dakplaten waarover een isolatielaag (Rc=3,0 m² k/W), welke mechanisch bevestigd is.
Buiten- & binnenwanden.
De binnen- en buitenwanden zijn uitgevoerd in stalen geïsoleerde sandwichpanelen met een Rc=3,5 m² k/W. De binnenzijde is uitgevoerd in wit gecoate staalplaat in standaard profilering. De binnenwanden tussen de bedrijfsruimtes zijn eveneens in stalen geïsoleerde sandwichpanelen uitgevoerd.
Ramen, deuren en kozijnen zijn uitgevoerd in kunststof in de kleur antraciet, aan de binnenzijde wit. Alle deuren en ramen zijn voorzien van inbraakwerend hang- en sluitwerk en tochtafdichting. Er zijn geïsoleerde overheaddeuren (RAL kleur 7016) geplaatst.
Installatiewerk.
De meterkast is ingericht met voorzieningen voor water- en elektrameter, een groepenkast bestaande uit 4 automaten en hoofdschakelaar met randaarde en aardelektrode, en een dubbel stopcontact. In de bedrijfsruimte zijn naast de meterkast 3 elektra-aansluitingen aangebracht; 1 x dubbele WCD 230 V; 1 x enkelvoudige WCD 380 V, 6 x LED verlichtingsarmatuur op 1 schakelaar, 1 x noodarmatuur met uitgangsbord, 1 x wandarmatuur buiten met schemersensor. Tevens is er water en riolering aangelegd. Er zullen voldoende noodoverlopen worden aangebracht (door de constructeur bepaald).
Buitenterrein.
Het buitenterrein is voorzien van bestrating door middel van betonklinkers. De parkeerplaatsen zijn uitgevoerd / aangeduid in zwarte betonklinkers.
Vereniging van Eigenaren.
Voor het beheer en onderhoud van de wegen en groenstroken is er door de eigenaren van alle bedrijfsruimtes een beheervereniging of een Vereniging voor Eigenaren opgericht. Maandelijkse bijdrage nader vast te stellen, naar verwachting € 20,- p. mnd.
Voor de ZZP-er, de ondernemer, maar ook de particulier is dit een uitgelezen kans om een scherp geprijsde unit te bemachtigen! De units zijn opgetrokken in hoogwaardige materialen en hebben een goede isolatiewaarde. Er is water en riolering aangelegd, waardoor er evt. een mogelijkheid voor toilet of pantry is.
De locatie is gunstig, goed bereikbaar en op korte afstand van de ontsluitingswegen, waaronder de N 356 en de Centrale As (N 361 - dubbelbaans). Daarnaast ligt Feanwâlden aan de spoorweg Leeuwarden - Groningen. Feanwâlden (Veenwouden) is dan ook een belangrijk knooppunt in de regio.
Afmetingen beschikbare units (type A): 5,3 x 7,54 m¹ = ca. 40 m².
Vrije hoogte inpandig is ca. 6,10 m¹.
Koopsom: € 69.600,- v.o.n en excl. BTW. Prijswijzigingen voorbehouden.
In de koopsom zijn inbegrepen:
* Transportakte notaris;
* Bouwkosten;
* Architecten- en advieshonoraria;
* Makelaarscourtage/verkoopkosten;
* Gemeentelijke leges;
* Kadastrale inmeting;
* Complete bouwvergunning;
* Aansluitingen water-, hemelwaterafvoer,- en elektriciteitsleidingen.
Bestemming:
Staat van bedrijfsactiviteiten categorie 1 t/m 3.1. Een uittreksel van het bestemmingsplan is beschikbaar.
Indeling.
Bedrijfsruimte: entree, middels kunststof pui met een bovenlicht, meterkast en overheaddeur (3,75 m x 4.5 m¹).
Bouwkundige en technische gegevens.
Betonvloer is op heipalen en funderingsbalken gestort, de betonvloer is aan de bovenzijde mechanisch gevlinderd. De vloerbelasting bedraagt 1.000 kg/m². De dragende constructie is uitgevoerd in staal. De dakbedekking bestaat uit stalen verzinkte dakplaten waarover een isolatielaag (Rc=3,0 m² k/W), welke mechanisch bevestigd is.
Buiten- & binnenwanden.
De binnen- en buitenwanden zijn uitgevoerd in stalen geïsoleerde sandwichpanelen met een Rc=3,5 m² k/W. De binnenzijde is uitgevoerd in wit gecoate staalplaat in standaard profilering. De binnenwanden tussen de bedrijfsruimtes zijn eveneens in stalen geïsoleerde sandwichpanelen uitgevoerd.
Ramen, deuren en kozijnen zijn uitgevoerd in kunststof in de kleur antraciet, aan de binnenzijde wit. Alle deuren en ramen zijn voorzien van inbraakwerend hang- en sluitwerk en tochtafdichting. Er zijn geïsoleerde overheaddeuren (RAL kleur 7016) geplaatst.
Installatiewerk.
De meterkast is ingericht met voorzieningen voor water- en elektrameter, een groepenkast bestaande uit 4 automaten en hoofdschakelaar met randaarde en aardelektrode, en een dubbel stopcontact. In de bedrijfsruimte zijn naast de meterkast 3 elektra-aansluitingen aangebracht; 1 x dubbele WCD 230 V; 1 x enkelvoudige WCD 380 V, 6 x LED verlichtingsarmatuur op 1 schakelaar, 1 x noodarmatuur met uitgangsbord, 1 x wandarmatuur buiten met schemersensor. Tevens is er water en riolering aangelegd. Er zullen voldoende noodoverlopen worden aangebracht (door de constructeur bepaald).
Buitenterrein.
Het buitenterrein is voorzien van bestrating door middel van betonklinkers. De parkeerplaatsen zijn uitgevoerd / aangeduid in zwarte betonklinkers.
Vereniging van Eigenaren.
Voor het beheer en onderhoud van de wegen en groenstroken is er door de eigenaren van alle bedrijfsruimtes een beheervereniging of een Vereniging voor Eigenaren opgericht. Maandelijkse bijdrage nader vast te stellen, naar verwachting € 20,- p. mnd.
Kaart
Kaart laden...
Kadastrale grens
Bebouwing
Reistijd
Krijg inzicht in de bereikbaarheid van dit object vanuit bijvoorbeeld een openbaar vervoer station of vanuit een adres.