Edisonweg 44 4207 HG Gorinchem
Huurprijs op aanvraag
Omschrijving
Algemeen
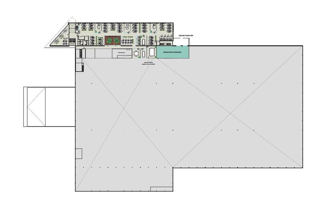
Aan de Edisonweg 44 in Gorinchem bieden wij een multifunctioneel bedrijfscomplex te huur aan, dat per direct beschikbaar is. Het object is gelegen op bedrijventerrein Oost I, een strategische vestigingslocatie voor bedrijven die op zoek zijn naar functionele opslagruimte in combinatie met hoogwaardige kantoorvoorzieningen. Het complex wordt zowel aan de binnen- als buitenzijde opgeknapt.
De bedrijfshal is voorzien van 5 loadingdocks en 1 elektrisch bedienbare overheaddeur op maaiveldniveau. Het kantoorgebouw krijgt een high-end opleverniveau en biedt de mogelijkheid om een representatief hoofdkantoor te vestigen.
Daarnaast beschikt het kantoor over een comfortabele werkomgeving met onder andere een kantine, ruime entree en kleedruimtes voor operationeel personeel. Hiermee is het object uitermate geschikt voor organisaties die zowel kantoorpersoneel als operationele medewerkers op één locatie willen huisvesten.
Dit bedrijfscomplex combineert functionaliteit, bereikbaarheid en representativiteit, waardoor het een aantrekkelijke keuze is voor bedrijven die streven naar groei en efficiëntie.
Bereikbaarheid
Het bedrijfscomplex ligt op bedrijventerrein Oost I in Gorinchem, een dynamische locatie die bekendstaat om haar uitstekende ontsluiting en gunstige ligging ten opzichte van belangrijke verkeersaders.
Per auto:
Dankzij de directe aansluiting op de A15 en A27 is het object uitstekend bereikbaar. Deze snelwegen zorgen voor snelle verbindingen met steden als Rotterdam, Utrecht en Breda. Hierdoor is de locatie zeer geschikt voor bedrijven met veel logistieke bewegingen en behoefte aan directe toegang tot de belangrijkste transportcorridors van Nederland.
Per openbaar vervoer:
Ook met het openbaar vervoer is het pand goed bereikbaar. In de directe omgeving bevinden zich meerdere bushaltes en het nabijgelegen station Gorinchem biedt goede treinverbindingen met de omliggende regio’s. Dit maakt de locatie aantrekkelijk voor zowel medewerkers als bezoekers die met het openbaar vervoer reizen.
Indeling
Bedrijfsruimte: ca. 8.807 m² v.v.o.
Kantoorruimte: ca. 1.453 m² v.v.o.
Loodskantoor: ca. 500 m² v.v.o.
Mezzanine: ca. 91 m² v.v.o.
Buitenterrein: ca. 700 m² v.v.o.
Parkeren: ca. 51 parkeerplaatsen
Opleveringsniveau
Het opleveringsniveau van de ruimtes is als volgt:
Bedrijfsruimte:
In de huidige staat, o.a. voorzien van:
- 5 loadingdocks met elektrisch bedienbare overheaddeuren;
- 1 elektrisch bedienbare overheaddeur op maaiveld
- elektra aansluiting met een capaciteit van 156 kVA; (gecontracteerd vermogen 151 kW)
- 6 gasgestookte heaters;
- kolommen voorzien van aanrijdbeveiliging;
- apart chauffeursentree met operationeel kantoor;
- laadpunten voor heftrucks;
- betonvloer;
- maximale vloerbelasting bedrijfsruimte van 2.500 kg/m²;
- vrije hoogte ca. 7,8 m.
Loodskantoor:
- toiletvoorzieningen;
- kantineruimte;
- kleed- en wasruimtes.
Kantoorruimte:
In gerenoveerde staat, o.a. voorzien van:
- pantry op de begane grond;
- LED verlichting;
- systeemplafond;
- toiletten;
- toegangscontrole systeem;
- afgewerkte vloer
- kabelgoten (BG);
- verwarming middels radiatoren.
Buitenterrein
- volledig omheind;
- 3 elektrisch bedienbare toegangspoorten;
- verhard middels klinkerbestrating;
- nieuwe belijning.
Huurtermijn
In overleg, maar minimaal 5 jaar.
Voorschot servicekosten
Een nader te bepalen voorschot voor de nog nader vast te stellen leveringen en diensten. De servicekosten worden verrekend op basis van jaarlijkse nacalculatie.
Energielabel
A.
Huurprijs
Op aanvraag.
Bestemming
De voor 'Bedrijventerrein' aangewezen gronden zijn bestemd voor bedrijven in de categorieën 1 tot en met 4.1 van de Staat van Bedrijfsactiviteiten.
Huurprijsaanpassing
Jaarlijks, voor het eerst één jaar na datum huuringang, op basis van de wijziging van het prijsindexcijfer volgens de consumentenprijsindex (CPI) reeks CPI-Alle Huishoudens (2015=100), gepubliceerd door het Centraal Bureau voor de Statistiek (CBS).
Omzetbelasting
Over de huurprijs zal b.t.w. in rekening worden gebracht. Indien b.t.w. niet in rekening kan worden gebracht, geldt een nader te bepalen opslag op de huurprijs.
Huurovereenkomst
De huurovereenkomst zal op basis van het standaardmodel van de Raad van Onroerende Zaken (ROZ) met bijbehorende Algemene Bepalingen, gedeponeerd en ingeschreven bij de griffie van de rechtbank te ’s-Gravenhage, worden opgemaakt.
Nadrukkelijk zij vermeld dat deze vrijblijvende informatieverstrekking niet als een aanbieding of offerte mag worden beschouwd. Aan deze gegevens kunnen geen rechten worden ontleend.
Aan de Edisonweg 44 in Gorinchem bieden wij een multifunctioneel bedrijfscomplex te huur aan, dat per direct beschikbaar is. Het object is gelegen op bedrijventerrein Oost I, een strategische vestigingslocatie voor bedrijven die op zoek zijn naar functionele opslagruimte in combinatie met hoogwaardige kantoorvoorzieningen. Het complex wordt zowel aan de binnen- als buitenzijde opgeknapt.
De bedrijfshal is voorzien van 5 loadingdocks en 1 elektrisch bedienbare overheaddeur op maaiveldniveau. Het kantoorgebouw krijgt een high-end opleverniveau en biedt de mogelijkheid om een representatief hoofdkantoor te vestigen.
Daarnaast beschikt het kantoor over een comfortabele werkomgeving met onder andere een kantine, ruime entree en kleedruimtes voor operationeel personeel. Hiermee is het object uitermate geschikt voor organisaties die zowel kantoorpersoneel als operationele medewerkers op één locatie willen huisvesten.
Dit bedrijfscomplex combineert functionaliteit, bereikbaarheid en representativiteit, waardoor het een aantrekkelijke keuze is voor bedrijven die streven naar groei en efficiëntie.
Bereikbaarheid
Het bedrijfscomplex ligt op bedrijventerrein Oost I in Gorinchem, een dynamische locatie die bekendstaat om haar uitstekende ontsluiting en gunstige ligging ten opzichte van belangrijke verkeersaders.
Per auto:
Dankzij de directe aansluiting op de A15 en A27 is het object uitstekend bereikbaar. Deze snelwegen zorgen voor snelle verbindingen met steden als Rotterdam, Utrecht en Breda. Hierdoor is de locatie zeer geschikt voor bedrijven met veel logistieke bewegingen en behoefte aan directe toegang tot de belangrijkste transportcorridors van Nederland.
Per openbaar vervoer:
Ook met het openbaar vervoer is het pand goed bereikbaar. In de directe omgeving bevinden zich meerdere bushaltes en het nabijgelegen station Gorinchem biedt goede treinverbindingen met de omliggende regio’s. Dit maakt de locatie aantrekkelijk voor zowel medewerkers als bezoekers die met het openbaar vervoer reizen.
Indeling
Bedrijfsruimte: ca. 8.807 m² v.v.o.
Kantoorruimte: ca. 1.453 m² v.v.o.
Loodskantoor: ca. 500 m² v.v.o.
Mezzanine: ca. 91 m² v.v.o.
Buitenterrein: ca. 700 m² v.v.o.
Parkeren: ca. 51 parkeerplaatsen
Opleveringsniveau
Het opleveringsniveau van de ruimtes is als volgt:
Bedrijfsruimte:
In de huidige staat, o.a. voorzien van:
- 5 loadingdocks met elektrisch bedienbare overheaddeuren;
- 1 elektrisch bedienbare overheaddeur op maaiveld
- elektra aansluiting met een capaciteit van 156 kVA; (gecontracteerd vermogen 151 kW)
- 6 gasgestookte heaters;
- kolommen voorzien van aanrijdbeveiliging;
- apart chauffeursentree met operationeel kantoor;
- laadpunten voor heftrucks;
- betonvloer;
- maximale vloerbelasting bedrijfsruimte van 2.500 kg/m²;
- vrije hoogte ca. 7,8 m.
Loodskantoor:
- toiletvoorzieningen;
- kantineruimte;
- kleed- en wasruimtes.
Kantoorruimte:
In gerenoveerde staat, o.a. voorzien van:
- pantry op de begane grond;
- LED verlichting;
- systeemplafond;
- toiletten;
- toegangscontrole systeem;
- afgewerkte vloer
- kabelgoten (BG);
- verwarming middels radiatoren.
Buitenterrein
- volledig omheind;
- 3 elektrisch bedienbare toegangspoorten;
- verhard middels klinkerbestrating;
- nieuwe belijning.
Huurtermijn
In overleg, maar minimaal 5 jaar.
Voorschot servicekosten
Een nader te bepalen voorschot voor de nog nader vast te stellen leveringen en diensten. De servicekosten worden verrekend op basis van jaarlijkse nacalculatie.
Energielabel
A.
Huurprijs
Op aanvraag.
Bestemming
De voor 'Bedrijventerrein' aangewezen gronden zijn bestemd voor bedrijven in de categorieën 1 tot en met 4.1 van de Staat van Bedrijfsactiviteiten.
Huurprijsaanpassing
Jaarlijks, voor het eerst één jaar na datum huuringang, op basis van de wijziging van het prijsindexcijfer volgens de consumentenprijsindex (CPI) reeks CPI-Alle Huishoudens (2015=100), gepubliceerd door het Centraal Bureau voor de Statistiek (CBS).
Omzetbelasting
Over de huurprijs zal b.t.w. in rekening worden gebracht. Indien b.t.w. niet in rekening kan worden gebracht, geldt een nader te bepalen opslag op de huurprijs.
Huurovereenkomst
De huurovereenkomst zal op basis van het standaardmodel van de Raad van Onroerende Zaken (ROZ) met bijbehorende Algemene Bepalingen, gedeponeerd en ingeschreven bij de griffie van de rechtbank te ’s-Gravenhage, worden opgemaakt.
Nadrukkelijk zij vermeld dat deze vrijblijvende informatieverstrekking niet als een aanbieding of offerte mag worden beschouwd. Aan deze gegevens kunnen geen rechten worden ontleend.
Kenmerken
Overdracht
- Huurprijs
- Huurprijs op aanvraag
- Aangeboden sinds
-
- Status
- Beschikbaar
- Aanvaarding
- Per direct beschikbaar
Bouw
- Hoofdfunctie
- Bedrijfshal
- Soort bouw
- Bestaande bouw
- Bouwjaar
- 1995
Oppervlakten
- Oppervlakte
- 10.856 m²
- Bedrijfshal oppervlak
- 8.898 m²
- Kantoor oppervlak
- 1.958 m²
- Vrije hoogte
- 7,8 m
- Vrije overspanning
- 26 m
- Draagvermogen
- 2.500 kg/m²
Indeling
- Aantal bouwlagen
- 2 bouwlagen
- Voorzieningen
- Loading docks, overheaddeuren, betonvloer, heater en toilet
Energie
- Energielabel
- A
Omgeving
- Ligging
- Bedrijventerrein en grootschalige detailhandelsvestigingen
Parkeergelegenheid
- Parkeerplaatsen
- 54 niet-overdekte parkeerplaatsen
Foto's