Haarlemmerstraatweg 71-C 1165 MK Halfweg
€ 195.000 /jr
€ 3.350.000 v.o.n.
Omschrijving
Wij bieden zowel te huur als te koop aan: een ruime modern nieuwbouw bedrijfspand op een uitstekende zichtlocatie aan de Haarlemmerstraatweg 71J in Halfweg, centraal gelegen tussen Amsterdam en Haarlem.
Deze representatieve bedrijfsruimte is bij uitstek geschikt voor ondernemers in onder andere logistiek, automotive, mode, productie, groothandel en technische dienstverlening zoals aannemers, elektriciens en installatietechniek.
Een ideale locatie voor bedrijven die bereikbaarheid, zichtbaarheid en professionele huisvesting willen combineren.
HALFWEG BUSINESSPARK
Aan de drukbezochte N200 tussen Amsterdam en Haarlem wordt in mei 2026 het moderne Halfweg Businesspark opgeleverd; 9 representatieve en multifunctionele bedrijfsruimtes met uitstekende zichtbaarheid, direct aan de doorgaande weg en grenzend aan de Ringvaart van de Haarlemmermeerpolder.
De locatie is uitstekend bereikbaar en ligt in een dynamische, zakelijke omgeving. Op korte afstand bevindt zich SugarCity met diverse kantoren, horeca en retail, waaronder Amsterdam The Style Outlets.
Een ideale vestigingslocatie voor bedrijven die waarde hechten aan bereikbaarheid, zichtbaarheid en een professionele uitstraling.
HAARLEMMERSTRAATWEG 71C
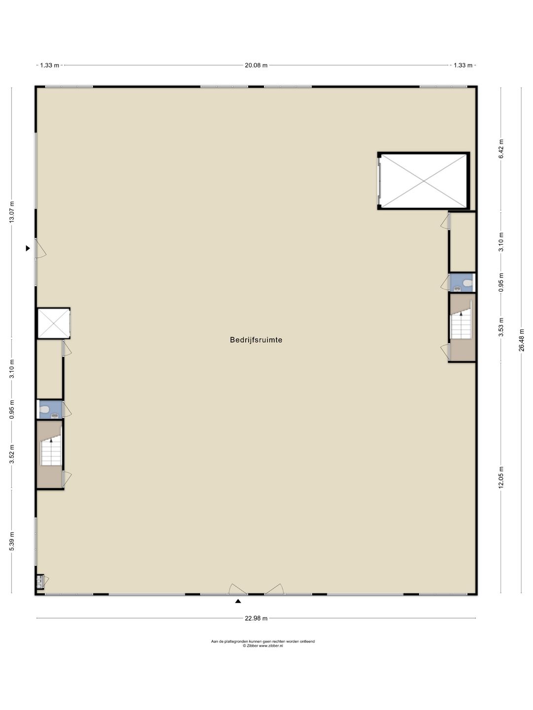
Dit hoekpand heeft een totale oppervlakte van 1.358 m² BVO, verdeeld over de begane grond en de eerste verdieping. De begane grond beschikt over een vrije hoogte van 4,60 meter, terwijl de eerste verdieping een hoogte heeft van circa 3,5 meter tot het laagste punt en 4,50 meter tot het hoogste punt.
Het pand is uitgerust met drie elektrisch bedienbare overheaddeuren met een doorrijhoogte van 4,2 meter, wat de ruimte zeer geschikt maakt voor logistieke bedrijfsactiviteiten. Daarnaast beschikt het pand over meerdere parkeerplaatsen op eigen grond en ruime laad- en losmogelijkheden. Tijdens de bouw is gebruikgemaakt van hoogwaardige materialen en er is gebouwd conform de nieuwste eisen van het Bouwbesluit. De units zijn ontworpen met oog voor duurzaamheid, energiezuinigheid en onderhoudsvriendelijkheid, zowel aan de binnen- als buitenzijde.
Kopers hebben de mogelijkheid om – binnen de kaders van het geldende bestemmingsplan – de indeling en afwerking van het pand naar eigen wens te realiseren. Daarnaast bestaat de mogelijkheid om aangrenzende units te koppelen, waardoor grotere bedrijfsruimtes gecreëerd kunnen worden.
KADASTRAAL
Gemeente Haarlemmermeer
Sectie M
Nummer 3461, 3471
Het pand is gedeeltelijk gelegen op eigen grond (ca. 3/4) en gedeeltelijk gelegen op erfpacht (ca. 1/4) met Hoogheemraadschap van Rijnland)
OPPERVLAKTE EN MATEN
Oppervlakte
1e verdieping 620 m²
2e verdieping 738 m²
Totaal 1.358 m²
Perceel totaal ca 350 m² (deels eigen grond, deels erfpacht)
VOORZIENINGEN
Trap
Elektra punten
LED verlichting
3 x elektrische overheaddeur
3 x separate toegangsdeur
Cementdekvloer op begane grond en verdieping
Voorbereiding voor warmtepomp / airco unit op het dak
Goederenlift tot max. 2000 kg (afmetingen 2 x 3 mtr)
Personenlift
Toilet
Meterkast
PARKEERPLAATSEN
7 stuks op eigen grond gelegen inclusief voorbereiding voor een laadpaal.
Openbare parkeergelegenheid aan de straat.
KOOPSOM
€ 3.350.000,- vrij op naam exclusief BTW
KOOPVOORWAARDEN
Aanvaarding: per direct mogelijk
Notaris: Jager Notarissen te Heemstede
Zekerheidsstelling: bankgarantie of waarborgsom ter grootte van 10% van de koopsom
BTW: de levering is belast met BTW (geen overdrachtsbelasting van toepassing).
Oplevering: in de huidige staat
Koopovereenkomst: conform model van de Nederlandse Vereniging van Makelaars (NVM)
HUURPRIJS
€ 195.000,- per jaar exclusief BTW
HUURVOORWAARDEN
Huurtermijn: 5 + 5 jaar (of in overleg)
Aanvaarding: per direct mogelijk
Waarborgsom: ter grootte van 3 maanden huur, te vermeerderen met BTW
Servicekosten: niet van toepassing
Indexering: jaarlijks op basis van het Centraal Bureau voor de Statistiek (CPI – alle huishoudens)
Huurovereenkomst: conform model van de Raad voor Onroerende Zaken (ROZ)
BTW: uitgangspunt is een met BTW belaste verhuur
Opleveringsniveau: in de huidige staat
LOCATIE
Halfweg Businesspark is gelegen aan de Haarlemmerstraatweg 71 te Halfweg tussen Haarlem en Amsterdam en grenst direct aan het Sugar City terrein en wordt sinds 2000 herontwikkeld. De locatie voorziet in moderne kantoor- en showroomruimtes, evenementenlocatie en in 2020 opende hier outlet-shopping centre ‘Amsterdam The Style Outlets’. Naast retail zijn er plannen voor diverse horeca, een jachthaven, een grote supermarkt en een hotel met ruimte voor events en congressen.
BEREIKBAARHEID
Vanuit Haarlem en Amsterdam is Halfweg Businesspark zeer goed te bereiken via de N200. De oprit naar de A9 richting Amsterdam, Den Haag en Utrecht of richting Alkmaar is op enkele minuten afstand gelegen (knooppunt Rottepolderplein). Ook via het openbaar vervoer is de locatie goed bereikbaar. Direct voor de deur ligt Station Halfweg-Zwanenburg waar vier keer per uur treinen vertrekken naar Amsterdam en Haarlem. Tevens stopt buslijn 80 (Interliner) voor de deur
BESTEMMING
Bestemmingsplan BP Buitengebied (onherroepelijk vastgesteld 24-06-2014). Gemeente Haarlemmermeer. Enkelbestemming bedrijventerrein tot milieucategorie 4.2. Het bestemmingsplan voorziet in huisvesting van bedrijven uiteenlopend van groothandel, productie, maakindustrie tot logistiek, mode, automotive en dienstverlening.
DISCLAIMER
Hoewel aan de samenstelling en inhoud van deze omschrijving de grootst mogelijke zorg is besteed, kunnen wij niet aansprakelijk worden gesteld voor onverhoopte fouten en gebreken, noch kunnen aan de inhoud rechten worden ontleend.
Deze representatieve bedrijfsruimte is bij uitstek geschikt voor ondernemers in onder andere logistiek, automotive, mode, productie, groothandel en technische dienstverlening zoals aannemers, elektriciens en installatietechniek.
Een ideale locatie voor bedrijven die bereikbaarheid, zichtbaarheid en professionele huisvesting willen combineren.
HALFWEG BUSINESSPARK
Aan de drukbezochte N200 tussen Amsterdam en Haarlem wordt in mei 2026 het moderne Halfweg Businesspark opgeleverd; 9 representatieve en multifunctionele bedrijfsruimtes met uitstekende zichtbaarheid, direct aan de doorgaande weg en grenzend aan de Ringvaart van de Haarlemmermeerpolder.
De locatie is uitstekend bereikbaar en ligt in een dynamische, zakelijke omgeving. Op korte afstand bevindt zich SugarCity met diverse kantoren, horeca en retail, waaronder Amsterdam The Style Outlets.
Een ideale vestigingslocatie voor bedrijven die waarde hechten aan bereikbaarheid, zichtbaarheid en een professionele uitstraling.
HAARLEMMERSTRAATWEG 71C
Dit hoekpand heeft een totale oppervlakte van 1.358 m² BVO, verdeeld over de begane grond en de eerste verdieping. De begane grond beschikt over een vrije hoogte van 4,60 meter, terwijl de eerste verdieping een hoogte heeft van circa 3,5 meter tot het laagste punt en 4,50 meter tot het hoogste punt.
Het pand is uitgerust met drie elektrisch bedienbare overheaddeuren met een doorrijhoogte van 4,2 meter, wat de ruimte zeer geschikt maakt voor logistieke bedrijfsactiviteiten. Daarnaast beschikt het pand over meerdere parkeerplaatsen op eigen grond en ruime laad- en losmogelijkheden. Tijdens de bouw is gebruikgemaakt van hoogwaardige materialen en er is gebouwd conform de nieuwste eisen van het Bouwbesluit. De units zijn ontworpen met oog voor duurzaamheid, energiezuinigheid en onderhoudsvriendelijkheid, zowel aan de binnen- als buitenzijde.
Kopers hebben de mogelijkheid om – binnen de kaders van het geldende bestemmingsplan – de indeling en afwerking van het pand naar eigen wens te realiseren. Daarnaast bestaat de mogelijkheid om aangrenzende units te koppelen, waardoor grotere bedrijfsruimtes gecreëerd kunnen worden.
KADASTRAAL
Gemeente Haarlemmermeer
Sectie M
Nummer 3461, 3471
Het pand is gedeeltelijk gelegen op eigen grond (ca. 3/4) en gedeeltelijk gelegen op erfpacht (ca. 1/4) met Hoogheemraadschap van Rijnland)
OPPERVLAKTE EN MATEN
Oppervlakte
1e verdieping 620 m²
2e verdieping 738 m²
Totaal 1.358 m²
Perceel totaal ca 350 m² (deels eigen grond, deels erfpacht)
VOORZIENINGEN
Trap
Elektra punten
LED verlichting
3 x elektrische overheaddeur
3 x separate toegangsdeur
Cementdekvloer op begane grond en verdieping
Voorbereiding voor warmtepomp / airco unit op het dak
Goederenlift tot max. 2000 kg (afmetingen 2 x 3 mtr)
Personenlift
Toilet
Meterkast
PARKEERPLAATSEN
7 stuks op eigen grond gelegen inclusief voorbereiding voor een laadpaal.
Openbare parkeergelegenheid aan de straat.
KOOPSOM
€ 3.350.000,- vrij op naam exclusief BTW
KOOPVOORWAARDEN
Aanvaarding: per direct mogelijk
Notaris: Jager Notarissen te Heemstede
Zekerheidsstelling: bankgarantie of waarborgsom ter grootte van 10% van de koopsom
BTW: de levering is belast met BTW (geen overdrachtsbelasting van toepassing).
Oplevering: in de huidige staat
Koopovereenkomst: conform model van de Nederlandse Vereniging van Makelaars (NVM)
HUURPRIJS
€ 195.000,- per jaar exclusief BTW
HUURVOORWAARDEN
Huurtermijn: 5 + 5 jaar (of in overleg)
Aanvaarding: per direct mogelijk
Waarborgsom: ter grootte van 3 maanden huur, te vermeerderen met BTW
Servicekosten: niet van toepassing
Indexering: jaarlijks op basis van het Centraal Bureau voor de Statistiek (CPI – alle huishoudens)
Huurovereenkomst: conform model van de Raad voor Onroerende Zaken (ROZ)
BTW: uitgangspunt is een met BTW belaste verhuur
Opleveringsniveau: in de huidige staat
LOCATIE
Halfweg Businesspark is gelegen aan de Haarlemmerstraatweg 71 te Halfweg tussen Haarlem en Amsterdam en grenst direct aan het Sugar City terrein en wordt sinds 2000 herontwikkeld. De locatie voorziet in moderne kantoor- en showroomruimtes, evenementenlocatie en in 2020 opende hier outlet-shopping centre ‘Amsterdam The Style Outlets’. Naast retail zijn er plannen voor diverse horeca, een jachthaven, een grote supermarkt en een hotel met ruimte voor events en congressen.
BEREIKBAARHEID
Vanuit Haarlem en Amsterdam is Halfweg Businesspark zeer goed te bereiken via de N200. De oprit naar de A9 richting Amsterdam, Den Haag en Utrecht of richting Alkmaar is op enkele minuten afstand gelegen (knooppunt Rottepolderplein). Ook via het openbaar vervoer is de locatie goed bereikbaar. Direct voor de deur ligt Station Halfweg-Zwanenburg waar vier keer per uur treinen vertrekken naar Amsterdam en Haarlem. Tevens stopt buslijn 80 (Interliner) voor de deur
BESTEMMING
Bestemmingsplan BP Buitengebied (onherroepelijk vastgesteld 24-06-2014). Gemeente Haarlemmermeer. Enkelbestemming bedrijventerrein tot milieucategorie 4.2. Het bestemmingsplan voorziet in huisvesting van bedrijven uiteenlopend van groothandel, productie, maakindustrie tot logistiek, mode, automotive en dienstverlening.
DISCLAIMER
Hoewel aan de samenstelling en inhoud van deze omschrijving de grootst mogelijke zorg is besteed, kunnen wij niet aansprakelijk worden gesteld voor onverhoopte fouten en gebreken, noch kunnen aan de inhoud rechten worden ontleend.
Kenmerken
Overdracht
- Vraagprijs
- € 3.350.000 vrij op naam
- Huurprijs
- € 195.000 per jaar
- Aangeboden sinds
-
- Status
- Beschikbaar
- Aanvaarding
- Per direct beschikbaar
Bouw
- Hoofdfunctie
- Bedrijfshal
- Soort bouw
- Nieuwbouw
- Bouwjaar
- 2025
Oppervlakten
- Oppervlakte
- 1.358 m²
- Bedrijfshal oppervlak
- 1.358 m²
- Vrije hoogte
- 4,6 m
- Draagvermogen
- 2.000 kg/m²
Indeling
- Voorzieningen
- Overheaddeuren, betonvloer en toilet
Energie
- Energielabel
- A+
Omgeving
- Ligging
- Bedrijventerrein, aan vaarwater en perifere detailhandelsvestigingen
Parkeergelegenheid
- Parkeerplaatsen
- 7 niet-overdekte parkeerplaatsen
NVM makelaar
Foto's