Uhlweg 7 8441 AG Heerenveen
- Nieuw
€ 1.345.000 k.k.
Omschrijving
Gelegen op een uitstekende locatie op bedrijventerrein Heerenveen-Noord bevindt zich dit vrijstaande bedrijfspand.
Dit object bestaat uit 2 adressen, te weten: Uhlweg 5a en Uhlweg 7 te Heerenveen.
Het pand heeft een totaal bruto oppervlak van circa 2.276 m², dit metrage bevindt zich grotendeels op B.G. niveau (ca. 83%) en deels op de etage.
Het bedrijfsgebouw is gesitueerd op een kavel eigen grond met een totale grootte van 3.789 m².
De buitenruimte in totaal circa 1.895 m² bestaat grotendeels uit verhard buitenterrein.
Locatie
Het kleinschalige bedrijventerrein Heerenveen-Noord is gelegen aan de noordzijde van Heerenveen.
Op dit bedrijventerrein zijn diverse bedrijven gevestigd met zowel kantoor-, bedrijfs- als showroomfuncties.
Bedrijventerrein Heerenveen Noord is tegen de A-7 gesitueerd (snelweg Amsterdam-Groningen).
Het object Uhlweg 7 is extra zichtbaar vanaf de A-7 als gevolg van de eigen reclamemast op het terrein (ca. 10 meter hoogte).
Het bedrijventerrein wordt aan de zuidzijde begrenst door de gelijknamige woonwijk Heerenveen-Noord.
Bereikbaarheid
Het “klaverblad Heerenveen” waar de snelwegen A-7 en A-32 elkaar kruisen ligt op circa 3 autominuten, daarmee is de locatie per auto zeer goed bereikbaar.
Op circa 500 meter is een bushalte gelegen die in directe verbinding staat met treinstation Heerenveen.
Het centrum van Heerenveen met vele voorzieningen bevindt zich op circa 2 kilometer afstand.
Parkeren
Op eigen terrein aanwezig.
Oppervlakte
Totale oppervlakte bedraagt circa 2.276 m² b.v.o. of wel circa 2.162 m² v.v.o.
Het metrage v.v.o. is naar functie als volgt verdeeld:
- circa 198 m² kantoorruimte;
- circa 1.395 m² bedrijfsruimte;
- circa 159 m² verkeersruimte;
- circa 410 m² facilitaire ruimte.
De verdeling tussen de adressen is als volgt:
- Uhlweg 5A : betreft bedrijfs- en kantoorruimte van circa 1.499 m² v.v.o., de verdeling is op B.G. niveau circa 1.137 m² en op de etage circa 362 m².
Bij dit gedeelte behoort een verhard buitenterrein van circa 500 m².
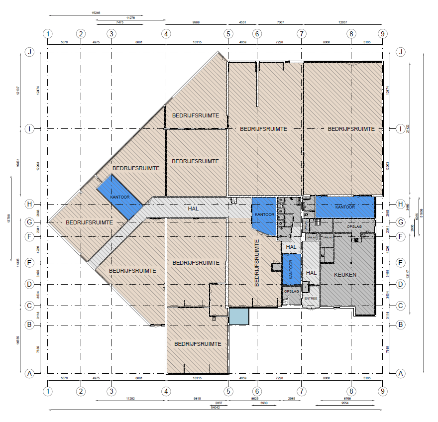
Voor de indeling zie de bijgevoegde plattegronden.
- Uhlweg 7 : betreft bedrijfsruimte op B.G. niveau met een totaal oppervlak van circa 663 m² v.v.o.
Bij dit gedeelte behoord een verhard buitenterrein van circa 1.150 m² hierop is tevens de reclamemast gesitueerd.
Voor de indeling zie de bijgevoegde plattegronden.
Voorzieningen
De bedrijfsruimten zijn onder andere voorzien van:
- eigen nutsaansluitingen voor zowel nummer 5A als voor nummer 7 (gas en elektra).
- balie / receptie
- indeling
- vloerbedekking
- CV verwarming
- airco's op kantoren op de etage
- systeemplafonds met TL verlichting
- diverse elektrische bedienbare overheaddeuren
- toiletgroepen
- kantine
- pantry
- krachtstroom
- betonvloer
- etage betreft houten zolders
- kraanbanen (2 stuks)
- verhard buitenterrein
Bestemming
Bestemmingsplan: “Heerenveen-Noord”.
Bestemming: Bedrijven onder de categorieën 1 en 2.
VERKOOPVOORWAARDEN
Vraagprijs
€ 1.345.000,- kosten koper.
Aanvaarding
In overleg, het object wordt in beginsel leeg en ontruimd aan de koper opgeleverd.
Het gedeelte welke thans in gebruik is bij Boels Verhuur komt per circa september 2026 beschikbaar.
Het gedeelte welke thans in gebruik is bij Mind Up komt per uiterlijk medio maart 2027 beschikbaar.
Bijzonderheden
Levering onder de conditie "as is, where is".
Waarborgsom/bankgarantie
Bij het tot stand komen van een koopovereenkomst dient koper 10% borgsom te storten c.q. een bankgarantie ter grootte van 10% van de koopsom af te geven bij de notaris.
Meer informatie over dit object?
Voor meer informatie en/of het maken van een afspraak kunt u contact opnemen met Jeroen van Reenen, Tjibbe-Jan Boringa, Levi Huijser of Linda van Es, telefoon 0513 - 644 355 of 058 - 204 0000 of stuur een e-mail naar info @ rbmt .nl
DISCLAIMER
Deze informatie (inclusief bijlagen) van "RBMT Bedrijfsmakelaars & Taxateurs Noord-Nederland B.V. " is met grote zorgvuldigheid samengesteld. Voor mogelijke onjuistheid en/of onvolledigheid van de verstrekte informatie kan "RBMT Bedrijfsmakelaars & Taxateurs Noord-Nederland B.V. " geen aansprakelijkheid aanvaarden, evenmin kunnen aan de inhoud van deze informatie (inclusief bijlagen) rechten worden ontleend. Deze informatie is geheel vrijblijvend en niet meer dan een uitnodiging tot het doen van een voorstel.
Dit object bestaat uit 2 adressen, te weten: Uhlweg 5a en Uhlweg 7 te Heerenveen.
Het pand heeft een totaal bruto oppervlak van circa 2.276 m², dit metrage bevindt zich grotendeels op B.G. niveau (ca. 83%) en deels op de etage.
Het bedrijfsgebouw is gesitueerd op een kavel eigen grond met een totale grootte van 3.789 m².
De buitenruimte in totaal circa 1.895 m² bestaat grotendeels uit verhard buitenterrein.
Locatie
Het kleinschalige bedrijventerrein Heerenveen-Noord is gelegen aan de noordzijde van Heerenveen.
Op dit bedrijventerrein zijn diverse bedrijven gevestigd met zowel kantoor-, bedrijfs- als showroomfuncties.
Bedrijventerrein Heerenveen Noord is tegen de A-7 gesitueerd (snelweg Amsterdam-Groningen).
Het object Uhlweg 7 is extra zichtbaar vanaf de A-7 als gevolg van de eigen reclamemast op het terrein (ca. 10 meter hoogte).
Het bedrijventerrein wordt aan de zuidzijde begrenst door de gelijknamige woonwijk Heerenveen-Noord.
Bereikbaarheid
Het “klaverblad Heerenveen” waar de snelwegen A-7 en A-32 elkaar kruisen ligt op circa 3 autominuten, daarmee is de locatie per auto zeer goed bereikbaar.
Op circa 500 meter is een bushalte gelegen die in directe verbinding staat met treinstation Heerenveen.
Het centrum van Heerenveen met vele voorzieningen bevindt zich op circa 2 kilometer afstand.
Parkeren
Op eigen terrein aanwezig.
Oppervlakte
Totale oppervlakte bedraagt circa 2.276 m² b.v.o. of wel circa 2.162 m² v.v.o.
Het metrage v.v.o. is naar functie als volgt verdeeld:
- circa 198 m² kantoorruimte;
- circa 1.395 m² bedrijfsruimte;
- circa 159 m² verkeersruimte;
- circa 410 m² facilitaire ruimte.
De verdeling tussen de adressen is als volgt:
- Uhlweg 5A : betreft bedrijfs- en kantoorruimte van circa 1.499 m² v.v.o., de verdeling is op B.G. niveau circa 1.137 m² en op de etage circa 362 m².
Bij dit gedeelte behoort een verhard buitenterrein van circa 500 m².
Voor de indeling zie de bijgevoegde plattegronden.
- Uhlweg 7 : betreft bedrijfsruimte op B.G. niveau met een totaal oppervlak van circa 663 m² v.v.o.
Bij dit gedeelte behoord een verhard buitenterrein van circa 1.150 m² hierop is tevens de reclamemast gesitueerd.
Voor de indeling zie de bijgevoegde plattegronden.
Voorzieningen
De bedrijfsruimten zijn onder andere voorzien van:
- eigen nutsaansluitingen voor zowel nummer 5A als voor nummer 7 (gas en elektra).
- balie / receptie
- indeling
- vloerbedekking
- CV verwarming
- airco's op kantoren op de etage
- systeemplafonds met TL verlichting
- diverse elektrische bedienbare overheaddeuren
- toiletgroepen
- kantine
- pantry
- krachtstroom
- betonvloer
- etage betreft houten zolders
- kraanbanen (2 stuks)
- verhard buitenterrein
Bestemming
Bestemmingsplan: “Heerenveen-Noord”.
Bestemming: Bedrijven onder de categorieën 1 en 2.
VERKOOPVOORWAARDEN
Vraagprijs
€ 1.345.000,- kosten koper.
Aanvaarding
In overleg, het object wordt in beginsel leeg en ontruimd aan de koper opgeleverd.
Het gedeelte welke thans in gebruik is bij Boels Verhuur komt per circa september 2026 beschikbaar.
Het gedeelte welke thans in gebruik is bij Mind Up komt per uiterlijk medio maart 2027 beschikbaar.
Bijzonderheden
Levering onder de conditie "as is, where is".
Waarborgsom/bankgarantie
Bij het tot stand komen van een koopovereenkomst dient koper 10% borgsom te storten c.q. een bankgarantie ter grootte van 10% van de koopsom af te geven bij de notaris.
Meer informatie over dit object?
Voor meer informatie en/of het maken van een afspraak kunt u contact opnemen met Jeroen van Reenen, Tjibbe-Jan Boringa, Levi Huijser of Linda van Es, telefoon 0513 - 644 355 of 058 - 204 0000 of stuur een e-mail naar info @ rbmt .nl
DISCLAIMER
Deze informatie (inclusief bijlagen) van "RBMT Bedrijfsmakelaars & Taxateurs Noord-Nederland B.V. " is met grote zorgvuldigheid samengesteld. Voor mogelijke onjuistheid en/of onvolledigheid van de verstrekte informatie kan "RBMT Bedrijfsmakelaars & Taxateurs Noord-Nederland B.V. " geen aansprakelijkheid aanvaarden, evenmin kunnen aan de inhoud van deze informatie (inclusief bijlagen) rechten worden ontleend. Deze informatie is geheel vrijblijvend en niet meer dan een uitnodiging tot het doen van een voorstel.
Kenmerken
Overdracht
- Vraagprijs
- € 1.345.000 kosten koper
- Aangeboden sinds
-
- Status
- Beschikbaar
- Aanvaarding
- In overleg
Bouw
- Hoofdfunctie
- Bedrijfshal
- Soort bouw
- Bestaande bouw
- Bouwjaar
- 1981
Oppervlakten
- Oppervlakte
- 2.162 m² (in units vanaf 633 m²)
- Bedrijfshal oppervlak
- 1.964 m²
- Terrein oppervlak
- 1.150 m²
- Kantoor oppervlak
- 198 m²
- Vrije hoogte
- 5 m
- Vrije overspanning
- 13 m
- Draagvermogen
- 1.000 kg/m²
- Perceel
- 3.789 m²
- Uitbreidingsmogelijkheden
- 500 m² (maximale bouwhoogte: 5 m)
Indeling
- Aantal bouwlagen
- 1 bouwlaag
- Voorzieningen
- Mechanische ventilatie, overheaddeuren, krachtstroom, betonvloer, toilet, pantry, airconditioning en te openen ramen
Energie
- Energielabel
- A
Omgeving
- Ligging
- Bedrijventerrein
- Bereikbaarheid
- Bushalte op minder dan 500 m, NS Intercitystation op 1500 m tot 2000 m en snelwegafrit op minder dan 500 m
Foto's