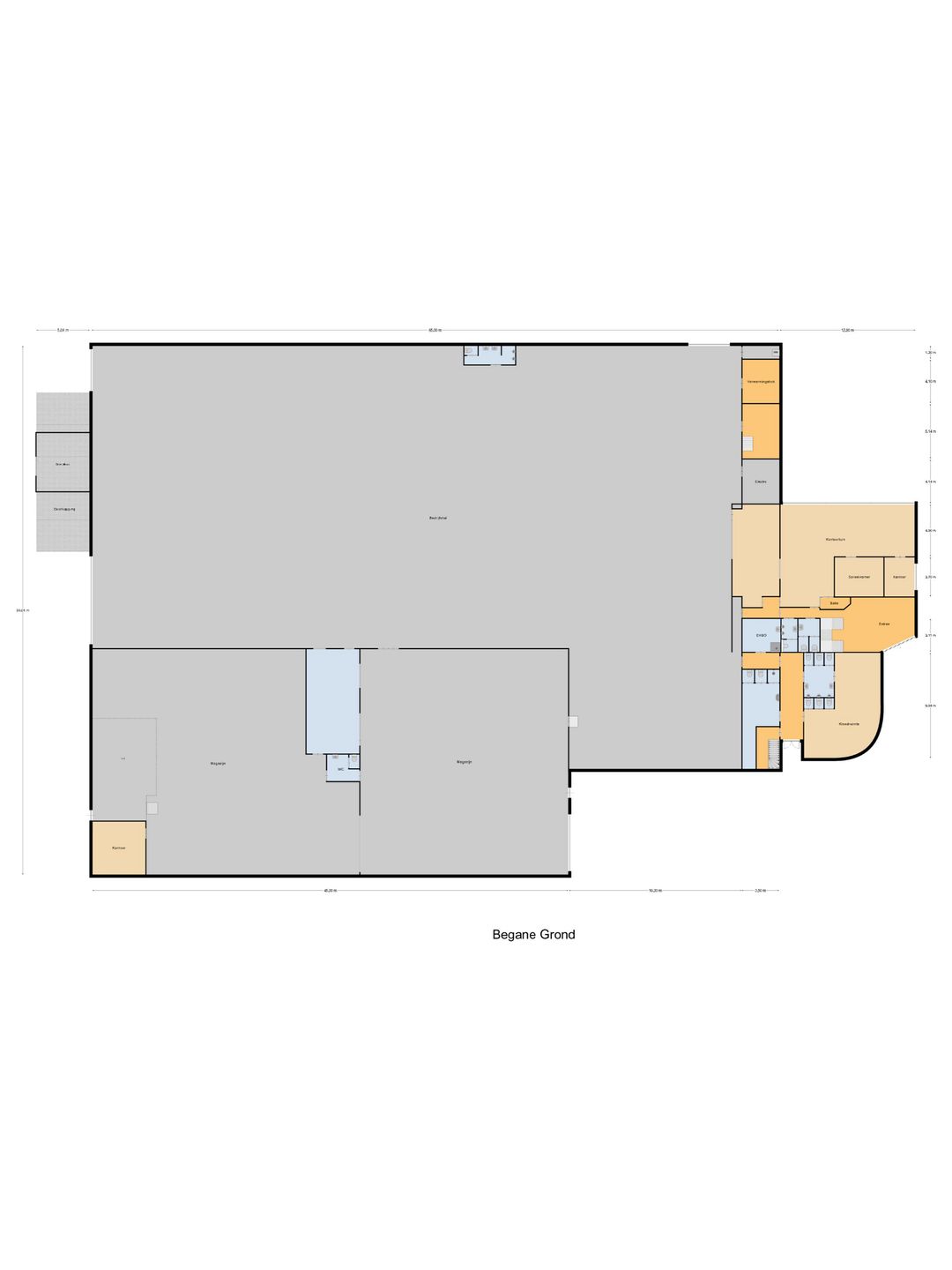
Omschrijving
Op een goede zicht– en bereikbare locatie op het bedrijventerrein “Hoogveld–De Groote Heeze” staat dit representatieve vrijstaande bedrijfspand met een totale oppervlakte van circa 3.800 m². Het object bestaat uit een ruime productiehal met expeditieruimte en magazijn, kantine, sanitaire voorzieningen en kantoorruimtes over twee bouwlagen.
Dankzij de krachtige grootverbruikaansluiting (173 kVA en 245 kVA) en de bestemming voor bedrijven tot en met milieucategorie 4.2 volgens het bestemmingsplan “Bedrijventerrein Hoogveld–De Groote Heeze 2012”, is dit pand uitermate geschikt voor productie-, technische of logistieke ondernemingen.
Met directe aansluiting op de A77 en A73 en uitstekende verbindingen richting Rotterdam, het Ruhrgebied, Nijmegen, Venlo en Düsseldorf, biedt deze locatie alles voor bedrijven die ruimte, bereikbaarheid en representativiteit willen combineren.
Bouwjaar : 1993
VVO : 3800 m²
Energielabel : D
KANTOORRUIMTE
oppervlakte: ca. 800 m²
De glazen entree is uitnodigend en zorgt met het hoge plafond, de vide en de marmeren vloertegels voor een representatieve en luxe uitstraling bij binnenkomst. In de hal vind je een baliefunctie, sanitaire voorzieningen (gescheiden), houten bordestrap naar boven en toegang tot een kantoor. Alles staat met elkaar in verbinding, vanuit hier loop je ook zo de bedrijfshal in, waardoor de indeling prettig open aanvoelt. Op de verdieping vind je diverse spreek-/kantoorruimtes , data/computerruimte met pater noster kasten en een royale kantine met keuken.
- de ruimtes zijn afgewerkt met een systeemplafond voorzien van inbouw-armaturen;
- diverse werkplekaansluitingen (o.a. internet- en telefoonaansluitingen);
- diverse kabelgoten en loze leidingen;
- de ruimtes beschikken over te openen ramen.
BEDRIJFSHAL
oppervlakte: ca. 3.000 m²
- Vrije hoogte: ca. 4 meter
- Voorzien van meerdere overheaddeuren;
- Kraanbaan van 3.2 ton;
- Kraanarm 1000 kg;
- Sanitaire voorzieningen in de bedrijfshal;
- Expeditie– en magazijn ruimte in de bedrijfshal;
- Uitgebreide elektrische installatie , 173 kVA en 245 kVA;
- Personeelsingang met toegang tot de EHBO ruimte, 2 kleedlokalen en gescheiden sanitaire voorzieningen;
- Goed geïsoleerd en in prima staat van onderhoud.
- Geschikt voor productie-, assemblage- en opslagactiviteiten.
- Diverse parkeerplaatsen op eigen terrein, volledig omheind en afgesloten middels rolpoort en loopdeur;
- Achter de bedrijfshal is een overkapping geplaatst met spoelplaats, voorzien van vloeistofdichte vloer met put en afvoersysteem.
Download de brochure voor meer informatie!
Dankzij de krachtige grootverbruikaansluiting (173 kVA en 245 kVA) en de bestemming voor bedrijven tot en met milieucategorie 4.2 volgens het bestemmingsplan “Bedrijventerrein Hoogveld–De Groote Heeze 2012”, is dit pand uitermate geschikt voor productie-, technische of logistieke ondernemingen.
Met directe aansluiting op de A77 en A73 en uitstekende verbindingen richting Rotterdam, het Ruhrgebied, Nijmegen, Venlo en Düsseldorf, biedt deze locatie alles voor bedrijven die ruimte, bereikbaarheid en representativiteit willen combineren.
Bouwjaar : 1993
VVO : 3800 m²
Energielabel : D
KANTOORRUIMTE
oppervlakte: ca. 800 m²
De glazen entree is uitnodigend en zorgt met het hoge plafond, de vide en de marmeren vloertegels voor een representatieve en luxe uitstraling bij binnenkomst. In de hal vind je een baliefunctie, sanitaire voorzieningen (gescheiden), houten bordestrap naar boven en toegang tot een kantoor. Alles staat met elkaar in verbinding, vanuit hier loop je ook zo de bedrijfshal in, waardoor de indeling prettig open aanvoelt. Op de verdieping vind je diverse spreek-/kantoorruimtes , data/computerruimte met pater noster kasten en een royale kantine met keuken.
- de ruimtes zijn afgewerkt met een systeemplafond voorzien van inbouw-armaturen;
- diverse werkplekaansluitingen (o.a. internet- en telefoonaansluitingen);
- diverse kabelgoten en loze leidingen;
- de ruimtes beschikken over te openen ramen.
BEDRIJFSHAL
oppervlakte: ca. 3.000 m²
- Vrije hoogte: ca. 4 meter
- Voorzien van meerdere overheaddeuren;
- Kraanbaan van 3.2 ton;
- Kraanarm 1000 kg;
- Sanitaire voorzieningen in de bedrijfshal;
- Expeditie– en magazijn ruimte in de bedrijfshal;
- Uitgebreide elektrische installatie , 173 kVA en 245 kVA;
- Personeelsingang met toegang tot de EHBO ruimte, 2 kleedlokalen en gescheiden sanitaire voorzieningen;
- Goed geïsoleerd en in prima staat van onderhoud.
- Geschikt voor productie-, assemblage- en opslagactiviteiten.
- Diverse parkeerplaatsen op eigen terrein, volledig omheind en afgesloten middels rolpoort en loopdeur;
- Achter de bedrijfshal is een overkapping geplaatst met spoelplaats, voorzien van vloeistofdichte vloer met put en afvoersysteem.
Download de brochure voor meer informatie!
Kaart
Kaart laden...
Kadastrale grens
Bebouwing
Reistijd
Krijg inzicht in de bereikbaarheid van dit object vanuit bijvoorbeeld een openbaar vervoer station of vanuit een adres.