Omschrijving
Op het moderne en goed onderhouden bedrijventerrein Boekelermeer-Zuid bieden wij deze hoogwaardige, drie-laagse kopunit te huur aan. Het object maakt deel uit van een representatief bedrijfsverzamelgebouw en is bij uitstek geschikt voor ondernemers die op zoek zijn naar een combinatie van bedrijfsruimte en kantoorfuncties.
De unit beschikt over een frisse, moderne uitstraling, een uitstekende daglichttoetreding en een efficiënt indeelbare plattegrond. Dankzij de open structuur is het object eenvoudig aan te passen aan uiteenlopende bedrijfsconcepten. Het geheel is duurzaam gebouwd, goed onderhouden en voorzien van hoogwaardige faciliteiten, waaronder een liftinstallatie, luxe sanitaire voorzieningen en zes eigen parkeerplaatsen.
Ligging & bereikbaarheid
De Droogmakerij 37 B is strategisch gelegen op bedrijventerrein Boekelermeer-Zuid en uitstekend bereikbaar. Binnen circa vijf minuten zijn onder meer Alkmaar, Heiloo en Akersloot te bereiken. De locatie biedt een snelle aansluiting op het regionale en nationale wegennet en is daarmee aantrekkelijk voor zowel personeel als bezoekers.
Bestemming
Bestemmingsplan: Boekelermeer Heiloo
Functieaanduiding: Bedrijf – 2
Huurder is zelf verantwoordelijk voor het verkrijgen van zekerheid omtrent de toelaatbaarheid van de voorgenomen bedrijfsactiviteiten. Bij twijfel adviseren wij contact op te nemen met de gemeente Alkmaar.
NB: beoogd gebruik ten behoeve van de autobranche past niet binnen de door verhuurder gehanteerde verhuurcriteria.
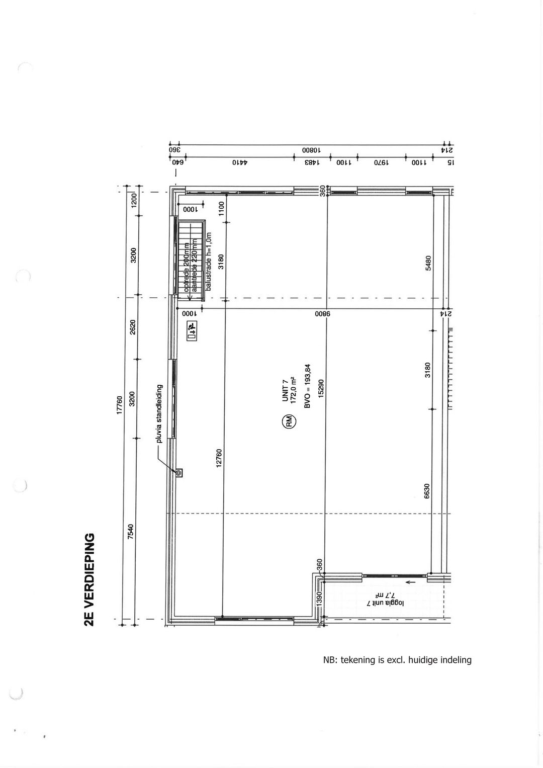
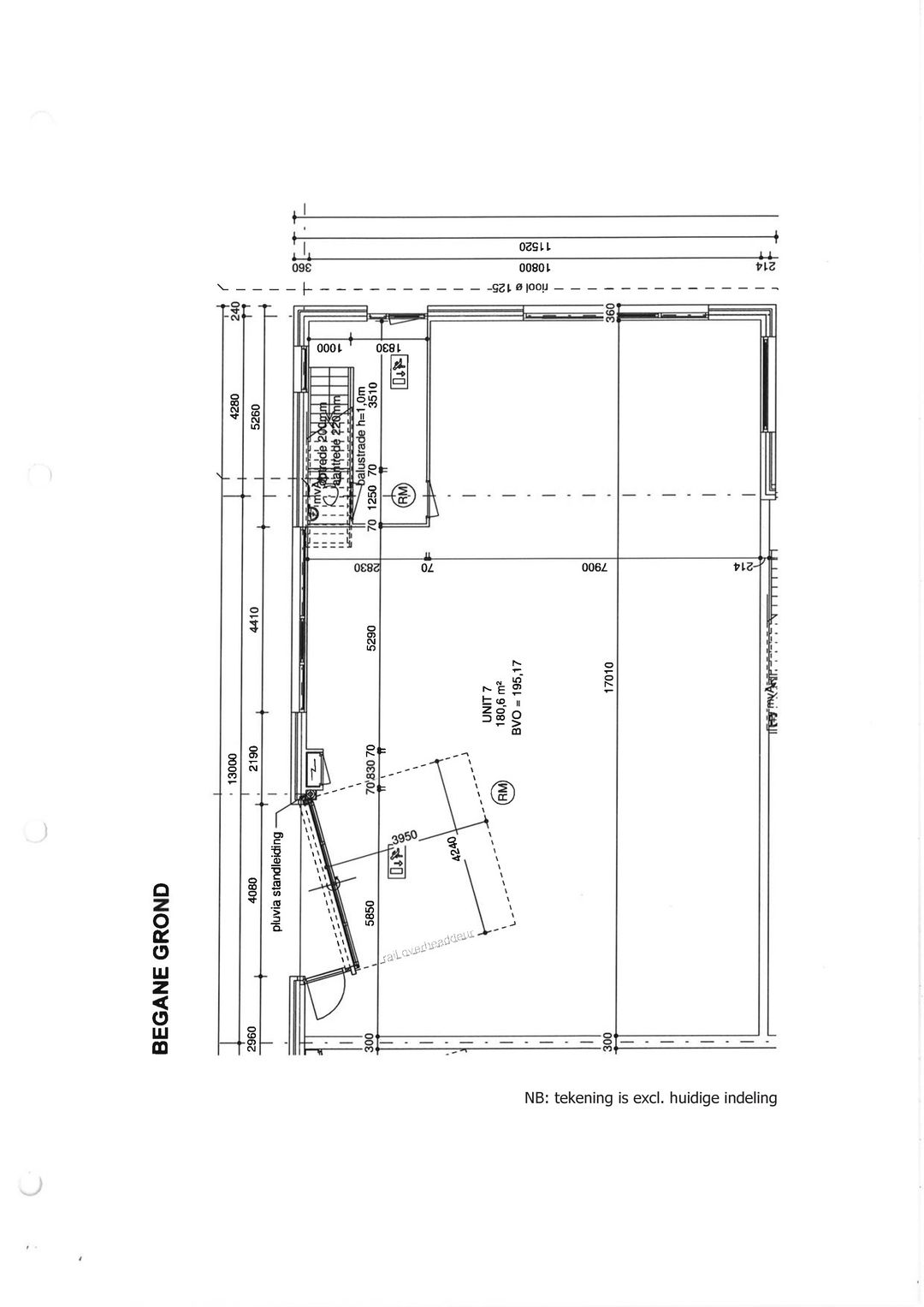
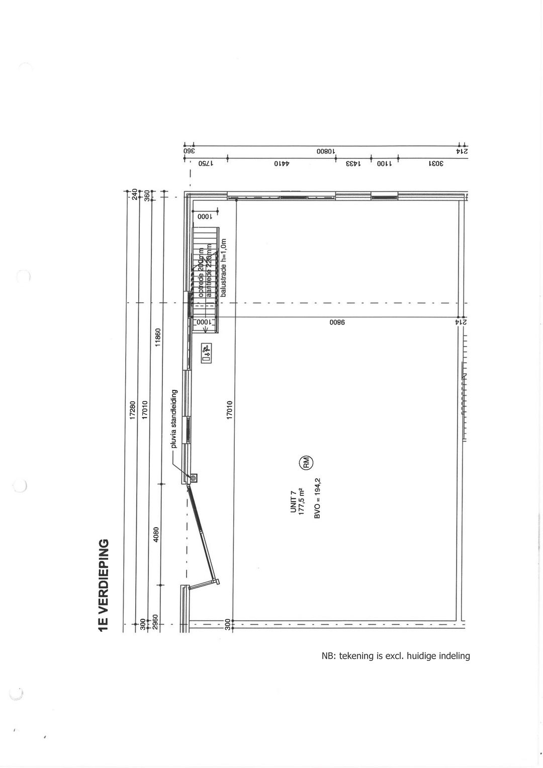
Oppervlakte (BVO)
Begane grond: ca. 195 m²
1e verdieping: ca. 194 m²
2e verdieping: ca. 193 m², voorzien van dakterras/balkon
Totaal: ca. 582 m² BVO
Voorzieningen & bijzonderheden
Multifunctionele bedrijfs-/kantoorunit
Open, flexibel indeelbare ruimtes
Liftinstallatie
Overheaddeur
Zes bij het object behorende parkeerplaatsen v.v. oplaadpalen t.b.v. elektrische auto's
Beveiligingsysteem
Luxe sanitaire voorzieningen, inclusief douches en mindervalidentoilet
Pantry aanwezig
Volledig mindervalide toegankelijk
Onderhoudsarm en duurzaam gebouwd
Glasvezel
Terreinbeveiliging middels camerabewaking en parkmanagement
Energielabel: A+++
Omgevingsgebruikers
Op bedrijventerrein Boekelermeer-Zuid zijn onder andere gevestigd:
Kaptein Zuivelhandel
Firma Luten
Solgar Vitamins
Ambiance Zonwering
TB Vloeren
Diverse andere middelgrote en grotere ondernemingen
Kadastrale gegevens
Gemeente: Heiloo, Sectie: C, Nummers: 638 A7 / A20 / A30 / A56 / A57 / A58 / A59 / A60 / A65
Huuringang / aanvaarding
In overleg, desgewenst op korte termijn.
Huurprijs
€ 4.350,- per maand, exclusief btw.
Servicekosten
Doorbelasting van eventuele VvE-bijdragen en servicekosten ten behoeve van onderhoud en keuring van de liftinstallatie. Huurder wordt zelf contractant bij de nutsleveranciers.
Opleveringsniveau
In huidige staat ("as is”), zoals getoond en door huurder aanvaard.
Zekerheidstelling
Waarborgsom of bankgarantie ter grootte van een bruto betalingsverplichting van drie maanden huur, te vermeerderen met servicekosten en btw.
Huurprijsindexatie
Jaarlijks, conform CPI (Consumentenprijsindex alle huishoudens, 2015 = 100), gepubliceerd door het CBS.
Omzetbelasting
Over de huurprijs wordt omzetbelasting in rekening gebracht. Uitgangspunt is dat huurder voor minimaal 90% btw-belaste prestaties in het gehuurde verricht.
Huurtermijn
In overleg, bij voorkeur 5 + 5 jaar.
Betaling
Per maand, bij vooruitbetaling.
Huurovereenkomst
Huurovereenkomst op basis van het meest recente ROZ-model, zoals gehanteerd door de Raad voor Onroerende Zaken en de NVM.
Aanvullende bepalingen
Drugs:
Huurder staat er uitdrukkelijk voor in dat in het gehuurde geen handel in drugs, natuurlijke middelen of natuurlijke geestverruimende middelen zal plaatsvinden en dat er geen middelen, als bedoeld in artikel 2 van de Opiumwet of stoffen, die alleen op recept van een arts mogen worden afgegeven, zullen worden gebruikt, bereid, verkocht, verwerkt, afgeleverd, versterkt of vervaardigd dan wel aanwezig.
Voorbehoud
Aan de inhoud van deze informatie kunnen geen rechten worden ontleend. Verhuur geschiedt onder voorbehoud van schriftelijke goedkeuring van eigenaar.
De unit beschikt over een frisse, moderne uitstraling, een uitstekende daglichttoetreding en een efficiënt indeelbare plattegrond. Dankzij de open structuur is het object eenvoudig aan te passen aan uiteenlopende bedrijfsconcepten. Het geheel is duurzaam gebouwd, goed onderhouden en voorzien van hoogwaardige faciliteiten, waaronder een liftinstallatie, luxe sanitaire voorzieningen en zes eigen parkeerplaatsen.
Ligging & bereikbaarheid
De Droogmakerij 37 B is strategisch gelegen op bedrijventerrein Boekelermeer-Zuid en uitstekend bereikbaar. Binnen circa vijf minuten zijn onder meer Alkmaar, Heiloo en Akersloot te bereiken. De locatie biedt een snelle aansluiting op het regionale en nationale wegennet en is daarmee aantrekkelijk voor zowel personeel als bezoekers.
Bestemming
Bestemmingsplan: Boekelermeer Heiloo
Functieaanduiding: Bedrijf – 2
Huurder is zelf verantwoordelijk voor het verkrijgen van zekerheid omtrent de toelaatbaarheid van de voorgenomen bedrijfsactiviteiten. Bij twijfel adviseren wij contact op te nemen met de gemeente Alkmaar.
NB: beoogd gebruik ten behoeve van de autobranche past niet binnen de door verhuurder gehanteerde verhuurcriteria.
Oppervlakte (BVO)
Begane grond: ca. 195 m²
1e verdieping: ca. 194 m²
2e verdieping: ca. 193 m², voorzien van dakterras/balkon
Totaal: ca. 582 m² BVO
Voorzieningen & bijzonderheden
Multifunctionele bedrijfs-/kantoorunit
Open, flexibel indeelbare ruimtes
Liftinstallatie
Overheaddeur
Zes bij het object behorende parkeerplaatsen v.v. oplaadpalen t.b.v. elektrische auto's
Beveiligingsysteem
Luxe sanitaire voorzieningen, inclusief douches en mindervalidentoilet
Pantry aanwezig
Volledig mindervalide toegankelijk
Onderhoudsarm en duurzaam gebouwd
Glasvezel
Terreinbeveiliging middels camerabewaking en parkmanagement
Energielabel: A+++
Omgevingsgebruikers
Op bedrijventerrein Boekelermeer-Zuid zijn onder andere gevestigd:
Kaptein Zuivelhandel
Firma Luten
Solgar Vitamins
Ambiance Zonwering
TB Vloeren
Diverse andere middelgrote en grotere ondernemingen
Kadastrale gegevens
Gemeente: Heiloo, Sectie: C, Nummers: 638 A7 / A20 / A30 / A56 / A57 / A58 / A59 / A60 / A65
Huuringang / aanvaarding
In overleg, desgewenst op korte termijn.
Huurprijs
€ 4.350,- per maand, exclusief btw.
Servicekosten
Doorbelasting van eventuele VvE-bijdragen en servicekosten ten behoeve van onderhoud en keuring van de liftinstallatie. Huurder wordt zelf contractant bij de nutsleveranciers.
Opleveringsniveau
In huidige staat ("as is”), zoals getoond en door huurder aanvaard.
Zekerheidstelling
Waarborgsom of bankgarantie ter grootte van een bruto betalingsverplichting van drie maanden huur, te vermeerderen met servicekosten en btw.
Huurprijsindexatie
Jaarlijks, conform CPI (Consumentenprijsindex alle huishoudens, 2015 = 100), gepubliceerd door het CBS.
Omzetbelasting
Over de huurprijs wordt omzetbelasting in rekening gebracht. Uitgangspunt is dat huurder voor minimaal 90% btw-belaste prestaties in het gehuurde verricht.
Huurtermijn
In overleg, bij voorkeur 5 + 5 jaar.
Betaling
Per maand, bij vooruitbetaling.
Huurovereenkomst
Huurovereenkomst op basis van het meest recente ROZ-model, zoals gehanteerd door de Raad voor Onroerende Zaken en de NVM.
Aanvullende bepalingen
Drugs:
Huurder staat er uitdrukkelijk voor in dat in het gehuurde geen handel in drugs, natuurlijke middelen of natuurlijke geestverruimende middelen zal plaatsvinden en dat er geen middelen, als bedoeld in artikel 2 van de Opiumwet of stoffen, die alleen op recept van een arts mogen worden afgegeven, zullen worden gebruikt, bereid, verkocht, verwerkt, afgeleverd, versterkt of vervaardigd dan wel aanwezig.
Voorbehoud
Aan de inhoud van deze informatie kunnen geen rechten worden ontleend. Verhuur geschiedt onder voorbehoud van schriftelijke goedkeuring van eigenaar.
Kaart
Kaart laden...
Kadastrale grens
Bebouwing
Reistijd
Krijg inzicht in de bereikbaarheid van dit object vanuit bijvoorbeeld een openbaar vervoer station of vanuit een adres.