Petroleumhavenstraat 5 7553 GS Hengelo (OV)
€ 4.250 /mnd
Omschrijving
Objectomschrijving:
Representatieve kantoorruimte met bedrijfsruimte op bedrijventerrein Twentekanaal Noord te Hengelo.
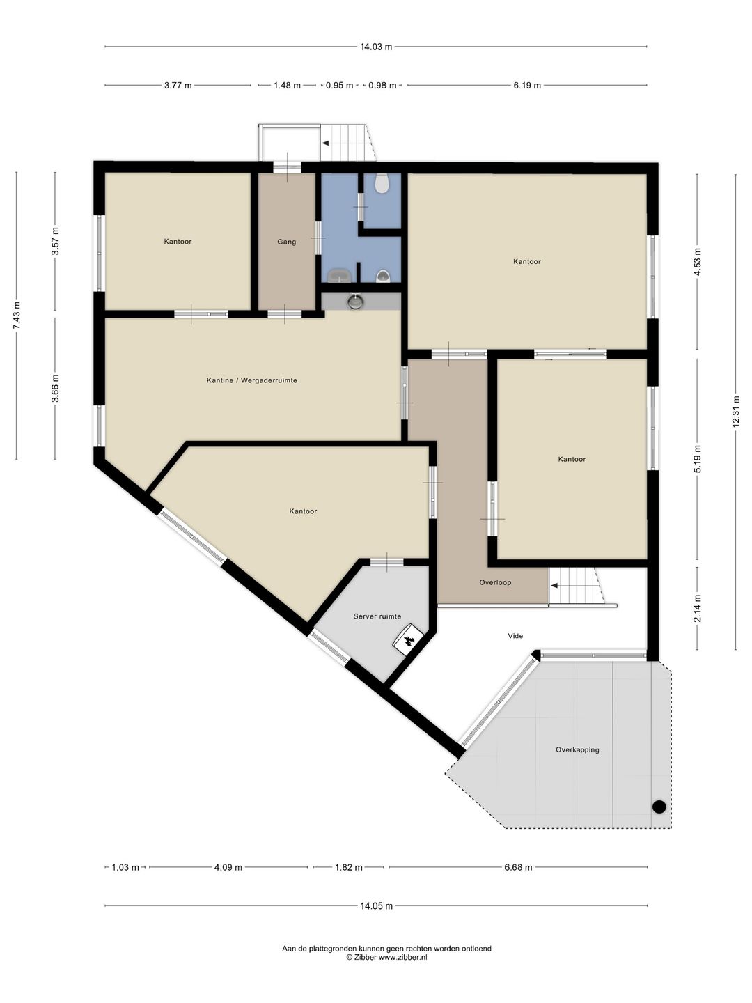
Op een uitstekende locatie op bedrijventerrein Twentekanaal Noord is deze representatieve kantoorruimte met bedrijfsruimte beschikbaar. De totale oppervlakte bedraagt circa 605 m², waarbij verhuur van meer ruimte mogelijk is. Denk hierbij aan extra bedrijfsruimte of buitenterrein. Het kantoorgebouw is gebouwd in 2004 en beschikt aan de voorzijde over eigen parkeerplaatsen. Daarnaast zijn optioneel extra parkeerplaatsen beschikbaar op het verharde buitenterrein naast het gebouw. De kantoorruimte is verdeeld over de begane grond en verdieping en is onder andere voorzien van een receptie, keuken, kantine met apparatuur, airconditioning, systeemplafond met verlichtingsarmaturen en toiletvoorzieningen. Het object heeft een energielabel B.
De bedrijfsruimte heeft een oppervlakte van ca. 310 m². In overleg met de verhuurder zijn aanpassingen aan het gebouw bespreekbaar, waardoor de ruimte flexibel kan worden ingericht naar wens van de huurder.
Vloeroppervlak:
Kantoor, receptie en toiletten begane grond: ca. 150 m²
Kantoor, kantine en toiletten verdieping: ca. 145 m²
Subtotaal: ca. 295 m²
Bedrijfsruimte: ca. 310 m²
Totaal: ca. 605 m²
De oppervlakten zijn gemeten door de makelaar uit een kopie bouwtekening. Het opgegeven metrage is derhalve indicatief; er kunnen geen rechten aan worden ontleend noch kan er sprake zijn van enige verrekening achteraf.
Locatie:
Petroleumhavenstraat 5, 7553 GS HENGELO (voormalige locatie Dura Vermeer Kleinbouw Hengelo)
Bestemming:
Het vigerende bestemmingsplan betreft ”bedrijventerrein Twentekanaal” met als enkelbestemming ”Bedrijventerrein” met functieaanduiding categorie 3.1.
Bereikbaarheid:
Het gebouw nabij de afslag A35 en A1 en centraal in Twente. Middels het openbaar vervoer is het object ook uitstekend te bereiken per bus. Het station van Hengelo ligt op ca. 20 minuten lopen.
Huurprijs:
€ 4.250,- excl. BTW per maand
Servicekosten:
Nader te bepalen
Ingangsdatum: in overleg
Huurtermijn: in overleg
Huurverlenging: in overleg
Opzegtermijn: In overleg
Huuraanpassing d.m.v. indexering per jaar op basis van de reeks consumentenprijsindexcijfers (alle
huishoudens)
Bankgarantie/Waarborgsom is drie maanden huur + BTW
Alle verstrekte informatie moet worden beschouwd als een uitnodiging tot het doen van een voorstel. Aan deze informatie kunnen geen rechten worden ontleend.
Representatieve kantoorruimte met bedrijfsruimte op bedrijventerrein Twentekanaal Noord te Hengelo.
Op een uitstekende locatie op bedrijventerrein Twentekanaal Noord is deze representatieve kantoorruimte met bedrijfsruimte beschikbaar. De totale oppervlakte bedraagt circa 605 m², waarbij verhuur van meer ruimte mogelijk is. Denk hierbij aan extra bedrijfsruimte of buitenterrein. Het kantoorgebouw is gebouwd in 2004 en beschikt aan de voorzijde over eigen parkeerplaatsen. Daarnaast zijn optioneel extra parkeerplaatsen beschikbaar op het verharde buitenterrein naast het gebouw. De kantoorruimte is verdeeld over de begane grond en verdieping en is onder andere voorzien van een receptie, keuken, kantine met apparatuur, airconditioning, systeemplafond met verlichtingsarmaturen en toiletvoorzieningen. Het object heeft een energielabel B.
De bedrijfsruimte heeft een oppervlakte van ca. 310 m². In overleg met de verhuurder zijn aanpassingen aan het gebouw bespreekbaar, waardoor de ruimte flexibel kan worden ingericht naar wens van de huurder.
Vloeroppervlak:
Kantoor, receptie en toiletten begane grond: ca. 150 m²
Kantoor, kantine en toiletten verdieping: ca. 145 m²
Subtotaal: ca. 295 m²
Bedrijfsruimte: ca. 310 m²
Totaal: ca. 605 m²
De oppervlakten zijn gemeten door de makelaar uit een kopie bouwtekening. Het opgegeven metrage is derhalve indicatief; er kunnen geen rechten aan worden ontleend noch kan er sprake zijn van enige verrekening achteraf.
Locatie:
Petroleumhavenstraat 5, 7553 GS HENGELO (voormalige locatie Dura Vermeer Kleinbouw Hengelo)
Bestemming:
Het vigerende bestemmingsplan betreft ”bedrijventerrein Twentekanaal” met als enkelbestemming ”Bedrijventerrein” met functieaanduiding categorie 3.1.
Bereikbaarheid:
Het gebouw nabij de afslag A35 en A1 en centraal in Twente. Middels het openbaar vervoer is het object ook uitstekend te bereiken per bus. Het station van Hengelo ligt op ca. 20 minuten lopen.
Huurprijs:
€ 4.250,- excl. BTW per maand
Servicekosten:
Nader te bepalen
Ingangsdatum: in overleg
Huurtermijn: in overleg
Huurverlenging: in overleg
Opzegtermijn: In overleg
Huuraanpassing d.m.v. indexering per jaar op basis van de reeks consumentenprijsindexcijfers (alle
huishoudens)
Bankgarantie/Waarborgsom is drie maanden huur + BTW
Alle verstrekte informatie moet worden beschouwd als een uitnodiging tot het doen van een voorstel. Aan deze informatie kunnen geen rechten worden ontleend.
Kenmerken
Overdracht
- Huurprijs
- € 4.250 per maand
- Aangeboden sinds
-
- Status
- Beschikbaar
- Aanvaarding
- Per direct beschikbaar
Bouw
- Hoofdfunctie
- Bedrijfshal
- Mogelijke functie(s)
- Kantoorruimte
- Soort bouw
- Bestaande bouw
- Bouwperiode
- 1971-1980
Oppervlakten
- Oppervlakte
- 310 m²
- Bedrijfshal oppervlak
- 310 m²
- Vrije hoogte
- 4,5 m
- Perceel
- 2.388 m²
Indeling
- Voorzieningen
- Krachtstroom en betonvloer
Energie
- Energielabel
- B
Omgeving
- Ligging
- Bedrijventerrein
- Bereikbaarheid
- Bushalte op minder dan 500 m, busknooppunt op 5000 m of meer, metrohalte op 5000 m of meer, metroknooppunt op 5000 m of meer, NS Intercitystation op 1000 m tot 1500 m, snelwegafrit op 1000 m tot 1500 m, Tramhalte op 5000 m of meer en tramknooppunt op 5000 m of meer
Parkeergelegenheid
- Parkeerplaatsen
- 7 niet-overdekte parkeerplaatsen
Foto's